Buderus Logatherm WSW196i.2-16 T180 MX400 Modul. WP 16kW B0/W35 Titanium
| Art.Nr.: | 
                                
                                
                                    137736160
                                                               
                             | 
| Herst.Nr.: | 
                                
                                    7739624065
                                                               
                             | 
| EAN: | 4062321978846 | 
| Lieferzeit: | ca. 1-2 Wochen | 
| EEK Spektrum: | A+++ -> D | 
| EEK: | a+++ | 
16.363,80 €*
inkl. 19% MwSt. zzgl. 0.00 € Versand
Logatherm WSW196i.2-16 T180 Sole-Wa. WP Modul. WP, 16kW B0/W35, Titanium, schwa.
Herstellerteilenummer: 7739624065
Beschreibung:
Sole/Wasser-Wärmepumpe für die Innenaufstellung mit integriertem 180 L Edel- stahl-Warmwasserspeicher. Hocheffiziente Invertersteuerung für modulierende Betriebsweise. Besonders leise Wärmepumpe, Aufstellung auch im Hauswirtschaftsraum möglich. Hochwertiges Design der Verkleidung mit Front in schwarzem Titanium Design. - Inkl. Absperrarmatur mit Partikelfilter und Magnetitanzeige für die Heizungsanlage - Inkl. Außentemperatur- und Vorlauffüh- ler - Inkl. LAN- und Funkmodul MX400 und Halter - Inkl. Internetschnittstelle - Inkl. integrierter, hocheffizienter Heizkreispumpe mit EEI < 0,20 - Inkl. integrierter, hocheffizienter Solepumpe mit EEI < 0,20 - Inkl. integriertem 9 kW E-Heizstab - Mit integrierter Wärmemengen- und Stromzählung - Passive Kühlstation für Raumkühlung optional erhältlich - Für einfachen Transport und Einbringung Teilung von Hydraulik- und Kältemodul innerhalb weniger Minuten möglich. Kältekreis zum vereinfachten Serviceeinsatz auf Schlitten herausziehbar. Einfache Bedienung über EMS plus Regelsystem mit Touchscreen BC400. - Regelungsfunktionen: - 1 ungemischter Heizkreis regelbar. Für gemischte Heizkreise sind Zubehöre erforderlich - Warmwasserbetrieb mittels integriertem Umschaltventil und integriertem Warm- wasserspeicher - Funktionserweiterung über optionale Reglermodule möglich (Schwimmbad, Solar, etc.) - SG Ready: smart-grid-fähige Wärmepumpe ist für die Einbindung in ein intelligentes Stromnetz bzw. PV-Anlage vorbereitet
Technische Daten:
- Masse und Gewichte:
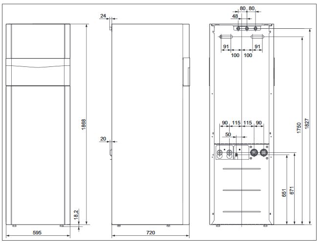
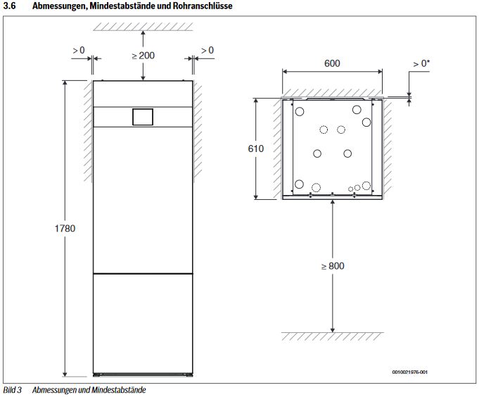
 Wärmepumpe HxBxT: 1780x600x610 mm
 Gesamtgewicht mit Verkleidung: 250 kg
 Gesamtgewicht ohne Verkleidung: 222 kg
 Gewicht Hydraulikmodul ohne Ver-
 kleidung: 95 kg
 Gewicht Kältekreismodul: 125 kg
 -
 Schalldaten:
 Max. Schalldruckpegel bei B0/W55 C
 nach DIN EN ISO 11203
 in 1m Abstand: 37 dB(A)
 Schallleistungspegel bei B0/W55 C
 min.-max.: 38-50 dB(A)
 -
 Leistungsdaten:
 Modulationsbereich bei B0/W35 C
 nach EN 14511: 4-15 kW
 COP bei B0/W35, nach EN 14511
 bei Teillast: 4,80
 Entzugsleistung bei B0/W35, nach
 EN 14511 bei Teillast: 4,8 kW
 
 Elektrische Leistungsaufnahme bei
 B0/W35, nach EN 14511 bei
 Teillast: 1,26 kW
 SCOP bei durchschnittlichen Klimaver-
 hältnissen bei 55 C: 4,10
 SCOP bei durchschnittlichen Klimaver-
 hältnissen bei 35 C: 5,33
 -
 Warmwasserbetrieb:
 Speicherinhalt (exkl. Wärme-
 tauscher): 180 l
 Minimal/maximal erlaubter Betriebs-
 druck: 2,0/10,0 bar
 Warmwasser-COP nach EN-16147(2017) bei
 ECO+ Einstellung: 3,05
 Warmwasserbereitungs-
 Energieeffizienzklasse bei ECO+
 Einstellung: A+
 Zapfprofil/Zapfmenge V40
 bei ECO+ Einstellung: XL/203 l
 Warmwasserbereitungs-
 Energieeffizienzklasse bei ECO
 Einstellung: A
 Zapfprofil/Zapfmenge V40
 bei ECO Einstellung: XXL/267 l
 Warmwasserbereitungs-
 Energieeffizienzklasse bei KOMFORT
 Einstellung: A
 Zapfprofil/Zapfmenge V40
 bei KOMFORT Einstellung: XXL/301 l
 -
 Heizungssystem:
 Minimal/maximal erlaubter Betriebs-
 druck: 1,2/3,0 bar
 Nenndurchfluss bei Fußboden-
 heizung: 2,63 m3/h
 Restförderhöhe bei Nenndurchfluss bei
 Fußbodenheizung: 1,0 m
 Nenndurchfluss bei Radiatoren-
 heizung: 1,55 m3/h
 Restförderhöhe bei Nenndurchfluss bei
 Radiatorenheizung: 6,2 m
 Max. Vorlauftemperatur bei B0 C: 71 C
 Max. Vorlauftemperatur bei B-3 C: 71 C
 Anschluss Heizkreis: CU 28 mm
 -
 Solekreis:
 Minimal/maximal erlaubter Betriebs-
 druck: 0,5/3,0 bar
 Mischanteil Ethanol,
 min./max.: 25/34 %vol.
 Mischanteil Ethylenglykol,
 min./max.: 30/35 %vol.
 Sole-Eintrittstemperatur
 min./max.: -5/30 C
 Anschluss Solekreis: Edelstahl 28 mm
 -
 Elektrodaten:
 Spannungsversorgung: 400V, 3N, 50 Hz
 Max. Kompressor-Betriebsstrom: 9 A
 Max. Betriebsstrom inkl. Elektro-
 Zuheizer 9 kW: 24 A
 Absicherung mit Elektro-Zuheizer
 3/6/9 kW: 16/25/25 A
 IP-Schutzklasse: X1
 ----------------------------------------
 LAN- und Funkmodul MX400 zur WLAN oder
 LAN-Kommunikation mit der App MyBuderus
 und für die Aufschaltung der Heizungs-
 anlage auf das Fachkundenportal Buderus
 ConnectPRO.
 -
 Schnittstelle per WLAN (2,4 GHz) oder
 alternativ kabelgebunden LAN zwischen
 der Heizungsanlage und einem Netzwerk
 (Internetzugang über Router erforder-
 lich).
 -
 Einbindung in Softwarelösungen wie App
 MyBuderus und Webportal ConnectPRO und
 MyEnergyMaster (Buderus Energiemanager).
 -
 EEBUS Kommunikation für Bundesförderung
 für effiziente Gebäude (BEG) und §14a
 Energiewirtschaftsgesetz (EnWG).
 -
 MX400 mit BC400 kombinierbar nur in ge-
 eigneten Wärmeerzeuger-Baureihen. HMC310
 nicht kombinierbar mit Funkfernbedienung
 Logamatic RC120 RF bzw. Einzelraumrege-
 lung SRC plus.
 -
 HINWEIS:
 Es können zusätzliche Kosten für die
 Internetverbindung entstehen, eine
 Internet Flatrate ist empfohlen.
 ----------------------------------------
 EU-RICHTLINIE FÜR ENERGIEEFFIZIENZ
 Klasse für jahreszeitbedingte
 Raumheizungs-Energieeffizienz
 bei 55 C: A+++
 Energieeffizienzklassen-
 Spektrum: A+++ -> D
 Wärmenennleistung bei durchschnitt-
 lichen Klimaverhältnissen
 bei 55 C: 14 kW
 Jahreszeitbedingte Raumheizungs-
 Energieeffizienz bei durchschnitt-
 lichen Klimaverhältnissen
 bei 55 C: 156 %
 Schallleistungspegel
 in Innenräumen: 41 dB
 Schallleistungspegel
 im Freien: -
 Klasse für die Warmwasserbereitungs-
 Energieeffizienz: A+
 Energieeffizienzklassen-
 Spektrum: A+ -> F
 Warmwasserbereitungs-Energieeffizienz
 bei durchschnittl. Klima: 127 %
 Lastprofil: XL
 -
 Klasse für jahreszeitbedingte
 Raumheizungs-Energieeffizienz
 der Verbundanlage: A+++
 Energieeffizienzklassen-
 Spektrum: A+++ -> G
 Jahreszeitbedingte Raumheizungs-
 Energieeffizienz der Verbund-
 anlage bei durchschnittlichen
 Klimaverhältnissen (WP) 158 %
 Klasse für die Warmwasserbereitungs-
 Energieeffizienz bei durchschnitt-
 lichem Klima: A+
 Energieeffizienzklassen-
 Spektrum: A+++ -> G
 Warmwasserbereitungs-Energieeffizienz
 bei durchschnittl. Klima: 127 %
 ----------------------------------------
 ANGABEN IN BEZUG AUF
 EU F-GAS VERORDNUNG 517/2014
 Umwelttechnischer Hin-
 weis: Enthält fluorierte Treibhausgase
 Kältemitteltyp: R410A
 Treibhauspotential - GWP: 2088 kgCO2eq
 Füllmenge Kältemittel: 23 kg
 Füllmenge Kältemittel: 48 tCO2eq
 Bauart des Kälte-
 kreises: Hermetisch geschlossen
 -
 Buderus-Artikel-Nr.: 7739624065
Lieferumfang:
- Logatherm WSW196i.2-16 T180 Sole-Wa. WP Modul. WP, 16kW B0/W35, Titanium, schwarz
Installation:
- Für die Installation dieses Gerätes ist ein 400V Starkstromanschluss (Drei-Phasen-Wechselanschluss) notwendig, die Montage (Wasser und Elektroinstallation) sowie die Erstinbetriebnahme und die Wartung dieses Gerätes dürfen nur von einer Elektrofachkraft in Übereinstimmung mit den gültigen Vorschriften sowie entsprechend dieser Anweisung ausgeführt werden!
Allg. Sicherheitshinweise:
Zur Vermeidung von Körper- und Gesundheitsschäden sind die Montage, Erstinbetriebnahme, Inspektion, Wartung und Instandsetzung von autorisierten Fachkräften (Heizungs- / Sanitärfachbetrieb / Vertragsinstallationsunternehmen) vorzunehmen!
Bestimmungsgemäße Verwendung: Bitte beachten Sie die bei Installation und Montage beiliegende Installations-, Betriebs- und Wartungsanleitungen sowie Produkt-/Systemzulassungen aller Anlagenkomponenten. Bei Wärmeerzeugern ist es zum Beispiel regelmäßig der Fall, dass allein für diese Heizung zugelassene Abgastechnik zur Verwendung gelangen darf. Zur bestimmungsgemäßen Verwendung gehört gleichsam die Einhaltung der ebenfalls in o.g. Unterlagen enthaltenen Inspektions- und Wartungsbedingungen.
Elektrische Heizgeräte sowie Durchlauferhitzer mit Starkstromanschluß (400V) dürfen nur durch jeweiligen Netzbetreiber oder durch ein in das Installateurverzeichnis des Netzbetreibers eingetragenes Installationsunternehmen installiert werden!
Elektrogeräte mit Drei-Phasen-Wechselstrom-Anschluss (3~/400V) und "nicht-steckerfertigen Geräten" sind von einem Fachbetrieb zu installieren. Geräte mit einer Nennleistung von mehr als 12 kW müssen vor der Erstinstallation eine Zustimmung vom Netzbetrieber erhalten.
Installation, Inspektion, Wartung und Instandsetzung von Gasgeräten sowie Gaseinstellungen darf nur ein Fachhandwerker durchführen!
Bosch Thermotechnik GmbH
Sophienstraße 30-32
35576 Wetzlar
DE
Tel: 06441 418-0
E-Mail: info@buderus.de
| Art.Nr.: | 
                                
                                
                                    137736160
                                                               
                             | 
| Herst.Nr.: | 
                                
                                    7739624065
                                                               
                             | 
| EAN: | 4062321978846 | 
| Lieferzeit: | ca. 1-2 Wochen | 
| EEK Spektrum: | A+++ -> D | 
| EEK: | a+++ | 
16.363,80 €*
inkl. 19% MwSt. zzgl. 0.00 € Versand
Logatherm WSW196i.2-16 T180 Sole-Wa. WP Modul. WP, 16kW B0/W35, Titanium, schwa.
Herstellerteilenummer: 7739624065
Beschreibung:
Sole/Wasser-Wärmepumpe für die Innenaufstellung mit integriertem 180 L Edel- stahl-Warmwasserspeicher. Hocheffiziente Invertersteuerung für modulierende Betriebsweise. Besonders leise Wärmepumpe, Aufstellung auch im Hauswirtschaftsraum möglich. Hochwertiges Design der Verkleidung mit Front in schwarzem Titanium Design. - Inkl. Absperrarmatur mit Partikelfilter und Magnetitanzeige für die Heizungsanlage - Inkl. Außentemperatur- und Vorlauffüh- ler - Inkl. LAN- und Funkmodul MX400 und Halter - Inkl. Internetschnittstelle - Inkl. integrierter, hocheffizienter Heizkreispumpe mit EEI < 0,20 - Inkl. integrierter, hocheffizienter Solepumpe mit EEI < 0,20 - Inkl. integriertem 9 kW E-Heizstab - Mit integrierter Wärmemengen- und Stromzählung - Passive Kühlstation für Raumkühlung optional erhältlich - Für einfachen Transport und Einbringung Teilung von Hydraulik- und Kältemodul innerhalb weniger Minuten möglich. Kältekreis zum vereinfachten Serviceeinsatz auf Schlitten herausziehbar. Einfache Bedienung über EMS plus Regelsystem mit Touchscreen BC400. - Regelungsfunktionen: - 1 ungemischter Heizkreis regelbar. Für gemischte Heizkreise sind Zubehöre erforderlich - Warmwasserbetrieb mittels integriertem Umschaltventil und integriertem Warm- wasserspeicher - Funktionserweiterung über optionale Reglermodule möglich (Schwimmbad, Solar, etc.) - SG Ready: smart-grid-fähige Wärmepumpe ist für die Einbindung in ein intelligentes Stromnetz bzw. PV-Anlage vorbereitet
Technische Daten:
- Masse und Gewichte:
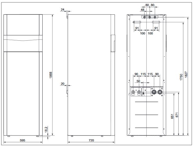
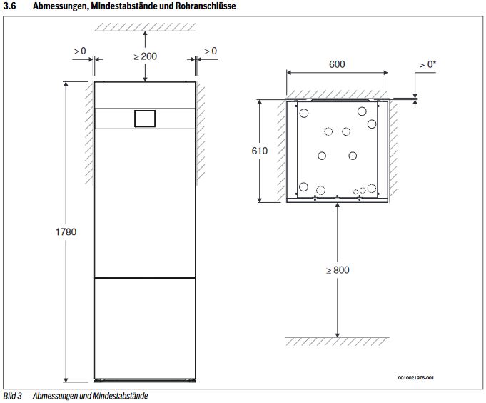
 Wärmepumpe HxBxT: 1780x600x610 mm
 Gesamtgewicht mit Verkleidung: 250 kg
 Gesamtgewicht ohne Verkleidung: 222 kg
 Gewicht Hydraulikmodul ohne Ver-
 kleidung: 95 kg
 Gewicht Kältekreismodul: 125 kg
 -
 Schalldaten:
 Max. Schalldruckpegel bei B0/W55 C
 nach DIN EN ISO 11203
 in 1m Abstand: 37 dB(A)
 Schallleistungspegel bei B0/W55 C
 min.-max.: 38-50 dB(A)
 -
 Leistungsdaten:
 Modulationsbereich bei B0/W35 C
 nach EN 14511: 4-15 kW
 COP bei B0/W35, nach EN 14511
 bei Teillast: 4,80
 Entzugsleistung bei B0/W35, nach
 EN 14511 bei Teillast: 4,8 kW
 
 Elektrische Leistungsaufnahme bei
 B0/W35, nach EN 14511 bei
 Teillast: 1,26 kW
 SCOP bei durchschnittlichen Klimaver-
 hältnissen bei 55 C: 4,10
 SCOP bei durchschnittlichen Klimaver-
 hältnissen bei 35 C: 5,33
 -
 Warmwasserbetrieb:
 Speicherinhalt (exkl. Wärme-
 tauscher): 180 l
 Minimal/maximal erlaubter Betriebs-
 druck: 2,0/10,0 bar
 Warmwasser-COP nach EN-16147(2017) bei
 ECO+ Einstellung: 3,05
 Warmwasserbereitungs-
 Energieeffizienzklasse bei ECO+
 Einstellung: A+
 Zapfprofil/Zapfmenge V40
 bei ECO+ Einstellung: XL/203 l
 Warmwasserbereitungs-
 Energieeffizienzklasse bei ECO
 Einstellung: A
 Zapfprofil/Zapfmenge V40
 bei ECO Einstellung: XXL/267 l
 Warmwasserbereitungs-
 Energieeffizienzklasse bei KOMFORT
 Einstellung: A
 Zapfprofil/Zapfmenge V40
 bei KOMFORT Einstellung: XXL/301 l
 -
 Heizungssystem:
 Minimal/maximal erlaubter Betriebs-
 druck: 1,2/3,0 bar
 Nenndurchfluss bei Fußboden-
 heizung: 2,63 m3/h
 Restförderhöhe bei Nenndurchfluss bei
 Fußbodenheizung: 1,0 m
 Nenndurchfluss bei Radiatoren-
 heizung: 1,55 m3/h
 Restförderhöhe bei Nenndurchfluss bei
 Radiatorenheizung: 6,2 m
 Max. Vorlauftemperatur bei B0 C: 71 C
 Max. Vorlauftemperatur bei B-3 C: 71 C
 Anschluss Heizkreis: CU 28 mm
 -
 Solekreis:
 Minimal/maximal erlaubter Betriebs-
 druck: 0,5/3,0 bar
 Mischanteil Ethanol,
 min./max.: 25/34 %vol.
 Mischanteil Ethylenglykol,
 min./max.: 30/35 %vol.
 Sole-Eintrittstemperatur
 min./max.: -5/30 C
 Anschluss Solekreis: Edelstahl 28 mm
 -
 Elektrodaten:
 Spannungsversorgung: 400V, 3N, 50 Hz
 Max. Kompressor-Betriebsstrom: 9 A
 Max. Betriebsstrom inkl. Elektro-
 Zuheizer 9 kW: 24 A
 Absicherung mit Elektro-Zuheizer
 3/6/9 kW: 16/25/25 A
 IP-Schutzklasse: X1
 ----------------------------------------
 LAN- und Funkmodul MX400 zur WLAN oder
 LAN-Kommunikation mit der App MyBuderus
 und für die Aufschaltung der Heizungs-
 anlage auf das Fachkundenportal Buderus
 ConnectPRO.
 -
 Schnittstelle per WLAN (2,4 GHz) oder
 alternativ kabelgebunden LAN zwischen
 der Heizungsanlage und einem Netzwerk
 (Internetzugang über Router erforder-
 lich).
 -
 Einbindung in Softwarelösungen wie App
 MyBuderus und Webportal ConnectPRO und
 MyEnergyMaster (Buderus Energiemanager).
 -
 EEBUS Kommunikation für Bundesförderung
 für effiziente Gebäude (BEG) und §14a
 Energiewirtschaftsgesetz (EnWG).
 -
 MX400 mit BC400 kombinierbar nur in ge-
 eigneten Wärmeerzeuger-Baureihen. HMC310
 nicht kombinierbar mit Funkfernbedienung
 Logamatic RC120 RF bzw. Einzelraumrege-
 lung SRC plus.
 -
 HINWEIS:
 Es können zusätzliche Kosten für die
 Internetverbindung entstehen, eine
 Internet Flatrate ist empfohlen.
 ----------------------------------------
 EU-RICHTLINIE FÜR ENERGIEEFFIZIENZ
 Klasse für jahreszeitbedingte
 Raumheizungs-Energieeffizienz
 bei 55 C: A+++
 Energieeffizienzklassen-
 Spektrum: A+++ -> D
 Wärmenennleistung bei durchschnitt-
 lichen Klimaverhältnissen
 bei 55 C: 14 kW
 Jahreszeitbedingte Raumheizungs-
 Energieeffizienz bei durchschnitt-
 lichen Klimaverhältnissen
 bei 55 C: 156 %
 Schallleistungspegel
 in Innenräumen: 41 dB
 Schallleistungspegel
 im Freien: -
 Klasse für die Warmwasserbereitungs-
 Energieeffizienz: A+
 Energieeffizienzklassen-
 Spektrum: A+ -> F
 Warmwasserbereitungs-Energieeffizienz
 bei durchschnittl. Klima: 127 %
 Lastprofil: XL
 -
 Klasse für jahreszeitbedingte
 Raumheizungs-Energieeffizienz
 der Verbundanlage: A+++
 Energieeffizienzklassen-
 Spektrum: A+++ -> G
 Jahreszeitbedingte Raumheizungs-
 Energieeffizienz der Verbund-
 anlage bei durchschnittlichen
 Klimaverhältnissen (WP) 158 %
 Klasse für die Warmwasserbereitungs-
 Energieeffizienz bei durchschnitt-
 lichem Klima: A+
 Energieeffizienzklassen-
 Spektrum: A+++ -> G
 Warmwasserbereitungs-Energieeffizienz
 bei durchschnittl. Klima: 127 %
 ----------------------------------------
 ANGABEN IN BEZUG AUF
 EU F-GAS VERORDNUNG 517/2014
 Umwelttechnischer Hin-
 weis: Enthält fluorierte Treibhausgase
 Kältemitteltyp: R410A
 Treibhauspotential - GWP: 2088 kgCO2eq
 Füllmenge Kältemittel: 23 kg
 Füllmenge Kältemittel: 48 tCO2eq
 Bauart des Kälte-
 kreises: Hermetisch geschlossen
 -
 Buderus-Artikel-Nr.: 7739624065
Lieferumfang:
- Logatherm WSW196i.2-16 T180 Sole-Wa. WP Modul. WP, 16kW B0/W35, Titanium, schwarz
Installation:
- Für die Installation dieses Gerätes ist ein 400V Starkstromanschluss (Drei-Phasen-Wechselanschluss) notwendig, die Montage (Wasser und Elektroinstallation) sowie die Erstinbetriebnahme und die Wartung dieses Gerätes dürfen nur von einer Elektrofachkraft in Übereinstimmung mit den gültigen Vorschriften sowie entsprechend dieser Anweisung ausgeführt werden!
Allg. Sicherheitshinweise:
Zur Vermeidung von Körper- und Gesundheitsschäden sind die Montage, Erstinbetriebnahme, Inspektion, Wartung und Instandsetzung von autorisierten Fachkräften (Heizungs- / Sanitärfachbetrieb / Vertragsinstallationsunternehmen) vorzunehmen!
Bestimmungsgemäße Verwendung: Bitte beachten Sie die bei Installation und Montage beiliegende Installations-, Betriebs- und Wartungsanleitungen sowie Produkt-/Systemzulassungen aller Anlagenkomponenten. Bei Wärmeerzeugern ist es zum Beispiel regelmäßig der Fall, dass allein für diese Heizung zugelassene Abgastechnik zur Verwendung gelangen darf. Zur bestimmungsgemäßen Verwendung gehört gleichsam die Einhaltung der ebenfalls in o.g. Unterlagen enthaltenen Inspektions- und Wartungsbedingungen.
Elektrische Heizgeräte sowie Durchlauferhitzer mit Starkstromanschluß (400V) dürfen nur durch jeweiligen Netzbetreiber oder durch ein in das Installateurverzeichnis des Netzbetreibers eingetragenes Installationsunternehmen installiert werden!
Elektrogeräte mit Drei-Phasen-Wechselstrom-Anschluss (3~/400V) und "nicht-steckerfertigen Geräten" sind von einem Fachbetrieb zu installieren. Geräte mit einer Nennleistung von mehr als 12 kW müssen vor der Erstinstallation eine Zustimmung vom Netzbetrieber erhalten.
Installation, Inspektion, Wartung und Instandsetzung von Gasgeräten sowie Gaseinstellungen darf nur ein Fachhandwerker durchführen!
Bosch Thermotechnik GmbH
Sophienstraße 30-32
35576 Wetzlar
DE
Tel: 06441 418-0
E-Mail: info@buderus.de
 
                                                                         
                
                 
                  
             
                                 
                                 
                                 
                                 
                                 
                                 
                                                                                     
                                                                             
                                                 
                                                 
                                                 
                                                 
                                                 
                                                 
                                                 
                                                 
                                                 
                                                