Betriebsferien vom 22.12.2025 - 06.01.2026. Bestellungen werden erst ab dem 07.01.2026 ausgeliefert.

Buderus Luft Wärmepumpe Logaplus M Logatherm plus WLW186i-10 AR T180

Art.Nr.:
181476619
Herst.Nr.:
7738602579
EAN: 4062321826550
Lieferzeit:

ca. 1-2 Wochen

EEK Spektrum: A+++ -> D
EEK: a++
a++
a+++ d
Versandkostenfrei

14.131,13 €*

inkl. 19% MwSt. zzgl. 0.00 € Versand

Produktinformationen "Buderus Luft Wärmepumpe Logaplus M Logatherm plus WLW186i-10 AR T180"

Buderus Logaplus M WLW186i-10 AR T180 WLW186i-12 T180 mit MX300, WLW-10 MB AR

Herstellerteilenummer: 7738602579

Beschreibung Inneneinheit:

Buderus Logatherm WLW186i-12 T180 ist die Inneneinheit (monoenergetisch inkl. Warmwasserspeicher T180, Pufferspeicher und 9 kW Heizstab zur Innenaufstellung) der Luft-Wasser-Wärmepumpe Logatherm WLW186i AR in Monoblock Ausführung. Erst die Kombination v. Inneneinheit mit Außeneinheit bildet eine funktionsfähige Luft-Wasser-Wärmepumpe in Monoblock-Ausführung. - Es erfolgt eine wasserführende Verbindung zwischen Innen- und Außeneinheit - Inklusive Estrichtrocknungsfunktion und aktiver Kühlung - Bis zu 75 C Vorlauftemperatur (65 C bis Außentemperatur -10 C) mit der Wärmepumpe möglich - Einfache Bedienung über EMS-plus Bedieneinheit Logamatic BC400 mit Klar- text Touchdisplay - HydraulicFlex Systemtechnologie mit integriertem Pufferspeicher und intelligenter Systemregelung für geringsten Platzbedarf und unkomplizierte hydraulische Einbindung

  • Mit EMS-plus Bedieneinheit Logamatic BC400 - SG Ready: smart-grid-fähige Wärmepumpe ist für die Einbindung in ein intelligentes Stromnetz/einer PV-Anlage vorbereitet
  • Integrierte Wärmemengenerfassung - Konnektivität über Funkmodul MX300 integriert
  • Hocheffiziente Primärkreis- und Heizkreis-Pumpe Grundfos UPM4L LIN (EEI <= 0,20) zur Heizwasserumwälzung
  • Mit 9 kW elektr. Zuheizer (stufig 3, 6, 9 kW)
  • Manometer, Filterkugelhahn, Entlüfter und Sicherheitsventil
  • Drucksensor
  •  Integrierter emaillierter Warmwasserspeicher T180 mit Magnesium-Schutzanode (Speichervolumen ohne Heizwendel 175,5 l) - Integrierter Pufferspeicher 16 l - Warmwasserbetrieb mittels internem Umschaltventil Heizung / Warmwasser - Kühlbetrieb still/dynamisch möglich - Außentemperaturfühler im Lieferumfang - Hinweis: - Magnetitabscheider ist zu installieren (nicht erforderlich, wenn die Anlage ausschließlich eine neu installierte Fußbodenheizung umfasst)
  • Außdehnungsgefäß für die Heizungsanlage 17 l integrierbar (Zubehör)
  • Mit serienmäßiger IP-Schnittstelle über das Funkmodul MX300 zur WLAN-Kommunikation mit der App MyBuderus und für die Aufschaltung der Heizungsanlage auf das Fachkundenportal Buderus ConnectPRO in Verbindung mit allen Wärmeerzeugern der Systembedieneinheit Logamatic BC400.
  • Und Funk-Kommunikation zur Einzelraumregelung SRC plus oder zur drahtlosen Verbindung einer Funkfernbedienung Logamatic RC120 RF (Voraussetzung Systembedieneinheit Logamatic BC400, Funkfernbedienung max. nur einmal pro Anlage möglich). - Systemvoraussetzungen: Zur Nutzung von Konnektivitätsanwendungen ist WLAN-Empfang am Installationsort des Wärmeerzeugers erforderlich. - MX300 mit RC310 und HMC310 kombinierbar nur in geeigneten Wärmeerzeuger- Baureihen, RC310/HMC310 nicht kombinierbar mit Funkfernbedienung Logama- tic RC120 RF bzw. Einzelraumregelung SRC plus. - Es können zusätzliche Kosten für die Internetverbindung entstehen, eine Internet Flatrate ist empfohlen. - Hinweis: Die Kommunikation zu Bosch Smart Home, KNX und MyGekko ist zurzeit noch nicht möglich!

Technische Daten Inneneinheit:

  • Anschluss Heizung (Vorlauf/Rücklauf): Cu 28 mm
  • Anschluss Wärmepumpe (Vorlauf/Rücklauf): Cu 28 mm
  • Anschlüsse Warmwasser: 18 mm, Edelstahl
  • Anlagendruck minimal: 0,8 bar maximal: 3,0 bar
  • Max. Restförderhöhe ist von der angeschlossenen Außeneinheit abhängig.
  • Elektr. Anschluss: 3L/N/PE/400V/50Hz
  • Schutzklasse: IP X4D
  • Sicherungsautomat: 3polig, 16 A
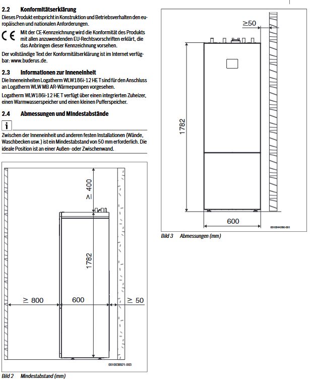
  • Breite: 600 mm
  • Höhe: 1782 mm
  • Tiefe: 600 mm
  • Nettogewicht: 151 kg

Beschreibung Außeneinheit:

  • Invertergeregelter Verdichter- und Gebläsebetrieb
  • Reversibel für Heizung und Kühlung
  • Silent PLUS Technologie auf nächstem Level mit doppelt entkoppeltem Kältekreis in schallgedämmter Kältekreisbox und integriertem Schalldiffusor
  • Kältekreis mit Doppelrollkolben-Verdichter und elektronischen Expansionsventilen
  • Umweltfreundliches und natürliches Kältemittel R290 (Propan)
  • Integrierte Kondensatwannenheizung
  • Tragehilfe im Lieferumfang
  • Boden- oder Sockelmontage (Montage- sockel Zubehör)
  • Angabe gemäß EN 14511
    - Heizleistung +7/35 C: 5,58 kW
    - COP +7/35 C: 4,84
    - elektr. Leistungsaufnahme: 1,15 kW
  • Heizleistung +2/35 C: 4,59 kW
    - COP +2/35 C: 4,48
    - elektr. Leistungsaufnahme: 1,02 kW
    - Modulation +2/35 C: 2,1 - 11,7 kW
  •  Heizleistung -7/35 C: 9,57 kW
    - COP -7/35 C: 2,47
    - elektr. Leistungsaufnahme: 3,87 kW
  • Heizleistung -10/35 C: 9,99 kW
    - COP -10/35 C: 2,72
    - elektr. Leistungsaufnahme: 3,67 kW
  • Angabe gemäß EN 14511:
    - Kühlleistung +35/18 C: 8,9 kW
    - EER bei A35/W18: 2,88
    - Kühlleistung +35/7 C: 6,7 kW
    - EER bei A35/W7: 2,39
  • Angabe gemäß EN 12102:
    - Schallleistungspegel n. ErP: 42 dB(A)
    - Max. Schallleistungspegel im
  • Tagbetrieb + Tonalität: 58,3+0 dB(A)
    - Max. Schallleistungspegel im reduzierten Nachtbetrieb (silent mode 3 mit 5,29 kW bei A-7/W35) +
  • Tonalität: 48,7+0 dB(A)
    - Max. Schallleistungspegel im reduzierten Nachtbetrieb (silent mode 4 mit 4,09 kW bei A-7/W35) +
  • Tonalität: 45+0 dB(A)
    - Schalldruckpegel in 1 m Abstand (Lastpunkt n. 2013/811/EU): 34 dB(A)
    - Nom. Luftvolumenstrom: 1720 qm/h
    - Außenlufttemperatur min./max. Heizbetrieb: -22/+45 Kühlbetrieb: bis +45
    - Kompressor:
    Doppelrollkolben-Verdichter
    - Kältemittelmenge R290: 1,6 kg
    - Max. Vorlauftemperatur mit WLW186i
    E/T180/TP70: 75 C (65 C bis -10 C
    Außentemperatur)
    - Max. Vorlauftemperatur mit WLW176i
    E/T180/TP70: 60 C
    - Elektr. Anschluss: 3L/N/PE/400V/50Hz
    - Sicherungsautomat: 3polig, 16 A
    - Max. Leistungsaufnahme: 7,2 kW
    - Wasserseitiger Anschluss
    Heizung: G 1" AG
    - Abmessungen
    Breite: 1350 mm
    Höhe: 1100 mm
    Tiefe: 540 mm
    Nettogewicht: 212 kg
    ----------------------------------------
    EU-RICHTLINIE FÜR ENERGIEEFFIZIENZ
    Klasse für jahreszeitbedingte
    Raumheizungs-Energieeffizienz
    bei 55 C: A++
    Energieeffizienzklassen-
    Spektrum: A+++ -> D
    Wärmenennleistung bei durchschnitt-
    lichen Klimaverhältnissen
    bei 55 C: 10 kW
    Jahreszeitbedingte Raumheizungs-
    Energieeffizienz bei durchschnitt-
    lichen Klimaverhältnissen
    bei 55 C: 141 %
    Schallleistungspegel
    in Innenräumen: 40 dB
    Schallleistungspegel
    im Freien: 42 dB
    Klasse für die Warmwasserbereitungs-
    Energieeffizienz: A
    Energieeffizienzklassen-
    Spektrum: A+ -> F
    Warmwasserbereitungs-Energieeffizienz
    bei durchschnittl. Klima: 95 %
    Lastprofil: XL

 

Die Erstinbetriebnahme sowie die erforderlichen wiederkehrenden Wartungen sind durch den Buderus Kundendienst oder eine von Buderus für dieses Produkt qualifizierte sowie zertifizierte Fachfirma durchzuführen! Diese Dienstleistung ist nicht enthalten und separat zu beauftragen! - Wir weisen darauf hin, dass wir eine Gewährleistung nur für solche Anlagenteile übernehmen können, die Sie bei uns bezogen haben. Bitte beachten Sie die von uns vorgegebenen Komponentenlisten und Hydraulikvorschläge. Bei Verwendung anderer Komponenten kann es ggf. zu Fehlfunktionen oder Effizienzeinbußen kommen.

Installation:

    Für die Installation dieses Gerätes ist ein 400V Starkstromanschluss (Drei-Phasen-Wechselanschluss) notwendig, die Montage (Wasser und Elektroinstallation) sowie die Erstinbetriebnahme und die Wartung dieses Gerätes dürfen nur von einer Elektrofachkraft in Übereinstimmung mit den gültigen Vorschriften sowie entsprechend dieser Anweisung ausgeführt werden!

 

WEEE-Reg.-Nr.: DE 69542401

Allg. Sicherheitshinweise:

Zur Vermeidung von Körper- und Gesundheitsschäden sind die Montage, Erstinbetriebnahme, Inspektion, Wartung und Instandsetzung von autorisierten Fachkräften (Heizungs- / Sanitärfachbetrieb / Vertragsinstallationsunternehmen) vorzunehmen!

Bestimmungsgemäße Verwendung: Bitte beachten Sie die bei Installation und Montage beiliegende Installations-, Betriebs- und Wartungsanleitungen sowie Produkt-/Systemzulassungen aller Anlagenkomponenten. Bei Wärmeerzeugern ist es zum Beispiel regelmäßig der Fall, dass allein für diese Heizung zugelassene Abgastechnik zur Verwendung gelangen darf. Zur bestimmungsgemäßen Verwendung gehört gleichsam die Einhaltung der ebenfalls in o.g. Unterlagen enthaltenen Inspektions- und Wartungsbedingungen.

Elektrische Heizgeräte sowie Durchlauferhitzer mit Starkstromanschluß (400V) dürfen nur durch jeweiligen Netzbetreiber oder durch ein in das Installateurverzeichnis des Netzbetreibers eingetragenes Installationsunternehmen installiert werden!

Elektrogeräte mit Drei-Phasen-Wechselstrom-Anschluss (3~/400V) und "nicht-steckerfertigen Geräten" sind von einem Fachbetrieb zu installieren. Geräte mit einer Nennleistung von mehr als 12 kW müssen vor der Erstinstallation eine Zustimmung vom Netzbetrieber erhalten.

Installation, Inspektion, Wartung und Instandsetzung von Gasgeräten sowie Gaseinstellungen darf nur ein Fachhandwerker durchführen!

Herstellerinformationen

Bosch Thermotechnik GmbH
Sophienstraße 30-32
35576 Wetzlar
DE

Tel: 06441 418-0
E-Mail: info@buderus.de
Art.Nr.:
181476619
Herst.Nr.:
7738602579
EAN: 4062321826550
Lieferzeit:

ca. 1-2 Wochen

EEK Spektrum: A+++ -> D
EEK: a++
a++
a+++ d
Versandkostenfrei

14.131,13 €*

inkl. 19% MwSt. zzgl. 0.00 € Versand

Produktinformationen "Buderus Luft Wärmepumpe Logaplus M Logatherm plus WLW186i-10 AR T180"

Buderus Logaplus M WLW186i-10 AR T180 WLW186i-12 T180 mit MX300, WLW-10 MB AR

Herstellerteilenummer: 7738602579

Beschreibung Inneneinheit:

Buderus Logatherm WLW186i-12 T180 ist die Inneneinheit (monoenergetisch inkl. Warmwasserspeicher T180, Pufferspeicher und 9 kW Heizstab zur Innenaufstellung) der Luft-Wasser-Wärmepumpe Logatherm WLW186i AR in Monoblock Ausführung. Erst die Kombination v. Inneneinheit mit Außeneinheit bildet eine funktionsfähige Luft-Wasser-Wärmepumpe in Monoblock-Ausführung. - Es erfolgt eine wasserführende Verbindung zwischen Innen- und Außeneinheit - Inklusive Estrichtrocknungsfunktion und aktiver Kühlung - Bis zu 75 C Vorlauftemperatur (65 C bis Außentemperatur -10 C) mit der Wärmepumpe möglich - Einfache Bedienung über EMS-plus Bedieneinheit Logamatic BC400 mit Klar- text Touchdisplay - HydraulicFlex Systemtechnologie mit integriertem Pufferspeicher und intelligenter Systemregelung für geringsten Platzbedarf und unkomplizierte hydraulische Einbindung

  • Mit EMS-plus Bedieneinheit Logamatic BC400 - SG Ready: smart-grid-fähige Wärmepumpe ist für die Einbindung in ein intelligentes Stromnetz/einer PV-Anlage vorbereitet
  • Integrierte Wärmemengenerfassung - Konnektivität über Funkmodul MX300 integriert
  • Hocheffiziente Primärkreis- und Heizkreis-Pumpe Grundfos UPM4L LIN (EEI <= 0,20) zur Heizwasserumwälzung
  • Mit 9 kW elektr. Zuheizer (stufig 3, 6, 9 kW)
  • Manometer, Filterkugelhahn, Entlüfter und Sicherheitsventil
  • Drucksensor
  •  Integrierter emaillierter Warmwasserspeicher T180 mit Magnesium-Schutzanode (Speichervolumen ohne Heizwendel 175,5 l) - Integrierter Pufferspeicher 16 l - Warmwasserbetrieb mittels internem Umschaltventil Heizung / Warmwasser - Kühlbetrieb still/dynamisch möglich - Außentemperaturfühler im Lieferumfang - Hinweis: - Magnetitabscheider ist zu installieren (nicht erforderlich, wenn die Anlage ausschließlich eine neu installierte Fußbodenheizung umfasst)
  • Außdehnungsgefäß für die Heizungsanlage 17 l integrierbar (Zubehör)
  • Mit serienmäßiger IP-Schnittstelle über das Funkmodul MX300 zur WLAN-Kommunikation mit der App MyBuderus und für die Aufschaltung der Heizungsanlage auf das Fachkundenportal Buderus ConnectPRO in Verbindung mit allen Wärmeerzeugern der Systembedieneinheit Logamatic BC400.
  • Und Funk-Kommunikation zur Einzelraumregelung SRC plus oder zur drahtlosen Verbindung einer Funkfernbedienung Logamatic RC120 RF (Voraussetzung Systembedieneinheit Logamatic BC400, Funkfernbedienung max. nur einmal pro Anlage möglich). - Systemvoraussetzungen: Zur Nutzung von Konnektivitätsanwendungen ist WLAN-Empfang am Installationsort des Wärmeerzeugers erforderlich. - MX300 mit RC310 und HMC310 kombinierbar nur in geeigneten Wärmeerzeuger- Baureihen, RC310/HMC310 nicht kombinierbar mit Funkfernbedienung Logama- tic RC120 RF bzw. Einzelraumregelung SRC plus. - Es können zusätzliche Kosten für die Internetverbindung entstehen, eine Internet Flatrate ist empfohlen. - Hinweis: Die Kommunikation zu Bosch Smart Home, KNX und MyGekko ist zurzeit noch nicht möglich!

Technische Daten Inneneinheit:

  • Anschluss Heizung (Vorlauf/Rücklauf): Cu 28 mm
  • Anschluss Wärmepumpe (Vorlauf/Rücklauf): Cu 28 mm
  • Anschlüsse Warmwasser: 18 mm, Edelstahl
  • Anlagendruck minimal: 0,8 bar maximal: 3,0 bar
  • Max. Restförderhöhe ist von der angeschlossenen Außeneinheit abhängig.
  • Elektr. Anschluss: 3L/N/PE/400V/50Hz
  • Schutzklasse: IP X4D
  • Sicherungsautomat: 3polig, 16 A
  • Breite: 600 mm
  • Höhe: 1782 mm
  • Tiefe: 600 mm
  • Nettogewicht: 151 kg

Beschreibung Außeneinheit:

  • Invertergeregelter Verdichter- und Gebläsebetrieb
  • Reversibel für Heizung und Kühlung
  • Silent PLUS Technologie auf nächstem Level mit doppelt entkoppeltem Kältekreis in schallgedämmter Kältekreisbox und integriertem Schalldiffusor
  • Kältekreis mit Doppelrollkolben-Verdichter und elektronischen Expansionsventilen
  • Umweltfreundliches und natürliches Kältemittel R290 (Propan)
  • Integrierte Kondensatwannenheizung
  • Tragehilfe im Lieferumfang
  • Boden- oder Sockelmontage (Montage- sockel Zubehör)
  • Angabe gemäß EN 14511
    - Heizleistung +7/35 C: 5,58 kW
    - COP +7/35 C: 4,84
    - elektr. Leistungsaufnahme: 1,15 kW
  • Heizleistung +2/35 C: 4,59 kW
    - COP +2/35 C: 4,48
    - elektr. Leistungsaufnahme: 1,02 kW
    - Modulation +2/35 C: 2,1 - 11,7 kW
  •  Heizleistung -7/35 C: 9,57 kW
    - COP -7/35 C: 2,47
    - elektr. Leistungsaufnahme: 3,87 kW
  • Heizleistung -10/35 C: 9,99 kW
    - COP -10/35 C: 2,72
    - elektr. Leistungsaufnahme: 3,67 kW
  • Angabe gemäß EN 14511:
    - Kühlleistung +35/18 C: 8,9 kW
    - EER bei A35/W18: 2,88
    - Kühlleistung +35/7 C: 6,7 kW
    - EER bei A35/W7: 2,39
  • Angabe gemäß EN 12102:
    - Schallleistungspegel n. ErP: 42 dB(A)
    - Max. Schallleistungspegel im
  • Tagbetrieb + Tonalität: 58,3+0 dB(A)
    - Max. Schallleistungspegel im reduzierten Nachtbetrieb (silent mode 3 mit 5,29 kW bei A-7/W35) +
  • Tonalität: 48,7+0 dB(A)
    - Max. Schallleistungspegel im reduzierten Nachtbetrieb (silent mode 4 mit 4,09 kW bei A-7/W35) +
  • Tonalität: 45+0 dB(A)
    - Schalldruckpegel in 1 m Abstand (Lastpunkt n. 2013/811/EU): 34 dB(A)
    - Nom. Luftvolumenstrom: 1720 qm/h
    - Außenlufttemperatur min./max. Heizbetrieb: -22/+45 Kühlbetrieb: bis +45
    - Kompressor:
    Doppelrollkolben-Verdichter
    - Kältemittelmenge R290: 1,6 kg
    - Max. Vorlauftemperatur mit WLW186i
    E/T180/TP70: 75 C (65 C bis -10 C
    Außentemperatur)
    - Max. Vorlauftemperatur mit WLW176i
    E/T180/TP70: 60 C
    - Elektr. Anschluss: 3L/N/PE/400V/50Hz
    - Sicherungsautomat: 3polig, 16 A
    - Max. Leistungsaufnahme: 7,2 kW
    - Wasserseitiger Anschluss
    Heizung: G 1" AG
    - Abmessungen
    Breite: 1350 mm
    Höhe: 1100 mm
    Tiefe: 540 mm
    Nettogewicht: 212 kg
    ----------------------------------------
    EU-RICHTLINIE FÜR ENERGIEEFFIZIENZ
    Klasse für jahreszeitbedingte
    Raumheizungs-Energieeffizienz
    bei 55 C: A++
    Energieeffizienzklassen-
    Spektrum: A+++ -> D
    Wärmenennleistung bei durchschnitt-
    lichen Klimaverhältnissen
    bei 55 C: 10 kW
    Jahreszeitbedingte Raumheizungs-
    Energieeffizienz bei durchschnitt-
    lichen Klimaverhältnissen
    bei 55 C: 141 %
    Schallleistungspegel
    in Innenräumen: 40 dB
    Schallleistungspegel
    im Freien: 42 dB
    Klasse für die Warmwasserbereitungs-
    Energieeffizienz: A
    Energieeffizienzklassen-
    Spektrum: A+ -> F
    Warmwasserbereitungs-Energieeffizienz
    bei durchschnittl. Klima: 95 %
    Lastprofil: XL

 

Die Erstinbetriebnahme sowie die erforderlichen wiederkehrenden Wartungen sind durch den Buderus Kundendienst oder eine von Buderus für dieses Produkt qualifizierte sowie zertifizierte Fachfirma durchzuführen! Diese Dienstleistung ist nicht enthalten und separat zu beauftragen! - Wir weisen darauf hin, dass wir eine Gewährleistung nur für solche Anlagenteile übernehmen können, die Sie bei uns bezogen haben. Bitte beachten Sie die von uns vorgegebenen Komponentenlisten und Hydraulikvorschläge. Bei Verwendung anderer Komponenten kann es ggf. zu Fehlfunktionen oder Effizienzeinbußen kommen.

Installation:

    Für die Installation dieses Gerätes ist ein 400V Starkstromanschluss (Drei-Phasen-Wechselanschluss) notwendig, die Montage (Wasser und Elektroinstallation) sowie die Erstinbetriebnahme und die Wartung dieses Gerätes dürfen nur von einer Elektrofachkraft in Übereinstimmung mit den gültigen Vorschriften sowie entsprechend dieser Anweisung ausgeführt werden!

 

WEEE-Reg.-Nr.: DE 69542401

Allg. Sicherheitshinweise:

Zur Vermeidung von Körper- und Gesundheitsschäden sind die Montage, Erstinbetriebnahme, Inspektion, Wartung und Instandsetzung von autorisierten Fachkräften (Heizungs- / Sanitärfachbetrieb / Vertragsinstallationsunternehmen) vorzunehmen!

Bestimmungsgemäße Verwendung: Bitte beachten Sie die bei Installation und Montage beiliegende Installations-, Betriebs- und Wartungsanleitungen sowie Produkt-/Systemzulassungen aller Anlagenkomponenten. Bei Wärmeerzeugern ist es zum Beispiel regelmäßig der Fall, dass allein für diese Heizung zugelassene Abgastechnik zur Verwendung gelangen darf. Zur bestimmungsgemäßen Verwendung gehört gleichsam die Einhaltung der ebenfalls in o.g. Unterlagen enthaltenen Inspektions- und Wartungsbedingungen.

Elektrische Heizgeräte sowie Durchlauferhitzer mit Starkstromanschluß (400V) dürfen nur durch jeweiligen Netzbetreiber oder durch ein in das Installateurverzeichnis des Netzbetreibers eingetragenes Installationsunternehmen installiert werden!

Elektrogeräte mit Drei-Phasen-Wechselstrom-Anschluss (3~/400V) und "nicht-steckerfertigen Geräten" sind von einem Fachbetrieb zu installieren. Geräte mit einer Nennleistung von mehr als 12 kW müssen vor der Erstinstallation eine Zustimmung vom Netzbetrieber erhalten.

Installation, Inspektion, Wartung und Instandsetzung von Gasgeräten sowie Gaseinstellungen darf nur ein Fachhandwerker durchführen!

Herstellerinformationen

Bosch Thermotechnik GmbH
Sophienstraße 30-32
35576 Wetzlar
DE

Tel: 06441 418-0
E-Mail: info@buderus.de

Ähnliche Artikel

Inneneinheit AE LWPM CONTROL BOX Regelung für Monoblock-Wärmepumpe 24154
Inneneinheit AE LWPM CONTROL BOX für Monoblock-Wärmepumpe Hersteller: 24154 Technische Daten: Kleines Gehäuse für die Regelung und Bedieneinheit Regelung vormontiert, für die Wandmontage Hydraulikkomponente beiliegend Maße (B x H x T): 450 x 430 x 183 mm Gewicht: 10 kg Ausführung: Inneneinheit Art der Regelung: Witterungsabhängige Regelung Geeignet für aktive Kühlung: Ja Mit elektrischem Heizelement: Nein Anschlussspannung [V]: 230 Außenrohrdurchmesser Anschluss Abgabesystem: 1 Zoll außen Beinhaltet: - Vorlauffühler - Volumenstrommesser - Manometer - Regelung Lieferumfang: Inneneinheit AE LWPM CONTROL BOX für Monoblock-Wärmepumpe Montage- und Bedienungsanleitung Installation Für die Installation dieses Gerätes ist ein 400V Starkstromanschluss (Drei-Phasen-Wechselanschluss) notwendig, die Montage (Wasser und Elektroinstallation) sowie die Erstinbetriebnahme und die Wartung dieses Gerätes dürfen nur von einer entsprechenden Fachkraft in Übereinstimmung mit den gültigen Vorschriften sowie entsprechend dieser Anweisung ausgeführt werden!

807,45 €*

Art.Nr.: 182882097

ca. 1 Woche

Remeha Anschlusskit für Confida 50 E H für Luftwärmepumpe Confida 400 MB
Remeha Anschlusskit für Confida 50 Herstellerteilenummer: 7887584 Beschreibung: Anschlusskit für die wandhängende Confida 50 H oder Confida 50 E. Dieses beinhaltet Absperrventile, das Dreiwegeventil zur Umschaltung zwischen Warmwasserbetrieb und Heizbetrieb, Dämmschale für diese Komponenten, Platzhalter für den im Lieferumfang enthaltenden Magnetitfilter der Confida 50 und Kondensatschlauch. Bei Verwendung der Confida 50 H muss die Erweiterung für Anschlusskit Confida 50 ergänzt werden, um den Kessel anschließen zu können./li> Lieferumfang: Remeha Anschlusskit für Confida 50

824,94 €*

Art.Nr.: 183446025

ca. 1 Woche

Inneneinheit AE LWPM Heizung für Monoblock-Wärmepumpe Hydraulikmodul
Inneneinheit AE LWPM Heizung für Monoblock-Wärmepumpe Hersteller: 24152 Beschreibung: Technische Daten: Hydraulikkomponente für den Heizungsbetrieb integriert Komplett vormontiert, für die Wandmontage Erweiterbar für die Warmwasserbereitung Maße (B x H x T): 450 x 845 x 479 mm Gewicht: 40 kg Ausführung: Inneneinheit Art der Regelung: Witterungsabhängige Regelung Geeignet für aktive Kühlung: Ja Mit elektrischem Heizelement: Nein Anschlussspannung [V]: 230 Außenrohrdurchmesser Anschluss Abgabesystem: 1 Zoll außen Beinhaltet: - Heizkreispumpe - Vorlauffühler - Volumenerweiterung 24 l - Ausdehnungsgefäß - Volumenstrommesser - Manometer - Regelung Lieferumfang: Inneneinheit AE LWPM Heizung für Monoblock-Wärmepumpe Montage- und Bedienungsanleitung Installation: Für die Installation dieses Gerätes ist ein 400V Starkstromanschluss (Drei-Phasen-Wechselanschluss) notwendig, die Montage (Wasser und Elektroinstallation) sowie die Erstinbetriebnahme und die Wartung dieses Gerätes dürfen nur von einer entsprechenden Fachkraft in Übereinstimmung mit den gültigen Vorschriften sowie entsprechend dieser Anweisung ausgeführt werden!

1.623,87 €*

Art.Nr.: 182881892

ca. 1-2 Wochen

Remeha Confida 40 E IDU mit elektr. Backup für Luft Wärmepumpe Confida Tensio C
RE IDU f. monob. WP mit elektr. Backup Confida 40 E Herstellerteilenummer: 7887584 Beschreibung: Remeha Confida 40 E Wandhängende Inneneinheit für die Monoblock Wärmepumpen Confida MB 400 oder Tensio C mit 3 bzw. 6 kW elektrischer Nachheizung. Die Inneneineit ist mit der Bedieneinheit Typ MK2.1 ausgestattet. Die witterungsgeführte Regelung besitzt einen Bildschirm mit Klartext- anzeige. Bedienungfreundlicher Dreh- und Drückknopf erlaubt über ein Karussellmenü die einfache Navigation zu sämtlichen Einstelloptionen. Inbetriebnahmefunktionen sowie Fehlermeldungen sind über die Menüführung einfach anwählbar. Inkusive Kühlfunktion. Außentemperaturfühler und ein intern verbauter Systemtemperaturfühler sind im Lieferumfang enthalten. Integrierte Regelung von einem gemischten Heizkreis, einem ungemischten Heizkreis, der Zirkulationspumpe (temperaturgeführt oder zeitgesteuert) und der Trinkwasserbeladung (Dreiwegeventil oder Speicherbeladungspumpe). Alternativ zur Ansteuerung der Zirkulationspumpe kann eine Solaranlage zur Trinkwassserunterstüzung mit PWM-Pumpe geregelt werden. Regelung von zusätzlichen Heizkreisen oder Erweiterung anderer Funktionen ist durch Zubehör möglich. Die Inneneinheit besteht aus einer Elektronachheizung je nach Anschlussart 3 oder 6 kW, einem automatischen Schnellentlüfter, Sicherheitsventil, Magnetit- und Schmutzfilter, Drucksensor, Außdehnungsgefäß (8 Liter) und einem Durchflusssensor. Technische Daten: Abmessungen (B x T x H): 450 x 408 x 790 mm Anschlüsse: RL - Heizkreis: G 1" VL - Heizkreis: G 1" RL - Zusatzheizkessel: G 1" VL - Zusatzheizkessel: G 1" Wärmepumpe - Zuleitung: G 1" Wärmepumpe - Ableitung: G 1" Gewicht: 28,8 kg Elektroanschluss einphasig/dreiphasig Betriebsspannung: 230Volt/50Hz / 400Volt Lieferumfang: Remeha IDU f. monob. WP mit hydr. Backup Confida 40 E Montage und Betriebsanleitung Installation: Für die Installation dieses Gerätes ist ein 400V Starkstromanschluss (Drei-Phasen-Wechselanschluss) notwendig, die Montage (Wasser und Elektroinstallation) sowie die Erstinbetriebnahme und die Wartung dieses Gerätes dürfen nur von einer Elektrofachkraft in Übereinstimmung mit den gültigen Vorschriften sowie entsprechend dieser Anweisung ausgeführt werden!

1.886,09 €*

Art.Nr.: 183104947

ca. 1 Woche

STIEBEL ELTRON Hydraulikmodul HM Trend mit integriertem WPM III für WPL-A 232805
STIEBEL ELTRON Hydraulikmodul HM Trend mit integriertem WPM III für WPL-A Herstellerteilenummer: 232805 Beschreibung: Das Hydraulikmodul erleichtert die Einbindung von Luft-Wasser-Wärmepumpen in die Anlagenhydraulik und ist mit einer hochwertig lackierten Gerätehaube ausgestattet. Viele Komponenten können so direkt in einem Arbeitsgang installiert werden. Schon fest integriert sind der Wärmepumpenmanager, die Hocheffizienz-Heizungsumwälzpumpe für Heizung und Warmwasser, das Sicherheitsventil, ein Ausdehnungsgefäß sowie eine Not-Zusatzheizung. Optional kann eine isolierte Anschlussleiste verwendet werden, wodurch die Installation vereinfacht und die Montagezeit verkürzt wird. Zur vereinfachten Installation von Luft-Wasser-Wärmepumpen Geringer Platzbedarf durch kompakte Bauform Hoher Ausstattungsgrad durch vorgefertigte hydraulische Bauteile Ideal für den Einsatz in Ein- bzw. Zweifamilienhäusern Technische Daten: Max. zulässiger Druck 3,0 bar Einsatzgrenze heizungsseitig max. 75 °C Externe verfügbare Druckdifferenz bei 1,0 m ³/h 715 hPa Externe verfügbare Druckdifferenz bei 1,5 m³/h 661 hPa Externe verfügbare Druckdifferenz bei 2 m³/h 468 hPa Externe verfügbare Druckdifferenz bei 2,5 m³/h 300 hPa Ausdehnungsgefäß-Volumen 24 l Frequenz 50 Hz Nennspannung Steuerung 230 V Nennspannung Not-/Zusatzheizung 400 V Leistungsaufnahme Not-/Zusatzheizung 8,80 kW Leistungsaufnahme Umwälzpumpe 3-76 W Umwälzpumpentyp Yonos PARA 25/7.5, highly efficient circulation pump Schutzart (IP) IP20 Höhe 896 mm Höhe mit Anschlussleiste 1131 mm Breite 590 mm Tiefe 405 mm Gewicht 27 kg Anschluss G 1 Lieferumfang: STIEBEL ELTRON Hydraulikmodul HM mit integriertem WPM III für WPL-A Montage- und Betriebsanleitung Installationshinweise: Zur Vermeidung von Körper- und Gesundheitsschäden sind die Montage, Erstinbetriebnahme, Inspektion, Wartung und Instandsetzung von autorisierten Fachkräften (Heizungs- / Sanitärfachbetrieb / Vertragsinstallationsunternehmen) vorzunehmen! Elektrische Heizgeräte sowie Durchlauferhitzer mit Starkstromanschluß (400V) dürfen nur durch jeweiligen Netzbetreiber oder durch ein in das Installateurverzeichnis des Netzbetreibers eingetragenes Installationsunternehmen installiert werden! Elektrogeräte mit Drei-Phasen-Wechselstrom-Anschluss (3~/400V) und "nicht-steckerfertigen Geräten" sind von einem Fachbetrieb zu installieren. Geräte mit einer Nennleistung von mehr als 12 kW müssen vor der Erstinstallation eine Zustimmung vom Netzbetrieber erhalten.  

1.888,53 €*

Art.Nr.: 182861430

ca. 2-3 Wochen

%
Hydraulikstation Vaillant VWL 57/5 IS für aroTHERM Split VWL 35/5 AS VWL 55/5AS
Hydraulikstation Vaillant VWL 57/5 IS für aroTHERM Split Artikelnummer: 0010023494 Lieferumfang Typ VWL 57/5 IS Ausführung: ungemischter Heizkreis Breite: 440 mm Höhe: 720 mm Tiefe: 350 mm Ausführung der Temperaturregelung: elektrisch Mediumtemperatur: 20, 55 Mit Passstück für Wärmezähler: Nein Mit Wärmezähler: Nein Nenndurchmesser primär: 1 Zoll (25) für R410A Maschinen Für die Installation dieses Gerätes ist ein 400V Starkstromanschluss (Drei-Phasen-Wechselanschluss) notwendig, die Montage (Wasser und Elektroinstallation) sowie die Erstinbetriebnahme und die Wartung dieses Gerätes dürfen nur von einer entsprechenden Fachkraft in Übereinstimmung mit den gültigen Vorschriften sowie entsprechend dieser Anweisung ausgeführt werden!

1.955,25 €* UVP 2.607,00 €*

Art.Nr.: 183536187

ca. 1 Woche

Sold Out
Wolf Luft-Wasser Wärmepumpe 9148032 FHA Monoblock 06/07 230 V mit E-Heizelement
Wolf Wärmepumpe FHA-Monoblock 08/10 230V mit E-Heizelement 6 kW Herstellerteilenummer: 9148032 Beschreibung: Wärmepumpe FHA-Monoblock Mit integriertem 6kW Elektroheizelement und energieffizienter Ausführung. Modulierende, energieeffiziente Ausführung für Heiz- und Kühlbetrieb sowie Warmwasserbereitung auch bei niedrigen Außentemperaturen. Synthetisches Kältemittel R32 (GWP = 675) mit geringer Füllmenge und max. Vorlauftemperatur bis zu 65°C (ab A+5)im reinen WP-Betrieb für sicheren Schutz vor Legionellen. Entsprechend den gültigen Normen und Sicherheitsvorschriften ausgeführt. HP-Keymark, EHPA-zertifiziert, Smart-Grid-Ready, hybridfähig für ökol. oder ökonomischen Betrieb. Außeneinheit: Stabile Gehäusekonstruktion, UV-beständig. Stufenlose, elektr. Leistungsregelung mit Inverter-Technik für effizienten Teillastbetrieb mit hohem Modulationsbereich. Strömungsoptimierter Rippenrohrverdampfer mit optionalen Metallschutzgitter, aus Kupferrohr mit aufgepressten Aluminiumlamellen und hydrophober Schutzbeschichtung für längere Laufzeiten ohne Abtaubedarf. Wärmegedämmter Plattenwärmetauscher als Verflüssiger. Vorlauf- und Rücklaufsensoren im Gerät integriert. Hydraulischer und elektrischer Anschluss rückseitig möglich. Hohe ETA_s durch optimierte Verdampferleistung und EC-Axialventilator. Aufstellung der Außeneinheit und Sicherheitsabstände gemäß der WOLF Montage- und Bedienungsanleitung. Kältekreis nach Druckgeräte Richtlinie 2014/68/EU mit hermetisch gekapseltem Rollkolben-Verdichter. Standardmäßiger Nachtbetrieb. Heizbetrieb: max. Heizwassertemp. von 75°C mit Elektroheizelement. Entsprechend den gültigen Normen und Sicherheitsvorschriften ausgeführt. Außeneinheit Aufstellung auf Boden oder Boden- bzw. Wandkonsole. Vor- und Rücklaufleitung zwischen Außen- und Inneneinheit bauseits. Verdampferabtauung über Kreislaufumkehr. Inneneinheit: Hocheffizienzumwälzpumpe EEI<0,21 für Heizkreis und WW-Betrieb integriert. Spreizungsregelung über Pumpendrehzahl. 3-Wege-Umschaltventil für Heiz-/Kühl-/Warmwasserbetrieb. Integr. Wärmemengenzähler nach BAFA mittels Durchflusssensor. Bedarfsgerecht geregeltes Elektroheizelement mit max. 6 kW im Durchlaufprinzip. Warnmeldung bei niedrigem Wasserdruck durch Heizwasserdrucksensor. Inneneinheit gedämmt inkl. Heizkreissicherheitsventil 3 bar mit Kunststoffablaufschlauch (Innen-Ø 19 mm), manuellem Entlüfter und analogem Druckmanometer. Regler mit Steuer- und Überwachungsorganen der gesamten Wärmepumpe. Eingänge der Regelung Inneneinheit: eBUS, Speicherfühler, Außenfühler, S0-Schnittstelle/ EVU/ Smart Grid/ PV-Anhebung, 3 parametrierbare Eingänge z.B. für Sammlerfühler/ Taupunktwächter/ Externe Ansteuerung 0-10V. Ausgänge: Externe Heizkreispumpe, Anforderung 2. Wärmeerzeugers, Ext. 3-Wege-Umschaltventil für den Kühlbetrieb, Zirkulationspumpe, 3 parametrierbare Ausgänge. Bedienmodul BM-2 oder AM in Inneneinheit integrierbar. Vorbereitet für WOLF Link home zur Kommunikation per Smartset App und Web. Montage der Inneneinheit wandhängend mit Einhängewinkel. Optional mittels Gerätekonsole auch an der Decke oder auf dem Boden möglich. Alternativ vollständig integriert im Komplettpaket WOLF Wärmepumpencenter. Für den Betrieb ist ein Bedienmodul BM-2 oder ein Anzeigenmodul AM erforderlich. Technische Daten: Abmessungen BxHxT (incl. Füße, incl. Fronttüren): Außeneinheit 1.295x718x429mm / Inneneinheit 440x790x340mm Gewicht: Außeneinheit 79 kg / Inneneinheit 25 kg Kältekreis Kältemitteltyp / GWP R32 / 675 Füllmenge / CO2eq 1,4 / 0,95 kg / t Kältemittelöl FW68S Kompressor-Typ Rollkolben Nennleistung nach EN14511 Heizleistung / COP A2/W35: 2,98 / 3,51 kW/- A7/W35: 3,82 / 5,21 kW/- A-7/W35: 5,49 / 2,76 kW/- Leistungsbereich: bei A2/W35: 2,4 - 6,5 kW bei A7/W35: 2,8 - 7,7 kW bei A-7/W35: 1,6 - 5,5 kW ETA_s (35°C): 167,2 % ETA_s (55°C): 129 % Energieeffizienzklasse: Raumheizung Niedertemperatur A++ / Mitteltemperatur A++ WW-Speicher C Pufferspeicher B Kühlleistung / EER bei A35/W18 Nennleistung nach EN14511: 5,2 / 4,9 kW/- Schall Außeneinheit A7/W55 (in Anlehnung an EN 12102/EN ISO 9614-2) bei Nenn-Wärmeleistung (ErP): 57,9 dB(A) Tag max.: 59,8 dB(A) im reduziertem Nachtbetrieb: 55 dB(A) Einsatz-/Betriebsgrenzen (min. / max.): Heizbetrieb +25° bis +65° C Kühlbetrieb +7° bis +25° C Luft Warmwasser- u. Heizbetrieb -25° bis +43° C Luft Kühlbetrieb 10° bis +43° C Heizwasser Nennvolumenstrom bei 5K Spreizung 20 l/min Mindestvolumenstrom für Abtauung 13 l/min Restförderhöhe bei min. Volumenstrom für Abtauung 420 mbar maximaler Betriebsdruck Heizkreis 3 bar Wärmequelle Luftvolumenstrom im Nennbetriebspunkt 2770 m³/h Anschlüsse Außeneinheit: Vorlauf, Rücklauf 1" R Kondensatwasseranschluss 33 DN Elektrik Außeneinheit (ODU) - Steuerung Elektrischer Anschluss 1~NPE, 230VAC, 50Hz Max. Stromaufnahme 14 A Max. Verdichterstrom innerhalb der Einsatzgrenzen 2,65 A Max. Anzahl Verdichterstarts pro Stunde 6 1/h Schutzart IP 24 Elektrik Inneneinheit (IDU) - Regelung Elektrischer Anschluss 1~NPE, 230VAC, 50Hz Max. Stromaufnahme 4 A Elektrik Inneneinheit (IDU) + E-Heizung (IDU) Elektrischer Anschluss 3~NPE, 400VAC, 50Hz Max. Leistungsaufnahme: E-Heizung 6 kW Standby Elektroheizelement 2 W E-Heizung (6 kW) 8,7 A Schutzart IP 20 Fabrikat: WOLF GmbH Artikel-Nummer: 9148032 Lieferumfang: Wolf Wärmepumpe FHA-Monoblock 06/07 230V mit E-Heizelement 6 kW Montage- und Betriebsanleitung Installationshinweis: Für die Installation dieses Gerätes ist ein 400V Starkstromanschluss (Drei-Phasen-Wechselanschluss) notwendig, die Montage (Wasser und Elektroinstallation) sowie die Erstinbetriebnahme und die Wartung dieses Gerätes dürfen nur von einer entsprechenden Fachkraft in Übereinstimmung mit den gültigen Vorschriften sowie entsprechend dieser Anweisung ausgeführt werden!

2.388,77 €*
a++
a+++ d
Datenblatt

Art.Nr.: 183488530

ca. 1 Woche

Kermi x-center pro Wärmepumpenregelung Wandregler für x-change dynamic pro
Kermi x-center pro Wärmepumpenregelung Wandregler für x-change dynamic pro Herstellerteilenummer: W40675 Beschreibung: Kermi x-center pro Wärmepumpenregelung Wandregler für x-change dynamic pro Die Regelung überzeugt durch das hochauflösende kapazitive 7' Touch-Farbdisplay mit intuitiver und einfachster Menüführung durch selbsterklärende Icons und innovativen Übersichtsscreens. Funktionen wie Smart Grid, Power to Heat und elektronische Wärmemengenerfassung inkl. COP Ermittlung sind ebenso integriert, wie die Möglichkeit zur Einbindung weiterer Kermi Geräte über Modbus. Ohne weiteres Zubehör ist die x-center pro Regelung fernwartungsfähig und das Wärmepumpensystem inkl. Frischwasserstation (Zubehör) kann webbasiert oder mit einer App fernbedient werden. Der bauseitige Verkabelungsaufwand wird auf ein Minimum reduziert, selbst die Heizstäbe (Zubehör) müssen nur noch an die beiden integrierten Schütze angeschlossen werden. Angesteuert werden können bis zu 2 gemischte Heizkreise, 2 elektrische Heizstäbe und eine Speicherladegruppe mit PWM Signal. Lieferumfang: Wärmepumpenregelung x-center pro für die Wandmontage Außentemperaturfühler 5 Temperaturfühler, inkl. 2 x Tauchhülse DN 15 -> Verbindungskabel Wärmepumpe - Regler bauseits Montage- und Bedienungsanleitung

2.434,29 €*

Art.Nr.: 182905737

ca. 1-2 Wochen

Sold Out
Wolf Luft-Wasser Wärmepumpe 9148033 FHA Monoblock 08/10 230 V mit E-Heizelement
Wolf Wärmepumpe FHA-Monoblock 08/10 230V mit E-Heizelement 6 kW Herstellerteilenummer: 9148033 Beschreibung: Wärmepumpe FHA-Monoblock Mit integriertem 6kW Elektroheizelement und energieffizienter Ausführung. Modulierende, energieeffiziente Ausführung für Heiz- und Kühlbetrieb sowie Warmwasserbereitung auch bei niedrigen Außentemperaturen. Synthetisches Kältemittel R32 (GWP = 675) mit geringer Füllmenge und max. Vorlauftemperatur bis zu 65°C (ab A+5)im reinen WP-Betrieb für sicheren Schutz vor Legionellen. Entsprechend den gültigen Normen und Sicherheitsvorschriften ausgeführt. HP-Keymark, EHPA-zertifiziert, Smart-Grid-Ready, hybridfähig für ökol. oder ökonomischen Betrieb. Außeneinheit: Stabile Gehäusekonstruktion, UV-beständig. Stufenlose, elektr. Leistungsregelung mit Inverter-Technik für effizienten Teillastbetrieb mit hohem Modulationsbereich. Strömungsoptimierter Rippenrohrverdampfer mit optionalen Metallschutzgitter, aus Kupferrohr mit aufgepressten Aluminiumlamellen und hydrophober Schutzbeschichtung für längere Laufzeiten ohne Abtaubedarf. Wärmegedämmter Plattenwärmetauscher als Verflüssiger. Vorlauf- und Rücklaufsensoren im Gerät integriert. Hydraulischer und elektrischer Anschluss rückseitig möglich. Hohe ETA_s durch optimierte Verdampferleistung und EC-Axialventilator. Aufstellung der Außeneinheit und Sicherheitsabstände gemäß der WOLF Montage- und Bedienungsanleitung. Kältekreis nach Druckgeräte Richtlinie 2014/68/EU mit hermetisch gekapseltem Rollkolben-Verdichter. Standardmäßiger Nachtbetrieb. Heizbetrieb: max. Heizwassertemp. von 75°C mit Elektroheizelement. Entsprechend den gültigen Normen und Sicherheitsvorschriften ausgeführt. Außeneinheit Aufstellung auf Boden oder Boden- bzw. Wandkonsole. Vor- und Rücklaufleitung zwischen Außen- und Inneneinheit bauseits. Verdampferabtauung über Kreislaufumkehr. Inneneinheit: Hocheffizienzumwälzpumpe EEI<0,21 für Heizkreis und WW-Betrieb integriert. Spreizungsregelung über Pumpendrehzahl. 3-Wege-Umschaltventil für Heiz-/Kühl-/Warmwasserbetrieb. Integr. Wärmemengenzähler nach BAFA mittels Durchflusssensor. Bedarfsgerecht geregeltes Elektroheizelement mit max. 6 kW im Durchlaufprinzip. Warnmeldung bei niedrigem Wasserdruck durch Heizwasserdrucksensor. Inneneinheit gedämmt inkl. Heizkreissicherheitsventil 3 bar mit Kunststoffablaufschlauch (Innen-Ø 19 mm), manuellem Entlüfter und analogem Druckmanometer. Regler mit Steuer- und Überwachungsorganen der gesamten Wärmepumpe. Eingänge der Regelung Inneneinheit: eBUS, Speicherfühler, Außenfühler, S0-Schnittstelle/ EVU/ Smart Grid/ PV-Anhebung, 3 parametrierbare Eingänge z.B. für Sammlerfühler/ Taupunktwächter/ Externe Ansteuerung 0-10V. Ausgänge: Externe Heizkreispumpe, Anforderung 2. Wärmeerzeugers, Ext. 3-Wege-Umschaltventil für den Kühlbetrieb, Zirkulationspumpe, 3 parametrierbare Ausgänge. Bedienmodul BM-2 oder AM in Inneneinheit integrierbar. Vorbereitet für WOLF Link home zur Kommunikation per Smartset App und Web. Montage der Inneneinheit wandhängend mit Einhängewinkel. Optional mittels Gerätekonsole auch an der Decke oder auf dem Boden möglich. Alternativ vollständig integriert im Komplettpaket WOLF Wärmepumpencenter. Für den Betrieb ist ein Bedienmodul BM-2 oder ein Anzeigenmodul AM erforderlich. Technische Daten: Abmessungen BxHxT (incl. Füße, incl. Fronttüren): Außeneinheit 1.385x865x526 mm / Inneneinheit 440x790x340 mm Gewicht: Außeneinheit 98Kg / Inneneinheit 26 kg Kältekreis Kältemitteltyp / GWP R32 / 675 Füllmenge / CO2eq 1,4 / 0,95 kg / t Kältemittelöl FW68S Kompressor-Typ Rollkolben Nennleistung nach EN14511 Heizleistung / COP A2/W35: 4,93 / 4,33 kW/- A7/W35: 3,6 / 4,87 kW/- A-7/W35: 7,57 / 2,89 kW/- Leistungsbereich: bei A2/W35: 2,9 - 10,0 kW bei A7/W35: 3,5 - 10,6 kW bei A-7/W35: 2,1 - 8,3 kW ETA_s (35°C): 196,3 % ETA_s (55°C): 133,3 % Energieeffizienzklasse: Raumheizung Niedertemperatur A+++ / Mitteltemperatur A+++ WW-Speicher C Pufferspeicher B Kühlleistung / EER bei A35/W18 Nennleistung nach EN14511: 6,8 / 5,0 kW/- Schall Außeneinheit A7/W55 (in Anlehnung an EN 12102/EN ISO 9614-2) bei Nenn-Wärmeleistung (ErP): 58,9 dB(A) Tag max.: 60,5 dB(A) im reduziertem Nachtbetrieb: 55 dB(A) Einsatz-/Betriebsgrenzen (min. / max.): Heizbetrieb +25° bis +65° C Kühlbetrieb +7° bis +25° C Luft Warmwasser- u. Heizbetrieb -25° bis +43° C Luft Kühlbetrieb 10° bis +43° C Heizwasser Nennvolumenstrom bei 5K Spreizung 28 l/min Mindestvolumenstrom für Abtauung 13 l/min Restförderhöhe bei min. Volumenstrom für Abtauung - mbar maximaler Betriebsdruck Heizkreis 3 bar Wärmequelle Luftvolumenstrom im Nennbetriebspunkt 4030 m³/h Anschlüsse Außeneinheit: Vorlauf, Rücklauf 1¼" R Kondensatwasseranschluss 33 DN Elektrik Außeneinheit (ODU) - Steuerung Elektrischer Anschluss 1~NPE, 230VAC, 50Hz Max. Stromaufnahme 17 A Max. Verdichterstrom innerhalb der Einsatzgrenzen 3,65 A Max. Anzahl Verdichterstarts pro Stunde 6 1/h Schutzart IP 24 Elektrik Inneneinheit (IDU) - Regelung Elektrischer Anschluss 1~NPE, 230VAC, 50Hz Max. Stromaufnahme 4 A Elektrik Inneneinheit (IDU) + E-Heizung (IDU) Elektrischer Anschluss 3~NPE, 400VAC, 50Hz Max. Leistungsaufnahme: E-Heizung 6 kW Standby Elektroheizelement 2 W E-Heizung (6 kW) 8,7 A Schutzart IP 20 Fabrikat: WOLF GmbH Artikel-Nummer: 9148033 Lieferumfang: Wolf Wärmepumpe FHA-Monoblock 08/10 230V mit E-Heizelement 6 kW Montage- und Betriebsanleitung Installationshinweis: Für die Installation dieses Gerätes ist ein 400V Starkstromanschluss (Drei-Phasen-Wechselanschluss) notwendig, die Montage (Wasser und Elektroinstallation) sowie die Erstinbetriebnahme und die Wartung dieses Gerätes dürfen nur von einer entsprechenden Fachkraft in Übereinstimmung mit den gültigen Vorschriften sowie entsprechend dieser Anweisung ausgeführt werden!

2.487,60 €*
a++
a+++ d
Datenblatt

Art.Nr.: 183450581

ca. 1 Woche

Novelan Helox Hydraulikmodul 9kW Heizstab Wärmepumpenregler 15220541
Novelan Hydraulikmodul HV 9H, 9kW Elektroheizelement, mit Wärmepumpenregler, Heizung Herstellerteilenummer: 15220541 Beschreibung: Klasse des Reglers: VII Beitrag des Reglers zur Raumheizungs- Energieeffizienz: 3,5 % Gerätebeschreibung: Anschlussfertige Hydraulikkombination zur Wandmontage fertig isoliert. Zur schnelleren Installation sind folgende Komponenten integriert oder im Lieferumfang: Energieeffizienz- Umwälzpumpe, Ausdehnungsgefäß, Sicherheitsbaugruppe, Elektroheizelement, Vor- und Rücklauffühler, Absperrkugelhähne, Entleerungshahn, Wärmemengenerfassung und Außenfühler. Integrierter Wärmepumpenregler Witterungsgeführter Heizungs- und Wärmepumpenregler mit Vollgrafikdisplay und Menüführung, laufzeitoptimierte und wärmebedarfsabhängige Verdichteransteuerung. Alle Betriebsarten einzeln programmierbar, automatische Heizgrenzfunktion, Legionellenschutzprogramm, Estrichausheizprogramm, Pumpenoptimierungsprogramm, Ansteuerung von mehreren Wärmeerzeugern, Ansteuerung eines Mischkreises (Lade- / Entlade- / Kühl), Datenloggerfunktion, Fehlerdiagnoseprogramm mit Fehlerspeicher, Kurzprogramm für Kundendienst, Inbetriebnahme-Assistent, Entlüftungsprogramm, Schnellladefunktion für Trinkwarmwasserbereitung, automatische Sommer- / Winterzeitfunktion, Urlaubszeitfunktion, netzwerkfähig (mit integriertem Webserver), USB-Schnittstelle, Mehrsprachigkeit. Der Regler ermöglicht einen schallreduzierten Nachtbetrieb (Silent Mode). Durch Zusatzplatinen und umfangreiches Zubehör ist der Regler erweiterungsfähig. Technische Daten: Umgebungstemperatur: 5 C - 35 C Freie Pressung bei 1200 l/h Heizwasservolumenstrom: 0,72 bar Maximaler Heizwasser-Volumenstrom: 2500 l/h Maße (B x T x H ohne Schnittstellen und Bedienteil): 610 x 365 x 995 mm Gewicht gesamt: 40kg Schallleistungspegel: 44dB(A) Spannungscode Verdichter: 1-N/PE/230V/50Hz Spannungscode Heizelement: 3-N/PE/400V/50Hz Spannungscode Steuerspannung: 1-N/PE/230V/50Hz Elektroheizelement 3 / 2 / 1 phasig: 9 / 6 / 3 kW Geeignet für Helox 5, Helox 8, Helox 11 und Helox 16. Lieferumfang: Novelan Hydraulikmodul HV 9H, 9kW Elektroheizelement, mit Wärmepumpenregler Montage- und Bedienungsanleitung Installation: Für die Installation dieses Gerätes ist ein 400V Starkstromanschluss (Drei-Phasen-Wechselanschluss) notwendig, die Montage (Wasser und Elektroinstallation) sowie die Erstinbetriebnahme und die Wartung dieses Gerätes dürfen nur von einer Elektrofachkraft in Übereinstimmung mit den gültigen Vorschriften sowie entsprechend dieser Anweisung ausgeführt werden!

2.646,54 €*

Art.Nr.: 182962733

ca. 1 Woche

Inneneinheit AE LWPKM Warmwasser Speicher 190 L Monoblock-Wärmepumpe 24153
Inneneinheit AE LWPKM, Warmwasser, Speicher 190 L. für Monoblock-Wärmepumpe Hersteller: 24153 Beschreibung: Technische Daten: Hydraulikkomponente für den Heizungsbetrieb und Warmwasser integriert Komplett vormontiert, für die Bodenaufstellung Warmwasserspeicher 190 l, emailliert mit Fremdstromanode Heizstab im Warmwasserspeicher integriert, für Spitzenabdeckung Elektrische Leistung Heizstab: 1,5 kW Maße (B x H x T): 700 x 1840 x 650 mm Gewicht: 146 kg Ausführung: Inneneinheit Art der Regelung: Witterungsabhängige Regelung Geeignet für aktive Kühlung: Ja Mit elektrischem Heizelement: Ja Anschlussspannung [V]: 230 Außenrohrdurchmesser Anschluss Abgabesystem: 1 Zoll außen Beinhaltet: - Heizkreispumpe - Vorlauffühler - Volumenerweiterung 24 l - Ausdehnungsgefäß - Volumenstrommesser - Manometer - Regelung Lieferumfang: Inneneinheit AE LWPKM, Warmwasser, Speicher 190 L. für Monoblock-Wärmepumpe Montage- und Bedienungsanleitung Installation: Für die Installation dieses Gerätes ist ein 400V Starkstromanschluss (Drei-Phasen-Wechselanschluss) notwendig, die Montage (Wasser und Elektroinstallation) sowie die Erstinbetriebnahme und die Wartung dieses Gerätes dürfen nur von einer entsprechenden Fachkraft in Übereinstimmung mit den gültigen Vorschriften sowie entsprechend dieser Anweisung ausgeführt werden!

2.695,41 €*

Art.Nr.: 182881799

ca. 1-2 Wochen

Vaillant aroCOLLECT Luft-/Sole-Kollektor VWL 11 /4 SA 0010016715 f. flexoTHERM
VAILLANT Luft/Sole-Wärmetauscher aroCOLLECT VWL 11/4 SA Artikelnummer: 0010016715 Beschreibung: kombinierbar mit flexoTHERM und flexoCOMPACT sehr robust und sicher, entwickelt in Anlehnung an die Norm für Kinderspielplätze DIN EN 1176 geringes Transportgewicht besonders leiser Betrieb Wartungsfreundlich kein Sachkundenachweis nach ChemKlimaschutzV erforderlich Produktvorteile besonders leise Außeneinheit, da Kompressor in Inneneinheit keine Wärmeverluste außerhalb der Gebäudehülle Technische Daten: Netzspannung 3/N/PE 400 V/50 Hz Schutzart IP 25 Lufteintrittstemperatur -22/40 Grd.C Anschluss Solekreis-Vor-/Rücklauf R 1 1/4 Höhe/Breite/Tiefe 1260/1200/785 mm Gewicht (o. Verkleidung) 95 kg Gewicht betriebsbereit 185 kg Schallleistungspegel 45 dB(A) Abstand zur Inneneinheit max. 30 m Bestell-Nr. 0010016715 Lieferumfang: VAILLANT Luft/Sole-Wärmetauscher aroCOLLECT VWL 11/4 SA Montage und Bedienungsanleitung Installation: Für die Installation dieses Gerätes ist ein 400V Starkstromanschluss (Drei-Phasen-Wechselanschluss) notwendig, die Montage (Wasser und Elektroinstallation) sowie die Erstinbetriebnahme und die Wartung dieses Gerätes dürfen nur von einer entsprechenden Fachkraft in Übereinstimmung mit den gültigen Vorschriften sowie entsprechend dieser Anweisung ausgeführt werden!

2.765,36 €*

Art.Nr.: 183005630

ca. 1 Woche