Betriebsferien vom 22.12.2025 - 06.01.2026. Bestellungen werden erst ab dem 07.01.2026 ausgeliefert.

ETA Kombikessel TWIN 30/26 links Stückholzkessel SH-P und Pelletbrenner TWIN

Art.Nr.:
172688338
Herst.Nr.:
11130L-02
EAN: 9010360119015
Lieferzeit:

ca. 1 Woche

EEK Spektrum: A+++ -> G
EEK: a+
a+
a+++ g
Datenblatt
Versandkostenfrei

19.250,82 €*

inkl. 19% MwSt. zzgl. 0.00 € Versand

Produktinformationen "ETA Kombikessel TWIN 30/26 links Stückholzkessel SH-P und Pelletbrenner TWIN"

Set ETA TWIN 30/26 links bestehend aus SH-P und Brenner TWIN

Herstellerteilenummer: 11130L-02

Beschreibung:

Holzvergaser mit Pelletsbrenner für 1/2m Scheitholz, Patentierte, isolierte Glühzonen- Brennkammer, modulierende Feuerungsregelung, Lambdasonde für automatische Anpassung der Primär- u. Sekundärluft, drehzahlgeregelter Saugzugventilator, Schwelgasabsaugung über der Fülltüre, Wirbulatoren im Wärmetauscher mit Rütteleinrichtung für Reinigung, Entaschung zur Gänze von vorne. Automatische Umschaltung zwischen Scheitholz- und Pelletsbetrieb ohne Umbau, modulierende Feuerungsregelung, vom Holzvergaserkessel getrennte, heisse Pellets-Retorte aus Edelstahl mit bewegtem Drehrost und kontinuierlicher Entaschung, Pelletsföderung bis zu 20m Entfernung vom Lager zum Zwischenbehälter am Kessel mit Saugturbine, mit Dosierschnecke entlastete Zellenradschleuse zur Rückbrandsicherung, Heissluftzuendung, automatische Wärmetauschereinigung mittels Wirbulatoren, Vollentaschung des Pelletsbrenners und Komprimierung in einen abnehmbaren Aschebehaelter, lange Aschebox-Entleerintervalle. Geprüft BLT Wieselburg und TUEV Süd. Mikroprozessorregelung: Bedienung mit 7Zoll Touchscreen mit intuitiver Benutzerführung, 2 Mischerheizkreise mit Wochenprogramm (fuer 2. Mischerkreis Fühler 19026-01 erforderlich), Erweiterung mit Raumfühlern möglich. Speicherladung oder Frischwassermodul, Zirkulationspumpe, Puffermanagement, Solaranlage (Fühlerset 19027-01 erford. ), Eingang für externe Wärmeanforderung, potentialfreier Ausgang (Wechsler) fuer Störmeldung, LAN Schnittstelle für Internetanbindung. 3 Pufferfühler, 1 Aussen-, 1 Warmwasserspeicher- und 1 Vorlauffühler im Lieferumfang, Kessel steckerfertig vorverdrahtet.

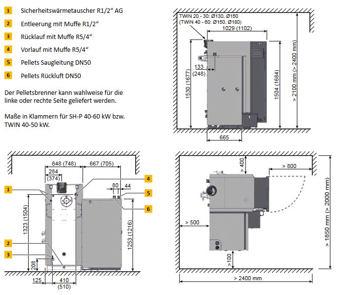
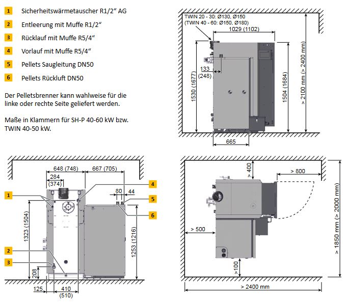
Technische Daten Holzvergaser:

  • Nennleistungsbereich (W20): 15,0-30,0kW
  • Kesseltemperatur einstellbar: 70-85 C
  • Kesselwirkungsgrad: Teil/Nenn 92,7/89,2%
  • Füllrauminhalt: 150 lt 1/2m-Scheite
  • Kesselabmessungen: BxTxH 650x1100x1504mm
  • Gesamtgewicht: 580kg
  • Abgasanschlussdurchmesser: 150mm
  • Mindestanschlusshöhe Kamin: 1720mm
  • Elektrische Leistungsaufnahme: 86W
  • Energieeffizienzindex: 119
  • Energieeffizienzklasse: A+
  • Stromanschluss: 1x230 V / 50 Hz / 3 A

Technische Daten Pelletsbrenner:

  • Nennleistungsbereich: 7,5-26,0kW
  • Kesselwirkungsgrad: Teil/Nenn 87,7/91,5%
  • Brennerabmessungen: BxTxH 667x665x1234mm
  • Gewicht: 150kg
  • Elektrische Leistungsaufnahme: 116W
  • Stromanschluss: 1x230V / 50Hz / 13A
  • ETA-Artikel-Nr.: 11130L-02

Lieferumfang:

  • Set ETA TWIN 30/26 links bestehend aus SH-P und Brenner TWIN
  • 3 Pufferfühler,1 Aussen-, 1 Warmwasserspeicher- und 1 Vorlauffühler
  • Betriebs- und Montageanleitung

>Installation:

  • Die Montage (Gas/Wasser) sowie die Erstinbetriebnahme und die Wartung dieses Gerätes dürfen nur von einem SHK-Anlagenmechaniker in Übereinstimmung mit den gültigen Vorschriften sowie entsprechend dieser Anweisung ausgeführt werden!
  • Eine Erstinbetriebnahme durch den Werkskundendienst kann über uns bezogen werden, wir helfen Ihnen gerne weiter.

Allg. Sicherheitshinweise:

Zur Vermeidung von Körper- und Gesundheitsschäden sind die Montage, Erstinbetriebnahme, Inspektion, Wartung und Instandsetzung von autorisierten Fachkräften (Heizungs- / Sanitärfachbetrieb / Vertragsinstallationsunternehmen) vorzunehmen!

Bestimmungsgemäße Verwendung: Bitte beachten Sie die bei Installation und Montage beiliegende Installations-, Betriebs- und Wartungsanleitungen sowie Produkt-/Systemzulassungen aller Anlagenkomponenten. Bei Wärmeerzeugern ist es zum Beispiel regelmäßig der Fall, dass allein für diese Heizung zugelassene Abgastechnik zur Verwendung gelangen darf. Zur bestimmungsgemäßen Verwendung gehört gleichsam die Einhaltung der ebenfalls in o.g. Unterlagen enthaltenen Inspektions- und Wartungsbedingungen.

Elektrische Heizgeräte sowie Durchlauferhitzer mit Starkstromanschluß (400V) dürfen nur durch jeweiligen Netzbetreiber oder durch ein in das Installateurverzeichnis des Netzbetreibers eingetragenes Installationsunternehmen installiert werden!

Elektrogeräte mit Drei-Phasen-Wechselstrom-Anschluss (3~/400V) und "nicht-steckerfertigen Geräten" sind von einem Fachbetrieb zu installieren. Geräte mit einer Nennleistung von mehr als 12 kW müssen vor der Erstinstallation eine Zustimmung vom Netzbetrieber erhalten.

Installation, Inspektion, Wartung und Instandsetzung von Gasgeräten sowie Gaseinstellungen darf nur ein Fachhandwerker durchführen!

Herstellerinformationen

ETA Heiztechnik GmbH
Gewerbepark 1
A-4716 Hofkirchen an der Trattnach
AT

Tel: +43 (0)7734 2288-0
E-Mail: info@eta.co.at
Art.Nr.:
172688338
Herst.Nr.:
11130L-02
EAN: 9010360119015
Lieferzeit:

ca. 1 Woche

EEK Spektrum: A+++ -> G
EEK: a+
a+
a+++ g
Datenblatt
Versandkostenfrei

19.250,82 €*

inkl. 19% MwSt. zzgl. 0.00 € Versand

Produktinformationen "ETA Kombikessel TWIN 30/26 links Stückholzkessel SH-P und Pelletbrenner TWIN"

Set ETA TWIN 30/26 links bestehend aus SH-P und Brenner TWIN

Herstellerteilenummer: 11130L-02

Beschreibung:

Holzvergaser mit Pelletsbrenner für 1/2m Scheitholz, Patentierte, isolierte Glühzonen- Brennkammer, modulierende Feuerungsregelung, Lambdasonde für automatische Anpassung der Primär- u. Sekundärluft, drehzahlgeregelter Saugzugventilator, Schwelgasabsaugung über der Fülltüre, Wirbulatoren im Wärmetauscher mit Rütteleinrichtung für Reinigung, Entaschung zur Gänze von vorne. Automatische Umschaltung zwischen Scheitholz- und Pelletsbetrieb ohne Umbau, modulierende Feuerungsregelung, vom Holzvergaserkessel getrennte, heisse Pellets-Retorte aus Edelstahl mit bewegtem Drehrost und kontinuierlicher Entaschung, Pelletsföderung bis zu 20m Entfernung vom Lager zum Zwischenbehälter am Kessel mit Saugturbine, mit Dosierschnecke entlastete Zellenradschleuse zur Rückbrandsicherung, Heissluftzuendung, automatische Wärmetauschereinigung mittels Wirbulatoren, Vollentaschung des Pelletsbrenners und Komprimierung in einen abnehmbaren Aschebehaelter, lange Aschebox-Entleerintervalle. Geprüft BLT Wieselburg und TUEV Süd. Mikroprozessorregelung: Bedienung mit 7Zoll Touchscreen mit intuitiver Benutzerführung, 2 Mischerheizkreise mit Wochenprogramm (fuer 2. Mischerkreis Fühler 19026-01 erforderlich), Erweiterung mit Raumfühlern möglich. Speicherladung oder Frischwassermodul, Zirkulationspumpe, Puffermanagement, Solaranlage (Fühlerset 19027-01 erford. ), Eingang für externe Wärmeanforderung, potentialfreier Ausgang (Wechsler) fuer Störmeldung, LAN Schnittstelle für Internetanbindung. 3 Pufferfühler, 1 Aussen-, 1 Warmwasserspeicher- und 1 Vorlauffühler im Lieferumfang, Kessel steckerfertig vorverdrahtet.

Technische Daten Holzvergaser:

  • Nennleistungsbereich (W20): 15,0-30,0kW
  • Kesseltemperatur einstellbar: 70-85 C
  • Kesselwirkungsgrad: Teil/Nenn 92,7/89,2%
  • Füllrauminhalt: 150 lt 1/2m-Scheite
  • Kesselabmessungen: BxTxH 650x1100x1504mm
  • Gesamtgewicht: 580kg
  • Abgasanschlussdurchmesser: 150mm
  • Mindestanschlusshöhe Kamin: 1720mm
  • Elektrische Leistungsaufnahme: 86W
  • Energieeffizienzindex: 119
  • Energieeffizienzklasse: A+
  • Stromanschluss: 1x230 V / 50 Hz / 3 A

Technische Daten Pelletsbrenner:

  • Nennleistungsbereich: 7,5-26,0kW
  • Kesselwirkungsgrad: Teil/Nenn 87,7/91,5%
  • Brennerabmessungen: BxTxH 667x665x1234mm
  • Gewicht: 150kg
  • Elektrische Leistungsaufnahme: 116W
  • Stromanschluss: 1x230V / 50Hz / 13A
  • ETA-Artikel-Nr.: 11130L-02

Lieferumfang:

  • Set ETA TWIN 30/26 links bestehend aus SH-P und Brenner TWIN
  • 3 Pufferfühler,1 Aussen-, 1 Warmwasserspeicher- und 1 Vorlauffühler
  • Betriebs- und Montageanleitung

>Installation:

  • Die Montage (Gas/Wasser) sowie die Erstinbetriebnahme und die Wartung dieses Gerätes dürfen nur von einem SHK-Anlagenmechaniker in Übereinstimmung mit den gültigen Vorschriften sowie entsprechend dieser Anweisung ausgeführt werden!
  • Eine Erstinbetriebnahme durch den Werkskundendienst kann über uns bezogen werden, wir helfen Ihnen gerne weiter.

Allg. Sicherheitshinweise:

Zur Vermeidung von Körper- und Gesundheitsschäden sind die Montage, Erstinbetriebnahme, Inspektion, Wartung und Instandsetzung von autorisierten Fachkräften (Heizungs- / Sanitärfachbetrieb / Vertragsinstallationsunternehmen) vorzunehmen!

Bestimmungsgemäße Verwendung: Bitte beachten Sie die bei Installation und Montage beiliegende Installations-, Betriebs- und Wartungsanleitungen sowie Produkt-/Systemzulassungen aller Anlagenkomponenten. Bei Wärmeerzeugern ist es zum Beispiel regelmäßig der Fall, dass allein für diese Heizung zugelassene Abgastechnik zur Verwendung gelangen darf. Zur bestimmungsgemäßen Verwendung gehört gleichsam die Einhaltung der ebenfalls in o.g. Unterlagen enthaltenen Inspektions- und Wartungsbedingungen.

Elektrische Heizgeräte sowie Durchlauferhitzer mit Starkstromanschluß (400V) dürfen nur durch jeweiligen Netzbetreiber oder durch ein in das Installateurverzeichnis des Netzbetreibers eingetragenes Installationsunternehmen installiert werden!

Elektrogeräte mit Drei-Phasen-Wechselstrom-Anschluss (3~/400V) und "nicht-steckerfertigen Geräten" sind von einem Fachbetrieb zu installieren. Geräte mit einer Nennleistung von mehr als 12 kW müssen vor der Erstinstallation eine Zustimmung vom Netzbetrieber erhalten.

Installation, Inspektion, Wartung und Instandsetzung von Gasgeräten sowie Gaseinstellungen darf nur ein Fachhandwerker durchführen!

Herstellerinformationen

ETA Heiztechnik GmbH
Gewerbepark 1
A-4716 Hofkirchen an der Trattnach
AT

Tel: +43 (0)7734 2288-0
E-Mail: info@eta.co.at

Ähnliche Artikel

Atmos robuste Spannschelle für 50 mm Saugschlauch 02.06.30
Atmos Spannschelle für Saugschlauch Artikelnummer: 02.06.30 Anwendung: Spannschelle für Saugschlauch, robuste und massive Ausführung, passend für 50 mm Saugschlauch Lieferumfang: Spannschelle

10,15 €*

Art.Nr.: 182198100

ca. 2-4 Werktage (Mo-Fr.)

ETA Verlängerungsbogen 45° verzinkt für Befüllsystem ETAbox 12312
ETA Verlängerungsbogen 45°,verzinkt für Befüllsystem ETAbox Herstellernummer: 12312 Beschreibung: Verlängerungsbogen 45 verz. für Sacksilo NW100 beiderseits Bördelrand mit beidseitigem Boerdelrand, je Ver- laengerungsstueck ist ein Spannring NW100 erforderlich. Lieferumfang ETA Verlängerungsbogen

23,46 €*

Art.Nr.: 182143931

ca. 2-4 Werktage (Mo-Fr.)

ETA Spannring mit Schnellverschluß zur Verlängerung/Bogen für Befüllsystem NW100
ETA Spannring mit Schnellverschluß zur Verlängerung/Bogen für Befüllsystem NW100 Herstellernummer: 12313-01 Beschreibung: Spannring NW100 zu Verlängerung/Bogen Sacksilo mit NR/SBR Dichtung - elektr. leitfähig, mit Schnellverschluss Lieferumfang ETA Spannring mit Schnellverschluß

24,05 €*

Art.Nr.: 182143753

ca. 2-4 Werktage (Mo-Fr.)

ETA Abgasfühler SH20-60 für 4-Zeilen Regelung Stecker geschraubt 001-4910-00
ETA Abgasfühler SH20-60 für 4-Zeilen Regelung Herstellernummer: 001-4910-00 Beschreibung: Abgasfühler 1,9m SH20-60 für 4-Zeilen Regelung, Stecker geschraubt Lieferumfang ETA Abgasfühler

27,26 €*

Art.Nr.: 182143831

ca. 2-4 Werktage (Mo-Fr.)

Atmos 1 Meter Rückbrandschlauch H0066 Fallschlauch Pelletkessel P Pelletbrenner
Atmos Pellet Fallschlauch H0066 Länge 1,0 m Beschreibung: Pellet Fallschlauch für ATMOS Pelletkessel zwischen Brenner und Förderschnecke. Technische Daten: Länge: 1,0 m (auch in 2 oder 3 Meter möglich) Innendurchmesser: 65 mm Herstellernummer: H0066 Passend für die Kessel P14, P21, P25, P31, P15, P20, P30, P40, D15P, D20P, D30P Kombikessel DC 18SP, DC 25SP, DC 32SP, DC 25GSP und DC 30GSP Lieferumfang: Atmos Fallschlauch H0066

31,64 €*

Art.Nr.: 141481584

ca. 2-4 Werktage (Mo-Fr.)

Sold Out
ETA Abgasfühler für 4-Zeilen Regelung für PE 7 - 25 und Hack BG 1+4
ETA Abgasfühler für 4-Zeilen Regelung für PE 7 - 25 und Hack BG 1+4 Herstellernummer: 032-4910-00 Beschreibung: Abgasfühler 1,9m für PE 7 - 25 und Hack BG 1-4 für 4-Zeilen Regelung, mit Mini-Fit-Stecker Lieferumfang ETA Abgasfühler

31,81 €*

Art.Nr.: 182143806

ca. 2-4 Werktage (Mo-Fr.)

ETA Verlängerungsrohr NW 100 L=500 mm verzinkt für Befüllsystem ETAbox
ETA Verlängerungsrohr NW 100 L=500 mm verzinkt für Befüllsystem ETAbox Herstellernummer: 12310 Beschreibung: Verlängerungsrohr verz. f. Sacksilo NW100 L= 500mm beiderseits Bördelrand mit beidseitigem Boerdelrand, je Ver- laengerungsstueck ist ein Spannring NW100 erforderlich. Lieferumfang ETA Verlängerungsrohr

35,72 €*

Art.Nr.: 182143924

ca. 2-4 Werktage (Mo-Fr.)

ETA Schlauchklemme für Pelletsförderschlauch NW 51 (2 Stück)
ETA Schlauchklemme für Pelletsförderschlauch NW 51 (2 Stück) Herstellernummer: 12257 Beschreibung: Klemmen-Set für Saugschlauch ab 60 kW, NW 59-65 bestehend aus 2 Stk. Schlauchklemmen NW 59-65 Lieferumfang Schlauchklemme (2 Stück)

Inhalt: 2 Stk (22,91 €* / 1 Stk)

45,82 €*

Art.Nr.: 182192481

ca. 2-4 Werktage (Mo-Fr.)

Fröling Pufferspeichermanagement 2 Tauchfühler mit 5 m Kabel ohne Tauchhülsen
Fröling Pufferspeichermanagement 2 Tauchfühler mit 5 m Kabel ohne Tauchhülsen Herstellerteilenummer: 18640A Beschreibung: Fühlerset zur Erfassung der Pufferspeichertemperaturen. Anschluss in Kesselregelung von Fröling Holzvergaser und Pelletskesseln Lieferumfang: 2 Tauchfühler mit 5 m Kabel ohne Tauchhülsen

89,08 €*

Art.Nr.: 170662555

ca. 2-4 Werktage (Mo-Fr.)

Thermische Ablaufsicherung ETA Tauchhülse R 1/2" x 145 mm Anschluss DN 20 (3/4")
Thermische Ablaufsicherung ETA Tauchhülse R 1/2" x 145 mm Anschluss DN 20 (3/4") Herstellernummer: 19060-01 Verwendung in den Kesseln: Thermische Ablaufsicherung Anschluss 3/4" 10bar, kv=1,8m/h 2000mm Kapillare Tauchhülse R1/2"x145mm für Notkühlung des Kessels über Kesselsicherheitswärmetauscher oder als thermisches Sprinklerventil für den Fallschacht (SLE).

101,90 €*

Art.Nr.: 182167644

ca. 2-4 Werktage (Mo-Fr.)

ETA Thermische Ablaufsicherung Tauchhülse R 1/2" x 145 mm Anschluss DN 20 (3/4")
ETA Thermische Ablaufsicherung Tauchhülse R 1/2" x 145 mm Anschluss DN 20 (3/4") Herstellernummer: 19060-01 Beschreibung: ETA thermische Ablaufsicherung Anschluss DN 20 (3/4") Betriebsdruck: 10 bar kv=1,8m/h 2000mm Kapillare mit Tauchhülse R1/2" x 145mm Fuer Notkuehlung des Kessels ueberKesselsicherheitswaermetauscher oder als thermisches Sprinklerventil fuer den Fallschacht (SLE) Lieferumfang ETA Thermische Ablaufsicherung

104,84 €*

Art.Nr.: 182143787

ca. 2-4 Werktage (Mo-Fr.)

Sold Out
Atmos Nachfüllautomatik zur Ansteuerung Förderschnecke indirekte Raumaustragung
Nachfüllautomatik - Box zur Ansteuerung der Förderschnecke Artikelnummer: 01.30.51 Beschreibung: Ein kapazitiver Sensor erkennt das Unterschreiten des Pelletfüllstandes im Zwischensilo und lässt für eine definierte Zeit die Austragungsschnecke arbeiten, um so das Silo wieder zu füllen, aus dem die Dosierförderschnecke des Kessels die Pellets entnimmt Technische Daten: staubunempfindlicher kapazitiver Sensor Laufzeit von 1s bis 40h einstellbar Lieferumfang: Nachfüllautomatik - Box zur Ansteuerung der Förderschnecke Montage- und Betriebsanleitung

118,83 €*

Art.Nr.: 183297169

ca. 1-2 Wochen