Betriebsferien vom 23.12.2023 - 02.01.2024. Bestellungen werden erst ab dem 03.01.2024 ausgeliefert.
Zur Startseite wechseln

Remeha Elga Ace 6 kW Split Luft Wasser Wärmepumpe IDU + ODU 6 kW 7755639

Art.Nr.:
179073180
Herst.Nr.:
7755639
EAN: 8713809330378
Lieferzeit:

ca. 1 Woche

EEK Spektrum: A+++ -> D
EEK: a++
a++
a+++ d
Datenblatt
Versandkostenfrei

5.877,76 €*

inkl. 19% MwSt. zzgl. 0.00 € Versand

Produktinformationen "Remeha Elga Ace 6 kW Split Luft Wasser Wärmepumpe IDU + ODU 6 kW 7755639"

Luft/Wasser Wärmepumpe Remeha Elga Ace Split IDU + ODU 6 kW

Herstellerteilenummer: 7755639

 

Beschreibung:

Remeha Split Wärmepumpe 6 kW Bestehend aus Außeneinheit und Inneneinheit. Zwingend erforderlich: Nachheizung über einen bestehenden - oder neuen Zusatzheizkessel. Inneneinheit: Die Inneneineit ist mit dem neuen Schaltfeld Typ MK2.1 ausgestattet. Die witterungsgeführte Regelung besitzt einen großen Bildschirm, über den sämtliche Inbetriebnahmefunktionen mittels großen Symbolen dargestellt werden. Fehlermeldungen sind über über eine Parametersuchfunktion einfach zu identifizieren. Zusätzlich bietet das Schaltfeld über Bluetooth die Möglich- keit, über ein Smartphone Einstellungen vorzunehmen. Das MK2.1 kann einen direkten Heiz- kreis und die WW-Beladung steuern. Die Inneneinheit besteht aus einem automatischen Schnellentlüfter, einem hydraulischem Verteiler, einer Umwälz- pumpe für den Heizkreis, einen Durchflussmesser mit integriertem Vorlauftemperaturfühler für den Wärmepumpenkreis, einen Druckwächter und dem Plattenwärmetauscher. Funktionsbeschreibung: Die im Außenmodul produziere Wärme oder Kälte wird mit dem Kältemittel zum Plattenwärmetauscher geführt. Das Innenmodul sorgt dafür, dass die Temperatur des Heizungswassers auf die Bedürfnisse der Räumlichkeiten eingestellt werden können.

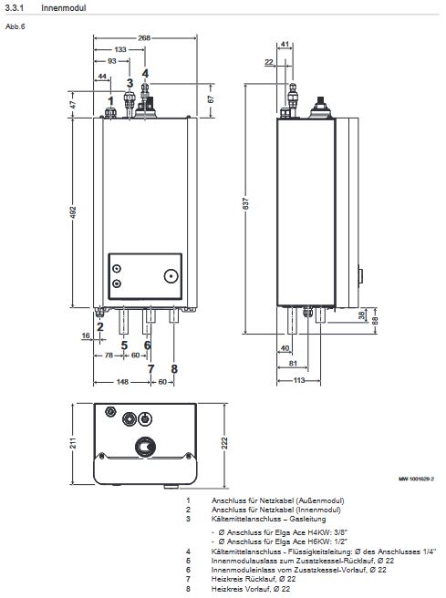
Technische Daten Inneneinheit IDU:

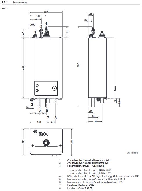
  • Abmessungen (B x T x H): 268 x 211 x 492 mm
  • Heizkreis RL: DN 22mm
  • Heizkreis VL: DN 22mm RL - Zusatzheizkessel: DN 22mm VL - Zusatzheizkessel: DN 22mm WP -
  • Gasanschluss: 1/2 WP - Flüssigkeitsanschluss: 1/4
  • Schallleistung: 37 dB(A)
  • Gewicht: 17 kg
  • Elektroanschluss einphasig Außeneinheit:
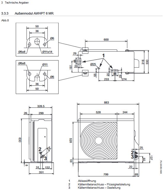
  • Typ: AWHPT 6 MR
  • Wärmeleistung bei A2/W35: 4,43 kW
  • Leistungsgeregelter Inverter Verdichter Bedarfsabhängige und energieeffiziente Kreislaufumkehrabtauung.

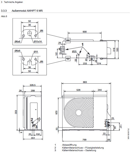
Technische Daten Außeneinheit ODU:

  • Abmessungen (HxBxT): 630x799x351 mm
  • Gewicht: 45 kg
  • Stromversorgung: 230 V / 50 Hz
  • Leistung A7/W35: 6,14 kW COP A7/W35: 4,54
  • Leistungsaufnahme A7/W35: 1,35 kW
  • Leistung A2/W35: 4,43 kW COP A2/W35: 3,44
  • Leistungsaufnahme A2/W35: 1,29 kW
  • Max. Vorlauftemp.: 55 C
  • Min. Vorlauftemp.: 17 C
  • Schallleistungspegel: 57 dB(A)
  • Kältemittel: R32
  • Füllmenge Kältemittel: 0,98 kg
  • Arbeitsbereich: -15 C bis 45 C

Lieferumfang:

  • Remeha Elga Ace Split IDU + ODU, 6 kW 7755639 Artikelnummer: Remeha-7755639
  • Montage- und Bedienungsanleitung/li>

IInstallation:

  • Hinweis: Kältetechnische Installationen von Split-Luft/Wasser-Wärmepumpen dürfen laut Gesetzgeber nur durch zertifizierte Personen mit entsprechendem Sachkundenachweis gemäß Chemikalien-Klimaschutzverordnung in der Fassung vom 02.07.2008 durchgeführt werden.
WEEE-Reg.-Nr.: DE 97432433

Allg. Sicherheitshinweise:

Zur Vermeidung von Körper- und Gesundheitsschäden sind die Montage, Erstinbetriebnahme, Inspektion, Wartung und Instandsetzung von autorisierten Fachkräften (Heizungs- / Sanitärfachbetrieb / Vertragsinstallationsunternehmen) vorzunehmen!

Bestimmungsgemäße Verwendung: Bitte beachten Sie die bei Installation und Montage beiliegende Installations-, Betriebs- und Wartungsanleitungen sowie Produkt-/Systemzulassungen aller Anlagenkomponenten. Bei Wärmeerzeugern ist es zum Beispiel regelmäßig der Fall, dass allein für diese Heizung zugelassene Abgastechnik zur Verwendung gelangen darf. Zur bestimmungsgemäßen Verwendung gehört gleichsam die Einhaltung der ebenfalls in o.g. Unterlagen enthaltenen Inspektions- und Wartungsbedingungen.

Elektrische Heizgeräte sowie Durchlauferhitzer mit Starkstromanschluß (400V) dürfen nur durch jeweiligen Netzbetreiber oder durch ein in das Installateurverzeichnis des Netzbetreibers eingetragenes Installationsunternehmen installiert werden!

Elektrogeräte mit Drei-Phasen-Wechselstrom-Anschluss (3~/400V) und "nicht-steckerfertigen Geräten" sind von einem Fachbetrieb zu installieren. Geräte mit einer Nennleistung von mehr als 12 kW müssen vor der Erstinstallation eine Zustimmung vom Netzbetrieber erhalten.

Installation, Inspektion, Wartung und Instandsetzung von Gasgeräten sowie Gaseinstellungen darf nur ein Fachhandwerker durchführen!

Herstellerinformationen

Remeha GmbH
Rheiner Str. 151
48282 Emsdetten
Nordrhein-Westfalen, DE

Tel: 02572 / 9161-0
E-Mail: info@remeha.de
Web: www.remeha.de
Art.Nr.:
179073180
Herst.Nr.:
7755639
EAN: 8713809330378
Lieferzeit:

ca. 1 Woche

EEK Spektrum: A+++ -> D
EEK: a++
a++
a+++ d
Datenblatt
Versandkostenfrei

5.877,76 €*

inkl. 19% MwSt. zzgl. 0.00 € Versand

Produktinformationen "Remeha Elga Ace 6 kW Split Luft Wasser Wärmepumpe IDU + ODU 6 kW 7755639"

Luft/Wasser Wärmepumpe Remeha Elga Ace Split IDU + ODU 6 kW

Herstellerteilenummer: 7755639

 

Beschreibung:

Remeha Split Wärmepumpe 6 kW Bestehend aus Außeneinheit und Inneneinheit. Zwingend erforderlich: Nachheizung über einen bestehenden - oder neuen Zusatzheizkessel. Inneneinheit: Die Inneneineit ist mit dem neuen Schaltfeld Typ MK2.1 ausgestattet. Die witterungsgeführte Regelung besitzt einen großen Bildschirm, über den sämtliche Inbetriebnahmefunktionen mittels großen Symbolen dargestellt werden. Fehlermeldungen sind über über eine Parametersuchfunktion einfach zu identifizieren. Zusätzlich bietet das Schaltfeld über Bluetooth die Möglich- keit, über ein Smartphone Einstellungen vorzunehmen. Das MK2.1 kann einen direkten Heiz- kreis und die WW-Beladung steuern. Die Inneneinheit besteht aus einem automatischen Schnellentlüfter, einem hydraulischem Verteiler, einer Umwälz- pumpe für den Heizkreis, einen Durchflussmesser mit integriertem Vorlauftemperaturfühler für den Wärmepumpenkreis, einen Druckwächter und dem Plattenwärmetauscher. Funktionsbeschreibung: Die im Außenmodul produziere Wärme oder Kälte wird mit dem Kältemittel zum Plattenwärmetauscher geführt. Das Innenmodul sorgt dafür, dass die Temperatur des Heizungswassers auf die Bedürfnisse der Räumlichkeiten eingestellt werden können.

Technische Daten Inneneinheit IDU:

  • Abmessungen (B x T x H): 268 x 211 x 492 mm
  • Heizkreis RL: DN 22mm
  • Heizkreis VL: DN 22mm RL - Zusatzheizkessel: DN 22mm VL - Zusatzheizkessel: DN 22mm WP -
  • Gasanschluss: 1/2 WP - Flüssigkeitsanschluss: 1/4
  • Schallleistung: 37 dB(A)
  • Gewicht: 17 kg
  • Elektroanschluss einphasig Außeneinheit:
  • Typ: AWHPT 6 MR
  • Wärmeleistung bei A2/W35: 4,43 kW
  • Leistungsgeregelter Inverter Verdichter Bedarfsabhängige und energieeffiziente Kreislaufumkehrabtauung.

Technische Daten Außeneinheit ODU:

  • Abmessungen (HxBxT): 630x799x351 mm
  • Gewicht: 45 kg
  • Stromversorgung: 230 V / 50 Hz
  • Leistung A7/W35: 6,14 kW COP A7/W35: 4,54
  • Leistungsaufnahme A7/W35: 1,35 kW
  • Leistung A2/W35: 4,43 kW COP A2/W35: 3,44
  • Leistungsaufnahme A2/W35: 1,29 kW
  • Max. Vorlauftemp.: 55 C
  • Min. Vorlauftemp.: 17 C
  • Schallleistungspegel: 57 dB(A)
  • Kältemittel: R32
  • Füllmenge Kältemittel: 0,98 kg
  • Arbeitsbereich: -15 C bis 45 C

Lieferumfang:

  • Remeha Elga Ace Split IDU + ODU, 6 kW 7755639 Artikelnummer: Remeha-7755639
  • Montage- und Bedienungsanleitung/li>

IInstallation:

  • Hinweis: Kältetechnische Installationen von Split-Luft/Wasser-Wärmepumpen dürfen laut Gesetzgeber nur durch zertifizierte Personen mit entsprechendem Sachkundenachweis gemäß Chemikalien-Klimaschutzverordnung in der Fassung vom 02.07.2008 durchgeführt werden.
WEEE-Reg.-Nr.: DE 97432433

Allg. Sicherheitshinweise:

Zur Vermeidung von Körper- und Gesundheitsschäden sind die Montage, Erstinbetriebnahme, Inspektion, Wartung und Instandsetzung von autorisierten Fachkräften (Heizungs- / Sanitärfachbetrieb / Vertragsinstallationsunternehmen) vorzunehmen!

Bestimmungsgemäße Verwendung: Bitte beachten Sie die bei Installation und Montage beiliegende Installations-, Betriebs- und Wartungsanleitungen sowie Produkt-/Systemzulassungen aller Anlagenkomponenten. Bei Wärmeerzeugern ist es zum Beispiel regelmäßig der Fall, dass allein für diese Heizung zugelassene Abgastechnik zur Verwendung gelangen darf. Zur bestimmungsgemäßen Verwendung gehört gleichsam die Einhaltung der ebenfalls in o.g. Unterlagen enthaltenen Inspektions- und Wartungsbedingungen.

Elektrische Heizgeräte sowie Durchlauferhitzer mit Starkstromanschluß (400V) dürfen nur durch jeweiligen Netzbetreiber oder durch ein in das Installateurverzeichnis des Netzbetreibers eingetragenes Installationsunternehmen installiert werden!

Elektrogeräte mit Drei-Phasen-Wechselstrom-Anschluss (3~/400V) und "nicht-steckerfertigen Geräten" sind von einem Fachbetrieb zu installieren. Geräte mit einer Nennleistung von mehr als 12 kW müssen vor der Erstinstallation eine Zustimmung vom Netzbetrieber erhalten.

Installation, Inspektion, Wartung und Instandsetzung von Gasgeräten sowie Gaseinstellungen darf nur ein Fachhandwerker durchführen!

Herstellerinformationen

Remeha GmbH
Rheiner Str. 151
48282 Emsdetten
Nordrhein-Westfalen, DE

Tel: 02572 / 9161-0
E-Mail: info@remeha.de
Web: www.remeha.de