Betriebsferien vom 22.12.2025 - 06.01.2026. Bestellungen werden erst ab dem 07.01.2026 ausgeliefert.

Viessmann Öl Brennwertkessel Vitoladens 300-C 28,9 kW J3RB Ölbrenner moduierend

Art.Nr.:
134187324
Herst.Nr.:
Z021962, ZK05968
EAN: 7426984918415
Lieferzeit:

ca. 1 Woche

EEK Spektrum: A+++ -> D
EEK: a
a
a+++ d
Datenblatt
Versandkostenfrei

7.098,23 €*

inkl. 19% MwSt. zzgl. 0.00 € Versand

Produktinformationen "Viessmann Öl Brennwertkessel Vitoladens 300-C 28,9 kW J3RB Ölbrenner moduierend"

Vitoladens 300-C 28,9 kW Heizöl Compact-Blaubrenner, modul. Vitotronic 200 KW6B witterungsgeführt vitographite bodenstehend raumluftabh. u. raumluftunabh.

Herstellerteilenummer: Z021962 + ZK05968

Beschreibung:

 Heizkessel nach EN 303 (304) mit zul. Betriebstemperaturen bis 100 °C. Mit CE-Kennzeichnung gemäß bestehender EG-Richtlinien. Für geschlossene Heizungsanlagen mit zul. Absicherungstemperaturen bis 110 °C nach EN 12828. Biferrale Verbundheizfläche aus Guss und Stahl mit direkt angeschlossenem Inox-Radial-Edelstahlwärmetauscher. Für den Betrieb mit gleitend abgesenkter Kesselwassertemperatur ohne untere Temperaturbegrenzung. Mit modulierendem schadstoffarmem Compact-Blaubrenner mit mikroprozessor-drehzahlgeregeltem Gleichstromgebläse und integriertem Abgas-Schalldämpfer. Zur Verbrennung von Heizöl EL schwefelarm nach DIN 51603-1 und Heizöl DIN SPEC 51603-6-EL A Bio 20: Heizöl schwefelarm mit Zumischungen bis 20 % Biokomponenten (FAME) und paraffinische Heizöle nach DIN SPEC 51603-8 bis 100 %. Für raumluftab- oder raumluftunabhängigen Betrieb. Heizkessel ist allseitig wärmegedämmt durch eine hochwirksame Verbund-Wärmedämmung. Sicherheitsgruppe mit Sicherheitsventil, Manometer und automatischem Entlüfter im Lieferumfang.

Mit witterungsgeführter Kessel- und Heizkreisregelung Vitotronic 200 (Typ KW6B) für den Betrieb mit gleitend abgesenkter Kesselwassertemperatur. Für Heizungsanlagen mit einem direkt angeschlossenen Heizkreis (ohne Mischer) und/oder in Verbindung mit je einem Erweiterungssatz für einen oder zwei Heizkreis(e) mit Mischer. Zeiträume für die Heizkreise, Trinkwassererwärmung und Zirkulationspumpe getrennt einstellbar. Einfache Inbetriebnahme durch Plug and Work-Funktion, Automatikfunktion für die Anpassung der Zeitprogramme für die Trinkwassererwärmung und Zirkulationspumpe. Mit Speichertemperaturregelung, automatischer Sommer-/Winterzeitumschaltung, integriertem Diagnosesystem, Wartungsmeldung und kontrollierter Estrichtrocknung. Mit Außen- und Speichertemperatursensor. Kesseltemperatursensor ist im Heizkessel eingebaut. Externe Geräte werden über Rast 5-Systemstecker angeschlossen. Die Vitotronic 200 enthält: Anlagenschalter, elektronischen Maximaltemperaturbegrenzer, Temperaturwächter und Temperaturbegrenzer, Betriebs- und Störungsanzeige, Optolink-Laptop-Schnittstelle und herausnehmbares Bedienteil, Einstellungen für Betriebsarten, Party- und Sparbetrieb, Ferienprogramm, Schornsteinfegerprüfung, bedarfsabhängige Heizkreispumpen- und Brennerabschaltung sowie Sommersparschaltung und variable Heizgrenze. Möglichkeit zur Einstellung für Raumtemperatur und Trinkwassertemperatur und Abfrage von Temperaturen. Einfache Bedienung mittels grafischem Display mit Klartextunterstützung, großer Schrift und kontrastreicher schwarz/weiß-Darstellung sowie kontextbezogener Hilfe. Fernbedienung wahlweise über ViCare oder ViGuide in Verbindung mit Vitoconnect (Zubehör) und bauseitigem Internetzugang möglich.

Vorteile des Vitoladens 300-C:

  • Beste Energieausnutzung bei minimalen Abmessungen
  • Biferrale Verbundheizfläche mit direkt angeschlossenem Inox- Radial-Wärmetauscher aus Edelstahl
  • Modulierender Compact-Blaubrenner für raumluftabhängige und raumluftunabhängige Betriebsweise
  • Leise Betriebsweise durch integrierten Schalldämpfer
  • Einfach zu bedienende Vitotronic Regelung mit Klartext- und Grafikanzeige
  • Alle handelsüblichen schwefelarmen Heizöle EL verwendbar. Auch für Heizöl DIN SPEC 51603-6-EL A Bio 20: Heizöl EL schwefelarm mit Zumischungen bis 20 % Biokomponenten (FAME) und paraffinische Heizöle (z. B. HVO oder PTL) nach DIN TS 51603-8 bis 100 %
  • Sicherheitsgruppe, Ölfilter, Siphon und Schmutzabscheider im Lieferumfang
  • Vereinfachte Einbringung und erweitertes Transportzubehör
  • Internetfähig durch Vitoconnect (Zubehör) für Bedienung und Service über Viessmann Apps

Technische Daten:

  • Farbe Vitographite
  • Brennervarianten Compact-Blaubrenner, modulierend
  • Nenn-Wärmeleistung 50/30 °C 12,9 - 28,9 kW
  • Nenn-Wärmeleistung 80/60 °C 12,0 - 27 kW
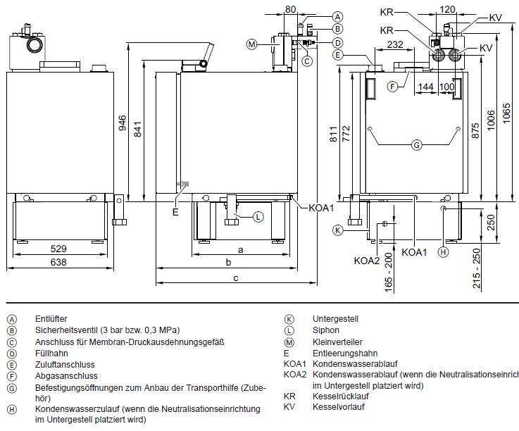
  • Länge 1.092 mm
  • Breite 638 mm
  • Höhe 1.120 mm
  • Gesamtgewicht 198 kg
  • Inhalt Kesselwasser 42,5 l
  • Zul. Betriebsdruck 3 bar
  • Abgasanschluss 80 mm
  • Zuluftanschluss 125 mm
  • Jahreszeitbedingte Raumheizungs-Energieeffizienz (Eta s) 96 %
  • Technische Daten zur Bestimmung der Energieeffizienzklasse (ErP-Label) Heizkessel
  • Jahreszeitbedingte Raumheizungs-Energieeffizienzklasse A
  • Nenn-Wärmeleistung 27 kW
  • Jahreszeitbedingte Raumheizungs-Energieeffizienz 93 % J
  • ährlicher Energieverbrauch 23828 kWh
  • Schall-Leistungspegel 60 dB
  • Temperaturregler Temperaturregler Klasse II
  • Beitrag Raumheizungs-Energieeffizienz 2 %
  • Energieeffizienz Verbund (Heizung) 96 %
  • Energieeffizienzklasse Verbund (Heizung) A

Lieferumfang:

  • Kesselkörper mit Wärmedämmung
  • Compact-Blaubrenner
  • Regelung für witterungsgeführten Betrieb
  • Sicherheitsarmaturen im heizwasserseitigen Verteilergehäuse
  • Anschlussfertig verrohrt und verdrahtet
  • Integrierter Abgas-Schalldämpfer
  • Kesselanschluss-Stück
  • Siphon mit Schmutzabscheider für Kondenswasserablauf
  • Reinigungsbürste
  • Automatischer Heizölentlüfter für Einstrangsystem und Ölfilter mit 5 μm Filtereinheit
  • Verschraubungs-Set Heizölentlüfter, für tankseitigen Anschluss Ø 6 mm
  • Untergestell
WEEE-Reg.-Nr.: DE 58723830

Allg. Sicherheitshinweise:

Zur Vermeidung von Körper- und Gesundheitsschäden sind die Montage, Erstinbetriebnahme, Inspektion, Wartung und Instandsetzung von autorisierten Fachkräften (Heizungs- / Sanitärfachbetrieb / Vertragsinstallationsunternehmen) vorzunehmen!

Bestimmungsgemäße Verwendung: Bitte beachten Sie die bei Installation und Montage beiliegende Installations-, Betriebs- und Wartungsanleitungen sowie Produkt-/Systemzulassungen aller Anlagenkomponenten. Bei Wärmeerzeugern ist es zum Beispiel regelmäßig der Fall, dass allein für diese Heizung zugelassene Abgastechnik zur Verwendung gelangen darf. Zur bestimmungsgemäßen Verwendung gehört gleichsam die Einhaltung der ebenfalls in o.g. Unterlagen enthaltenen Inspektions- und Wartungsbedingungen.

Elektrische Heizgeräte sowie Durchlauferhitzer mit Starkstromanschluß (400V) dürfen nur durch jeweiligen Netzbetreiber oder durch ein in das Installateurverzeichnis des Netzbetreibers eingetragenes Installationsunternehmen installiert werden!

Elektrogeräte mit Drei-Phasen-Wechselstrom-Anschluss (3~/400V) und "nicht-steckerfertigen Geräten" sind von einem Fachbetrieb zu installieren. Geräte mit einer Nennleistung von mehr als 12 kW müssen vor der Erstinstallation eine Zustimmung vom Netzbetrieber erhalten.

Installation, Inspektion, Wartung und Instandsetzung von Gasgeräten sowie Gaseinstellungen darf nur ein Fachhandwerker durchführen!

Herstellerinformationen

Viessmann Climate Solutions SE
Viessmannstraße 1
35108 Allendorf (Eder)
DE

Tel: 06452 70-0
E-Mail: info@viessmann.com
Art.Nr.:
134187324
Herst.Nr.:
Z021962, ZK05968
EAN: 7426984918415
Lieferzeit:

ca. 1 Woche

EEK Spektrum: A+++ -> D
EEK: a
a
a+++ d
Datenblatt
Versandkostenfrei

7.098,23 €*

inkl. 19% MwSt. zzgl. 0.00 € Versand

Produktinformationen "Viessmann Öl Brennwertkessel Vitoladens 300-C 28,9 kW J3RB Ölbrenner moduierend"

Vitoladens 300-C 28,9 kW Heizöl Compact-Blaubrenner, modul. Vitotronic 200 KW6B witterungsgeführt vitographite bodenstehend raumluftabh. u. raumluftunabh.

Herstellerteilenummer: Z021962 + ZK05968

Beschreibung:

 Heizkessel nach EN 303 (304) mit zul. Betriebstemperaturen bis 100 °C. Mit CE-Kennzeichnung gemäß bestehender EG-Richtlinien. Für geschlossene Heizungsanlagen mit zul. Absicherungstemperaturen bis 110 °C nach EN 12828. Biferrale Verbundheizfläche aus Guss und Stahl mit direkt angeschlossenem Inox-Radial-Edelstahlwärmetauscher. Für den Betrieb mit gleitend abgesenkter Kesselwassertemperatur ohne untere Temperaturbegrenzung. Mit modulierendem schadstoffarmem Compact-Blaubrenner mit mikroprozessor-drehzahlgeregeltem Gleichstromgebläse und integriertem Abgas-Schalldämpfer. Zur Verbrennung von Heizöl EL schwefelarm nach DIN 51603-1 und Heizöl DIN SPEC 51603-6-EL A Bio 20: Heizöl schwefelarm mit Zumischungen bis 20 % Biokomponenten (FAME) und paraffinische Heizöle nach DIN SPEC 51603-8 bis 100 %. Für raumluftab- oder raumluftunabhängigen Betrieb. Heizkessel ist allseitig wärmegedämmt durch eine hochwirksame Verbund-Wärmedämmung. Sicherheitsgruppe mit Sicherheitsventil, Manometer und automatischem Entlüfter im Lieferumfang.

Mit witterungsgeführter Kessel- und Heizkreisregelung Vitotronic 200 (Typ KW6B) für den Betrieb mit gleitend abgesenkter Kesselwassertemperatur. Für Heizungsanlagen mit einem direkt angeschlossenen Heizkreis (ohne Mischer) und/oder in Verbindung mit je einem Erweiterungssatz für einen oder zwei Heizkreis(e) mit Mischer. Zeiträume für die Heizkreise, Trinkwassererwärmung und Zirkulationspumpe getrennt einstellbar. Einfache Inbetriebnahme durch Plug and Work-Funktion, Automatikfunktion für die Anpassung der Zeitprogramme für die Trinkwassererwärmung und Zirkulationspumpe. Mit Speichertemperaturregelung, automatischer Sommer-/Winterzeitumschaltung, integriertem Diagnosesystem, Wartungsmeldung und kontrollierter Estrichtrocknung. Mit Außen- und Speichertemperatursensor. Kesseltemperatursensor ist im Heizkessel eingebaut. Externe Geräte werden über Rast 5-Systemstecker angeschlossen. Die Vitotronic 200 enthält: Anlagenschalter, elektronischen Maximaltemperaturbegrenzer, Temperaturwächter und Temperaturbegrenzer, Betriebs- und Störungsanzeige, Optolink-Laptop-Schnittstelle und herausnehmbares Bedienteil, Einstellungen für Betriebsarten, Party- und Sparbetrieb, Ferienprogramm, Schornsteinfegerprüfung, bedarfsabhängige Heizkreispumpen- und Brennerabschaltung sowie Sommersparschaltung und variable Heizgrenze. Möglichkeit zur Einstellung für Raumtemperatur und Trinkwassertemperatur und Abfrage von Temperaturen. Einfache Bedienung mittels grafischem Display mit Klartextunterstützung, großer Schrift und kontrastreicher schwarz/weiß-Darstellung sowie kontextbezogener Hilfe. Fernbedienung wahlweise über ViCare oder ViGuide in Verbindung mit Vitoconnect (Zubehör) und bauseitigem Internetzugang möglich.

Vorteile des Vitoladens 300-C:

  • Beste Energieausnutzung bei minimalen Abmessungen
  • Biferrale Verbundheizfläche mit direkt angeschlossenem Inox- Radial-Wärmetauscher aus Edelstahl
  • Modulierender Compact-Blaubrenner für raumluftabhängige und raumluftunabhängige Betriebsweise
  • Leise Betriebsweise durch integrierten Schalldämpfer
  • Einfach zu bedienende Vitotronic Regelung mit Klartext- und Grafikanzeige
  • Alle handelsüblichen schwefelarmen Heizöle EL verwendbar. Auch für Heizöl DIN SPEC 51603-6-EL A Bio 20: Heizöl EL schwefelarm mit Zumischungen bis 20 % Biokomponenten (FAME) und paraffinische Heizöle (z. B. HVO oder PTL) nach DIN TS 51603-8 bis 100 %
  • Sicherheitsgruppe, Ölfilter, Siphon und Schmutzabscheider im Lieferumfang
  • Vereinfachte Einbringung und erweitertes Transportzubehör
  • Internetfähig durch Vitoconnect (Zubehör) für Bedienung und Service über Viessmann Apps

Technische Daten:

  • Farbe Vitographite
  • Brennervarianten Compact-Blaubrenner, modulierend
  • Nenn-Wärmeleistung 50/30 °C 12,9 - 28,9 kW
  • Nenn-Wärmeleistung 80/60 °C 12,0 - 27 kW
  • Länge 1.092 mm
  • Breite 638 mm
  • Höhe 1.120 mm
  • Gesamtgewicht 198 kg
  • Inhalt Kesselwasser 42,5 l
  • Zul. Betriebsdruck 3 bar
  • Abgasanschluss 80 mm
  • Zuluftanschluss 125 mm
  • Jahreszeitbedingte Raumheizungs-Energieeffizienz (Eta s) 96 %
  • Technische Daten zur Bestimmung der Energieeffizienzklasse (ErP-Label) Heizkessel
  • Jahreszeitbedingte Raumheizungs-Energieeffizienzklasse A
  • Nenn-Wärmeleistung 27 kW
  • Jahreszeitbedingte Raumheizungs-Energieeffizienz 93 % J
  • ährlicher Energieverbrauch 23828 kWh
  • Schall-Leistungspegel 60 dB
  • Temperaturregler Temperaturregler Klasse II
  • Beitrag Raumheizungs-Energieeffizienz 2 %
  • Energieeffizienz Verbund (Heizung) 96 %
  • Energieeffizienzklasse Verbund (Heizung) A

Lieferumfang:

  • Kesselkörper mit Wärmedämmung
  • Compact-Blaubrenner
  • Regelung für witterungsgeführten Betrieb
  • Sicherheitsarmaturen im heizwasserseitigen Verteilergehäuse
  • Anschlussfertig verrohrt und verdrahtet
  • Integrierter Abgas-Schalldämpfer
  • Kesselanschluss-Stück
  • Siphon mit Schmutzabscheider für Kondenswasserablauf
  • Reinigungsbürste
  • Automatischer Heizölentlüfter für Einstrangsystem und Ölfilter mit 5 μm Filtereinheit
  • Verschraubungs-Set Heizölentlüfter, für tankseitigen Anschluss Ø 6 mm
  • Untergestell
WEEE-Reg.-Nr.: DE 58723830

Allg. Sicherheitshinweise:

Zur Vermeidung von Körper- und Gesundheitsschäden sind die Montage, Erstinbetriebnahme, Inspektion, Wartung und Instandsetzung von autorisierten Fachkräften (Heizungs- / Sanitärfachbetrieb / Vertragsinstallationsunternehmen) vorzunehmen!

Bestimmungsgemäße Verwendung: Bitte beachten Sie die bei Installation und Montage beiliegende Installations-, Betriebs- und Wartungsanleitungen sowie Produkt-/Systemzulassungen aller Anlagenkomponenten. Bei Wärmeerzeugern ist es zum Beispiel regelmäßig der Fall, dass allein für diese Heizung zugelassene Abgastechnik zur Verwendung gelangen darf. Zur bestimmungsgemäßen Verwendung gehört gleichsam die Einhaltung der ebenfalls in o.g. Unterlagen enthaltenen Inspektions- und Wartungsbedingungen.

Elektrische Heizgeräte sowie Durchlauferhitzer mit Starkstromanschluß (400V) dürfen nur durch jeweiligen Netzbetreiber oder durch ein in das Installateurverzeichnis des Netzbetreibers eingetragenes Installationsunternehmen installiert werden!

Elektrogeräte mit Drei-Phasen-Wechselstrom-Anschluss (3~/400V) und "nicht-steckerfertigen Geräten" sind von einem Fachbetrieb zu installieren. Geräte mit einer Nennleistung von mehr als 12 kW müssen vor der Erstinstallation eine Zustimmung vom Netzbetrieber erhalten.

Installation, Inspektion, Wartung und Instandsetzung von Gasgeräten sowie Gaseinstellungen darf nur ein Fachhandwerker durchführen!

Herstellerinformationen

Viessmann Climate Solutions SE
Viessmannstraße 1
35108 Allendorf (Eder)
DE

Tel: 06452 70-0
E-Mail: info@viessmann.com

Ähnliche Artikel

Viessmann Heizkörper Hahnblock 1/2 x 3/4" Anschlussvariante "Ventil" Eurokonus
Viessmann Hahnblock in durchgang oder eck 1/2" x 3/4" Eurokonus Beschreibung: Viessmann Hahnblock in durchgangs- oder eckform zum anschliessen eines Ventilheizkörpers Technische Daten: Messing vernickelt komplett mit Übergangsnippel 1/2" x 3/4" max. Betriebsdruck: 10 bar max. Betriebstemperatur: 110 °C für 2-Rohrsysteme mit Absperrung passend für: Viessmann Universalheizkörper mit Montageset Ventil ( Ventilheizkörper ) Viessmann Vertikalheizkörper Carat mit Ventileinsatz Viessmann Mittelanschlussheizkörper alle Heizkörper mit 1/2" Innengewinde Lieferumfang: Viessmann Hahnblock in durchgang oder eck

ab 16,21 €*

Art.Nr.: 136216554

ca. 2-4 Werktage (Mo-Fr.)

Viessmann Ersatzteil 7839248 Anschlussleitung Kollektorpumpe 230V L=8
Viessmann Anschlussleitung Kollektorpumpe 230V L=8 Herstellernummer: 7839248 Beschreibung: original Viessmann Anschlussleitung Kollektorpumpe 230V L=8 Lieferumfang Viessmann Anschlussleitung Kollektorpumpe 230V L=8

22,99 €*

Art.Nr.: 182164447

ca. 2-4 Werktage (Mo-Fr.)

Viessmann Bohrkonsolen Set 7527880 Halterung für Heizkörper Abstandshalter
Viessmann Bohrkonsolen Set Artikelnummer: 7527880 Beschreibung: Zum Überbrücken von einem größeren Abstand zur Heizkörperhalterung Stufenloser Abstand 2 Bohrkonsolen 2 Abstandshalter Herstellernr.: 7527880 Lieferumfang: Viessmann Bohrkonsolenset

Inhalt: 2 Stk (11,55 €* / 1 Stk)

23,09 €*

Art.Nr.: 156630039

ca. 2-4 Werktage (Mo-Fr.)

Viessmann Abdeckrosette für Standkonsole Standfüße Montage Fertigboden
Viessmann Abdeckrosette für Standkonsole Hersteller: 9572063 Beschreibung: Viessmann Abdeckrosette für Standkonsole Standfüße Montage Fertigboden Lieferumfang: Viessmann Abdeckrosette Liefereinheit 2 Stück ( paarweise )

Inhalt: 2 Stk (12,69 €* / 1 Stk)

25,37 €*

Art.Nr.: 148098446

ca. 2-4 Werktage (Mo-Fr.)

Viessmann Stellantrieb für Heizkreisverteiler Fußbodenheizung 1 Watt / 230 V
Viessmann Stellantrieb für Heizkreisverteiler mit Adapter Gewindeanschluss M30 x 1,5 / 1 Watt Hersteller: 7750202 Beschreibung: Viessmann Stellantrieb für Heizkreisverteiler geeignet für ein Anschlussgewinde M30x1,5 Technische Daten: stromlos geschlossen Leistungsaufnahme: 1 Watt Montagelage: 360 ° rundum Funktionsanzeige Montagering M30x1,5 für einfache Steckmontage Schutzklasse: IP54 Abmessungen HxBxT: 52,2 x 44,3 x 48,4 mm Hub: 4 mm Leitungslänge: 1 m Lieferumfang: Viessmann Stellantrieb 7750202 Adapterring M30x1,5

ab 17,99 €*

Art.Nr.: 136492153

ca. 2-4 Werktage (Mo-Fr.)

Viessmann Raumthermostat analog 230 V für Fußbodenheizung Stellantrieb Aufputz
Viessmann Raumthermostat analog 230 V Herstellernummer: 7750197 Beschreibung: original Viessmann Aufputz Raumthermostat, für das Regeln der Stellantriebe der Fußbodenheizung. Die Anschlussspannung beträgt 230 Volt. Technische Daten: Einstellbereich Solltemperatur: 10 bis 28 °C Absenktemperatur: 4 °C Hysterese: 0,5 K Schaltelement Relais Frostschutzfunktion: (Temperatur 6°C) Für Wandmontage / Montage auf Unterputzdose (kein planer Abschluss mit der Wand) Farbe: Signalweiß (RAL 9003) Anschlussmöglichkeit: max. 10 Stellantriebe (max. 3W/Stellantrieb) Schutzklasse IP20 Abmessung B x H x T: 86 x 86 x 29 mm Lieferumfang: Viessmann Raumthermostat analog 230 V (gewählte Anzahl) Montage- und Betriebsanleitung

ab 19,35 €*

Art.Nr.: 139616802

ca. 2-4 Werktage (Mo-Fr.)

Viessmann Rohrhalter Tackernadeln für Rohre Ø 14 bis 20 mm Fussbodenheizung
Viessmann Rohrhalter Tackernadeln für Rohre Ø 14 bis 20 mm Herstellernummer: 7568331 Beschreibung: Die Tackernadeln werden zur sicheren Befestigung der Fußbodenheizungsrohre auf der Dämmung mit bewährten Tackersystem eingesetzt. Geeignet für fast alle handelsüblichen Tackergeräte für Rohr von 14-20 mm Durchmesser. Die Tackernadeln werden mit 1000 Stück magaziniert im Karton geliefert. (Zur Befestigung der Vitoset-System-Heizrohre 16 × 2 mm auf den Verbundplatten und -rollen VNM 30 und VNM 25.) Technische Daten: 1000 Stück im Karton für Rohre Ø 14 bis 20 mm magaziniert a 40 Stk. Lieferumfang: Liefereinheit: 1000 Stück im Karton (25 Magazine á 40 Stück)

Inhalt: 1000 Stk (0,04 €* / 1 Stk)

37,48 €*

Art.Nr.: 162133944

ca. 2-4 Werktage (Mo-Fr.)

Viessmann Filtersatz Vitovent 100-D Partikelklasse G3 Ersatzfilter Pollenfilter
Viessmann Filtersatz mit der Partikelklasse G3 für das dezentrale Lüftungsgerät Vitovent 100-D Herstellernummer: 7571848 Beschreibung: - Viessmann Filtersatz mit der Partikelklasse G3 für das dezentrale Lüftungsgerät Vitovent 100-D ( Ersatzfilter-Set = 4-Stück ). - Für Vitovent 100-D, Typ H00E A45 - Grobilter G3/ISO Coarse 70 % Lieferumfang: 4x Partikelfilterklasse G3

Inhalt: 4 Stk (10,54 €* / 1 Stk)

42,16 €*

Art.Nr.: 136394101

ca. 2-4 Werktage (Mo-Fr.)

Viessmann Guss-Stabanode D33 x 250 / 220 mm 7839143
Viessmann Guss-Stabanode 7839143 Herstellerteilenummer: 7839143 Beschreibung: Eine Magnesiumanode, umgangssprachlich auch Opferanode genannt, dient dem Korrosionsschutz von Trinkwasserspeichern. Technische Daten: Durchmesser: 33,0 mm Länge: 250 mm Gesamtlänge: 220 mm Lieferumfang: Viessmann Guss-Stabanode 7839143

43,52 €*

Art.Nr.: 183066962

ca. 1-2 Wochen

Viessmann Vitoset Aqua Leckage Bodensensor 7938832 für Enthärtungsanlage
Viessmann Vitoset Aqua Leckage Sensor Herstellerteilenummer: 7938832 Beschreibung: In Kombination mit Vitoset Absperrventil und mit Trinkwasserenthärtungsanlage Vitoset Aqua als Leckageschutz für die Trinkwasseranlage einsetzbar Integrierter Feuchtigkeitssensor Datenübertragung per Bluetooth (Klasse 2) Lieferumfang: Viessmann Vitoset Aqua Leckage Sensor

48,33 €*

Art.Nr.: 181345536

ca. 2-4 Werktage (Mo-Fr.)

Viessmann Guss-Stabanode D33 x 530 / 500 mm 7894246
Viessmann Guss-Stabanode 7894246 Herstellerteilenummer: 7894246 Beschreibung: Eine Magnesiumanode, umgangssprachlich auch Opferanode genannt, dient dem Korrosionsschutz von Trinkwasserspeichern. Technische Daten: Durchmesser: 33,0 mm Länge: 500 mm Gesamtlänge: 530 mm Lieferumfang: Viessmann Guss-Stabanode 7894246

48,39 €*

Art.Nr.: 183066098

ca. 2-4 Werktage (Mo-Fr.)

Viessmann LCD Raumthermostat digital 230 V für Fußbodenheizung Stellantrieb
Viessmann LCD Raumthermostat digital 230 V Herstellernummer: 7750198 Beschreibung: Original Viessmann LCD Raumthermostat digital, für das Regeln der Stellantriebe der Fußbodenheizung. Die Anschlussspannung beträgt 230 Volt. Technische Daten: LC-Display Einstellbereich Solltemperatur: 5 °C bis 30 °C Absenktemperatur: 2 °C Hysterese: 0,5 K (zwischen 17-24°C) Schaltelement Relais Frostschutzfunktion (Temperatur 5°C) Ventilschutzfunktion Für Wandmontage / Montage auf Unterputzdose (kein planer Abschluss mit der Wand) Farbe: Signalweiß (RAL 9003) Anschlussmöglichkeit: max. 5 Stellantriebe (max. 3W/Stellantrieb) Abmessung B x H x T: 86 x 86 x 31 mm Lieferumfang: Viessmann LCD Raumthermostat digital 230 V (gewählte Anzahl) Montage- und Betriebsanleitung

51,25 €*

Art.Nr.: 139616845

ca. 2-4 Werktage (Mo-Fr.)