Betriebsferien vom 22.12.2025 - 06.01.2026. Bestellungen werden erst ab dem 07.01.2026 ausgeliefert.

Viessmann Paket Vitocal 222 G Typ BWT 221.B Sole/Wasser Wärmepumpe Puffer

Art.Nr.:
161875413
Herst.Nr.:
Z022353, Z022354, Z022355
EAN: 123
Lieferzeit:

ca. 2-4 Werktage (Mo-Fr.)

a++

ab 11.295,69 €*

inkl. 19% MwSt. zzgl. 0.00 € Versand

Produktinformationen "Viessmann Paket Vitocal 222 G Typ BWT 221.B Sole/Wasser Wärmepumpe Puffer"

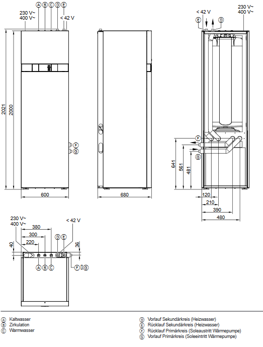
Viessmann Paket Vitocal 222-G Sole/Wasser-Wärmepumpen-Kompaktgerät - 5,8 bis 10,4 kW Speicherinhalt: 220 Liter

Artikelnummer: Z022353, Z022354, Z022355

Beschreibung:

Kompakte, leise Wärmepumpen mit geringem Platzbedarf – auch zur wohnraumnahen Aufstellung geeignet.

Preisattraktive Alternative zum Kompaktgerät der 300er-Serie In dem Sole/Wasser-Wärmepumpen-Kompaktgerät Vitocal 222-G sind bereits alle für die Wohnraumbeheizung und Trinkwassererwärmung erforderlichen Komponenten integriert. Heizleistungen zwischen 5,8 und 10,4 kW empfehlenden Einsatz in Einfamilienhäusern. Vorlauftemperaturen bis 65 °C erlauben den Betrieb in Verbindung mit Heizkörpern. Die Wärmepumpe ist die preisattraktive Alternative zum Kompaktgerät der 300er-Serie. Mit ihren Kältekreisen mit fester Heizleistung (in drei Leistungsgrößen) und einem elektronisch geregelten Expansionsventil erzielt sie einen COP (Coefficient of Performance) bis zu 4,8 nach EN 14511 (5/2018) bei B0/W35.

Vorteile der Sole-Wasser-Wärmepumpe Vitocal 222-G:

  • Kaum hörbar auch bei wohnraumnaher Aufstellung durch innovatives Schalldämmkonzept mit einem Schallleistungspegel von maximal 46 dB(A) (B0/W55)
  • Kompakte Abmessungen und geringe Aufstellfläche für mehr Platz im Gebäude
  • Hoher Bedienkomfort – Heizen, Kühlen, Warmwasser und Lüftung über integrierte Regelung Vitotronic
  • Gesteigerte Eigenstromnutzung aus Photovoltaik-Anlagen durch tiefe Leistungsmodulation der Wärmepumpe
  • Internetfähig durch Vitoconnect (Zubehör) mit ViCare App
  • Ansteuerung von kompatiblen Vitovent Wohnungslüftungsgeräten
  • Sole/Wasser-Wärmepumpen-Kompaktgeräte mit Heizleistungen von 5,8 bis 10,4 kW
  • Hoher Warmwasserkomfort mit 220-Liter-Warmwasserspeicher
  • Niedrige Betriebskosten durch optimierte Warmwassereffizienz – Trinkwarmwasser-Energieeffizienzklasse: A+
  • Niedrige Betriebskosten durch optimierte saisonale Effizienz (SCOP = Seasonal Coefficient of Performance) nach EN 14825: bis 5,4 (kaltes Klima/Niedertemperaturanwendung)
  • COP-Wert (Coefficient of Performance) nach EN 14511 (5/2018): bis 4,8 (B0/W35)
  • kombinierbar mit Eispeicher Vitofriocal als Wärmequelle

Technische Daten:

  • siehe Datenblatt

Lieferumfang:

  • Sole/Wasser-Wärmepumpe zur Raumbeheizung und Trinkwassererwärmung
  • Integrierter Speicher-Wassererwärmer aus Stahl mit Ceraprotect-Emaillierung, korrosionsgeschützt durch Magnesium-Schutzanode, mit Wärmedämmung
  • Eingebautes Umschaltventil Heizen/Trinkwassererwärmung
  • Eingebaute Hocheffizienz-Umwälzpumpe für Solekreis (Primär-kreis)
  • Eingebaute Hocheffizienz-Umwälzpumpe für Heizkreis (Sekundär-kreis)
  • Eingebauter Heizwasser-Durchlauferhitzer
  • Sicherheitsgruppe für Heizkreis (beiliegend)
  • Witterungsgeführte Wärmepumpenregelung Vitotronic 200 mit Außentemperatursensor
  • Elektronische Anlaufstrombegrenzung (nicht bei Typ BWT 221.B06) und integrierte Phasenüberwachung
  • Anschlussrohre für Vor- und Rücklauf des Primärkreis (Sole) zur wahlweisen Anbindung von links oder rechts (beiliegend)
  • Anschlussrohre für Vor- und Rücklauf des Sekundärkreis (Heizung) zur Anbindung von oben (beiliegend)
  • itocellV 100-W (Typ SVPA, Farbe vitopearlwhite, mit 46 Liter Inhalt, zur Sicherstellung des Mindestanlagenvolumens)
  • Überströmventil (DN 25, R 1)
  • Einschl. Sole-Zubehörpaket bestehend aus: Lufttopf, Sicherheitsventil (3 bar), Manometer, 2 Füll- und Entleerungshähnen, Absperrung, Wandhalterung, Anschluss für Ausdehnungsgefäß, Wärmedämmung (dampfdicht), Kappenventil und Ausdehnungsgefäß, Inhalt 25 Liter

Hinweis:

5 Jahre Garantie durch Konnektivierung sichern! Bestellen Sie eine Vitoconnect, Typ OPTO hinzu und verbinden die Regelung mit dem Internet.Ihr Kunde erhält die ViCare App und wir gewähren 5 Jahre Garantie unter Einhaltung der Garantiebedingungen. Weitere Informationen siehe Register Zubehör.

Für die Installation dieses Gerätes ist ein 400V Starkstromanschluss (Drei-Phasen-Wechselanschluss) notwendig, die Montage (Elektroinstallation) sowie die Erstinbetriebnahme und die Wartung dieses Gerätes dürfen nur von einer Elektrofachkraft in Übereinstimmung mit den gültigen Vorschriften sowie entsprechend dieser Anweisung ausgeführt werden!

WEEE-Reg.-Nr.: DE 58723830

Allg. Sicherheitshinweise:

Zur Vermeidung von Körper- und Gesundheitsschäden sind die Montage, Erstinbetriebnahme, Inspektion, Wartung und Instandsetzung von autorisierten Fachkräften (Heizungs- / Sanitärfachbetrieb / Vertragsinstallationsunternehmen) vorzunehmen!

Bestimmungsgemäße Verwendung: Bitte beachten Sie die bei Installation und Montage beiliegende Installations-, Betriebs- und Wartungsanleitungen sowie Produkt-/Systemzulassungen aller Anlagenkomponenten. Bei Wärmeerzeugern ist es zum Beispiel regelmäßig der Fall, dass allein für diese Heizung zugelassene Abgastechnik zur Verwendung gelangen darf. Zur bestimmungsgemäßen Verwendung gehört gleichsam die Einhaltung der ebenfalls in o.g. Unterlagen enthaltenen Inspektions- und Wartungsbedingungen.

Elektrische Heizgeräte sowie Durchlauferhitzer mit Starkstromanschluß (400V) dürfen nur durch jeweiligen Netzbetreiber oder durch ein in das Installateurverzeichnis des Netzbetreibers eingetragenes Installationsunternehmen installiert werden!

Elektrogeräte mit Drei-Phasen-Wechselstrom-Anschluss (3~/400V) und "nicht-steckerfertigen Geräten" sind von einem Fachbetrieb zu installieren. Geräte mit einer Nennleistung von mehr als 12 kW müssen vor der Erstinstallation eine Zustimmung vom Netzbetrieber erhalten.

Installation, Inspektion, Wartung und Instandsetzung von Gasgeräten sowie Gaseinstellungen darf nur ein Fachhandwerker durchführen!

Herstellerinformationen

Viessmann Climate Solutions SE
Viessmannstraße 1
35108 Allendorf (Eder)
DE

Tel: 06452 70-0
E-Mail: info@viessmann.com
Art.Nr.:
161875413
Herst.Nr.:
Z022353, Z022354, Z022355
EAN: 123
Lieferzeit:

ca. 2-4 Werktage (Mo-Fr.)

a++

ab 11.295,69 €*

inkl. 19% MwSt. zzgl. 0.00 € Versand

Produktinformationen "Viessmann Paket Vitocal 222 G Typ BWT 221.B Sole/Wasser Wärmepumpe Puffer"

Viessmann Paket Vitocal 222-G Sole/Wasser-Wärmepumpen-Kompaktgerät - 5,8 bis 10,4 kW Speicherinhalt: 220 Liter

Artikelnummer: Z022353, Z022354, Z022355

Beschreibung:

Kompakte, leise Wärmepumpen mit geringem Platzbedarf – auch zur wohnraumnahen Aufstellung geeignet.

Preisattraktive Alternative zum Kompaktgerät der 300er-Serie In dem Sole/Wasser-Wärmepumpen-Kompaktgerät Vitocal 222-G sind bereits alle für die Wohnraumbeheizung und Trinkwassererwärmung erforderlichen Komponenten integriert. Heizleistungen zwischen 5,8 und 10,4 kW empfehlenden Einsatz in Einfamilienhäusern. Vorlauftemperaturen bis 65 °C erlauben den Betrieb in Verbindung mit Heizkörpern. Die Wärmepumpe ist die preisattraktive Alternative zum Kompaktgerät der 300er-Serie. Mit ihren Kältekreisen mit fester Heizleistung (in drei Leistungsgrößen) und einem elektronisch geregelten Expansionsventil erzielt sie einen COP (Coefficient of Performance) bis zu 4,8 nach EN 14511 (5/2018) bei B0/W35.

Vorteile der Sole-Wasser-Wärmepumpe Vitocal 222-G:

  • Kaum hörbar auch bei wohnraumnaher Aufstellung durch innovatives Schalldämmkonzept mit einem Schallleistungspegel von maximal 46 dB(A) (B0/W55)
  • Kompakte Abmessungen und geringe Aufstellfläche für mehr Platz im Gebäude
  • Hoher Bedienkomfort – Heizen, Kühlen, Warmwasser und Lüftung über integrierte Regelung Vitotronic
  • Gesteigerte Eigenstromnutzung aus Photovoltaik-Anlagen durch tiefe Leistungsmodulation der Wärmepumpe
  • Internetfähig durch Vitoconnect (Zubehör) mit ViCare App
  • Ansteuerung von kompatiblen Vitovent Wohnungslüftungsgeräten
  • Sole/Wasser-Wärmepumpen-Kompaktgeräte mit Heizleistungen von 5,8 bis 10,4 kW
  • Hoher Warmwasserkomfort mit 220-Liter-Warmwasserspeicher
  • Niedrige Betriebskosten durch optimierte Warmwassereffizienz – Trinkwarmwasser-Energieeffizienzklasse: A+
  • Niedrige Betriebskosten durch optimierte saisonale Effizienz (SCOP = Seasonal Coefficient of Performance) nach EN 14825: bis 5,4 (kaltes Klima/Niedertemperaturanwendung)
  • COP-Wert (Coefficient of Performance) nach EN 14511 (5/2018): bis 4,8 (B0/W35)
  • kombinierbar mit Eispeicher Vitofriocal als Wärmequelle

Technische Daten:

  • siehe Datenblatt

Lieferumfang:

  • Sole/Wasser-Wärmepumpe zur Raumbeheizung und Trinkwassererwärmung
  • Integrierter Speicher-Wassererwärmer aus Stahl mit Ceraprotect-Emaillierung, korrosionsgeschützt durch Magnesium-Schutzanode, mit Wärmedämmung
  • Eingebautes Umschaltventil Heizen/Trinkwassererwärmung
  • Eingebaute Hocheffizienz-Umwälzpumpe für Solekreis (Primär-kreis)
  • Eingebaute Hocheffizienz-Umwälzpumpe für Heizkreis (Sekundär-kreis)
  • Eingebauter Heizwasser-Durchlauferhitzer
  • Sicherheitsgruppe für Heizkreis (beiliegend)
  • Witterungsgeführte Wärmepumpenregelung Vitotronic 200 mit Außentemperatursensor
  • Elektronische Anlaufstrombegrenzung (nicht bei Typ BWT 221.B06) und integrierte Phasenüberwachung
  • Anschlussrohre für Vor- und Rücklauf des Primärkreis (Sole) zur wahlweisen Anbindung von links oder rechts (beiliegend)
  • Anschlussrohre für Vor- und Rücklauf des Sekundärkreis (Heizung) zur Anbindung von oben (beiliegend)
  • itocellV 100-W (Typ SVPA, Farbe vitopearlwhite, mit 46 Liter Inhalt, zur Sicherstellung des Mindestanlagenvolumens)
  • Überströmventil (DN 25, R 1)
  • Einschl. Sole-Zubehörpaket bestehend aus: Lufttopf, Sicherheitsventil (3 bar), Manometer, 2 Füll- und Entleerungshähnen, Absperrung, Wandhalterung, Anschluss für Ausdehnungsgefäß, Wärmedämmung (dampfdicht), Kappenventil und Ausdehnungsgefäß, Inhalt 25 Liter

Hinweis:

5 Jahre Garantie durch Konnektivierung sichern! Bestellen Sie eine Vitoconnect, Typ OPTO hinzu und verbinden die Regelung mit dem Internet.Ihr Kunde erhält die ViCare App und wir gewähren 5 Jahre Garantie unter Einhaltung der Garantiebedingungen. Weitere Informationen siehe Register Zubehör.

Für die Installation dieses Gerätes ist ein 400V Starkstromanschluss (Drei-Phasen-Wechselanschluss) notwendig, die Montage (Elektroinstallation) sowie die Erstinbetriebnahme und die Wartung dieses Gerätes dürfen nur von einer Elektrofachkraft in Übereinstimmung mit den gültigen Vorschriften sowie entsprechend dieser Anweisung ausgeführt werden!

WEEE-Reg.-Nr.: DE 58723830

Allg. Sicherheitshinweise:

Zur Vermeidung von Körper- und Gesundheitsschäden sind die Montage, Erstinbetriebnahme, Inspektion, Wartung und Instandsetzung von autorisierten Fachkräften (Heizungs- / Sanitärfachbetrieb / Vertragsinstallationsunternehmen) vorzunehmen!

Bestimmungsgemäße Verwendung: Bitte beachten Sie die bei Installation und Montage beiliegende Installations-, Betriebs- und Wartungsanleitungen sowie Produkt-/Systemzulassungen aller Anlagenkomponenten. Bei Wärmeerzeugern ist es zum Beispiel regelmäßig der Fall, dass allein für diese Heizung zugelassene Abgastechnik zur Verwendung gelangen darf. Zur bestimmungsgemäßen Verwendung gehört gleichsam die Einhaltung der ebenfalls in o.g. Unterlagen enthaltenen Inspektions- und Wartungsbedingungen.

Elektrische Heizgeräte sowie Durchlauferhitzer mit Starkstromanschluß (400V) dürfen nur durch jeweiligen Netzbetreiber oder durch ein in das Installateurverzeichnis des Netzbetreibers eingetragenes Installationsunternehmen installiert werden!

Elektrogeräte mit Drei-Phasen-Wechselstrom-Anschluss (3~/400V) und "nicht-steckerfertigen Geräten" sind von einem Fachbetrieb zu installieren. Geräte mit einer Nennleistung von mehr als 12 kW müssen vor der Erstinstallation eine Zustimmung vom Netzbetrieber erhalten.

Installation, Inspektion, Wartung und Instandsetzung von Gasgeräten sowie Gaseinstellungen darf nur ein Fachhandwerker durchführen!

Herstellerinformationen

Viessmann Climate Solutions SE
Viessmannstraße 1
35108 Allendorf (Eder)
DE

Tel: 06452 70-0
E-Mail: info@viessmann.com

Ähnliche Artikel

Viessmann Heizkörper Hahnblock 1/2 x 3/4" Anschlussvariante "Ventil" Eurokonus
Viessmann Hahnblock in durchgang oder eck 1/2" x 3/4" Eurokonus Beschreibung: Viessmann Hahnblock in durchgangs- oder eckform zum anschliessen eines Ventilheizkörpers Technische Daten: Messing vernickelt komplett mit Übergangsnippel 1/2" x 3/4" max. Betriebsdruck: 10 bar max. Betriebstemperatur: 110 °C für 2-Rohrsysteme mit Absperrung passend für: Viessmann Universalheizkörper mit Montageset Ventil ( Ventilheizkörper ) Viessmann Vertikalheizkörper Carat mit Ventileinsatz Viessmann Mittelanschlussheizkörper alle Heizkörper mit 1/2" Innengewinde Lieferumfang: Viessmann Hahnblock in durchgang oder eck

ab 16,21 €*

Art.Nr.: 136216554

ca. 2-4 Werktage (Mo-Fr.)

Viessmann Ersatzteil 7839248 Anschlussleitung Kollektorpumpe 230V L=8
Viessmann Anschlussleitung Kollektorpumpe 230V L=8 Herstellernummer: 7839248 Beschreibung: original Viessmann Anschlussleitung Kollektorpumpe 230V L=8 Lieferumfang Viessmann Anschlussleitung Kollektorpumpe 230V L=8

22,99 €*

Art.Nr.: 182164447

ca. 2-4 Werktage (Mo-Fr.)

Viessmann Bohrkonsolen Set 7527880 Halterung für Heizkörper Abstandshalter
Viessmann Bohrkonsolen Set Artikelnummer: 7527880 Beschreibung: Zum Überbrücken von einem größeren Abstand zur Heizkörperhalterung Stufenloser Abstand 2 Bohrkonsolen 2 Abstandshalter Herstellernr.: 7527880 Lieferumfang: Viessmann Bohrkonsolenset

Inhalt: 2 Stk (11,55 €* / 1 Stk)

23,09 €*

Art.Nr.: 156630039

ca. 2-4 Werktage (Mo-Fr.)

Viessmann Abdeckrosette für Standkonsole Standfüße Montage Fertigboden
Viessmann Abdeckrosette für Standkonsole Hersteller: 9572063 Beschreibung: Viessmann Abdeckrosette für Standkonsole Standfüße Montage Fertigboden Lieferumfang: Viessmann Abdeckrosette Liefereinheit 2 Stück ( paarweise )

Inhalt: 2 Stk (12,69 €* / 1 Stk)

25,37 €*

Art.Nr.: 148098446

ca. 2-4 Werktage (Mo-Fr.)

Viessmann Stellantrieb für Heizkreisverteiler Fußbodenheizung 1 Watt / 230 V
Viessmann Stellantrieb für Heizkreisverteiler mit Adapter Gewindeanschluss M30 x 1,5 / 1 Watt Hersteller: 7750202 Beschreibung: Viessmann Stellantrieb für Heizkreisverteiler geeignet für ein Anschlussgewinde M30x1,5 Technische Daten: stromlos geschlossen Leistungsaufnahme: 1 Watt Montagelage: 360 ° rundum Funktionsanzeige Montagering M30x1,5 für einfache Steckmontage Schutzklasse: IP54 Abmessungen HxBxT: 52,2 x 44,3 x 48,4 mm Hub: 4 mm Leitungslänge: 1 m Lieferumfang: Viessmann Stellantrieb 7750202 Adapterring M30x1,5

ab 17,99 €*

Art.Nr.: 136492153

ca. 2-4 Werktage (Mo-Fr.)

Viessmann Raumthermostat analog 230 V für Fußbodenheizung Stellantrieb Aufputz
Viessmann Raumthermostat analog 230 V Herstellernummer: 7750197 Beschreibung: original Viessmann Aufputz Raumthermostat, für das Regeln der Stellantriebe der Fußbodenheizung. Die Anschlussspannung beträgt 230 Volt. Technische Daten: Einstellbereich Solltemperatur: 10 bis 28 °C Absenktemperatur: 4 °C Hysterese: 0,5 K Schaltelement Relais Frostschutzfunktion: (Temperatur 6°C) Für Wandmontage / Montage auf Unterputzdose (kein planer Abschluss mit der Wand) Farbe: Signalweiß (RAL 9003) Anschlussmöglichkeit: max. 10 Stellantriebe (max. 3W/Stellantrieb) Schutzklasse IP20 Abmessung B x H x T: 86 x 86 x 29 mm Lieferumfang: Viessmann Raumthermostat analog 230 V (gewählte Anzahl) Montage- und Betriebsanleitung

ab 19,35 €*

Art.Nr.: 139616802

ca. 2-4 Werktage (Mo-Fr.)

Viessmann Rohrhalter Tackernadeln für Rohre Ø 14 bis 20 mm Fussbodenheizung
Viessmann Rohrhalter Tackernadeln für Rohre Ø 14 bis 20 mm Herstellernummer: 7568331 Beschreibung: Die Tackernadeln werden zur sicheren Befestigung der Fußbodenheizungsrohre auf der Dämmung mit bewährten Tackersystem eingesetzt. Geeignet für fast alle handelsüblichen Tackergeräte für Rohr von 14-20 mm Durchmesser. Die Tackernadeln werden mit 1000 Stück magaziniert im Karton geliefert. (Zur Befestigung der Vitoset-System-Heizrohre 16 × 2 mm auf den Verbundplatten und -rollen VNM 30 und VNM 25.) Technische Daten: 1000 Stück im Karton für Rohre Ø 14 bis 20 mm magaziniert a 40 Stk. Lieferumfang: Liefereinheit: 1000 Stück im Karton (25 Magazine á 40 Stück)

Inhalt: 1000 Stk (0,04 €* / 1 Stk)

37,48 €*

Art.Nr.: 162133944

ca. 2-4 Werktage (Mo-Fr.)

Viessmann Filtersatz Vitovent 100-D Partikelklasse G3 Ersatzfilter Pollenfilter
Viessmann Filtersatz mit der Partikelklasse G3 für das dezentrale Lüftungsgerät Vitovent 100-D Herstellernummer: 7571848 Beschreibung: - Viessmann Filtersatz mit der Partikelklasse G3 für das dezentrale Lüftungsgerät Vitovent 100-D ( Ersatzfilter-Set = 4-Stück ). - Für Vitovent 100-D, Typ H00E A45 - Grobilter G3/ISO Coarse 70 % Lieferumfang: 4x Partikelfilterklasse G3

Inhalt: 4 Stk (10,54 €* / 1 Stk)

42,16 €*

Art.Nr.: 136394101

ca. 2-4 Werktage (Mo-Fr.)

Viessmann Guss-Stabanode D33 x 250 / 220 mm 7839143
Viessmann Guss-Stabanode 7839143 Herstellerteilenummer: 7839143 Beschreibung: Eine Magnesiumanode, umgangssprachlich auch Opferanode genannt, dient dem Korrosionsschutz von Trinkwasserspeichern. Technische Daten: Durchmesser: 33,0 mm Länge: 250 mm Gesamtlänge: 220 mm Lieferumfang: Viessmann Guss-Stabanode 7839143

43,52 €*

Art.Nr.: 183066962

ca. 1-2 Wochen

Viessmann Vitoset Aqua Leckage Bodensensor 7938832 für Enthärtungsanlage
Viessmann Vitoset Aqua Leckage Sensor Herstellerteilenummer: 7938832 Beschreibung: In Kombination mit Vitoset Absperrventil und mit Trinkwasserenthärtungsanlage Vitoset Aqua als Leckageschutz für die Trinkwasseranlage einsetzbar Integrierter Feuchtigkeitssensor Datenübertragung per Bluetooth (Klasse 2) Lieferumfang: Viessmann Vitoset Aqua Leckage Sensor

48,33 €*

Art.Nr.: 181345536

ca. 2-4 Werktage (Mo-Fr.)

Viessmann Guss-Stabanode D33 x 530 / 500 mm 7894246
Viessmann Guss-Stabanode 7894246 Herstellerteilenummer: 7894246 Beschreibung: Eine Magnesiumanode, umgangssprachlich auch Opferanode genannt, dient dem Korrosionsschutz von Trinkwasserspeichern. Technische Daten: Durchmesser: 33,0 mm Länge: 500 mm Gesamtlänge: 530 mm Lieferumfang: Viessmann Guss-Stabanode 7894246

48,39 €*

Art.Nr.: 183066098

ca. 2-4 Werktage (Mo-Fr.)

Viessmann LCD Raumthermostat digital 230 V für Fußbodenheizung Stellantrieb
Viessmann LCD Raumthermostat digital 230 V Herstellernummer: 7750198 Beschreibung: Original Viessmann LCD Raumthermostat digital, für das Regeln der Stellantriebe der Fußbodenheizung. Die Anschlussspannung beträgt 230 Volt. Technische Daten: LC-Display Einstellbereich Solltemperatur: 5 °C bis 30 °C Absenktemperatur: 2 °C Hysterese: 0,5 K (zwischen 17-24°C) Schaltelement Relais Frostschutzfunktion (Temperatur 5°C) Ventilschutzfunktion Für Wandmontage / Montage auf Unterputzdose (kein planer Abschluss mit der Wand) Farbe: Signalweiß (RAL 9003) Anschlussmöglichkeit: max. 5 Stellantriebe (max. 3W/Stellantrieb) Abmessung B x H x T: 86 x 86 x 31 mm Lieferumfang: Viessmann LCD Raumthermostat digital 230 V (gewählte Anzahl) Montage- und Betriebsanleitung

51,25 €*

Art.Nr.: 139616845

ca. 2-4 Werktage (Mo-Fr.)