Betriebsferien vom 22.12.2025 - 06.01.2026. Bestellungen werden erst ab dem 07.01.2026 ausgeliefert.

Viessmann Pelletkessel Vitoligno 300-C 70,0 kW Ecotronic Einschub hinten Pellets

Art.Nr.:
174202582
Herst.Nr.:
VL3C085
EAN: 4054465011299
Lieferzeit:

ca. 5 Wochen

EEK Spektrum: A+++ -> D
EEK: a+
a+
a+++ d
Datenblatt
Versandkostenfrei

20.196,79 €*

inkl. 19% MwSt. zzgl. 0.00 € Versand

Produktinformationen "Viessmann Pelletkessel Vitoligno 300-C 70,0 kW Ecotronic Einschub hinten Pellets"

Viessmann Pelletkessel Vitoligno 300-C 70,0 kW Ecotronic Einschub hinten - Betriebsart: Saugsystem

Herstellerteilenummer: VL3C085

 

Beschreibung:

Der Vitoligno 300-C ist gemäß der DIN EN 303-5 (Heizkessel für feste Brennstoffe) geprüft und zugelassen sowie in die Kesselklasse 5 eingestuft. CE Kennzeichnung erfolgt nach europäischer Maschinenrichtlinie mit ständiger Qualitätskontrolle durch den TÜV. Die Einschubschnecke fördert den Brennstoff in die Brennkammer. Der Brennstoff wird automatisch durch ein energiesparendes Zündelement gezündet. Die Entgasung des Brennstoffs erfolgt auf dem von einem Flachgetriebemotor bewegten Doppeldrehlamellenrost. Die Brennkammer ist mit hochtemperaturfesten Siliciumcarbid-Elementen ausgekleidet und mit hochhitzebeständiger Wärmedämmung ummantelt. Die von der Feuerung abgegebenen Brenngase werden im Flammkanal mit Sekundärluft gemischt. Durch die Verengung des Durchmessers erfolgt eine wirksame Vermischung der Brenngase mit der Sekundärluft. Dadurch ist eine lange Ausbrandzeit und eine vollständige Verbrennung der Brenngase gewährleistet. Die Reinigung des Rosts erfolgt durch eine Drehbewegung (360°-Drehung), wodurch die Asche in die darunterliegende Entaschungsschnecke fällt und in die Aschebox transportiert wird (automatische Entaschung). Durch die Drehbewegung und mit Hilfe eines Reinigungskamms werden auch die Rostzwischenräume gereinigt. Im senkrecht stehenden Rohrwärmetauscher wird die Wärmeenergie der Brenngase auf das Kesselwasser übertragen. Der Rohrwärmetauscher wird durch Wirbulatoren automatisch und periodisch gereinigt. Gleichzeitig optimieren die Wirbulatoren den Wirkungsgrad des Heizkessels. Die anfallende Asche im Wärmetauscher wird über eine Schnecke in die Aschebox gefördert (automatische Entaschung des Wärmetauschers). Dadurch werden ein dauerhaft guter Wärmeübergang und lange Reinigungsintervalle ermöglicht. Der Heizkessel wird mit angebauter hocheffizienter Wärmedämmung und Verkleidung aus pulverbeschichtetem Stahlblech geliefert. Farbe der Verkleidung: vitosilber

Mit VIESSMANN Ecotronic, witterungsgeführte, digitale Kessel- und Heizkreisregelung für den Betrieb mit gleitend abgesenkter Kesselwassertemperatur und modulierender Leistungsregelung.

Regelung einer elektrischen Rücklauftemperaturanhebung, Ansteuerung der Kesselkreispumpe und Regelung des Heizwasser-Pufferspeichers bei Anlagen mit Heizwasser-Pufferspeicher. Mit Bedieneinheit mit mehrzeiliger, beleuchteter Displaydarstellung und Klartextunterstützung, vereinfachter Inbetriebnahme durch Inbetriebnahme-Assistent, Automatikfunktion für die Anpassung der Zeitprogramme für die Trinkwassererwärmung, automatischer Sommer-/Winterzeitumschaltung, kontrollierter Estrich-Aufheizung, Speichertemperaturregelung und integriertem Diagnosesystem und Sammelstörmeldung. Die Kesselkreisregelung Ecotronic kann bis zu drei Heizkreise mit Mischer, zwei Heizkreise mit Mischer und Trinkwassererwärmung oder einen Heizkreis mit Mischer, einen Solarkreis und Trinkwassererwärmung ansteuern - Mischeransteuerung nur in Verbindung mit Erweiterungssätzen (Zubehör). Ein weiterer vierter Heizkreis mit Mischer kann über KM-BUS angeschlossen werden. Heizkennlinien und Zeiträume für die Heizkreise, Temperatur-Sollwerte und Heizprogramme sind getrennt einstellbar. Internetfähig durch Vitoconnect (Zubehör) für Bedienung und Service über Viessmann Apps. Fernbedienungen Vitotrol 200-A (max. drei Vitotrol 200-A) oder Vitotrol 300-A (max. eine Vitotrol 300-A) sind für die Heizkreise anschließbar. Über die Funktionserweiterung Vitotrol 350-C (Zubehör) mit Touch-Display sind bis zu 20 weitere Funktionserweiterungen möglich. Die Vitotrol 350-C kann wahlweise als Raumbedienung, Regelkreiserweiterung oder als Kaskadenregler verwendet werden. Es können bis zu vier Festbrennstoffkessel in Kaskade geschaltet werden. Es werden die Fernwartung und Fernbedienung ermöglicht und alle relevanten Informationen des Heizkessels angezeigt, weitere Heizkreise sowie Trinkwassererwärmung oder Wärme-Fernleitung können angesteuert werden.

Vorteile der Pelletkessel Vitoligno:

  • Wirkungsgrad: bis zu 95,1 %
  • Niedrigste Staub-Emissionswerte durch innovative Verbrennungstechnologie
  • Automatische Brennraumentaschung durch Lamellenrost aus Edelstahl für hohe Betriebssicherheit und lange Reinigungsintervalle
  • Automatische Entaschung verdichtet die Asche in die Aschebox - Entleerung der fahrbaren Aschebox nur ein- bis zweimal jährlich.
  • Geringer Stromverbrauch durch automatische Zündung mit keramischem Heizelement.
  • Ecotronic Regelung mit automatischer Funktionsüberwachung sowie Pufferladeregelung und Solarfunktion
  • Internetfähig durch Vitoconnect für Bedienung und Service über Viessmann Apps
  • Komfortable Bedienung über Viessmann App per Smartphone
  • Energieeffizienzklasse: A+

Technische Daten Vitoligno:

  • Nenn-Wärmeleistungsbereich 21 - 70 kW
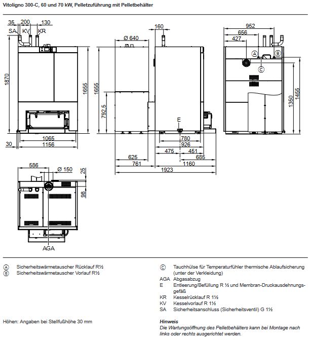
  • Abmessungen
  • Länge 1923 mm
  • Breite 1.156 mm
  • Höhe 1.655 mm
  • Gewicht 1.014 kg
  • Gesamtgewicht (Kessel mit Einschub) 1160 kg
  • Inhalt Kesselwasser 210 l
  • Zulässiger Betriebsdruck 3 bar
  • Wirkungsgrad bei Voll-Last bis 94,4%
  • Wirkungsgrad bei Teillast bis 92,4 %
  • Mittlere Abgastemperatur bei Voll-Last 128 °C
  • Mittlere Abgastemperaturbei Teillast 72 °C
  • Abgasanschluss Ø 150 mm
  • Technische Daten zur Bestimmung der Energieeffizienzklasse (ErP-Label)
  • Festbrennstoffkessel Energieeffizienzklasse A+
  • Nenn-Wärmeleistung 70 kW
  • Energieeffizienzindex 121
  • Raumheizungs-Jahresnutzungsgrad 82 %
  • Temperaturregler Temperaturregler Klasse II
  • Beitrag Raumheizungs-Energieeffizienz 2 %
  • Energieeffizienz Verbund (Heizung) 123 %
  • Energieeffizienzklasse Verbund (Heizung) A+ 

Beschreibung Pufferspeicher Vitocell 100-E:

  • Vielseitig einsetzbar in Heizsystemen mit mehreren Wärmeerzeugern und Wärmeverbrauchern durch mehrere Vorlauf- und Rücklaufanschlüsse sowie zusätzliche Anschlüsse für Mess-Stellen. Besonders geeignet in Verbindung mit Solar-Systemen, Wärme- pumpen und Festbrennstoffkesseln

 

Lieferumfang des Paketes:

  • Vitoligno 300-C 70,0 kW Holzpellets VL3C Ecotronic Einschub hinten
  • inkl. Sensoren
  • Infrarot-Lichtschranke zur Niveauüberwachung des Brennstoffs in der Brennkammer.
  • Lambdasonde
  • Kesseltemperatursensor Pt1000
  • Sicherheitstemperaturbegrenzer
  • Rücklauftemperatursensor Pt1000
  • Abgastemperatursensor Pt1000
  • Außentemperatursensor Pt1000
  • Tauchtemperatursensor für Speicher-Wassererwärmer
WEEE-Reg.-Nr.: DE 58723830

Allg. Sicherheitshinweise:

Zur Vermeidung von Körper- und Gesundheitsschäden sind die Montage, Erstinbetriebnahme, Inspektion, Wartung und Instandsetzung von autorisierten Fachkräften (Heizungs- / Sanitärfachbetrieb / Vertragsinstallationsunternehmen) vorzunehmen!

Bestimmungsgemäße Verwendung: Bitte beachten Sie die bei Installation und Montage beiliegende Installations-, Betriebs- und Wartungsanleitungen sowie Produkt-/Systemzulassungen aller Anlagenkomponenten. Bei Wärmeerzeugern ist es zum Beispiel regelmäßig der Fall, dass allein für diese Heizung zugelassene Abgastechnik zur Verwendung gelangen darf. Zur bestimmungsgemäßen Verwendung gehört gleichsam die Einhaltung der ebenfalls in o.g. Unterlagen enthaltenen Inspektions- und Wartungsbedingungen.

Elektrische Heizgeräte sowie Durchlauferhitzer mit Starkstromanschluß (400V) dürfen nur durch jeweiligen Netzbetreiber oder durch ein in das Installateurverzeichnis des Netzbetreibers eingetragenes Installationsunternehmen installiert werden!

Elektrogeräte mit Drei-Phasen-Wechselstrom-Anschluss (3~/400V) und "nicht-steckerfertigen Geräten" sind von einem Fachbetrieb zu installieren. Geräte mit einer Nennleistung von mehr als 12 kW müssen vor der Erstinstallation eine Zustimmung vom Netzbetrieber erhalten.

Installation, Inspektion, Wartung und Instandsetzung von Gasgeräten sowie Gaseinstellungen darf nur ein Fachhandwerker durchführen!

Herstellerinformationen

Viessmann Climate Solutions SE
Viessmannstraße 1
35108 Allendorf (Eder)
DE

Tel: 06452 70-0
E-Mail: info@viessmann.com
Art.Nr.:
174202582
Herst.Nr.:
VL3C085
EAN: 4054465011299
Lieferzeit:

ca. 5 Wochen

EEK Spektrum: A+++ -> D
EEK: a+
a+
a+++ d
Datenblatt
Versandkostenfrei

20.196,79 €*

inkl. 19% MwSt. zzgl. 0.00 € Versand

Produktinformationen "Viessmann Pelletkessel Vitoligno 300-C 70,0 kW Ecotronic Einschub hinten Pellets"

Viessmann Pelletkessel Vitoligno 300-C 70,0 kW Ecotronic Einschub hinten - Betriebsart: Saugsystem

Herstellerteilenummer: VL3C085

 

Beschreibung:

Der Vitoligno 300-C ist gemäß der DIN EN 303-5 (Heizkessel für feste Brennstoffe) geprüft und zugelassen sowie in die Kesselklasse 5 eingestuft. CE Kennzeichnung erfolgt nach europäischer Maschinenrichtlinie mit ständiger Qualitätskontrolle durch den TÜV. Die Einschubschnecke fördert den Brennstoff in die Brennkammer. Der Brennstoff wird automatisch durch ein energiesparendes Zündelement gezündet. Die Entgasung des Brennstoffs erfolgt auf dem von einem Flachgetriebemotor bewegten Doppeldrehlamellenrost. Die Brennkammer ist mit hochtemperaturfesten Siliciumcarbid-Elementen ausgekleidet und mit hochhitzebeständiger Wärmedämmung ummantelt. Die von der Feuerung abgegebenen Brenngase werden im Flammkanal mit Sekundärluft gemischt. Durch die Verengung des Durchmessers erfolgt eine wirksame Vermischung der Brenngase mit der Sekundärluft. Dadurch ist eine lange Ausbrandzeit und eine vollständige Verbrennung der Brenngase gewährleistet. Die Reinigung des Rosts erfolgt durch eine Drehbewegung (360°-Drehung), wodurch die Asche in die darunterliegende Entaschungsschnecke fällt und in die Aschebox transportiert wird (automatische Entaschung). Durch die Drehbewegung und mit Hilfe eines Reinigungskamms werden auch die Rostzwischenräume gereinigt. Im senkrecht stehenden Rohrwärmetauscher wird die Wärmeenergie der Brenngase auf das Kesselwasser übertragen. Der Rohrwärmetauscher wird durch Wirbulatoren automatisch und periodisch gereinigt. Gleichzeitig optimieren die Wirbulatoren den Wirkungsgrad des Heizkessels. Die anfallende Asche im Wärmetauscher wird über eine Schnecke in die Aschebox gefördert (automatische Entaschung des Wärmetauschers). Dadurch werden ein dauerhaft guter Wärmeübergang und lange Reinigungsintervalle ermöglicht. Der Heizkessel wird mit angebauter hocheffizienter Wärmedämmung und Verkleidung aus pulverbeschichtetem Stahlblech geliefert. Farbe der Verkleidung: vitosilber

Mit VIESSMANN Ecotronic, witterungsgeführte, digitale Kessel- und Heizkreisregelung für den Betrieb mit gleitend abgesenkter Kesselwassertemperatur und modulierender Leistungsregelung.

Regelung einer elektrischen Rücklauftemperaturanhebung, Ansteuerung der Kesselkreispumpe und Regelung des Heizwasser-Pufferspeichers bei Anlagen mit Heizwasser-Pufferspeicher. Mit Bedieneinheit mit mehrzeiliger, beleuchteter Displaydarstellung und Klartextunterstützung, vereinfachter Inbetriebnahme durch Inbetriebnahme-Assistent, Automatikfunktion für die Anpassung der Zeitprogramme für die Trinkwassererwärmung, automatischer Sommer-/Winterzeitumschaltung, kontrollierter Estrich-Aufheizung, Speichertemperaturregelung und integriertem Diagnosesystem und Sammelstörmeldung. Die Kesselkreisregelung Ecotronic kann bis zu drei Heizkreise mit Mischer, zwei Heizkreise mit Mischer und Trinkwassererwärmung oder einen Heizkreis mit Mischer, einen Solarkreis und Trinkwassererwärmung ansteuern - Mischeransteuerung nur in Verbindung mit Erweiterungssätzen (Zubehör). Ein weiterer vierter Heizkreis mit Mischer kann über KM-BUS angeschlossen werden. Heizkennlinien und Zeiträume für die Heizkreise, Temperatur-Sollwerte und Heizprogramme sind getrennt einstellbar. Internetfähig durch Vitoconnect (Zubehör) für Bedienung und Service über Viessmann Apps. Fernbedienungen Vitotrol 200-A (max. drei Vitotrol 200-A) oder Vitotrol 300-A (max. eine Vitotrol 300-A) sind für die Heizkreise anschließbar. Über die Funktionserweiterung Vitotrol 350-C (Zubehör) mit Touch-Display sind bis zu 20 weitere Funktionserweiterungen möglich. Die Vitotrol 350-C kann wahlweise als Raumbedienung, Regelkreiserweiterung oder als Kaskadenregler verwendet werden. Es können bis zu vier Festbrennstoffkessel in Kaskade geschaltet werden. Es werden die Fernwartung und Fernbedienung ermöglicht und alle relevanten Informationen des Heizkessels angezeigt, weitere Heizkreise sowie Trinkwassererwärmung oder Wärme-Fernleitung können angesteuert werden.

Vorteile der Pelletkessel Vitoligno:

  • Wirkungsgrad: bis zu 95,1 %
  • Niedrigste Staub-Emissionswerte durch innovative Verbrennungstechnologie
  • Automatische Brennraumentaschung durch Lamellenrost aus Edelstahl für hohe Betriebssicherheit und lange Reinigungsintervalle
  • Automatische Entaschung verdichtet die Asche in die Aschebox - Entleerung der fahrbaren Aschebox nur ein- bis zweimal jährlich.
  • Geringer Stromverbrauch durch automatische Zündung mit keramischem Heizelement.
  • Ecotronic Regelung mit automatischer Funktionsüberwachung sowie Pufferladeregelung und Solarfunktion
  • Internetfähig durch Vitoconnect für Bedienung und Service über Viessmann Apps
  • Komfortable Bedienung über Viessmann App per Smartphone
  • Energieeffizienzklasse: A+

Technische Daten Vitoligno:

  • Nenn-Wärmeleistungsbereich 21 - 70 kW
  • Abmessungen
  • Länge 1923 mm
  • Breite 1.156 mm
  • Höhe 1.655 mm
  • Gewicht 1.014 kg
  • Gesamtgewicht (Kessel mit Einschub) 1160 kg
  • Inhalt Kesselwasser 210 l
  • Zulässiger Betriebsdruck 3 bar
  • Wirkungsgrad bei Voll-Last bis 94,4%
  • Wirkungsgrad bei Teillast bis 92,4 %
  • Mittlere Abgastemperatur bei Voll-Last 128 °C
  • Mittlere Abgastemperaturbei Teillast 72 °C
  • Abgasanschluss Ø 150 mm
  • Technische Daten zur Bestimmung der Energieeffizienzklasse (ErP-Label)
  • Festbrennstoffkessel Energieeffizienzklasse A+
  • Nenn-Wärmeleistung 70 kW
  • Energieeffizienzindex 121
  • Raumheizungs-Jahresnutzungsgrad 82 %
  • Temperaturregler Temperaturregler Klasse II
  • Beitrag Raumheizungs-Energieeffizienz 2 %
  • Energieeffizienz Verbund (Heizung) 123 %
  • Energieeffizienzklasse Verbund (Heizung) A+ 

Beschreibung Pufferspeicher Vitocell 100-E:

  • Vielseitig einsetzbar in Heizsystemen mit mehreren Wärmeerzeugern und Wärmeverbrauchern durch mehrere Vorlauf- und Rücklaufanschlüsse sowie zusätzliche Anschlüsse für Mess-Stellen. Besonders geeignet in Verbindung mit Solar-Systemen, Wärme- pumpen und Festbrennstoffkesseln

 

Lieferumfang des Paketes:

  • Vitoligno 300-C 70,0 kW Holzpellets VL3C Ecotronic Einschub hinten
  • inkl. Sensoren
  • Infrarot-Lichtschranke zur Niveauüberwachung des Brennstoffs in der Brennkammer.
  • Lambdasonde
  • Kesseltemperatursensor Pt1000
  • Sicherheitstemperaturbegrenzer
  • Rücklauftemperatursensor Pt1000
  • Abgastemperatursensor Pt1000
  • Außentemperatursensor Pt1000
  • Tauchtemperatursensor für Speicher-Wassererwärmer
WEEE-Reg.-Nr.: DE 58723830

Allg. Sicherheitshinweise:

Zur Vermeidung von Körper- und Gesundheitsschäden sind die Montage, Erstinbetriebnahme, Inspektion, Wartung und Instandsetzung von autorisierten Fachkräften (Heizungs- / Sanitärfachbetrieb / Vertragsinstallationsunternehmen) vorzunehmen!

Bestimmungsgemäße Verwendung: Bitte beachten Sie die bei Installation und Montage beiliegende Installations-, Betriebs- und Wartungsanleitungen sowie Produkt-/Systemzulassungen aller Anlagenkomponenten. Bei Wärmeerzeugern ist es zum Beispiel regelmäßig der Fall, dass allein für diese Heizung zugelassene Abgastechnik zur Verwendung gelangen darf. Zur bestimmungsgemäßen Verwendung gehört gleichsam die Einhaltung der ebenfalls in o.g. Unterlagen enthaltenen Inspektions- und Wartungsbedingungen.

Elektrische Heizgeräte sowie Durchlauferhitzer mit Starkstromanschluß (400V) dürfen nur durch jeweiligen Netzbetreiber oder durch ein in das Installateurverzeichnis des Netzbetreibers eingetragenes Installationsunternehmen installiert werden!

Elektrogeräte mit Drei-Phasen-Wechselstrom-Anschluss (3~/400V) und "nicht-steckerfertigen Geräten" sind von einem Fachbetrieb zu installieren. Geräte mit einer Nennleistung von mehr als 12 kW müssen vor der Erstinstallation eine Zustimmung vom Netzbetrieber erhalten.

Installation, Inspektion, Wartung und Instandsetzung von Gasgeräten sowie Gaseinstellungen darf nur ein Fachhandwerker durchführen!

Herstellerinformationen

Viessmann Climate Solutions SE
Viessmannstraße 1
35108 Allendorf (Eder)
DE

Tel: 06452 70-0
E-Mail: info@viessmann.com

Ähnliche Artikel

Atmos robuste Spannschelle für 50 mm Saugschlauch 02.06.30
Atmos Spannschelle für Saugschlauch Artikelnummer: 02.06.30 Anwendung: Spannschelle für Saugschlauch, robuste und massive Ausführung, passend für 50 mm Saugschlauch Lieferumfang: Spannschelle

10,15 €*

Art.Nr.: 182198100

ca. 2-4 Werktage (Mo-Fr.)

ETA Verlängerungsbogen 45° verzinkt für Befüllsystem ETAbox 12312
ETA Verlängerungsbogen 45°,verzinkt für Befüllsystem ETAbox Herstellernummer: 12312 Beschreibung: Verlängerungsbogen 45 verz. für Sacksilo NW100 beiderseits Bördelrand mit beidseitigem Boerdelrand, je Ver- laengerungsstueck ist ein Spannring NW100 erforderlich. Lieferumfang ETA Verlängerungsbogen

23,46 €*

Art.Nr.: 182143931

ca. 2-4 Werktage (Mo-Fr.)

ETA Spannring mit Schnellverschluß zur Verlängerung/Bogen für Befüllsystem NW100
ETA Spannring mit Schnellverschluß zur Verlängerung/Bogen für Befüllsystem NW100 Herstellernummer: 12313-01 Beschreibung: Spannring NW100 zu Verlängerung/Bogen Sacksilo mit NR/SBR Dichtung - elektr. leitfähig, mit Schnellverschluss Lieferumfang ETA Spannring mit Schnellverschluß

24,05 €*

Art.Nr.: 182143753

ca. 2-4 Werktage (Mo-Fr.)

ETA Abgasfühler SH20-60 für 4-Zeilen Regelung Stecker geschraubt 001-4910-00
ETA Abgasfühler SH20-60 für 4-Zeilen Regelung Herstellernummer: 001-4910-00 Beschreibung: Abgasfühler 1,9m SH20-60 für 4-Zeilen Regelung, Stecker geschraubt Lieferumfang ETA Abgasfühler

27,26 €*

Art.Nr.: 182143831

ca. 2-4 Werktage (Mo-Fr.)

Atmos 1 Meter Rückbrandschlauch H0066 Fallschlauch Pelletkessel P Pelletbrenner
Atmos Pellet Fallschlauch H0066 Länge 1,0 m Beschreibung: Pellet Fallschlauch für ATMOS Pelletkessel zwischen Brenner und Förderschnecke. Technische Daten: Länge: 1,0 m (auch in 2 oder 3 Meter möglich) Innendurchmesser: 65 mm Herstellernummer: H0066 Passend für die Kessel P14, P21, P25, P31, P15, P20, P30, P40, D15P, D20P, D30P Kombikessel DC 18SP, DC 25SP, DC 32SP, DC 25GSP und DC 30GSP Lieferumfang: Atmos Fallschlauch H0066

31,64 €*

Art.Nr.: 141481584

ca. 2-4 Werktage (Mo-Fr.)

Sold Out
ETA Abgasfühler für 4-Zeilen Regelung für PE 7 - 25 und Hack BG 1+4
ETA Abgasfühler für 4-Zeilen Regelung für PE 7 - 25 und Hack BG 1+4 Herstellernummer: 032-4910-00 Beschreibung: Abgasfühler 1,9m für PE 7 - 25 und Hack BG 1-4 für 4-Zeilen Regelung, mit Mini-Fit-Stecker Lieferumfang ETA Abgasfühler

31,81 €*

Art.Nr.: 182143806

ca. 2-4 Werktage (Mo-Fr.)

ETA Verlängerungsrohr NW 100 L=500 mm verzinkt für Befüllsystem ETAbox
ETA Verlängerungsrohr NW 100 L=500 mm verzinkt für Befüllsystem ETAbox Herstellernummer: 12310 Beschreibung: Verlängerungsrohr verz. f. Sacksilo NW100 L= 500mm beiderseits Bördelrand mit beidseitigem Boerdelrand, je Ver- laengerungsstueck ist ein Spannring NW100 erforderlich. Lieferumfang ETA Verlängerungsrohr

35,72 €*

Art.Nr.: 182143924

ca. 2-4 Werktage (Mo-Fr.)

ETA Schlauchklemme für Pelletsförderschlauch NW 51 (2 Stück)
ETA Schlauchklemme für Pelletsförderschlauch NW 51 (2 Stück) Herstellernummer: 12257 Beschreibung: Klemmen-Set für Saugschlauch ab 60 kW, NW 59-65 bestehend aus 2 Stk. Schlauchklemmen NW 59-65 Lieferumfang Schlauchklemme (2 Stück)

Inhalt: 2 Stk (22,91 €* / 1 Stk)

45,82 €*

Art.Nr.: 182192481

ca. 2-4 Werktage (Mo-Fr.)

Fröling Pufferspeichermanagement 2 Tauchfühler mit 5 m Kabel ohne Tauchhülsen
Fröling Pufferspeichermanagement 2 Tauchfühler mit 5 m Kabel ohne Tauchhülsen Herstellerteilenummer: 18640A Beschreibung: Fühlerset zur Erfassung der Pufferspeichertemperaturen. Anschluss in Kesselregelung von Fröling Holzvergaser und Pelletskesseln Lieferumfang: 2 Tauchfühler mit 5 m Kabel ohne Tauchhülsen

89,08 €*

Art.Nr.: 170662555

ca. 2-4 Werktage (Mo-Fr.)

Thermische Ablaufsicherung ETA Tauchhülse R 1/2" x 145 mm Anschluss DN 20 (3/4")
Thermische Ablaufsicherung ETA Tauchhülse R 1/2" x 145 mm Anschluss DN 20 (3/4") Herstellernummer: 19060-01 Verwendung in den Kesseln: Thermische Ablaufsicherung Anschluss 3/4" 10bar, kv=1,8m/h 2000mm Kapillare Tauchhülse R1/2"x145mm für Notkühlung des Kessels über Kesselsicherheitswärmetauscher oder als thermisches Sprinklerventil für den Fallschacht (SLE).

101,90 €*

Art.Nr.: 182167644

ca. 2-4 Werktage (Mo-Fr.)

ETA Thermische Ablaufsicherung Tauchhülse R 1/2" x 145 mm Anschluss DN 20 (3/4")
ETA Thermische Ablaufsicherung Tauchhülse R 1/2" x 145 mm Anschluss DN 20 (3/4") Herstellernummer: 19060-01 Beschreibung: ETA thermische Ablaufsicherung Anschluss DN 20 (3/4") Betriebsdruck: 10 bar kv=1,8m/h 2000mm Kapillare mit Tauchhülse R1/2" x 145mm Fuer Notkuehlung des Kessels ueberKesselsicherheitswaermetauscher oder als thermisches Sprinklerventil fuer den Fallschacht (SLE) Lieferumfang ETA Thermische Ablaufsicherung

104,84 €*

Art.Nr.: 182143787

ca. 2-4 Werktage (Mo-Fr.)

Sold Out
Atmos Nachfüllautomatik zur Ansteuerung Förderschnecke indirekte Raumaustragung
Nachfüllautomatik - Box zur Ansteuerung der Förderschnecke Artikelnummer: 01.30.51 Beschreibung: Ein kapazitiver Sensor erkennt das Unterschreiten des Pelletfüllstandes im Zwischensilo und lässt für eine definierte Zeit die Austragungsschnecke arbeiten, um so das Silo wieder zu füllen, aus dem die Dosierförderschnecke des Kessels die Pellets entnimmt Technische Daten: staubunempfindlicher kapazitiver Sensor Laufzeit von 1s bis 40h einstellbar Lieferumfang: Nachfüllautomatik - Box zur Ansteuerung der Förderschnecke Montage- und Betriebsanleitung

118,83 €*

Art.Nr.: 183297169

ca. 1-2 Wochen