Betriebsferien vom 22.12.2025 - 06.01.2026. Bestellungen werden erst ab dem 07.01.2026 ausgeliefert.

Viessmann Vitocal 150-A Luft/Wasser-Wärmepumpe 9,7 kW, AWO-M-E-AC 151.A10 230V Z023206

Art.Nr.:
156828632
Herst.Nr.:
Z023206
EAN: 4059584304239
Lieferzeit:

ca. 2-4 Werktage (Mo-Fr.)

EEK Spektrum: A+++ -> D
EEK: a++
a++
a+++ d
Datenblatt
Versandkostenfrei

10.105,80 €*

inkl. 19% MwSt. zzgl. 0.00 € Versand

Produktinformationen "Viessmann Vitocal 150-A Luft/Wasser-Wärmepumpe 9,7 kW, AWO-M-E-AC 151.A10 230V Z023206"

Viessmann Vitocal 150-A AWO-M-E-AC 151.A10 - Luft/Wasser-Wärmepumpe in Monoblock-Bauweise

Herstellerteilenummer: Z023206

Beschreibung:

  • Geringe Betriebskosten durch hohen COP (Coefficient of Performance)
  • Leistungsregelung und DC-Inverter für hohe Effizienz im Teillastbetrieb
  • Eine maximale Vorlauftemperatur bis 70 °C bei einer Außentemperatur von -10 °C ermöglicht den Einsatz sowohl im Neubau als auch in der Modernisierung.
  • Selbstoptimierende Regelung des Volumenstroms über Viessmann Hydro AutoControl
  • Umweltfreundliches, natürliches Kältemittel R290 mit einem besonders niedrigen GWP von 0,02 (GWP = Global Warming Potential)
  • Komfortabel durch reversible Ausführung für Heizen und Kühlen
  • Besonders leise im Betrieb durch Advanced acoustics design+ (AAD+)
  • Internetfähig durch integriertes WLAN oder LAN (Zubehör)
  • Bedienung, Optimierung, Wartung und Service über ViCare App und ViGuide
  • Geführte Inbetriebnahme über ViGuide
  • Einzelraumregelung mit Komponenten aus ViCare Smart Climate (Zubehör)
  • Witterungsgeführte Regelung mit optionaler Raumaufschaltung mit Vitotrol Fernbedienung (Zubehör)

Lieferumfang/Ausstattung:

Modulierende Wärmepumpe bestehend aus Außen- und Inneneinheit für Heizung, Kühlung und Warmwasser.

Außeneinheit:

  • Mit DC-Inverter-Technologie zur stufenlosen Leistungsregelung, für einen optimalen Betrieb unter allen Betriebsbedingungen
  • Geräusch- und schwingungsarm durch drehzahlgeregelten Doppelrollkolben-Verdichter
  • Mit elektronischem Expansionsventil zur Erhöhung der Jahresarbeitszahl und drehzahlgesteuerten Axialventilatoren
  • Energieeffiziente Abtauung über Kreislaufumkehr. Korrosionsbeständiger, wasserabweisender Verdampfer mit Blue Fin-Beschichtung und geschwungenen Verdampferlamellen zur Erhöhung der Effizienz sowie effizientem asymmetrischen Edelstahl-Plattenwärmetauscher (1.4401/1.4301) zur Wärmeabgabe an das Heizsystem
  • Mit integriertem Wasserfilter zum Schutz des Verflüssigers vor Verunreinigungen

Tragehilfen für die Außeneinheit im Lieferumfang.

Hinweis!
Das Kältemittel R290 ist ein leicht entflammbares Kältemittel (Sicherheitsgruppe A3 gemäß ANSI/ASHRAE Standard 34).
Arbeiten am in der Außeneinheit verbauten Kältekreis dürfen aus Sicherheitsgründen nur durch den Technischen Dienst von Viessmann erfolgen.

Inneneinheit:

  • Mit Hydro AutoControl Hydraulik zur Bereitstellung der erforderlichen Abtauenergie und Sicherstellung der erforderlichen Mindest-Umlaufmenge im Wärmepumpen Kreis
  • Mit eingebauter Hocheffizienz-Umwälzpumpe für den Heizkreis, Abtaupuffer 16 l, Bypassfunktion, Heizwasser Durchlauferhitzer, Ausdehnungsgefäß 18 l, 4/3-Wege-Ventil, Sicherheitsventil, Volumenstromerfassung, Außentemperatursensor (leitungsgebunden) und steckbarer Anschlussverrohrung aus Kupfer (Glattrohr) und Montageschiene zur Befestigung der Inneneinheit an der Wand

Montage der Außeneinheit auf Boden- oder Wandkonsole (Zubehör), Inneneinheit wandhängend. Verbindung zwischen Außen- und Inneneinheit mit geeigneten wassergefüllten Verbindungsleitungen (bauseits) und Anschluss-Sets (Zubehör) herstellen. Für Heizungsanlagen mit bis zu 4 Heiz-Kühlkreisen. Mit witterungsgeführter, digitaler Wärmepumpen- und Heiz-/Kühlkreis Regelung

  • Bedienung über 7-Zoll-Farb-Touchdisplay mit Klartext- und Grafikanzeige, Inbetriebnahme-Assistenten, kontextbezogener Hilfe, Anzeigen für Energieverbräuche sowie alternativ Bedienung über mobiles Endgerät
  • Zeiträume für den Heizkreis oder Heiz-/Kühlkreis, Trinkwassererwärmung und Zirkulation des Trinkwassers getrennt einstellbar
  • Zyklischer Taktbetrieb für Trinkwasserzirkulation einstellbar
  • Mit Speichertemperaturregelung
  • Erhöhte Trinkwasserhygiene durch Aufheizen auf einen erhöhten Trinkwassertemperatur-Sollwert möglich.
  • Mit automatischer Sommer-/Winterzeitumstellung und kontrollierter Estrichtrocknung
  • Einstellungen für Betriebsarten, Party-Mode, Ferienprogramm, Ferien-zu-Hause-Programm, bedarfsabhängige Heizkreispumpen sowie Sommersparbetrieb und variable Heizgrenze
  • Mit Ansteuerung eines zusätzlichen Wärmeerzeugers, z. B. Öl-/Gas-Heizkessel (Zubehör)
  • Hybrid Pro Control in Verbindung mit einem zusätzlichen Wärmeerzeuger (Zubehör)
  • Möglichkeit zur Einstellung der Raumtemperatur (3 Raumtemperatur-Niveaus) und der Trinkwassertemperatur und zur Abfrage von Temperaturen
  • Mit Smart Grid Regelfunktion EVU-Sperre, geräuschreduzierter Betrieb und Notbetrieb.
  • Integrierter Wasserdrucksensor zur Messung des Anlagendrucks
  • Kommunikationsfähig über CAN-BUS, PlusBus, WLAN, LAN (Zubehör)
  • Mit im Gerät integriertem Kommunikationsmodul. Fernbedienung und Monitoring des Geräts über Smartphone mit der ViCare App in Verbindung mit integrierter Internetschnittstelle und bauseitigem Internetzugang über WLAN oder LAN (Zubehör) möglich
  • Gerät enthält Anlagenschalter, Maximaltemperaturbegrenzer, Temperaturwächter und Temperaturbegrenzer, Betriebs- und Störungsanzeige

Technische Daten Wärmepumpe:

  • Bei Betriebspunkt A7/W35:
    • Nenn-Wärmeleistung: 7.3 kW
    • Elektr. Leistungsaufnahme: 1,46 kW
    • Leistungszahl (COP): 5,0
  • Bei Betriebspunkt A -7/W35:
    • Nenn-Wärmeleistung: 9.7 kW
    • Elektr. Leistungsaufnahme: 3,23 kW
    • Leistungszahl (COP): 3,0
  • Bei Betriebspunkt A35/W18:
    • Kühlleistung: 9,6 kW
    • Elektr. Leistungsaufnahme: 2,18 kW
    • Leistungszahl (EER): 4,4
  • Lufteintrittstemperatur Heizbetrieb:
    • Lufttemperatur min.: -20 °C
    • Lufttemperatur max.: 40 °C
  • Lufteintrittstemperatur Kühlbetrieb:
    • Lufttemperatur min.: 10 °C
    • Lufttemperatur max.: 45 °C
  • Heizwasser (Sekundärkreis):
    • Max. externer Druckverlust (RFH) bei Mindestvolumenstrom 1000 l/h: 600 mbar
    • Max. externer Druckverlust (RFH) bei Mindestvolumenstrom 1000 l/h: 60 MPa
    • Max. Vorlauftemperatur: 70 °C
    • Zul. Betriebsdruck: 3 bar
    • Zul. Betriebsdruck: 0,3 MPa
  • Elektrische Werte Außeneinheit:
    • Nennspannung: Verdichter: 1/N/PE 230 V/50 Hz
    • Anlaufstrom Verdichter: < 10 A
  • Elektrische Werte Inneneinheit:
    • Nennspannung Regelung: 1/N/PE 230 V/50 Hz
    • Absicherung intern: T 6,3 A
    • Elektr. Leistungsaufnahme: Sekundärpumpe (PWM) 60 W
    • Energieeffizienzindex (EEI) Sekundärpumpe: 0,2
    • Nennspannung: 1/N/PE 230 V/50 Hz
    • Oder Nennspannung: 3/N/PE 400 V/50 Hz
    • Heizleistung: 8 kW
  • Kältemittel R290:
    • Kältemittel-Füllmenge: 2,0 kg
    • Treibhauspotenzial (GWP): 0,02
    • CO2-Äquivalent: 0,00004 t
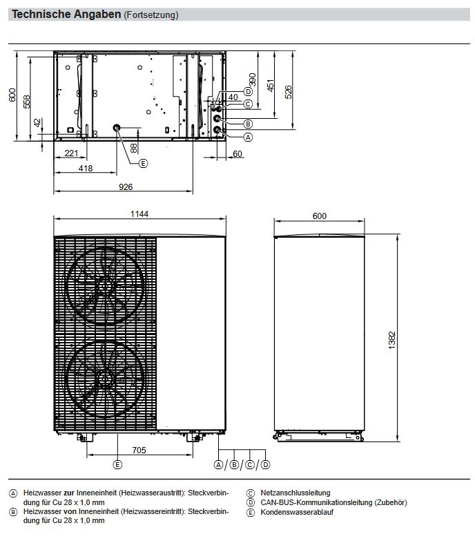
  • Abmessungen Außeneinheit:
    • Länge: 600 mm
    • Breite: 1144 mm
    • Höhe: 1382 mm
    • Gewicht: 191 kg
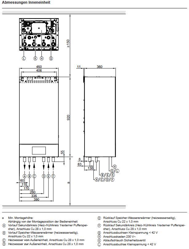
  • Abmessungen Inneneinheit:
    • Länge: 360 mm
    • Breite: 450 mm
    • Höhe: 920 mm
    • Gewicht: 47 kg
  • Anschlüsse:
    • Heizwasservorlauf: CU 28 x 1
    • Heizwasserrücklauf: CU 28 x 1
    • Vorlauf Speicher-Wassererwärmer: CU 22 x 1
    • Rücklauf Speicher-Wassererwärmer: CU 22 x 1
  • Technische Daten zur Bestimmung der Energieeffizienzklasse (ErP-Label):
    • Jahreszeitbedingte Raumheizungs-Energieeffizienzklasse: A+++
    • Jahreszeitbedingte Raumheizungs-Energieeffizienz: 197 %
    • Wärmenennleistung: 10 kW
    • Jährlicher Energieverbrauch: 4055 kWh
    • Jahreszeitbedingte Raumheizungs-Energieeffizienzklasse: A+++
    • Jahreszeitbedingte Raumheizungs-Energieeffizienz: 152 %
    • Wärmenennleistung: 10 kW
    • Jährlicher Energieverbrauch: 4943 kWh
    • Jahreszeitbedingte Raumheizungs-Energieeffizienz: 165 %
    • Wärmenennleistung: 8 kW
    • Jährlicher Energieverbrauch: 4988 kWh
    • Jahreszeitbedingte Raumheizungs-Energieeffizienz: 131 %
    • Wärmenennleistung: 8 kW
    • Jährlicher Energieverbrauch: 5868 kWh
    • Jahreszeitbedingte Raumheizungs-Energieeffizienz: 243 %
    • Wärmenennleistung: 5 kW
    • Jährlicher Energieverbrauch: 1145 kWh
    • Jahreszeitbedingte Raumheizungs-Energieeffizienz: 172 %
    • Wärmenennleistung: 5 kW
    • Jährlicher Energieverbrauch: 1419 kWh
    • Schallleistungspegel Außen: 54 dB
    • Schallleistungspegel Innen: 40 dB

Mit witterungsgeführter, digitaler Wärmepumpen- und Heiz-/Kühlkreis Regelung:

    • Bedienung über 7-Zoll-Farb-Touchdisplay mit Klartext- und Grafikanzeige, Inbetriebnahme-Assistenten, kontextbezogener Hilfe, Anzeigen für Energieverbräuche sowie alternativ Bedienung über mobiles Endgerätli>
    • Zeiträume für den Heizkreis oder Heiz-/Kühlkreis, Trinkwassererwärmung und Zirkulation des Trinkwassers getrennt einstellbar
    • Zyklischer Taktbetrieb für Trinkwasserzirkulation einstellbar
    • Mit Speichertemperaturregelung
    • Erhöhte Trinkwasserhygiene durch Aufheizen auf einen erhöhten Trinkwassertemperatur-Sollwert möglich
    • Mit automatischer Sommer-/Winterzeitumstellung und kontrollierter Estrichtrocknung
    • Einstellungen für Betriebsarten, Party-Mode, Ferienprogramm, Ferien-zu-Hause-Programm, bedarfsabhängige Heizkreispumpen sowie Sommersparbetrieb und variable Heizgrenze
    • Möglichkeit zur Einstellung der Raumtemperatur (3 Raumtemperatur-Niveaus) und der Trinkwassertemperatur und zur Abfrage von Temperaturen
    • Mit Smart Grid Regelfunktion EVU-Sperre, geräuschreduzierter Betrieb und Notbetrieb
    • Integrierter Wasserdrucksensor zur Messung des Anlagendrucks
    • Kommunikationsfähig über CAN-BUS, PlusBus, WLAN oder LAN (Zubehör) und Service Link (Low-Power-Funk)
    • Mit im Gerät integriertem Kommunikationsmodul. Fernbedienung und Monitoring des Geräts über Smartphone mit der ViCare App in Verbindung mit integrierter Internetschnittstelle und bauseitigem Internetzugang über WLAN oder LAN (Zubehör) möglich
    • Gerät enthält Anlagenschalter, Maximaltemperaturbegrenzer, Temperaturwächter und Temperaturbegrenzer, Betriebs- und Störungsanzeige
  • WEEE-Reg.-Nr.: DE 58723830

    Allg. Sicherheitshinweise:

    Zur Vermeidung von Körper- und Gesundheitsschäden sind die Montage, Erstinbetriebnahme, Inspektion, Wartung und Instandsetzung von autorisierten Fachkräften (Heizungs- / Sanitärfachbetrieb / Vertragsinstallationsunternehmen) vorzunehmen!

    Bestimmungsgemäße Verwendung: Bitte beachten Sie die bei Installation und Montage beiliegende Installations-, Betriebs- und Wartungsanleitungen sowie Produkt-/Systemzulassungen aller Anlagenkomponenten. Bei Wärmeerzeugern ist es zum Beispiel regelmäßig der Fall, dass allein für diese Heizung zugelassene Abgastechnik zur Verwendung gelangen darf. Zur bestimmungsgemäßen Verwendung gehört gleichsam die Einhaltung der ebenfalls in o.g. Unterlagen enthaltenen Inspektions- und Wartungsbedingungen.

    Elektrische Heizgeräte sowie Durchlauferhitzer mit Starkstromanschluß (400V) dürfen nur durch jeweiligen Netzbetreiber oder durch ein in das Installateurverzeichnis des Netzbetreibers eingetragenes Installationsunternehmen installiert werden!

    Elektrogeräte mit Drei-Phasen-Wechselstrom-Anschluss (3~/400V) und "nicht-steckerfertigen Geräten" sind von einem Fachbetrieb zu installieren. Geräte mit einer Nennleistung von mehr als 12 kW müssen vor der Erstinstallation eine Zustimmung vom Netzbetrieber erhalten.

    Installation, Inspektion, Wartung und Instandsetzung von Gasgeräten sowie Gaseinstellungen darf nur ein Fachhandwerker durchführen!

    Herstellerinformationen

    Viessmann Climate Solutions SE
    Viessmannstraße 1
    35108 Allendorf (Eder)
    DE

    Tel: 06452 70-0
    E-Mail: info@viessmann.com
    Art.Nr.:
    156828632
    Herst.Nr.:
    Z023206
    EAN: 4059584304239
    Lieferzeit:

    ca. 2-4 Werktage (Mo-Fr.)

    EEK Spektrum: A+++ -> D
    EEK: a++
    a++
    a+++ d
    Datenblatt
    Versandkostenfrei

    10.105,80 €*

    inkl. 19% MwSt. zzgl. 0.00 € Versand

    Produktinformationen "Viessmann Vitocal 150-A Luft/Wasser-Wärmepumpe 9,7 kW, AWO-M-E-AC 151.A10 230V Z023206"

    Viessmann Vitocal 150-A AWO-M-E-AC 151.A10 - Luft/Wasser-Wärmepumpe in Monoblock-Bauweise

    Herstellerteilenummer: Z023206

    Beschreibung:

    • Geringe Betriebskosten durch hohen COP (Coefficient of Performance)
    • Leistungsregelung und DC-Inverter für hohe Effizienz im Teillastbetrieb
    • Eine maximale Vorlauftemperatur bis 70 °C bei einer Außentemperatur von -10 °C ermöglicht den Einsatz sowohl im Neubau als auch in der Modernisierung.
    • Selbstoptimierende Regelung des Volumenstroms über Viessmann Hydro AutoControl
    • Umweltfreundliches, natürliches Kältemittel R290 mit einem besonders niedrigen GWP von 0,02 (GWP = Global Warming Potential)
    • Komfortabel durch reversible Ausführung für Heizen und Kühlen
    • Besonders leise im Betrieb durch Advanced acoustics design+ (AAD+)
    • Internetfähig durch integriertes WLAN oder LAN (Zubehör)
    • Bedienung, Optimierung, Wartung und Service über ViCare App und ViGuide
    • Geführte Inbetriebnahme über ViGuide
    • Einzelraumregelung mit Komponenten aus ViCare Smart Climate (Zubehör)
    • Witterungsgeführte Regelung mit optionaler Raumaufschaltung mit Vitotrol Fernbedienung (Zubehör)

    Lieferumfang/Ausstattung:

    Modulierende Wärmepumpe bestehend aus Außen- und Inneneinheit für Heizung, Kühlung und Warmwasser.

    Außeneinheit:

    • Mit DC-Inverter-Technologie zur stufenlosen Leistungsregelung, für einen optimalen Betrieb unter allen Betriebsbedingungen
    • Geräusch- und schwingungsarm durch drehzahlgeregelten Doppelrollkolben-Verdichter
    • Mit elektronischem Expansionsventil zur Erhöhung der Jahresarbeitszahl und drehzahlgesteuerten Axialventilatoren
    • Energieeffiziente Abtauung über Kreislaufumkehr. Korrosionsbeständiger, wasserabweisender Verdampfer mit Blue Fin-Beschichtung und geschwungenen Verdampferlamellen zur Erhöhung der Effizienz sowie effizientem asymmetrischen Edelstahl-Plattenwärmetauscher (1.4401/1.4301) zur Wärmeabgabe an das Heizsystem
    • Mit integriertem Wasserfilter zum Schutz des Verflüssigers vor Verunreinigungen

    Tragehilfen für die Außeneinheit im Lieferumfang.

    Hinweis!
    Das Kältemittel R290 ist ein leicht entflammbares Kältemittel (Sicherheitsgruppe A3 gemäß ANSI/ASHRAE Standard 34).
    Arbeiten am in der Außeneinheit verbauten Kältekreis dürfen aus Sicherheitsgründen nur durch den Technischen Dienst von Viessmann erfolgen.

    Inneneinheit:

    • Mit Hydro AutoControl Hydraulik zur Bereitstellung der erforderlichen Abtauenergie und Sicherstellung der erforderlichen Mindest-Umlaufmenge im Wärmepumpen Kreis
    • Mit eingebauter Hocheffizienz-Umwälzpumpe für den Heizkreis, Abtaupuffer 16 l, Bypassfunktion, Heizwasser Durchlauferhitzer, Ausdehnungsgefäß 18 l, 4/3-Wege-Ventil, Sicherheitsventil, Volumenstromerfassung, Außentemperatursensor (leitungsgebunden) und steckbarer Anschlussverrohrung aus Kupfer (Glattrohr) und Montageschiene zur Befestigung der Inneneinheit an der Wand

    Montage der Außeneinheit auf Boden- oder Wandkonsole (Zubehör), Inneneinheit wandhängend. Verbindung zwischen Außen- und Inneneinheit mit geeigneten wassergefüllten Verbindungsleitungen (bauseits) und Anschluss-Sets (Zubehör) herstellen. Für Heizungsanlagen mit bis zu 4 Heiz-Kühlkreisen. Mit witterungsgeführter, digitaler Wärmepumpen- und Heiz-/Kühlkreis Regelung

    • Bedienung über 7-Zoll-Farb-Touchdisplay mit Klartext- und Grafikanzeige, Inbetriebnahme-Assistenten, kontextbezogener Hilfe, Anzeigen für Energieverbräuche sowie alternativ Bedienung über mobiles Endgerät
    • Zeiträume für den Heizkreis oder Heiz-/Kühlkreis, Trinkwassererwärmung und Zirkulation des Trinkwassers getrennt einstellbar
    • Zyklischer Taktbetrieb für Trinkwasserzirkulation einstellbar
    • Mit Speichertemperaturregelung
    • Erhöhte Trinkwasserhygiene durch Aufheizen auf einen erhöhten Trinkwassertemperatur-Sollwert möglich.
    • Mit automatischer Sommer-/Winterzeitumstellung und kontrollierter Estrichtrocknung
    • Einstellungen für Betriebsarten, Party-Mode, Ferienprogramm, Ferien-zu-Hause-Programm, bedarfsabhängige Heizkreispumpen sowie Sommersparbetrieb und variable Heizgrenze
    • Mit Ansteuerung eines zusätzlichen Wärmeerzeugers, z. B. Öl-/Gas-Heizkessel (Zubehör)
    • Hybrid Pro Control in Verbindung mit einem zusätzlichen Wärmeerzeuger (Zubehör)
    • Möglichkeit zur Einstellung der Raumtemperatur (3 Raumtemperatur-Niveaus) und der Trinkwassertemperatur und zur Abfrage von Temperaturen
    • Mit Smart Grid Regelfunktion EVU-Sperre, geräuschreduzierter Betrieb und Notbetrieb.
    • Integrierter Wasserdrucksensor zur Messung des Anlagendrucks
    • Kommunikationsfähig über CAN-BUS, PlusBus, WLAN, LAN (Zubehör)
    • Mit im Gerät integriertem Kommunikationsmodul. Fernbedienung und Monitoring des Geräts über Smartphone mit der ViCare App in Verbindung mit integrierter Internetschnittstelle und bauseitigem Internetzugang über WLAN oder LAN (Zubehör) möglich
    • Gerät enthält Anlagenschalter, Maximaltemperaturbegrenzer, Temperaturwächter und Temperaturbegrenzer, Betriebs- und Störungsanzeige

    Technische Daten Wärmepumpe:

    • Bei Betriebspunkt A7/W35:
      • Nenn-Wärmeleistung: 7.3 kW
      • Elektr. Leistungsaufnahme: 1,46 kW
      • Leistungszahl (COP): 5,0
    • Bei Betriebspunkt A -7/W35:
      • Nenn-Wärmeleistung: 9.7 kW
      • Elektr. Leistungsaufnahme: 3,23 kW
      • Leistungszahl (COP): 3,0
    • Bei Betriebspunkt A35/W18:
      • Kühlleistung: 9,6 kW
      • Elektr. Leistungsaufnahme: 2,18 kW
      • Leistungszahl (EER): 4,4
    • Lufteintrittstemperatur Heizbetrieb:
      • Lufttemperatur min.: -20 °C
      • Lufttemperatur max.: 40 °C
    • Lufteintrittstemperatur Kühlbetrieb:
      • Lufttemperatur min.: 10 °C
      • Lufttemperatur max.: 45 °C
    • Heizwasser (Sekundärkreis):
      • Max. externer Druckverlust (RFH) bei Mindestvolumenstrom 1000 l/h: 600 mbar
      • Max. externer Druckverlust (RFH) bei Mindestvolumenstrom 1000 l/h: 60 MPa
      • Max. Vorlauftemperatur: 70 °C
      • Zul. Betriebsdruck: 3 bar
      • Zul. Betriebsdruck: 0,3 MPa
    • Elektrische Werte Außeneinheit:
      • Nennspannung: Verdichter: 1/N/PE 230 V/50 Hz
      • Anlaufstrom Verdichter: < 10 A
    • Elektrische Werte Inneneinheit:
      • Nennspannung Regelung: 1/N/PE 230 V/50 Hz
      • Absicherung intern: T 6,3 A
      • Elektr. Leistungsaufnahme: Sekundärpumpe (PWM) 60 W
      • Energieeffizienzindex (EEI) Sekundärpumpe: 0,2
      • Nennspannung: 1/N/PE 230 V/50 Hz
      • Oder Nennspannung: 3/N/PE 400 V/50 Hz
      • Heizleistung: 8 kW
    • Kältemittel R290:
      • Kältemittel-Füllmenge: 2,0 kg
      • Treibhauspotenzial (GWP): 0,02
      • CO2-Äquivalent: 0,00004 t
    • Abmessungen Außeneinheit:
      • Länge: 600 mm
      • Breite: 1144 mm
      • Höhe: 1382 mm
      • Gewicht: 191 kg
    • Abmessungen Inneneinheit:
      • Länge: 360 mm
      • Breite: 450 mm
      • Höhe: 920 mm
      • Gewicht: 47 kg
    • Anschlüsse:
      • Heizwasservorlauf: CU 28 x 1
      • Heizwasserrücklauf: CU 28 x 1
      • Vorlauf Speicher-Wassererwärmer: CU 22 x 1
      • Rücklauf Speicher-Wassererwärmer: CU 22 x 1
    • Technische Daten zur Bestimmung der Energieeffizienzklasse (ErP-Label):
      • Jahreszeitbedingte Raumheizungs-Energieeffizienzklasse: A+++
      • Jahreszeitbedingte Raumheizungs-Energieeffizienz: 197 %
      • Wärmenennleistung: 10 kW
      • Jährlicher Energieverbrauch: 4055 kWh
      • Jahreszeitbedingte Raumheizungs-Energieeffizienzklasse: A+++
      • Jahreszeitbedingte Raumheizungs-Energieeffizienz: 152 %
      • Wärmenennleistung: 10 kW
      • Jährlicher Energieverbrauch: 4943 kWh
      • Jahreszeitbedingte Raumheizungs-Energieeffizienz: 165 %
      • Wärmenennleistung: 8 kW
      • Jährlicher Energieverbrauch: 4988 kWh
      • Jahreszeitbedingte Raumheizungs-Energieeffizienz: 131 %
      • Wärmenennleistung: 8 kW
      • Jährlicher Energieverbrauch: 5868 kWh
      • Jahreszeitbedingte Raumheizungs-Energieeffizienz: 243 %
      • Wärmenennleistung: 5 kW
      • Jährlicher Energieverbrauch: 1145 kWh
      • Jahreszeitbedingte Raumheizungs-Energieeffizienz: 172 %
      • Wärmenennleistung: 5 kW
      • Jährlicher Energieverbrauch: 1419 kWh
      • Schallleistungspegel Außen: 54 dB
      • Schallleistungspegel Innen: 40 dB

    Mit witterungsgeführter, digitaler Wärmepumpen- und Heiz-/Kühlkreis Regelung:

    • Bedienung über 7-Zoll-Farb-Touchdisplay mit Klartext- und Grafikanzeige, Inbetriebnahme-Assistenten, kontextbezogener Hilfe, Anzeigen für Energieverbräuche sowie alternativ Bedienung über mobiles Endgerätli>
    • Zeiträume für den Heizkreis oder Heiz-/Kühlkreis, Trinkwassererwärmung und Zirkulation des Trinkwassers getrennt einstellbar
    • Zyklischer Taktbetrieb für Trinkwasserzirkulation einstellbar
    • Mit Speichertemperaturregelung
    • Erhöhte Trinkwasserhygiene durch Aufheizen auf einen erhöhten Trinkwassertemperatur-Sollwert möglich
    • Mit automatischer Sommer-/Winterzeitumstellung und kontrollierter Estrichtrocknung
    • Einstellungen für Betriebsarten, Party-Mode, Ferienprogramm, Ferien-zu-Hause-Programm, bedarfsabhängige Heizkreispumpen sowie Sommersparbetrieb und variable Heizgrenze
    • Möglichkeit zur Einstellung der Raumtemperatur (3 Raumtemperatur-Niveaus) und der Trinkwassertemperatur und zur Abfrage von Temperaturen
    • Mit Smart Grid Regelfunktion EVU-Sperre, geräuschreduzierter Betrieb und Notbetrieb
    • Integrierter Wasserdrucksensor zur Messung des Anlagendrucks
    • Kommunikationsfähig über CAN-BUS, PlusBus, WLAN oder LAN (Zubehör) und Service Link (Low-Power-Funk)
    • Mit im Gerät integriertem Kommunikationsmodul. Fernbedienung und Monitoring des Geräts über Smartphone mit der ViCare App in Verbindung mit integrierter Internetschnittstelle und bauseitigem Internetzugang über WLAN oder LAN (Zubehör) möglich
    • Gerät enthält Anlagenschalter, Maximaltemperaturbegrenzer, Temperaturwächter und Temperaturbegrenzer, Betriebs- und Störungsanzeige
  • WEEE-Reg.-Nr.: DE 58723830

    Allg. Sicherheitshinweise:

    Zur Vermeidung von Körper- und Gesundheitsschäden sind die Montage, Erstinbetriebnahme, Inspektion, Wartung und Instandsetzung von autorisierten Fachkräften (Heizungs- / Sanitärfachbetrieb / Vertragsinstallationsunternehmen) vorzunehmen!

    Bestimmungsgemäße Verwendung: Bitte beachten Sie die bei Installation und Montage beiliegende Installations-, Betriebs- und Wartungsanleitungen sowie Produkt-/Systemzulassungen aller Anlagenkomponenten. Bei Wärmeerzeugern ist es zum Beispiel regelmäßig der Fall, dass allein für diese Heizung zugelassene Abgastechnik zur Verwendung gelangen darf. Zur bestimmungsgemäßen Verwendung gehört gleichsam die Einhaltung der ebenfalls in o.g. Unterlagen enthaltenen Inspektions- und Wartungsbedingungen.

    Elektrische Heizgeräte sowie Durchlauferhitzer mit Starkstromanschluß (400V) dürfen nur durch jeweiligen Netzbetreiber oder durch ein in das Installateurverzeichnis des Netzbetreibers eingetragenes Installationsunternehmen installiert werden!

    Elektrogeräte mit Drei-Phasen-Wechselstrom-Anschluss (3~/400V) und "nicht-steckerfertigen Geräten" sind von einem Fachbetrieb zu installieren. Geräte mit einer Nennleistung von mehr als 12 kW müssen vor der Erstinstallation eine Zustimmung vom Netzbetrieber erhalten.

    Installation, Inspektion, Wartung und Instandsetzung von Gasgeräten sowie Gaseinstellungen darf nur ein Fachhandwerker durchführen!

    Herstellerinformationen

    Viessmann Climate Solutions SE
    Viessmannstraße 1
    35108 Allendorf (Eder)
    DE

    Tel: 06452 70-0
    E-Mail: info@viessmann.com

    Ähnliche Artikel

    Viessmann Heizkörper Hahnblock 1/2 x 3/4" Anschlussvariante "Ventil" Eurokonus
    Viessmann Hahnblock in durchgang oder eck 1/2" x 3/4" Eurokonus Beschreibung: Viessmann Hahnblock in durchgangs- oder eckform zum anschliessen eines Ventilheizkörpers Technische Daten: Messing vernickelt komplett mit Übergangsnippel 1/2" x 3/4" max. Betriebsdruck: 10 bar max. Betriebstemperatur: 110 °C für 2-Rohrsysteme mit Absperrung passend für: Viessmann Universalheizkörper mit Montageset Ventil ( Ventilheizkörper ) Viessmann Vertikalheizkörper Carat mit Ventileinsatz Viessmann Mittelanschlussheizkörper alle Heizkörper mit 1/2" Innengewinde Lieferumfang: Viessmann Hahnblock in durchgang oder eck

    ab 16,21 €*

    Art.Nr.: 136216554

    ca. 2-4 Werktage (Mo-Fr.)

    Viessmann Ersatzteil 7839248 Anschlussleitung Kollektorpumpe 230V L=8
    Viessmann Anschlussleitung Kollektorpumpe 230V L=8 Herstellernummer: 7839248 Beschreibung: original Viessmann Anschlussleitung Kollektorpumpe 230V L=8 Lieferumfang Viessmann Anschlussleitung Kollektorpumpe 230V L=8

    22,99 €*

    Art.Nr.: 182164447

    ca. 2-4 Werktage (Mo-Fr.)

    Viessmann Bohrkonsolen Set 7527880 Halterung für Heizkörper Abstandshalter
    Viessmann Bohrkonsolen Set Artikelnummer: 7527880 Beschreibung: Zum Überbrücken von einem größeren Abstand zur Heizkörperhalterung Stufenloser Abstand 2 Bohrkonsolen 2 Abstandshalter Herstellernr.: 7527880 Lieferumfang: Viessmann Bohrkonsolenset

    Inhalt: 2 Stk (11,55 €* / 1 Stk)

    23,09 €*

    Art.Nr.: 156630039

    ca. 2-4 Werktage (Mo-Fr.)

    Viessmann Abdeckrosette für Standkonsole Standfüße Montage Fertigboden
    Viessmann Abdeckrosette für Standkonsole Hersteller: 9572063 Beschreibung: Viessmann Abdeckrosette für Standkonsole Standfüße Montage Fertigboden Lieferumfang: Viessmann Abdeckrosette Liefereinheit 2 Stück ( paarweise )

    Inhalt: 2 Stk (12,69 €* / 1 Stk)

    25,37 €*

    Art.Nr.: 148098446

    ca. 2-4 Werktage (Mo-Fr.)

    Viessmann Stellantrieb für Heizkreisverteiler Fußbodenheizung 1 Watt / 230 V
    Viessmann Stellantrieb für Heizkreisverteiler mit Adapter Gewindeanschluss M30 x 1,5 / 1 Watt Hersteller: 7750202 Beschreibung: Viessmann Stellantrieb für Heizkreisverteiler geeignet für ein Anschlussgewinde M30x1,5 Technische Daten: stromlos geschlossen Leistungsaufnahme: 1 Watt Montagelage: 360 ° rundum Funktionsanzeige Montagering M30x1,5 für einfache Steckmontage Schutzklasse: IP54 Abmessungen HxBxT: 52,2 x 44,3 x 48,4 mm Hub: 4 mm Leitungslänge: 1 m Lieferumfang: Viessmann Stellantrieb 7750202 Adapterring M30x1,5

    ab 17,99 €*

    Art.Nr.: 136492153

    ca. 2-4 Werktage (Mo-Fr.)

    Viessmann Raumthermostat analog 230 V für Fußbodenheizung Stellantrieb Aufputz
    Viessmann Raumthermostat analog 230 V Herstellernummer: 7750197 Beschreibung: original Viessmann Aufputz Raumthermostat, für das Regeln der Stellantriebe der Fußbodenheizung. Die Anschlussspannung beträgt 230 Volt. Technische Daten: Einstellbereich Solltemperatur: 10 bis 28 °C Absenktemperatur: 4 °C Hysterese: 0,5 K Schaltelement Relais Frostschutzfunktion: (Temperatur 6°C) Für Wandmontage / Montage auf Unterputzdose (kein planer Abschluss mit der Wand) Farbe: Signalweiß (RAL 9003) Anschlussmöglichkeit: max. 10 Stellantriebe (max. 3W/Stellantrieb) Schutzklasse IP20 Abmessung B x H x T: 86 x 86 x 29 mm Lieferumfang: Viessmann Raumthermostat analog 230 V (gewählte Anzahl) Montage- und Betriebsanleitung

    ab 19,35 €*

    Art.Nr.: 139616802

    ca. 2-4 Werktage (Mo-Fr.)

    Viessmann Rohrhalter Tackernadeln für Rohre Ø 14 bis 20 mm Fussbodenheizung
    Viessmann Rohrhalter Tackernadeln für Rohre Ø 14 bis 20 mm Herstellernummer: 7568331 Beschreibung: Die Tackernadeln werden zur sicheren Befestigung der Fußbodenheizungsrohre auf der Dämmung mit bewährten Tackersystem eingesetzt. Geeignet für fast alle handelsüblichen Tackergeräte für Rohr von 14-20 mm Durchmesser. Die Tackernadeln werden mit 1000 Stück magaziniert im Karton geliefert. (Zur Befestigung der Vitoset-System-Heizrohre 16 × 2 mm auf den Verbundplatten und -rollen VNM 30 und VNM 25.) Technische Daten: 1000 Stück im Karton für Rohre Ø 14 bis 20 mm magaziniert a 40 Stk. Lieferumfang: Liefereinheit: 1000 Stück im Karton (25 Magazine á 40 Stück)

    Inhalt: 1000 Stk (0,04 €* / 1 Stk)

    37,48 €*

    Art.Nr.: 162133944

    ca. 2-4 Werktage (Mo-Fr.)

    Viessmann Ersatzteil Dichtung Viton 202 x 184 mm 7822427 Vitorondens Vitola Vitoladens
    Viessmann Ersatzteil Wärmetauscher Öl-Brennwert 18-33kW Gr.1 Herstellerteilenummer: 7837202 Berschreibung: Viessmann Ersatzteil Wärmetauscher WB2 WS2 11/24kW Verwendung in den Geräten: 7173890 Öl-Brennwert-Wärmetauscher 7185895 Öl-Brennwert Wärmetauscher 7247587 Öl-Brennwert Wärmetauscher 7249130 Kessel Vitola 200 VX2A 40/50kW 7266511 Öl-Brennwert Wärmetauscher 18-33kW 7278719 Öl-Brennwert Wärmetauscher 7369078 Kessel Vitorondens 200-T J2RA63/80/100kW 7369267 Wärmetauscher 425/545kW 7419531 Öl-Brennwert Wärmetauscher 18-33kW 7419532 Öl-Brennwert Wärmetauscher 40/50kW 7423898 Wärmetauscher 90/115kW 7423899 Wärmetauscher 140kW 7423900 Wärmetauscher 180kW 7423901 Wärmetauscher 235kW 7423902 Wärmetauscher 300kW 7440277 Kessel Vitorondens 200-T VR2N 18/22kW 7440278 Kessel Vitorondens 200-T VR2N 27/33kW 7440923 Grundk. Vitoladens 300-T VW3B 40/50kW 7452504 Kessel Vitorondens 222-F 18/22kW 7452505 Kessel Vitorondens 222-F 27kW 7453014 Kessel Vitorondens 200-T BR2A18,8/22,9kW 7453015 Kessel Vitorondens 200-T BR2A 27/33kW 7465645 Grundkessel Vitoladens 300-T VW3B 18kW 7465654 Grundkessel Vitoladens 300-T VW3B 22kW 7465656 Grundkessel Vitoladens 300-T VW3B 27kW 7465660 Grundkessel Vitoladens 300-T VW3B 33kW 7480205 Kessel Vitorondens 200-T BR2A 40/50kW 7557114 Kessel Vitorondens 222-F 18/22kW 7557115 Kessel Vitorondens 222-F 27kW Lieferumfang: Viessmann Ersatzteil Wärmetauscher Öl-Brennwert 18-33kW Gr.1

    41,20 €*

    Art.Nr.: 183601559

    ca. 2-4 Werktage (Mo-Fr.)

    Viessmann Filtersatz Vitovent 100-D Partikelklasse G3 Ersatzfilter Pollenfilter
    Viessmann Filtersatz mit der Partikelklasse G3 für das dezentrale Lüftungsgerät Vitovent 100-D Herstellernummer: 7571848 Beschreibung: - Viessmann Filtersatz mit der Partikelklasse G3 für das dezentrale Lüftungsgerät Vitovent 100-D ( Ersatzfilter-Set = 4-Stück ). - Für Vitovent 100-D, Typ H00E A45 - Grobilter G3/ISO Coarse 70 % Lieferumfang: 4x Partikelfilterklasse G3

    Inhalt: 4 Stk (10,54 €* / 1 Stk)

    42,16 €*

    Art.Nr.: 136394101

    ca. 2-4 Werktage (Mo-Fr.)

    Viessmann Guss-Stabanode D33 x 250 / 220 mm 7839143
    Viessmann Guss-Stabanode 7839143 Herstellerteilenummer: 7839143 Beschreibung: Eine Magnesiumanode, umgangssprachlich auch Opferanode genannt, dient dem Korrosionsschutz von Trinkwasserspeichern. Technische Daten: Durchmesser: 33,0 mm Länge: 250 mm Gesamtlänge: 220 mm Lieferumfang: Viessmann Guss-Stabanode 7839143

    43,52 €*

    Art.Nr.: 183066962

    ca. 1-2 Wochen

    Viessmann Vitoset Aqua Leckage Bodensensor 7938832 für Enthärtungsanlage
    Viessmann Vitoset Aqua Leckage Sensor Herstellerteilenummer: 7938832 Beschreibung: In Kombination mit Vitoset Absperrventil und mit Trinkwasserenthärtungsanlage Vitoset Aqua als Leckageschutz für die Trinkwasseranlage einsetzbar Integrierter Feuchtigkeitssensor Datenübertragung per Bluetooth (Klasse 2) Lieferumfang: Viessmann Vitoset Aqua Leckage Sensor

    48,33 €*

    Art.Nr.: 181345536

    ca. 2-4 Werktage (Mo-Fr.)

    Viessmann Guss-Stabanode D33 x 530 / 500 mm 7894246
    Viessmann Guss-Stabanode 7894246 Herstellerteilenummer: 7894246 Beschreibung: Eine Magnesiumanode, umgangssprachlich auch Opferanode genannt, dient dem Korrosionsschutz von Trinkwasserspeichern. Technische Daten: Durchmesser: 33,0 mm Länge: 500 mm Gesamtlänge: 530 mm Lieferumfang: Viessmann Guss-Stabanode 7894246

    48,39 €*

    Art.Nr.: 183066098

    ca. 2-4 Werktage (Mo-Fr.)