Betriebsferien vom 22.12.2025 - 06.01.2026. Bestellungen werden erst ab dem 07.01.2026 ausgeliefert.

Viessmann Warmwasser Wärmepumpe Vitocal 060-A T0S-R290 Umluft 251l Z028430

Art.Nr.:
146791560
Herst.Nr.:
Z028430
EAN: 7426836096742
Lieferzeit:

ca. 2-4 Werktage (Mo-Fr.)

EEK Spektrum: A+ -> F
EEK: a
Versandkostenfrei

2.719,65 €*

inkl. 19% MwSt. zzgl. 0.00 € Versand

Produktinformationen "Viessmann Warmwasser Wärmepumpe Vitocal 060-A T0S-R290 Umluft 251l Z028430"

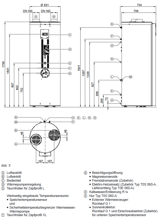
Viessmann Warmwasserwärmepumpe Vitocal 060-A, T0S-R290 Umluft 251l

Herstellerteilenummer: Z028430

Beschreibung:

  • Warmwasser-Wärmepumpe für Außenluft- und Umluftbetrieb. Bei Typ T0S-R290 mit innenliegendem Wärmetauscher für den Anschluss eines externen Wärmeerzeugers oder von Sonnenkollektoren
  • Hohe Leistungswerte im Außenluft- und Umluftbetrieb
  • Einfache Inbetriebnahme durch vormontierte Einheit und voreingestellte Regelung
  • Umweltfreundliches, natürliches Kältemittel R290
  • Erwärmung des Trinkwassers auf 62 °C über Wärmepumpenmodul bei Lufttemperaturen über -5 °C
  • Schnellaufheizungsfunktion mit Elektro-Heizeinsatz (Lieferumfang bei Typ T0E/T0E180-R290, Zubehör bei Typ T0S-R290)
  • Smart-Grid-fähig - geeignet zur Nutzung des selbsterzeugten Stroms von Photovoltaikanlagen
  • Bedienung, Optimierung, Wartung und Service über ViCare App und ViGuide.
  • Geführte Inbetriebnahme über ViGuide

Austattung:

  • Senkrecht stehende Warmwasser-Wärmepumpe zur Innenaufstellung
  • Mit im Gerät integriertem Kommunikationsmodul
  • Fernbedienung und Monitoring des Geräts über Smartphone mit der ViCare App in Verbindung mit integrierter Internetschnittstelle
  • Für den Umluft-, Außenluftbetrieb (Mindestraumvolumen bei Umluftbetrieb 20 m³).
  • Bestehend aus Luft/Wasser-Wärmepumpen Modul, Speicher-Wassererwärmer und integrierter Regelung mit Touch-Display (Vitodens 100 Typ).
  • Durch außen um die Speicher-Wandung geführte Sicherheitswärmetauscher (Verflüssiger) hermetische Trennung von Trinkwasser- und Kältemittelkreislauf
  • Speicher-Wassererwärmer aus Stahl mit Ceraprotect-Emaillierung und zusätzlichem kathodischen Schutz durch Magnesium-Schutzanode
  • SG Ready und Eigenstromnutzung in Verbindung mit Photovoltaikanlage
  • Wahl des benötigten Zapfprofils (XL/L) durch Hysteresis Einstellung
  • Aufheizung des Speicher-Wassererwärmers über das Wärmepumpenmodul bis 65 °C zur erhöhten Trinkwasserhygiene bei effizientem Betrieb.
  • Anschlussfertig verdrahtet
  • Für Außenluftbetrieb einsetzbar mit entsprechenden Außenluftadaptern (DN 160, Zubehör).
  • Mit bedarfsabhängiger Regelung der Wärmepumpe und getrennt einstellbaren Zeitprogrammen für Trinkwassererwärmung und Zirkulation

Technische Daten:

  • Speicherinhalt 251 l
  • Farbe Vitopearlwhite
  • Kältekreis: Kältemittel R290
  • Füllmenge 150 g
  • Treibhauspotenzial (GWP) 0,02 CO2-Äquivalent 0,003 kg
  • Länge 734 mm
  • Breite (Ø) 634 mm
  • Höhe 1780 mm
  • Gewicht 125 kg
  • Nennspannung 1/N/PE 230 V/50 Hz
  • Zapfprofil XL Leistungszahl (COPDHW) 3,82
  • Aufheizzeit 6:51 h:min
  • Bereitschaftsverlust (Pes) 23 W
  • Max. nutzbare Wassermenge 40°C 326 l
  • Max. Luftvolumenstrom Geschwindigkeit 1 (langsam) 331 m³/h
  • Geschwindigkeit 2 (schnell) 375 m³/h
  • Lufteintrittstemperatur Min. Lufteintrittstemperatur -5 °C
  • Max. Lufteintrittstemperatur 35 °C
  • Anschluss Kondenswasserablauf 20 mm
  • Max. zul. Betriebsdruck Trinkwasser 10 bar
  • Max. zul. Trinkwassertemperatur 65 °C
  • Max. erreichbare Trinkwassertemperatur in Verbindung mit einer Photovoltaikanlage 65 °C
  • Anschlüsse: Trinkwasser warm, kalt R 3/4 Trinkwasser Zirkulation R 3/4
  • Max. Schall-Leistungspegel innen nach EN 12102 57 dB(A)
  • Wärmepumpe Jahreszeitbedingte Raumheizungs-Energieeffizienzklasse A+++
  • Jahreszeitbedingte Raumheizungs-Energieeffizienz 175 %
  • Wärmenennleistung 4 kW
  • Jährlicher Energieverbrauch 2380 kWh
  • Jahreszeitbedingte Raumheizungs-Energieeffizienzklasse A++
  • Jahreszeitbedingte Raumheizungs-Energieeffizienz 126 %
  • Wärmenennleistung 4 kW
  • Jährlicher Energieverbrauch 1826 kWh
  • Jahreszeitbedingte Raumheizungs-Energieeffizienz 135 %
  • Wärmenennleistung 4 kW
  • Jährlicher Energieverbrauch 3146 kWh
  • Jahreszeitbedingte Raumheizungs-Energieeffizienz 86 %
  • Wärmenennleistung 3 kW
  • Jährlicher Energieverbrauch 3118 kWh
  • Jahreszeitbedingte Raumheizungs-Energieeffizienz 197 %
  • Wärmenennleistung 5 kW
  • Jährlicher Energieverbrauch 1294 kWh
  • Jahreszeitbedingte Raumheizungs-Energieeffizienz 150 %
  • Wärmenennleistung 4 kW
  • Jährlicher Energieverbrauch 1399 kWh
  • Schallleistungspegel Außen 62 dB
  • Schallleistungspegel Innen 41 dB
  • Temperaturregler Temperaturregler Klasse II
  • Beitrag Raumheizungs-Energieeffizienz 2 %
  • Energieeffizienzklasse Verbund (Trinkwassererwärmung) A++

Lieferumfang:

  • Viessmann Vitocal 060-A Typ T0S / Inhalt: 251 Z028430 -Trinkwasserwärmepumpe Umluftbetrieb
  • Kondensatwasserschlauch
  • zusätzlicher Wärmetauscher
  • Montage- und Betriebsanleitung
WEEE-Reg.-Nr.: DE 58723830

Allg. Sicherheitshinweise:

Zur Vermeidung von Körper- und Gesundheitsschäden sind die Montage, Erstinbetriebnahme, Inspektion, Wartung und Instandsetzung von autorisierten Fachkräften (Heizungs- / Sanitärfachbetrieb / Vertragsinstallationsunternehmen) vorzunehmen!

Bestimmungsgemäße Verwendung: Bitte beachten Sie die bei Installation und Montage beiliegende Installations-, Betriebs- und Wartungsanleitungen sowie Produkt-/Systemzulassungen aller Anlagenkomponenten. Bei Wärmeerzeugern ist es zum Beispiel regelmäßig der Fall, dass allein für diese Heizung zugelassene Abgastechnik zur Verwendung gelangen darf. Zur bestimmungsgemäßen Verwendung gehört gleichsam die Einhaltung der ebenfalls in o.g. Unterlagen enthaltenen Inspektions- und Wartungsbedingungen.

Elektrische Heizgeräte sowie Durchlauferhitzer mit Starkstromanschluß (400V) dürfen nur durch jeweiligen Netzbetreiber oder durch ein in das Installateurverzeichnis des Netzbetreibers eingetragenes Installationsunternehmen installiert werden!

Elektrogeräte mit Drei-Phasen-Wechselstrom-Anschluss (3~/400V) und "nicht-steckerfertigen Geräten" sind von einem Fachbetrieb zu installieren. Geräte mit einer Nennleistung von mehr als 12 kW müssen vor der Erstinstallation eine Zustimmung vom Netzbetrieber erhalten.

Installation, Inspektion, Wartung und Instandsetzung von Gasgeräten sowie Gaseinstellungen darf nur ein Fachhandwerker durchführen!

Herstellerinformationen

Viessmann Climate Solutions SE
Viessmannstraße 1
35108 Allendorf (Eder)
DE

Tel: 06452 70-0
E-Mail: info@viessmann.com
Art.Nr.:
146791560
Herst.Nr.:
Z028430
EAN: 7426836096742
Lieferzeit:

ca. 2-4 Werktage (Mo-Fr.)

EEK Spektrum: A+ -> F
EEK: a
Versandkostenfrei

2.719,65 €*

inkl. 19% MwSt. zzgl. 0.00 € Versand

Produktinformationen "Viessmann Warmwasser Wärmepumpe Vitocal 060-A T0S-R290 Umluft 251l Z028430"

Viessmann Warmwasserwärmepumpe Vitocal 060-A, T0S-R290 Umluft 251l

Herstellerteilenummer: Z028430

Beschreibung:

  • Warmwasser-Wärmepumpe für Außenluft- und Umluftbetrieb. Bei Typ T0S-R290 mit innenliegendem Wärmetauscher für den Anschluss eines externen Wärmeerzeugers oder von Sonnenkollektoren
  • Hohe Leistungswerte im Außenluft- und Umluftbetrieb
  • Einfache Inbetriebnahme durch vormontierte Einheit und voreingestellte Regelung
  • Umweltfreundliches, natürliches Kältemittel R290
  • Erwärmung des Trinkwassers auf 62 °C über Wärmepumpenmodul bei Lufttemperaturen über -5 °C
  • Schnellaufheizungsfunktion mit Elektro-Heizeinsatz (Lieferumfang bei Typ T0E/T0E180-R290, Zubehör bei Typ T0S-R290)
  • Smart-Grid-fähig - geeignet zur Nutzung des selbsterzeugten Stroms von Photovoltaikanlagen
  • Bedienung, Optimierung, Wartung und Service über ViCare App und ViGuide.
  • Geführte Inbetriebnahme über ViGuide

Austattung:

  • Senkrecht stehende Warmwasser-Wärmepumpe zur Innenaufstellung
  • Mit im Gerät integriertem Kommunikationsmodul
  • Fernbedienung und Monitoring des Geräts über Smartphone mit der ViCare App in Verbindung mit integrierter Internetschnittstelle
  • Für den Umluft-, Außenluftbetrieb (Mindestraumvolumen bei Umluftbetrieb 20 m³).
  • Bestehend aus Luft/Wasser-Wärmepumpen Modul, Speicher-Wassererwärmer und integrierter Regelung mit Touch-Display (Vitodens 100 Typ).
  • Durch außen um die Speicher-Wandung geführte Sicherheitswärmetauscher (Verflüssiger) hermetische Trennung von Trinkwasser- und Kältemittelkreislauf
  • Speicher-Wassererwärmer aus Stahl mit Ceraprotect-Emaillierung und zusätzlichem kathodischen Schutz durch Magnesium-Schutzanode
  • SG Ready und Eigenstromnutzung in Verbindung mit Photovoltaikanlage
  • Wahl des benötigten Zapfprofils (XL/L) durch Hysteresis Einstellung
  • Aufheizung des Speicher-Wassererwärmers über das Wärmepumpenmodul bis 65 °C zur erhöhten Trinkwasserhygiene bei effizientem Betrieb.
  • Anschlussfertig verdrahtet
  • Für Außenluftbetrieb einsetzbar mit entsprechenden Außenluftadaptern (DN 160, Zubehör).
  • Mit bedarfsabhängiger Regelung der Wärmepumpe und getrennt einstellbaren Zeitprogrammen für Trinkwassererwärmung und Zirkulation

Technische Daten:

  • Speicherinhalt 251 l
  • Farbe Vitopearlwhite
  • Kältekreis: Kältemittel R290
  • Füllmenge 150 g
  • Treibhauspotenzial (GWP) 0,02 CO2-Äquivalent 0,003 kg
  • Länge 734 mm
  • Breite (Ø) 634 mm
  • Höhe 1780 mm
  • Gewicht 125 kg
  • Nennspannung 1/N/PE 230 V/50 Hz
  • Zapfprofil XL Leistungszahl (COPDHW) 3,82
  • Aufheizzeit 6:51 h:min
  • Bereitschaftsverlust (Pes) 23 W
  • Max. nutzbare Wassermenge 40°C 326 l
  • Max. Luftvolumenstrom Geschwindigkeit 1 (langsam) 331 m³/h
  • Geschwindigkeit 2 (schnell) 375 m³/h
  • Lufteintrittstemperatur Min. Lufteintrittstemperatur -5 °C
  • Max. Lufteintrittstemperatur 35 °C
  • Anschluss Kondenswasserablauf 20 mm
  • Max. zul. Betriebsdruck Trinkwasser 10 bar
  • Max. zul. Trinkwassertemperatur 65 °C
  • Max. erreichbare Trinkwassertemperatur in Verbindung mit einer Photovoltaikanlage 65 °C
  • Anschlüsse: Trinkwasser warm, kalt R 3/4 Trinkwasser Zirkulation R 3/4
  • Max. Schall-Leistungspegel innen nach EN 12102 57 dB(A)
  • Wärmepumpe Jahreszeitbedingte Raumheizungs-Energieeffizienzklasse A+++
  • Jahreszeitbedingte Raumheizungs-Energieeffizienz 175 %
  • Wärmenennleistung 4 kW
  • Jährlicher Energieverbrauch 2380 kWh
  • Jahreszeitbedingte Raumheizungs-Energieeffizienzklasse A++
  • Jahreszeitbedingte Raumheizungs-Energieeffizienz 126 %
  • Wärmenennleistung 4 kW
  • Jährlicher Energieverbrauch 1826 kWh
  • Jahreszeitbedingte Raumheizungs-Energieeffizienz 135 %
  • Wärmenennleistung 4 kW
  • Jährlicher Energieverbrauch 3146 kWh
  • Jahreszeitbedingte Raumheizungs-Energieeffizienz 86 %
  • Wärmenennleistung 3 kW
  • Jährlicher Energieverbrauch 3118 kWh
  • Jahreszeitbedingte Raumheizungs-Energieeffizienz 197 %
  • Wärmenennleistung 5 kW
  • Jährlicher Energieverbrauch 1294 kWh
  • Jahreszeitbedingte Raumheizungs-Energieeffizienz 150 %
  • Wärmenennleistung 4 kW
  • Jährlicher Energieverbrauch 1399 kWh
  • Schallleistungspegel Außen 62 dB
  • Schallleistungspegel Innen 41 dB
  • Temperaturregler Temperaturregler Klasse II
  • Beitrag Raumheizungs-Energieeffizienz 2 %
  • Energieeffizienzklasse Verbund (Trinkwassererwärmung) A++

Lieferumfang:

  • Viessmann Vitocal 060-A Typ T0S / Inhalt: 251 Z028430 -Trinkwasserwärmepumpe Umluftbetrieb
  • Kondensatwasserschlauch
  • zusätzlicher Wärmetauscher
  • Montage- und Betriebsanleitung
WEEE-Reg.-Nr.: DE 58723830

Allg. Sicherheitshinweise:

Zur Vermeidung von Körper- und Gesundheitsschäden sind die Montage, Erstinbetriebnahme, Inspektion, Wartung und Instandsetzung von autorisierten Fachkräften (Heizungs- / Sanitärfachbetrieb / Vertragsinstallationsunternehmen) vorzunehmen!

Bestimmungsgemäße Verwendung: Bitte beachten Sie die bei Installation und Montage beiliegende Installations-, Betriebs- und Wartungsanleitungen sowie Produkt-/Systemzulassungen aller Anlagenkomponenten. Bei Wärmeerzeugern ist es zum Beispiel regelmäßig der Fall, dass allein für diese Heizung zugelassene Abgastechnik zur Verwendung gelangen darf. Zur bestimmungsgemäßen Verwendung gehört gleichsam die Einhaltung der ebenfalls in o.g. Unterlagen enthaltenen Inspektions- und Wartungsbedingungen.

Elektrische Heizgeräte sowie Durchlauferhitzer mit Starkstromanschluß (400V) dürfen nur durch jeweiligen Netzbetreiber oder durch ein in das Installateurverzeichnis des Netzbetreibers eingetragenes Installationsunternehmen installiert werden!

Elektrogeräte mit Drei-Phasen-Wechselstrom-Anschluss (3~/400V) und "nicht-steckerfertigen Geräten" sind von einem Fachbetrieb zu installieren. Geräte mit einer Nennleistung von mehr als 12 kW müssen vor der Erstinstallation eine Zustimmung vom Netzbetrieber erhalten.

Installation, Inspektion, Wartung und Instandsetzung von Gasgeräten sowie Gaseinstellungen darf nur ein Fachhandwerker durchführen!

Herstellerinformationen

Viessmann Climate Solutions SE
Viessmannstraße 1
35108 Allendorf (Eder)
DE

Tel: 06452 70-0
E-Mail: info@viessmann.com

Ähnliche Artikel

Viessmann Heizkörper Hahnblock 1/2 x 3/4" Anschlussvariante "Ventil" Eurokonus
Viessmann Hahnblock in Durchgang oder Eck 1/2" x 3/4" Eurokonus Beschreibung: Viessmann Hahnblock in durchgangs- oder eckform zum anschliessen eines Ventilheizkörpers Technische Daten: Messing vernickelt komplett mit Übergangsnippel 1/2" x 3/4" max. Betriebsdruck: 10 bar max. Betriebstemperatur: 110 °C für 2-Rohrsysteme mit Absperrung passend für: Viessmann Universalheizkörper mit Montageset Ventil ( Ventilheizkörper ) Viessmann Vertikalheizkörper Carat mit Ventileinsatz Viessmann Mittelanschlussheizkörper alle Heizkörper mit 1/2" Innengewinde Lieferumfang: Viessmann Hahnblock in durchgang oder eck

ab 14,38 €*

Art.Nr.: 136216554

ca. 2-4 Werktage (Mo-Fr.)

Viessmann Ersatzteil 7839248 Anschlussleitung Kollektorpumpe 230V L=8
Viessmann Anschlussleitung Kollektorpumpe 230V L=8 Herstellernummer: 7839248 Beschreibung: original Viessmann Anschlussleitung Kollektorpumpe 230V L=8 Lieferumfang Viessmann Anschlussleitung Kollektorpumpe 230V L=8

22,99 €*

Art.Nr.: 182164447

ca. 2-4 Werktage (Mo-Fr.)

Viessmann Bohrkonsolen Set 7527880 Halterung für Heizkörper Abstandshalter
Viessmann Bohrkonsolen Set Artikelnummer: 7527880 Beschreibung: Zum Überbrücken von einem größeren Abstand zur Heizkörperhalterung Stufenloser Abstand 2 Bohrkonsolen 2 Abstandshalter Herstellernr.: 7527880 Lieferumfang: Viessmann Bohrkonsolenset

Inhalt: 2 Stk (11,55 €* / 1 Stk)

23,09 €*

Art.Nr.: 156630039

ca. 2-4 Werktage (Mo-Fr.)

Sold Out
Viessmann Abdeckrosette für Standkonsole Standfüße Montage Fertigboden
Viessmann Abdeckrosette für Standkonsole Hersteller: 9572063 Beschreibung: Viessmann Abdeckrosette für Standkonsole Standfüße Montage Fertigboden Lieferumfang: Viessmann Abdeckrosette Liefereinheit 2 Stück ( paarweise )

Inhalt: 2 Stk (12,69 €* / 1 Stk)

25,37 €*

Art.Nr.: 148098446

ca. 2-4 Werktage (Mo-Fr.)

Viessmann Stellantrieb für Heizkreisverteiler Fußbodenheizung 1 Watt / 230 V
Viessmann Stellantrieb für Heizkreisverteiler mit Adapter Gewindeanschluss M30 x 1,5 / 1 Watt Hersteller: 7750202 Beschreibung: Viessmann Stellantrieb für Heizkreisverteiler geeignet für ein Anschlussgewinde M30x1,5 Technische Daten: stromlos geschlossen Leistungsaufnahme: 1 Watt Montagelage: 360 ° rundum Funktionsanzeige Montagering M30x1,5 für einfache Steckmontage Schutzklasse: IP54 Abmessungen HxBxT: 52,2 x 44,3 x 48,4 mm Hub: 4 mm Leitungslänge: 1 m Lieferumfang: Viessmann Stellantrieb 7750202 Adapterring M30x1,5

ab 17,99 €*

Art.Nr.: 136492153

ca. 2-4 Werktage (Mo-Fr.)

Viessmann Raumthermostat analog 230 V für Fußbodenheizung Stellantrieb Aufputz
Viessmann Raumthermostat analog 230 V Herstellernummer: 7750197 Beschreibung: original Viessmann Aufputz Raumthermostat, für das Regeln der Stellantriebe der Fußbodenheizung. Die Anschlussspannung beträgt 230 Volt. Technische Daten: Einstellbereich Solltemperatur: 10 bis 28 °C Absenktemperatur: 4 °C Hysterese: 0,5 K Schaltelement Relais Frostschutzfunktion: (Temperatur 6°C) Für Wandmontage / Montage auf Unterputzdose (kein planer Abschluss mit der Wand) Farbe: Signalweiß (RAL 9003) Anschlussmöglichkeit: max. 10 Stellantriebe (max. 3W/Stellantrieb) Schutzklasse IP20 Abmessung B x H x T: 86 x 86 x 29 mm Lieferumfang: Viessmann Raumthermostat analog 230 V (gewählte Anzahl) Montage- und Betriebsanleitung

ab 19,35 €*

Art.Nr.: 139616802

ca. 2-4 Werktage (Mo-Fr.)

Viessmann Rohrhalter Tackernadeln für Rohre Ø 14 bis 20 mm Fussbodenheizung
Viessmann Rohrhalter Tackernadeln für Rohre Ø 14 bis 20 mm Herstellernummer: 7568331 Beschreibung: Die Tackernadeln werden zur sicheren Befestigung der Fußbodenheizungsrohre auf der Dämmung mit bewährten Tackersystem eingesetzt. Geeignet für fast alle handelsüblichen Tackergeräte für Rohr von 14-20 mm Durchmesser. Die Tackernadeln werden mit 1000 Stück magaziniert im Karton geliefert. (Zur Befestigung der Vitoset-System-Heizrohre 16 × 2 mm auf den Verbundplatten und -rollen VNM 30 und VNM 25.) Technische Daten: 1000 Stück im Karton für Rohre Ø 14 bis 20 mm magaziniert a 40 Stk. Lieferumfang: Liefereinheit: 1000 Stück im Karton (25 Magazine á 40 Stück)

Inhalt: 1000 Stk (0,04 €* / 1 Stk)

37,48 €*

Art.Nr.: 162133944

ca. 2-4 Werktage (Mo-Fr.)

Viessmann Ersatzteil Dichtung Viton 202 x 184 mm 7822427 Vitorondens Vitola Vitoladens
Viessmann Ersatzteil Wärmetauscher Öl-Brennwert 18-33kW Gr.1 Herstellerteilenummer: 7837202 Berschreibung: Viessmann Ersatzteil Wärmetauscher WB2 WS2 11/24kW Verwendung in den Geräten: 7173890 Öl-Brennwert-Wärmetauscher 7185895 Öl-Brennwert Wärmetauscher 7247587 Öl-Brennwert Wärmetauscher 7249130 Kessel Vitola 200 VX2A 40/50kW 7266511 Öl-Brennwert Wärmetauscher 18-33kW 7278719 Öl-Brennwert Wärmetauscher 7369078 Kessel Vitorondens 200-T J2RA63/80/100kW 7369267 Wärmetauscher 425/545kW 7419531 Öl-Brennwert Wärmetauscher 18-33kW 7419532 Öl-Brennwert Wärmetauscher 40/50kW 7423898 Wärmetauscher 90/115kW 7423899 Wärmetauscher 140kW 7423900 Wärmetauscher 180kW 7423901 Wärmetauscher 235kW 7423902 Wärmetauscher 300kW 7440277 Kessel Vitorondens 200-T VR2N 18/22kW 7440278 Kessel Vitorondens 200-T VR2N 27/33kW 7440923 Grundk. Vitoladens 300-T VW3B 40/50kW 7452504 Kessel Vitorondens 222-F 18/22kW 7452505 Kessel Vitorondens 222-F 27kW 7453014 Kessel Vitorondens 200-T BR2A18,8/22,9kW 7453015 Kessel Vitorondens 200-T BR2A 27/33kW 7465645 Grundkessel Vitoladens 300-T VW3B 18kW 7465654 Grundkessel Vitoladens 300-T VW3B 22kW 7465656 Grundkessel Vitoladens 300-T VW3B 27kW 7465660 Grundkessel Vitoladens 300-T VW3B 33kW 7480205 Kessel Vitorondens 200-T BR2A 40/50kW 7557114 Kessel Vitorondens 222-F 18/22kW 7557115 Kessel Vitorondens 222-F 27kW Lieferumfang: Viessmann Ersatzteil Wärmetauscher Öl-Brennwert 18-33kW Gr.1

41,20 €*

Art.Nr.: 183601559

ca. 2-4 Werktage (Mo-Fr.)

Viessmann Filtersatz Vitovent 100-D Partikelklasse G3 Ersatzfilter Pollenfilter
Viessmann Filtersatz mit der Partikelklasse G3 für das dezentrale Lüftungsgerät Vitovent 100-D Herstellernummer: 7571848 Beschreibung: - Viessmann Filtersatz mit der Partikelklasse G3 für das dezentrale Lüftungsgerät Vitovent 100-D ( Ersatzfilter-Set = 4-Stück ). - Für Vitovent 100-D, Typ H00E A45 - Grobilter G3/ISO Coarse 70 % Lieferumfang: 4x Partikelfilterklasse G3

Inhalt: 4 Stk (10,54 €* / 1 Stk)

42,16 €*

Art.Nr.: 136394101

ca. 2-4 Werktage (Mo-Fr.)

Viessmann Guss-Stabanode D33 x 250 / 220 mm 7839143
Viessmann Guss-Stabanode 7839143 Herstellerteilenummer: 7839143 Beschreibung: Eine Magnesiumanode, umgangssprachlich auch Opferanode genannt, dient dem Korrosionsschutz von Trinkwasserspeichern. Technische Daten: Durchmesser: 33,0 mm Länge: 250 mm Gesamtlänge: 220 mm Lieferumfang: Viessmann Guss-Stabanode 7839143

43,52 €*

Art.Nr.: 183066962

ca. 1-2 Wochen

Viessmann Ersatzteil Brennerdichtung D=187 7836177 Vitodens 100-W 200-W WB2B
Viessmann Ersatzteil Brennerdichtung D = 187 mm Herstellerteilenummer: 7836177 Berschreibung: Viessmann Ersatzteil Brennerdichtung D = 187 mm Verwendung in den Geräten: 7172799 Grundg. Vitodens 100-W WB1C Uml. 26kW 7179916 Grundgerät WB1A Kombi 30kW 7179917 Grundgerät WB1A Kombi 24kW 7179918 Grundgerät WB1A Umlauf 24kW 7179919 Grundgerät WB1A Umlauf 24kW Heat only 7179920 Grundgerät WB1A Umlauf 18kW Heat only 7194473 Grundgerät Vitodens 200-W WB2B 19kW Umlauf 7194474 Grundg.Vitodens 200-W WB2B Uml. 26kW 7194475 Grundg.Vitodens 200-W WB2B Kombi 26kW 7194476 Grundg.Vitodens 200-W WB2B Uml. 35kW 7194477 Grundg.Vitodens 200-W WB2B Kombi 35kW 7201671 Grundgerät Vitovalor 300-P 19kW 7202597 Grundg. Vitodens 100-W B1HA Uml. 19kW 7202598 Grundg. Vitodens 100-W B1HA Uml. 26kW 7202599 Grundg. Vitodens 100-W B1KA Kom. 26kW 7202959 Grundg.Vitodens 050-W BPJC 24kW TR 7202960 Grundg.Vitodens 050-W BPJC 33kW TR 7246174 Grundgerät Vitodens 100-W WB1A 24kW CA 7246175 Grundgerät Vitodens 100-W WB1A 30kW CA 7246702 Grundgerät WB2B Umlauf 19kW IT 7246703 Grundgerät WB2B Umlauf 26kW IT 7246704 Grundgerät WB2B Kombi 26kW IT 7246705 Grundgerät WB2B Umlauf 35kW IT 7246706 Grundgerät WB2B Kombi 35kW IT 7246793 Grundgerät WB1A Kombi Komfort 30kW 7246794 Grundgerät WB1A Kombi Komfort 24kW 7247426 Grundgerät WB1A Umlauf 24kW 7247427 Grundgerät WB1A Kombi Komfort 30kW 7247428 Grundgerät WB1A Kombi Komfort 24kW 7247429 Grundgerät WB1A Kombi 30kW NL 7247430 Grundgerät WB1A Kombi 24kW NL 7247883 Grundg. Vitodens 222-W WS2A 19kW 7247884 Grundg. Vitodens 222-W WS2A 26kW 7247885 Grundg. Vitodens 222-W WS2A 35kW 7247886 Grundg. Vitodens 222-W WS2A 19kW 7247887 Grundg. Vitodens 222-W WS2A 26kW 7247888 Grundg. Vitodens 222-W WS2A 35kW 7247889 Grundg. Vitodens 222-W WS2A 19kW NL 7247890 Grundgerät Vitodens 222-W WBSB 26kW NL 7247891 Grundg. Vitodens 222-W WS2A 35kW NL 7247892 Grundg. Vitodens 222-W WS2A 19kW PL 7247893 Grundg. Vitodens 222-W WS2A 26kW PL 7247894 Grundg. Vitodens 222-W WS2A 35kW PL 7247895 Grundg. Vitodens 222-W WS2A 26kW IT 7247896 Grundg. Vitodens 222-W WS2A 35kW IT 7248055 Grundgerät WB1A Umlauf 24kW 7248056 Grundgerät Vitodens 100-W Kombi 24kW 7248057 Grundgerät Vitodens 100-W Kombi 30kW IT/ FR/ PL 7248320 Grundgerät WB1A Umlauf 13kW Heat only 7248586 Grundgerät WB1A Umlauf 24kW Heat only 7248587 Grundgerät WB1A Umlauf 18kW Heat only 7248588 Grundgerät WB1A Umlauf 24kW 7248589 Grundgerät WB1A Kombi-C 30kW 7248590 Grundgerät WB1A Kombi-C 24kW 7248591 Grundgerät WB1A Kombi 30kW NL 7248592 Grundgerät WB1A Kombi 24kW NL 7248819 Grundg. WB2B Uml. 26kW NL 7248820 Grundg. WB2B Kombi 26kW NL 7248822 Grundg. WB2B Kombi 35kW NL 7248823 Grundg.Vitodens 200 WB2B Uml. 19kW GB 7248824 Grundg.Vitodens 200 WB2B Uml. 26kW GB 7248825 Grundg. WB2B Kombi 26kW GB 7248826 Grundg.Vitodens 200 WB2B Uml. 30kW GB 7248827 Grundg. WB2B Kombi 30kW GB 7248828 Grundg.Vitodens 200 WB2B Uml. 35kW GB 7248829 Grundg. WB2B Kombi 35kW GB 7346071 Grundgerät Vitodens 100-E AB1A 24kW 7349282 Grundgerät Vitodens 100-E AB1A 24kW 7357351 Grundg. Vitovalor 300-P C3TB 19kW 7369298 Grundg. Vitotwin 300-W C3HC 26kW 7369815 Grundg. Vitosorp 200-F D2RA-15 15kW 7373054 Grundgerät Vitodens 100-W WB1B 26kW Umlauf 7373055 Grundgerät Vitodens 100-W WB1B 26kW Kombi 7373056 Grundgerät Vitodens 100-W WB1B 35kW Umlauf 7373057 Grundgerät Vitodens 100-W WB1B 35kW Kombi 7373058 Grundgerät Vitodens 100-W WB1B 26kW Kombi FR/BE/SI 7373059 Grundgerät Vitodens 100-W WB1B 35kW Kombi FR/BE/SI 7373060 Grundgerät Vitodens 100-W WB1B 26kW Umlauf GB 7373061 Grundgerät Vitodens 100-W WB1B 26kW Kombi GB 7373062 Grundgerät Vitodens 100-W WB1B 30kW Umlauf GB 7373063 Grundgerät Vitodens 100-W WB1B 30kW Kombi GB 7373064 Grundgerät Vitodens 100-W WB1B 35kW Umlauf GB 7373065 Grundgerät Vitodens 100-W WB1B 35kW Kombi GB 7373066 Grundgerät Vitodens 100-W WB1B 26kW Kombi IT 7373067 Grundgerät Vitodens 100-W WB1B 35kW Kombi IT 7373068 Grundgerät Vitodens 100-W WB1B 26kW Kombi NL 7373069 Grundgerät Vitodens 100-W WB1B 35kW Kombi NL 7374861 Grundg. Vitodens 100-W WB1B Uml. 26kW CA 7374862 Grundg. Vitodens 100-W WB1B Uml. 35kW CA 7374964 Grundgerät Vitodens 222-F FS2A 19kW 7374965 Grundgerät Vitodens 222-F FS2A 26kW 7374966 Grundgerät Vitodens 222-F FS2A 35kW 7374968 Grundg. Vitodens 242-F FB2A 26kW 7374976 Grundgerät Vitodens 222-F FS2A 19kW GB 7374977 Grundgerät Vitodens 222-F FS2A 26kW GB 7374978 Grundgerät Vitodens 222-F FS2A 35kW GB 7374980 Grundg. Vitodens 242-F FB2A 26kW GB 7416302 Grundg. Vitodens 100 WB1B 16kW Heat only 7416303 Grundg. Vitodens 100 WB1B 19kW Heat only 7416304 Grundg. Vitodens 100 WB1B 26kW Heat only 7416307 Grundg.Vitodens 100-W WB1B 13kW Heatonly 7418159 Grundgerät Vitodens 222-F FS2A 19kW ECP 7418160 Grundgerät Vitodens 222-F FS2A 26kW ECP 7419979 Grundg. Vitodens 200-W WB2B Uml. 19kW 7419980 Grundg. Vitodens 200-W WB2B Uml. 19kW IT 7419981 Grundg. Vitodens 200-W WB2B Uml. 19kW GB 7419982 Grundg. Vitodens 222-W WS2A 19kW 7419983 Grundg. Vitodens 222-W WS2A 19kW FR/BE 7419985 Grundg. Vitodens 222-F FS2A 19kW 7419986 Grundg. Vitodens 222-F FS2A ECP 19kW 7423008 Grundg. Vitodens 200-W WB2B Uml. 19kW 7423015 Grundg. Vitodens 242-F FB2A 19kW GB 7424975 Grundg.Vitodens 200-W WB2C Uml.19kW 7424976 Grundg.Vitodens 200-W WB2C Uml.26kW 7424977 Grundg.Vitodens 200-W WB2C Kom.26kW 7424978 Grundg.Vitodens 200-W WB2C Uml.35kW 7424979 Grundg.Vitodens 200-W WB2C Kom.35kW 7424980 Grundg.Vitodens 200-W WB2C Uml.19kW ECP 7424981 Grundg.Vitodens 200-W WB2C Uml.26kW ECP 7424982 Grundg.Vitodens 200-W WB2C Kom.26kW ECP 7424983 Grundg.Vitodens 200-W WB2C Uml.35kW ECP 7424984 Grundg.Vitodens 200-W WB2C Kom.35kW ECP 7425664 Grundg. Vitodens 200-W WB2B Uml. 19kW 7425665 Grundg. Vitodens 200-W WB2B Uml. 26kW 7435575 Grundg. Vitodens 200-W WB2C Uml.19kW ECP 7438004 Grundg. Vitodens 222-F FS2B 19kW 7438005 Grundg. Vitodens 222-F FS2B 26kW 7438006 Grundg. Vitodens 222-F FS2B 35kW 7438007 Grundg. Vitodens 222-F FS2B 19kW ECP 7438008 Grundg. Vitodens 222-F FS2B 26kW ECP 7438009 Grundg. Vitodens 222-F FS2B 35kW ECP 7438010 Grundg. Vitodens 242-F FB2B 19kW 7438011 Grundg. Vitodens 242-F FB2B 26kW 7438326 Grundg. Vitodens 222-W WS2B 19kW 7438327 Grundg. Vitodens 222-W WS2B 26kW 7438328 Grundg. Vitodens 222-W WS2B 35kW 7438329 Grundg. Vitodens 222-W WS2B 19kW ECP 7438330 Grundg. Vitodens 222-W WS2B 26kW ECP 7438331 Grundg. Vitodens 222-W WS2B 35kW ECP 7438332 Grundg. Vitodens 222-W WS2B 19kW FR 7438333 Grundg. Vitodens 222-W WS2B 26kW FR 7441194 Grundg. Vitodens 222-F FR2B 19kW 7441195 Grundg. Vitodens 222-F FR2B 26kW 7441196 Grundg. Vitodens 222-F FR2B 19kW ECP 7441197 Grundg. Vitodens 222-F FR2B 26kW ECP 7441830 Grundg. Vitotwin 300-W C3HA 26kW 7452515 Grundg.Vitodens100-W WB1B 26kW Kombi-rlu 7453096 Grundg. Vitodens 200-W WB2C Uml.19kW ECP 7453097 Grundg. Vitodens 200-W WB2C Uml.26kW ECP 7453098 Grundg. Vitodens 200-W WB2C Uml.35kW ECP 7454858 Grundg. Vitodens 200-W B2HA Uml. 19kW 7454859 Grundg. Vitodens 200-W B2HA 26kW 7454860 Grundg. Vitodens 200-W WB2D Kom. 26kW 7454861 Grundg. Vitodens 200-W B2HA Uml. 35kW 7454862 Grundg. Vitodens 200-W WB2D Kom. 35kW 7454868 Grundg. Vitodens 200-W B2HA 19kW GB 7454869 Grundg. Vitodens 200-W B2HA 26kW GB 7454870 Grundg. Vitodens 200-W B2KA 26kW GB 7454871 Grundg. Vitodens 200-W B2HA 30kW GB 7454872 Grundg. Vitodens 200-W B2KA 30kW GB 7454873 Grundg. Vitodens 200-W B2HA 35kW GB 7454874 Grundg. Vitodens 200-W B2KA 35kW GB 7457960 Grundg.Vitodens100-W WB1B U/K 26kW CA/US 7461084 Grundgerät Vitodens 200-W WB2B 19kW Umlauf 7487555 Grundg.Vitodens 111 B1LA 26kW FR,BE,SI 7498896 Grundg. Vitodens 100-W WB1B Kom. 26kW BE 7499418 Grundg. Vitodens 100-W WB1C Uml. 19kW 7499419 Grundg. Vitodens 100-W WB1C Uml. 26kW 7499420 Grundg. Vitodens 100-W WB1C Kom. 26kW 7499421 Grundg. Vitodens 100-W WB1C Uml. 35kW 7499422 Grundg. Vitodens 100-W WB1C Kom. 35kW 7499430 Grundg. WB1C Kom.26kW FR/BE/SI/ES 7499434 Grundg. Vitodens 100-W WB1C Kom. 26kW IT 7499441 Grundg.Vitod.100-W LN1GBQ18-WB1C U. 19kW 7499442 Grundg.Vitod.100-W LN1GBQ24-WB1C U. 26kW 7499443 Grundg.Vitod.100-W LL1GBQ24-WB1C K. 26kW 7499446 Grundg.Vitod.100-W LN1GBQ33-WB1C U. 35kW 7499447 Grundg.Vitod.100-W LL1GBQ33-WB1C K. 35kW 7499455 Grundg. Vitodens 200-W WB2C Uml.15kW ECP 7499472 Grundg.Vitodens 111 B1LA 19kW 7499473 Grundg.Vitodens 111 B1LA 26kW 7499477 Grundg.Vitodens 111 B1LA 26kW IT 7499486 Grundg.Vitodens 111 LL1GBQ24-B1LA CN 7499487 Grundg.Vitodens 111 LL1GBQ33-B1LA CN 7499498 Grundg. Vitodens 200W WB2C K 35kW ECP IT (7499498) 7501824 Grundg. Vitodens 100-W BPJA 25kW TR 7506537 Grundg. Vitotwin 300-W C3HA 26kW 7510294 Grundg. Vitodens 200-W B2HA Uml. 13kW 7510529 Grundg. Vitotwin 300-W C3HB 26kW 7513044 Grundg. Vitodens 222-F B2TA 19kW 7513045 Grundg. Vitodens 222-F B2TA 26kW 7513046 Grundg. Vitodens 222-F B2TA 35kW 7513233 Grundg. Vitodens 222-W B2LA 19kW 7513234 Grundg. Vitodens 222-W B2LA 26kW 7513235 Grundg. Vitodens 222-W B2LA 35kW 7513237 Grundg. Vitodens 222-W B2LA 26kW FR 7513240 Grundg. Vitodens 222-W B2LA 26kW PL 7513242 Grundg. Vitodens 222-F B2SA 19kW 7513243 Grundg. Vitodens 222-F B2SA 26kW 7513244 Grundg. Vitodens 242-F B2UA 19kW 7513245 Grundg. Vitodens 242-F B2UA 26kW 7513246 Grundg. Vitodens 200-W B2HA Solar 19kW 7513247 Grundg. Vitodens 200-W B2HA Solar 26kW 7513248 Grundg. Vitodens 200-W B2HA Solar 35kW 7513683 Grundg. Vitodens 200-W B2HA 13kW 7513684 Grundg. Vitodens 200-W B2HA 19kW 7514753 Grundg. Vitodens 200-W B2HA Solar 13kW 7514869 Grundg. Vitodens 100-W WB1C Kom. 26kW 7514870 Grundg. Vitodens 100-W WB1C Uml. 19kW 7519080 Grundg. Vitodens 222-W B2LA 13kW 7519081 Grundg. Vitodens 222-F B2TA 13kW 7519082 Grundg. Vitodens 222-F B2SA 13kW 7519083 Grundg. Vitodens 242-F B2UA 13kW 7521758 Grundgerät Vitosorp 200-F 7536907 Grundg. Vitodens 100-W B1HA Uml. 19kW 7536908 Grundg. Vitodens 100-W B1HA Uml. 26kW 7536909 Grundg. Vitodens 100-W B1KA Kom. 26kW 7537383 Grundgerät Vitocaldens 222-F 7542250 Grundgerät Vitodens 222-F B2TB 19kW CA 7542251 Grundg. Vitodens 222-F B2TB 125 CA/US 7543416 Grundg. Vitodens 100-W B1HA Uml. 26kW 7543427 Grundg. B1KA Kom.26kW FR/BE/SI/ES 7543428 Grundg. B1KA Kom.35kW FR/BE/SI/ES 7546528 Grundgerät Vitosorp 200-F 7549259 Grundg. Vitosorp 200-F DR2A-10 10kW 7553443 Grundg. Vitodens 200-W B2HB 13kW 7553444 Grundg. Vitodens 200-W B2HB 19kW 7553445 Grundg. Vitodens 200-W B2HB 26kW 7553446 Grundg. Vitodens 200-W B2KB 26kW 7553447 Grundg. Vitodens 200-W B2HB 35kW 7553448 Grundg. Vitodens 200-W B2KB 35kW 7554713 Grundgerät Vitocaldens 222-F 23/26kW 7570663 Grundg. Vitodens 100-W B1KC Kom. 26kW 7570666 Grundg. Vitodens 100-W B1HC-19 Uml. 7570678 Grundg. Vitodens 100-W B1KC-26 Kom. 7570681 Grundg. Vitodens 100-W B1HC-26 Uml. 7570682 Grundg. Vitodens 100-W B1KC-26 Kom. 7570692 Grundg. Vitodens 100-W B1HC-19 Uml. 7570693 Grundg. Vitodens 100-W B1HC-26 Uml. 7570694 Grundg. Vitodens 100-W B1KC-26 Kom. 7570731 Grundg.Vitodens 111-W B1LD 35kW 7570732 Grundg. Vitodens 111-W B1LD 26kW 7570737 Grundg. Vitodens 111-W B1LD 26kW 7570742 Grundg. Vitodens 111-W B1LD 19kW 7570775 Grundg. Vitodens 200-W B2HB 1,9-13kW 7570778 Grundg. Vitodens 200-W B2KB 2,6-26kW 7570779 Grundg. Vitodens 200-W B2HB 1,8- 35kW 7570780 Grundg. Vitodens 200-W B2KB 1,8-35kW 7570781 Grundg. Vitodens 200-W B2HB 2,4-13kW 7570782 Grundg. Vitodens 200-W B2HB 2,4-19kW 7570783 Grundg. Vitodens 200-W B2HB 4,5-26kW 7570784 Grundg. Vitodens 200-W B2KB 4,5-26kW 7570785 Grundg. Vitodens 200-W B2HB 4,5-35kW 7570786 Grundg. Vitodens 200-W B2KB 4,5-35kW 7570798 Grundg. Vitodens 222-W B2LB 2,4-13kW 7570799 Grundg. Vitodens 222-W B2LB 2,4-19kW 7570800 Grundg. Vitodens 222-W B2LB 4,5-26kW 7570801 Grundg. Vitodens 222-W B2LB 4,5-35kW 7570808 Grundg. Vitodens 222-F B2TB 1,9- 13kW 7570812 Grundg. Vitodens 222-F B2TB 2,4- 13kW 7570813 Grundg. Vitodens 222-F B2TB 2,4-19kW 7570814 Grundg. Vitodens 222-F B2TB 4,5-26kW 7570815 Grundg. Vitodens 222-F B2TB 4,5-35kW 7570819 Grundg. Vitodens 222-F B2SB 2,4-13kW 7570820 Grundg. Vitodens 222-F B2SB 2,4-19kW 7570821 Grundg. Vitodens 222-F B2SB 4,5-26kW 7570825 Grundg. Vitodens 242-F B2UB 2,4-13kW 7570826 Grundg. Vitodens 242-F B2UB 2,4-19kW 7570827 Grundg. Vitodens 242-F B2UB 4,5-26kW 7570972 Grundg. Vitodens 100-W B1KA Kom. 26kW 7570973 Grundg. Vitodens 100-W B1KA Kom. 26kW 7571977 Grundgerät Vitocaldens 222-F AC 26kW 7571978 Grundgerät Vitocaldens 222-F AC 29kW 7637817 Grundgerät Vitocaldens 222-F 7637818 Grundgerät Vitocaldens 222-F 23/26kW 7639838 Grundg. Vitovalor 300-P C3TB 19kW 7639846 Grundg. Vitovalor 300-P C3TB 26kW 7769547 Grundg. Vitotwin 300-W C3HC 26kW

45,66 €*

Art.Nr.: 183700902

ca. 2-4 Werktage (Mo-Fr.)

Viessmann Vitoset Aqua Leckage Bodensensor 7938832 für Enthärtungsanlage
Viessmann Vitoset Aqua Leckage Sensor Herstellerteilenummer: 7938832 Beschreibung: In Kombination mit Vitoset Absperrventil und mit Trinkwasserenthärtungsanlage Vitoset Aqua als Leckageschutz für die Trinkwasseranlage einsetzbar Integrierter Feuchtigkeitssensor Datenübertragung per Bluetooth (Klasse 2) Lieferumfang: Viessmann Vitoset Aqua Leckage Sensor

48,33 €*

Art.Nr.: 181345536

ca. 2-4 Werktage (Mo-Fr.)