Betriebsferien vom 22.12.2025 - 06.01.2026. Bestellungen werden erst ab dem 07.01.2026 ausgeliefert.

Weishaupt Paket Gas Brennwertgerät WTC-GW 25-B W Aufputz Außenfühler

Art.Nr.:
176965091
Herst.Nr.:
894001
EAN: 0792971483981
Lieferzeit:

ca. 1 Woche

EEK Spektrum: A++ -> G
EEK: a
a
a++ g
Datenblatt
Versandkostenfrei

4.647,31 €*

inkl. 19% MwSt. zzgl. 0.00 € Versand

Produktinformationen "Weishaupt Paket Gas Brennwertgerät WTC-GW 25-B W Aufputz Außenfühler"

Weishaupt Paket WTC-GW 25-B W - Aufputz Gas-Brennwertgerät

Hersteller: 894001

Beschreibung:

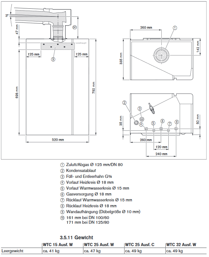
Weishaupt Wärmeerzeuger WTC-GW 25-B W, Aufputz Gas-Brennwertgerät mit Umschaltventil für Speicherladung, Absperrarmaturen für Heizung und Gas und Außenfühler.

  • drehzahlgeregelter (PWM) Hocheffizienz-Hybrid-Pumpe, die sowohl differenzdruckgeregelt, wie auch PWM-gesteuert betrieben werden kann.
  • Membranausdehnungsgefäß 10 Liter Für geschlossene Heizungsanlagen nach EN 12828.
  • Warmwasserumschaltventil
  • Betrieb ohne Mindestumlaufwassermenge
  • Zugelassen für Gasarten E, LL und B/P, für raumluftabhängigen und -unabhängigen Betrieb
  • Kesselkörper aus hochwertigem Aluminium-Silizium-Sandguss
  • Die großzügig dimensionierte Wärmetauscherfläche gewährleistet niedrige Abgastemperaturen und höchste Wirkungsgrade
  • Große Revisionsöffnungen ermöglichen eine wirkungsvolle Reinigung der Heizflächen
  • analoger Manometer und digitaler Druckaufnehmer
  • Luftsammeltopf mit automatischem Entlüfter
  • Ultraschall-Volumenstromsensor
  • Nivellierbare und seitlich verschiebbare Wandaufhängung.

Anforderungen an die Heizwasserqualität VDI 2035 oder vergleichbarer nationaler und/oder regionaler Vorschriften sind zu erfüllen.

Geräuschreduzierter modulierender Premix-Flächenbrenner für niedrige CO- und NOx-Emissionen, Modulationsbereich ca. 1:7. Die elektronische Verbrennungsregelung System Scot sorgt kontinuierlich für optimale Verbrennung mit höchstem Wirkungsgrad und niedrigen Emissionen und bietet zusätzliche Vorteile.

  • Einfache Inbetriebnahme
  • Ausregelung von Gas-Qualitäts- und Druckschwankungen
  • Automatische Erkennung verschiedener Erdgasarten
  • Keine Umbauteile bei Flüssiggasumstellung erforderlich
  • Verlängerte Prüfintervalle für Schornsteinfeger (alle 3 Jahre)

Technische Daten:

  • Feuerungswärmeleistung: 3,0 - 24,0 kW
  • Nennleistung modulierend (Tv/Tr 50/30°C) 3,3 - 26,0 kW
  • Nennleistung modulierend (Tv/Tr 80/60°C) 2,9 - 23,6 kW
  • Kesselwirkungsgrad bei 100 %: 98,5 %
  • Kesselwirkungsgrad bei 30 %: 110,3 %
  • Zulässiger Betriebsdruck in bar: 3
  • Gewicht in kg: 47
  • Geräteabmessungen B x H x T in mm: 520 / 792 / 335
  • Zuluft-/Abgas-Anschluss: DN 125/80
  • Energieeffizienzkennzeichnung:
  • Klasse für die jahreszeitbedingte Raumheizungs-Energieeffizienz: A
  • Jahreszeitbedingte Raumheizungs-Energieeffizienz: 94 %
  • Wärmenennleistung: 23 kW
  • Jährlicher Energieverbrauch als Endenergie (Raumheizung): 12766 kWh
  • Schallleistungspegel Lwa: 48 dB

Beschreibung serienmäßiges Regelsystem:

Modulares Regelsystem WEM zur Regelung der kesselinternen Vorgänge und Komponenten sowie eines Pumpenheizkreises und eines Trinkwasserspeichers. Das System kann bis auf 24 Mischerheizkreise mit jeweils bis zu 3 Raumfühlern erweitert werden.

Lieferumfang:

  • 48311201 Gas-Brennwertgerät WTC-GW 25-B W (WEM-Regelung)
  • 48300000152 Anschlussgruppe WHI con-heat 25 #1 für WTC-GW 15 ... 32-B
  • 50900000822 Außenfühler NTC 2k für WWP, WTC15...100, WTC-GB 620 mit Befestigungsset
  • 48000007342 Gas-Durchgangshahn Rp 1/2 I x 18 mm MOP5 mit TAE, für WTC-GW 15 ... 32
  • 48000007022 Aqua-Anschlussgruppe Typ WHA 4.0 für Aufputzmontagen bei WTC-GW 15 ... 32 W

Installation:

    Die Montage (Gas/Wasser) sowie die Erstinbetriebnahme und die Wartung dieses Gerätes dürfen nur von einem SHK-Anlagenmechaniker in Übereinstimmung mit den gültigen Vorschriften sowie entsprechend dieser Anweisung ausgeführt werden!

WEEE-Reg.-Nr.: DE98383902

Allg. Sicherheitshinweise:

Zur Vermeidung von Körper- und Gesundheitsschäden sind die Montage, Erstinbetriebnahme, Inspektion, Wartung und Instandsetzung von autorisierten Fachkräften (Heizungs- / Sanitärfachbetrieb / Vertragsinstallationsunternehmen) vorzunehmen!

Bestimmungsgemäße Verwendung: Bitte beachten Sie die bei Installation und Montage beiliegende Installations-, Betriebs- und Wartungsanleitungen sowie Produkt-/Systemzulassungen aller Anlagenkomponenten. Bei Wärmeerzeugern ist es zum Beispiel regelmäßig der Fall, dass allein für diese Heizung zugelassene Abgastechnik zur Verwendung gelangen darf. Zur bestimmungsgemäßen Verwendung gehört gleichsam die Einhaltung der ebenfalls in o.g. Unterlagen enthaltenen Inspektions- und Wartungsbedingungen.

Elektrische Heizgeräte sowie Durchlauferhitzer mit Starkstromanschluß (400V) dürfen nur durch jeweiligen Netzbetreiber oder durch ein in das Installateurverzeichnis des Netzbetreibers eingetragenes Installationsunternehmen installiert werden!

Elektrogeräte mit Drei-Phasen-Wechselstrom-Anschluss (3~/400V) und "nicht-steckerfertigen Geräten" sind von einem Fachbetrieb zu installieren. Geräte mit einer Nennleistung von mehr als 12 kW müssen vor der Erstinstallation eine Zustimmung vom Netzbetrieber erhalten.

Installation, Inspektion, Wartung und Instandsetzung von Gasgeräten sowie Gaseinstellungen darf nur ein Fachhandwerker durchführen!

Herstellerinformationen

Max Weishaupt AG
Max-Weishaupt-Straße 14
88477 Schwendi
DE

Tel: +497353830
E-Mail: info@weishaupt.de
Art.Nr.:
176965091
Herst.Nr.:
894001
EAN: 0792971483981
Lieferzeit:

ca. 1 Woche

EEK Spektrum: A++ -> G
EEK: a
a
a++ g
Datenblatt
Versandkostenfrei

4.647,31 €*

inkl. 19% MwSt. zzgl. 0.00 € Versand

Produktinformationen "Weishaupt Paket Gas Brennwertgerät WTC-GW 25-B W Aufputz Außenfühler"

Weishaupt Paket WTC-GW 25-B W - Aufputz Gas-Brennwertgerät

Hersteller: 894001

Beschreibung:

Weishaupt Wärmeerzeuger WTC-GW 25-B W, Aufputz Gas-Brennwertgerät mit Umschaltventil für Speicherladung, Absperrarmaturen für Heizung und Gas und Außenfühler.

  • drehzahlgeregelter (PWM) Hocheffizienz-Hybrid-Pumpe, die sowohl differenzdruckgeregelt, wie auch PWM-gesteuert betrieben werden kann.
  • Membranausdehnungsgefäß 10 Liter Für geschlossene Heizungsanlagen nach EN 12828.
  • Warmwasserumschaltventil
  • Betrieb ohne Mindestumlaufwassermenge
  • Zugelassen für Gasarten E, LL und B/P, für raumluftabhängigen und -unabhängigen Betrieb
  • Kesselkörper aus hochwertigem Aluminium-Silizium-Sandguss
  • Die großzügig dimensionierte Wärmetauscherfläche gewährleistet niedrige Abgastemperaturen und höchste Wirkungsgrade
  • Große Revisionsöffnungen ermöglichen eine wirkungsvolle Reinigung der Heizflächen
  • analoger Manometer und digitaler Druckaufnehmer
  • Luftsammeltopf mit automatischem Entlüfter
  • Ultraschall-Volumenstromsensor
  • Nivellierbare und seitlich verschiebbare Wandaufhängung.

Anforderungen an die Heizwasserqualität VDI 2035 oder vergleichbarer nationaler und/oder regionaler Vorschriften sind zu erfüllen.

Geräuschreduzierter modulierender Premix-Flächenbrenner für niedrige CO- und NOx-Emissionen, Modulationsbereich ca. 1:7. Die elektronische Verbrennungsregelung System Scot sorgt kontinuierlich für optimale Verbrennung mit höchstem Wirkungsgrad und niedrigen Emissionen und bietet zusätzliche Vorteile.

  • Einfache Inbetriebnahme
  • Ausregelung von Gas-Qualitäts- und Druckschwankungen
  • Automatische Erkennung verschiedener Erdgasarten
  • Keine Umbauteile bei Flüssiggasumstellung erforderlich
  • Verlängerte Prüfintervalle für Schornsteinfeger (alle 3 Jahre)

Technische Daten:

  • Feuerungswärmeleistung: 3,0 - 24,0 kW
  • Nennleistung modulierend (Tv/Tr 50/30°C) 3,3 - 26,0 kW
  • Nennleistung modulierend (Tv/Tr 80/60°C) 2,9 - 23,6 kW
  • Kesselwirkungsgrad bei 100 %: 98,5 %
  • Kesselwirkungsgrad bei 30 %: 110,3 %
  • Zulässiger Betriebsdruck in bar: 3
  • Gewicht in kg: 47
  • Geräteabmessungen B x H x T in mm: 520 / 792 / 335
  • Zuluft-/Abgas-Anschluss: DN 125/80
  • Energieeffizienzkennzeichnung:
  • Klasse für die jahreszeitbedingte Raumheizungs-Energieeffizienz: A
  • Jahreszeitbedingte Raumheizungs-Energieeffizienz: 94 %
  • Wärmenennleistung: 23 kW
  • Jährlicher Energieverbrauch als Endenergie (Raumheizung): 12766 kWh
  • Schallleistungspegel Lwa: 48 dB

Beschreibung serienmäßiges Regelsystem:

Modulares Regelsystem WEM zur Regelung der kesselinternen Vorgänge und Komponenten sowie eines Pumpenheizkreises und eines Trinkwasserspeichers. Das System kann bis auf 24 Mischerheizkreise mit jeweils bis zu 3 Raumfühlern erweitert werden.

Lieferumfang:

  • 48311201 Gas-Brennwertgerät WTC-GW 25-B W (WEM-Regelung)
  • 48300000152 Anschlussgruppe WHI con-heat 25 #1 für WTC-GW 15 ... 32-B
  • 50900000822 Außenfühler NTC 2k für WWP, WTC15...100, WTC-GB 620 mit Befestigungsset
  • 48000007342 Gas-Durchgangshahn Rp 1/2 I x 18 mm MOP5 mit TAE, für WTC-GW 15 ... 32
  • 48000007022 Aqua-Anschlussgruppe Typ WHA 4.0 für Aufputzmontagen bei WTC-GW 15 ... 32 W

Installation:

    Die Montage (Gas/Wasser) sowie die Erstinbetriebnahme und die Wartung dieses Gerätes dürfen nur von einem SHK-Anlagenmechaniker in Übereinstimmung mit den gültigen Vorschriften sowie entsprechend dieser Anweisung ausgeführt werden!

WEEE-Reg.-Nr.: DE98383902

Allg. Sicherheitshinweise:

Zur Vermeidung von Körper- und Gesundheitsschäden sind die Montage, Erstinbetriebnahme, Inspektion, Wartung und Instandsetzung von autorisierten Fachkräften (Heizungs- / Sanitärfachbetrieb / Vertragsinstallationsunternehmen) vorzunehmen!

Bestimmungsgemäße Verwendung: Bitte beachten Sie die bei Installation und Montage beiliegende Installations-, Betriebs- und Wartungsanleitungen sowie Produkt-/Systemzulassungen aller Anlagenkomponenten. Bei Wärmeerzeugern ist es zum Beispiel regelmäßig der Fall, dass allein für diese Heizung zugelassene Abgastechnik zur Verwendung gelangen darf. Zur bestimmungsgemäßen Verwendung gehört gleichsam die Einhaltung der ebenfalls in o.g. Unterlagen enthaltenen Inspektions- und Wartungsbedingungen.

Elektrische Heizgeräte sowie Durchlauferhitzer mit Starkstromanschluß (400V) dürfen nur durch jeweiligen Netzbetreiber oder durch ein in das Installateurverzeichnis des Netzbetreibers eingetragenes Installationsunternehmen installiert werden!

Elektrogeräte mit Drei-Phasen-Wechselstrom-Anschluss (3~/400V) und "nicht-steckerfertigen Geräten" sind von einem Fachbetrieb zu installieren. Geräte mit einer Nennleistung von mehr als 12 kW müssen vor der Erstinstallation eine Zustimmung vom Netzbetrieber erhalten.

Installation, Inspektion, Wartung und Instandsetzung von Gasgeräten sowie Gaseinstellungen darf nur ein Fachhandwerker durchführen!

Herstellerinformationen

Max Weishaupt AG
Max-Weishaupt-Straße 14
88477 Schwendi
DE

Tel: +497353830
E-Mail: info@weishaupt.de

Ähnliche Artikel

Vaillant Gas Warmwasser Geyser atmoMAG 114/1 Z LL-Gas 0010022557 Durchlauferhitzer
VAILLANT Gas-Warmwasser-Geyser atmoMAG 114/1 Z LL-Gas Herstellerteilenummer: 0010022557 Beschreibung: VAILLANT Warmwasser-Geyser MAG 114/1Z LL Gas-Durchlaufwasserheizer für Kaminanschluß Warmwasser-Geyser - OPTI-MOD-Funktion (Geräteleistung zwischen 40% und 100% der Nennwärmeleistung bedarfsabhängig wählbar) - Temperaturwähler - Anspringwassermenge 2,3 l bzw. 3,2 l - Dezentrale und gruppenweise Versorgung - Direkt- oder Fernzapfung - Thermostat-Mischbatterien und Einhebelmischer einsetzbar - Piezo-Zünder Ausstattung - Thermoelektrische Zündsicherung - Strömungssicherung eingebaut - Wassermengenregler - Abgassensor serienmäßig Technische Daten: Heizleistung 8,4-19,2 kW Warmwasserleistung 50K max. 5,5 l/min Kalt-/Warmwasseranschluss R 1/2 Gasanschluss R 1/2 Abgasanschluss 110 mm Höhe/Breite/Tiefe 680/350/259 mm Gewicht 10,9 kg CE PIN CE-1008CS3137 Warmwasserbereitungs-Energieeffizienzklasse A (Spektrum A+ bis F) Bestell-Nr. 0010022557 Lieferumfang: VAILLANT Gas-Warmwasser-Geyser atmoMAG 114/1 Z LL-Gas Montage- und Bedienungsanleitung Installation: Die Montage (Wasser und Elektroinstallation) sowie die Erstinbetriebnahme und die Wartung dieses Gerätes dürfen nur von einer entsprechenden Fachkraft in Übereinstimmung mit den gültigen Vorschriften sowie entsprechend dieser Anweisung ausgeführt werden!

1.120,03 €*

Art.Nr.: 182924955

ca. 1 Woche

Vaillant Gas Warmwasser Durchlauferhitzer atmoMAG 114/1 I E-Gas 0010022558
VAILLANT Gas-Warmwasser-Geyser atmoMAG 114/1 I E-Gas Herstellerteilenummer: 0010022558 Beschreibung: VAILLANT Warmwasser-Geyser MAG 114/1 I E Gas-Durchlaufwasserheizer für Kaminanschluß Warmwasser-Geyser - OPTI-MOD-Funktion (Geräteleistung zwischen 40% und 100% der Nennwärmeleistung bedarfsabhängig wählbar) - Temperaturwähler - Anspringwassermenge 2,3 l bzw. 3,2 l - Dezentrale und gruppenweise Versorgung - Direkt- oder Fernzapfung - Thermostat-Mischbatterien und Einhebelmischer einsetzbar - Piezo-Zünder Ausstattung - Elektronische Zünd- und Überwachungseinrichtung - Strömungssicherung eingebaut - Wassermengenregler - Abgassensor serienmäßig - 2 Batterien (Monozellen 1,5 V, Typ LR20) Technische Daten: Heizleistung 8,4-19,2 kW Warmwasserleistung 50K max. 5,5 l/min Kalt-/Warmwasseranschluss R 1/2 Gasanschluss R 1/2 Abgasanschluss 110 mm Höhe/Breite/Tiefe 680/350/259 mm Gewicht 10,9 kg CE PIN CE-1008CS3137 Warmwasserbereitungs-Energieeffizienzklasse A (Spektrum A+ bis F) Bestell-Nr. 0010022557 Lieferumfang: VAILLANT Gas-Warmwasser-Geyser atmoMAG 114/1 I E-Gas Montage- und Bedienungsanleitung Installation: Die Montage (Wasser und Elektroinstallation) sowie die Erstinbetriebnahme und die Wartung dieses Gerätes dürfen nur von einer entsprechenden Fachkraft in Übereinstimmung mit den gültigen Vorschriften sowie entsprechend dieser Anweisung ausgeführt werden!

1.212,45 €*

Art.Nr.: 182924956

ca. 1 Woche

Vaillant Gas Warmwasser Geyser atmoMAG 144/1 Z E-Gas 0010022562 Durchlauferhitzer
VAILLANT Gas-Warmwasser-Geyser MAG 144/1 Z E Herstellerteilenummer: 0010022562 Beschreibung: VAILLANT Warmwasser-Geyser MAG 144/1 Z E Gas-Durchlaufwasserheizer für Kaminanschluß Warmwasser-Geyser - OPTI-MOD-Funktion (Geräteleistung zwischen 40% und 100% der Nennwärmeleistung bedarfsabhängig wählbar) - Temperaturwähler - Anspringwassermenge 2,3 l bzw. 3,2 l - Dezentrale und gruppenweise Versorgung - Direkt- oder Fernzapfung - Thermostat-Mischbatterien und Einhebelmischer einsetzbar - Piezo-Zünder Ausstattung - Thermoelektrische Zündsicherung - Strömungssicherung eingebaut - Wassermengenregler - Abgassensor serienmäßig Technische Daten: Heizleistung 10,4-24,4 kW Warmwasserleistung 50K max. 7,0 l/min Kalt-/Warmwasseranschluss R 1/2 Gasanschluss R 1/2 Abgasanschluss 130 mm Höhe/Breite/Tiefe 680/350/259 mm Gewicht 12,2 kg CE PIN CE-1008CS3137 Warmwasserbereitungs-Energieeffizienzklasse A (Spektrum A+ bis F) Bestell-Nr. 0010022562 Lieferumfang: VAILLANT Gas-Warmwasser-Geyser atmoMAG 144/1 Z E-Gas Montage- und Bedienungsanleitung Installation: Die Montage (Wasser und Elektroinstallation) sowie die Erstinbetriebnahme und die Wartung dieses Gerätes dürfen nur von einer entsprechenden Fachkraft in Übereinstimmung mit den gültigen Vorschriften sowie entsprechend dieser Anweisung ausgeführt werden!

1.371,01 €*

Art.Nr.: 182924959

ca. 1 Woche

Vaillant Gas Warmwasser Geyser atmoMAG 144/1 Z LL-Gas 0010022563 Durchlauferhitzer
VAILLANT Gas-Warmwasser-Geyser MAG 144/1 Z LL-gas Herstellerteilenummer: 0010022563 Beschreibung: VAILLANT Warmwasser-Geyser MAG 144/1 Z E Gas-Durchlaufwasserheizer für Kaminanschluß Warmwasser-Geyser - OPTI-MOD-Funktion (Geräteleistung zwischen 40% und 100% der Nennwärmeleistung bedarfsabhängig wählbar) - Temperaturwähler - Anspringwassermenge 2,3 l bzw. 3,2 l - Dezentrale und gruppenweise Versorgung - Direkt- oder Fernzapfung - Thermostat-Mischbatterien und Einhebelmischer einsetzbar - Piezo-Zünder Ausstattung - Thermoelektrische Zündsicherung - Strömungssicherung eingebaut - Wassermengenregler - Abgassensor serienmäßig Technische Daten: Heizleistung 10,4-24,4 kW Warmwasserleistung 50K max. 7,0 l/min Kalt-/Warmwasseranschluss R 1/2 Gasanschluss R 1/2 Abgasanschluss 130 mm Höhe/Breite/Tiefe 680/350/259 mm Gewicht 12,2 kg CE PIN CE-1008CS3137 Warmwasserbereitungs-Energieeffizienzklasse A (Spektrum A+ bis F) Bestell-Nr. 0010022563 Lieferumfang: VAILLANT Gas-Warmwasser-Geyser atmoMAG 144/1 Z LL-Gas Montage- und Bedienungsanleitung Installation: Die Montage (Wasser und Elektroinstallation) sowie die Erstinbetriebnahme und die Wartung dieses Gerätes dürfen nur von einer entsprechenden Fachkraft in Übereinstimmung mit den gültigen Vorschriften sowie entsprechend dieser Anweisung ausgeführt werden!

1.371,01 €*

Art.Nr.: 182925568

ca. 1 Woche

Vaillant Gas Warmwasser Geyser atmoMAG 144/1 I E-Gas 0010022564 Durchlauferhitzer
VAILLANT Gas-Warmwasser-Geyser MAG 144/1 I E-Gas Herstellerteilenummer: 0010022564 Beschreibung: VAILLANT Warmwasser-Geyser MAG 144/1 I E Gas-Durchlaufwasserheizer für Kaminanschluß Warmwasser-Geyser - OPTI-MOD-Funktion (Geräteleistung zwischen 40% und 100% der Nennwärmeleistung bedarfsabhängig wählbar) - Temperaturwähler - Anspringwassermenge 2,3 l bzw. 3,2 l - Dezentrale und gruppenweise Versorgung - Direkt- oder Fernzapfung - Thermostat-Mischbatterien und Einhebelmischer einsetzbar - Piezo-Zünder Ausstattung - Elektronische Zünd- und Überwachungseinrichtung - Strömungssicherung eingebaut - Wassermengenregler - Abgassensor serienmäßig - 2 Batterien (Monozellen 1,5 V, Typ LR20) Technische Daten: Heizleistung 10,4-24,4 kW Warmwasserleistung 50K max. 7,0 l/min Kalt-/Warmwasseranschluss R 1/2 Gasanschluss R 1/2 Abgasanschluss 130 mm Höhe/Breite/Tiefe 680/350/259 mm Gewicht 12,2 kg CE PIN CE-1008CS3137 Warmwasserbereitungs-Energieeffizienzklasse A (Spektrum A+ bis F) Bestell-Nr. 0010022564 Lieferumfang: VAILLANT Gas-Warmwasser-Geyser atmoMAG 144/1 I E-Gas Montage- und Bedienungsanleitung Installation: Die Montage (Wasser und Elektroinstallation) sowie die Erstinbetriebnahme und die Wartung dieses Gerätes dürfen nur von einer entsprechenden Fachkraft in Übereinstimmung mit den gültigen Vorschriften sowie entsprechend dieser Anweisung ausgeführt werden!

1.460,88 €*

Art.Nr.: 182925574

ca. 1 Woche

Remeha Tzerra Ace Matic 15 DS 15 kW Gas Brennwert Therme Wandkessel 7825255
Remeha Gas-Brennwert-Wandkessel Tzerra Ace-Matic 15 DS, 15 kW  Herstellerteilenummer: 7825255 Beschreibung: Der Remeha Tzerra Ace-Matic ist einer der kleinsten und leichtesten Brennwertkessel. Die vertraute Technik und Qualität von Remeha bilden hierbei die Grundlage und garantieren optimale Zuverlässigkeit und Wartungsfreundlichkeit. Klein und einfach Der Remeha Tzerra Ace-Matic zeichnet sich im Vergleich zu anderen Brennwertkesseln durch seine kleinen Abmessungen und sein geringes Gewicht aus. Ein Kessel mit nur 27,5 kg Gewicht, der zudem so kompakt und leise ist, kann nahezu überall installiert werden und auch die Anforderungen an die Montagewand sind gering. Das Aufhängen und Installieren des kleinen, leichten Kessels geschieht im Handumdrehen, mithilfe des Montagerahmens sogar noch einfacher. Ein Monteur kann das Gerät daher problemlos alleine montieren, auch auf einem Dachboden oder in einem der oberen Stockwerke. So vertraut und doch ganz anders Der Tzerra Ace-Matic bietet die vertraute Remeha Qualität. Der Tzerra Ace-Matic wird über den eTwist gesteuert und sorgt durch seine modulierende Steuerung für eine optimale Leistung. Er bietet die gleichen und umfangreichen Vorteile aller Remeha Kessel und ist zudem unglaublich einfach zusammengesetzt. Remeha Tzerra Ace-Matic 15 DS Gas-Brennwertgerät als Wandgerät für raumluftunabhängigen oder raumluftabhängigen Betrieb. CE-zertifiziert für geschlossenen Heizungsanlagen nach DIN EN 12828. Monoblock-Wärmetauscher aus korrosionsbeständigen Edelstahl mit integriertem Edelstahlvormischbrenner, modulierend von 15% bis 100%. Drehzahlgeregeltes Gebläse sowie Gasarmatur mit erhöhter Sicherheit. Comfort Master Gasfeuerungsautomat mit allen erforderlichen Sicherheitsfunktionen. Klarsichtdisplay für Heizung und Warmwassertemperatur, sowie Grundanzeige für Status und Störmeldeanzeige. Ausstattung: Elektronisch geregelte Umwälzpumpe mit Permanentmagnetmotor EEI < 0,20 Schnellentlüfter, Sicherheitsventil, Membranausdehnungsgefäß 7 Liter, Dreiwege-Umschaltventil und Plattenwärmetauscher für Brauchwasserbereitung. Für Erdgas E/LL/Flüssiggas geeignet. Voreingestellt auf Erdgas E (H). Gehäuse aus Metall, Farbe RAL 9003, Front in Kunststoff. Technische Daten: Typ: Tzerra Ace-Matic 15 DS Nennwärmeleistungsbereich: 2,2 bis 16,3 kW (50/30) 2,1 bis 15 kW (80/60) Abgasanschluss: 60/100 Abmessungen: H/B/T 700/395/291 mm Abgasanschluss konzentrisch DN 60/100 Gewicht 27,5 kg Mindestumlaufwassermenge nicht erforderlich. Raumheizungs-EEK: A Wärmenennleistung (Prated): 15 kW Raumheizungs-EE (etaS): 94 % Schallleistungspegel (Lwa/Innen): 50 dB Lieferumfang: Remeha Gas-Brennwert-Wandkessel Tzerra Ace-Matic 15 DS, 15 kW Montage- und Bedienungsanleitung Installation: Die Montage (Gas /Wasser/ Elektro ) sowie die Erstinbetriebnahme und die Wartung dieses Gerätes dürfen nur von einem SHK-Anlagenmechaniker in Übereinstimmung mit den gültigen Vorschriften sowie entsprechend dieser Anweisung ausgeführt werden!

2.193,21 €*
a
a+++ d

Art.Nr.: 179161864

ca. 1-2 Wochen

Remeha Tzerra Ace Matic 25 DS 24 kW Gas Brennwert Therme Wandkessel 7826401
Remeha Gas-Brennwert-Wandkessel Tzerra Ace-Matic 25 DS, 24 kW  Herstellerteilenummer: 7826401 Beschreibung: Der Remeha Tzerra Ace-Matic ist einer der kleinsten und leichtesten Brennwertkessel. Die vertraute Technik und Qualität von Remeha bilden hierbei die Grundlage und garantieren optimale Zuverlässigkeit und Wartungsfreundlichkeit. Klein und einfach Der Remeha Tzerra Ace-Matic zeichnet sich im Vergleich zu anderen Brennwertkesseln durch seine kleinen Abmessungen und sein geringes Gewicht aus. Ein Kessel mit nur 27,5 kg Gewicht, der zudem so kompakt und leise ist, kann nahezu überall installiert werden und auch die Anforderungen an die Montagewand sind gering. Das Aufhängen und Installieren des kleinen, leichten Kessels geschieht im Handumdrehen, mithilfe des Montagerahmens sogar noch einfacher. Ein Monteur kann das Gerät daher problemlos alleine montieren, auch auf einem Dachboden oder in einem der oberen Stockwerke. So vertraut und doch ganz anders Der Tzerra Ace-Matic bietet die vertraute Remeha Qualität. Der Tzerra Ace-Matic wird über den eTwist gesteuert und sorgt durch seine modulierende Steuerung für eine optimale Leistung. Er bietet die gleichen und umfangreichen Vorteile aller Remeha Kessel und ist zudem unglaublich einfach zusammengesetzt. Remeha Tzerra Ace-Matic 25 DS Gas-Brennwertgerät als Wandgerät für raumluftunabhängigen oder raumluftabhängigen Betrieb. CE-zertifiziert für geschlossenen Heizungsanlagen nach DIN EN 12828. Monoblock-Wärmetauscher aus korrosionsbeständigen Edelstahl mit integriertem Edelstahlvormischbrenner, modulierend von 13% bis 100%. Drehzahlgeregeltes Gebläse sowie Gasarmatur mit erhöhter Sicherheit. Comfort Master Gasfeuerungsautomat mit allen erforderlichen Sicherheitsfunktionen. Klarsichtdisplay für Heizung und Warmwassertemperatur, sowie Grundanzeige für Status und Störmeldeanzeige. Ausstattung: Elektronisch geregelte Umwälzpumpe mit Permanentmagnetmotor EEI < 0,20 Schnellentlüfter, Sicherheitsventil, Membranausdehnungsgefäß 7 Liter, Dreiwege-Umschaltventil und Plattenwärmetauscher für Brauchwasserbereitung. Für Erdgas E/LL/Flüssiggas geeignet. Voreingestellt auf Erdgas E (H). Gehäuse aus Metall, Farbe RAL 9003, Front in Kunststoff. Technische Daten: Typ: Tzerra Ace-Matic 15 DS Nennwärmeleistungsbereich: 3,3 bis 26,1 kW (50/30) 3 bis 24 kW (80/60) Abgasanschluss: 60/100 Abmessungen: H/B/T 700/395/291 mm Abgasanschluss konzentrisch DN 60/100 Gewicht 27,5 kg Mindestumlaufwassermenge nicht erforderlich. Raumheizungs-EEK: A Wärmenennleistung (Prated): 24 kW Raumheizungs-EE (etaS): 94 % Schallleistungspegel (Lwa/Innen): 50 dB Lieferumfang: Remeha Gas-Brennwert-Wandkessel Tzerra Ace-Matic 25 DS, 24 kW Montage- und Bedienungsanleitung Installation: Die Montage (Gas /Wasser/ Elektro ) sowie die Erstinbetriebnahme und die Wartung dieses Gerätes dürfen nur von einem SHK-Anlagenmechaniker in Übereinstimmung mit den gültigen Vorschriften sowie entsprechend dieser Anweisung ausgeführt werden!

2.218,44 €*
a
a+++ d

Art.Nr.: 179161865

ca. 1 Woche

Remeha Gas Brennwert Kombiheizkessel Tzerra Ace-Matic 28 C 28 kW 7825256
Remeha Gas-Brennwert-Kombiheizkessel Tzerra Ace-Matic 28 C, 28 kW Herstellerteilenummer: 7825256   Beschreibung: Der Remeha Tzerra Ace-Matic ist einer der kleinsten und leichtesten Brennwertkessel. Die vertraute Technik und Qualität von Remeha bilden hierbei die Grundlage und garantieren optimale Zuverlässigkeit und Wartungsfreundlichkeit. Klein und einfach Der Remeha Tzerra Ace-Matic zeichnet sich im Vergleich zu anderen Brennwertkesseln durch seine kleinen Abmessungen und sein geringes Gewicht aus. Ein Kessel mit nur 27,5 kg Gewicht, der zudem so kompakt und leise ist, kann nahezu überall installiert werden und auch die Anforderungen an die Montagewand sind gering. Das Aufhängen und Installieren des kleinen, leichten Kessels geschieht im Handumdrehen, mithilfe des Montagerahmens sogar noch einfacher. Ein Monteur kann das Gerät daher problemlos alleine montieren, auch auf einem Dachboden oder in einem der oberen Stockwerke. So vertraut und doch ganz anders Der Tzerra Ace-Matic bietet die vertraute Remeha Qualität. Der Tzerra Ace-Matic wird über den eTwist gesteuert und sorgt durch seine modulierende Steuerung für eine optimale Leistung. Er bietet die gleichen und umfangreichen Vorteile aller Remeha Kessel und ist zudem unglaublich einfach zusammengesetzt. Remeha Tzerra Ace-Matic 28 C Gas-Brennwert-Combigerät als Wandgerät für raumluftunabhängigen oder raumluftabhängigen Betrieb. CE-zertifiziert für geschlossenen Heizungsanlagen nach DIN EN 12828. Monoblock-Wärmetauscher aus korrosionsbeständigen Edelstahl mit integriertem Edelstahlvormischbrenner, modulierend von 13% bis 100%. Drehzahlgeregeltes Gebläse mit Ansaugschalldämpfer, sowie Gasarmatur mit erhöhter Sicherheit. Comfort Master Gasfeuerungsautomat mit allen erforderlichen Sicherheitsfunktionen. mit Klarsichtdisplay für Heizung und Warmwassertemperatur, sowie Grundanzeige für Status und Störmeldeanzeige. Ausstattung: Elektronisch geregelte Umwälzpumpe mit Permanentmagnetmotor EEI < 0,20 Schnellentlüfter, Sicherheitsventil, Membranausdehnungsgefäß 7 Liter, Dreiwege-Umschaltventil und Plattenwärmetauscher für Brauchwasserbereitung. Für Erdgas E/LL/Flüssiggas geeignet. Voreingestellt auf Erdgas E (H). Gehäuse aus Metall, Farbe RAL 9003, Front in Kunststoff. Technische Daten: Typ: Tzerra Ace-Matic 28 C Nennwärmeleistungsbereich Heizung 3,8 bis 26,1 kW (50/30) 3,5 bis 20 kW (80/60) Nennwärmeleistungsbereich Warmwasser 3,6 bis 28 kW Abgasanschluss: 60/100 Abmessungen: H/B/T 700/395/291 mm Abgasanschluss konzentrisch DN 60/100 Gewicht 27,5 kg Mindestumlaufwassermenge nicht erforderlich. Raumheizungs-EEK: A Warmwasserbereitungs-EEK (XL): A Wärmenennleistung (Prated): 24 kW Raumheizungs-EE (etaS): 94 % Warmwasserbereitungs-EE (etaWH): 85 % Schallleistungspegel (Lwa/Innen): 50 dB   Lieferumfang: Remeha Gas-Brennwert-Kombiheizkessel Tzerra Ace-Matic 28 C, 28 kW Montage- und Bedienungsanleitung Installation: Die Montage (Gas /Wasser/ Elektro ) sowie die Erstinbetriebnahme und die Wartung dieses Gerätes dürfen nur von einem SHK-Anlagenmechaniker in Übereinstimmung mit den gültigen Vorschriften sowie entsprechend dieser Anweisung ausgeführt werden!

2.285,86 €*
a
a+++ d
Datenblatt

Art.Nr.: 179160216

ca. 1 Woche

Wolf Gas Brennwertgerät CGB-2-14 kW Brennwert Gastherme Heiztherme ohne Regelung
Wolf CGB-2 14 kW Gasbrennwerttherme Herstellernummer: 8615008 Beschreibung: Wolf Gas-Brennwerttherme CGB-2 für den Betrieb mit Erdgas E,LL oder Flüssiggas. Werkseitig für Erdgas E, LL eingestellt, umstellbar auf Flüssiggas. Für die Raumheizung mit Anschlussmöglichkeit für einen separaten Speicher-Wassererwärmer Geprüft nach EG-Richtlinien und DIN EN 483 für Heizungsanlagen nach DIN EN 12828 mit Vorlauftemperaturen bis 90C und 3 bar zulässigem Betriebsdruck, geeignet für gleitend abgesenkten Betrieb bis auf Raumtemperatur. Leistung modulierend geregelt, gas-adaptive, selbst kalibrierende Verbrennungsregelung mit Vormischbrenner für extrem niedrige Schadstoffemissionen und sich ändernde Gasbeschaffenheit, geschlossene Brennkammer für raumluftabhängigen und -unabhängigen Betrieb. Vorteile der Wolf CGB: Gasbrennwertgeräte, Brennkammer geschlossen, für raumluftabhängigen und raumluftunabhängigen Betrieb Hoher Normnutzungsgrad bis 110% (Hi) / 99% (Hs) für bestmögliche Energieausnutzung Vormischbrenner für Erdgas E, LL und Flüssiggas, stufenlos modulierende Wärmeleistung ab 1,8 kW Serienmäßig mit Ausdehnungsgefäß, modulierender Hocheffizienzpumpe (EEI < 0,23) und 3-Wege-Ventil Beschichteter Heizwasserwärmetauscher WOLF "ALUPro" Effiziente Verbrennungstechnologie durch gasadaptive, selbstkalibrierende Verbrennungsregelung mit selbsttätiger Anpassung an die Gasqualität (z.B. Biogas) Automatische CO2-Einstellung durch selbstkalibrierende Verbrennungsluftregelung für extrem niedrige Schadstoffemission Kein Überströmventil, keine Rücklauftemperaturanhebung - für höchsten Brennwertnutzen Schnelle Montage, einfache Bedienung und Wartung mit bequemem Zugang zu allen Bauteilen Zur Wartung Heizwasser-Wärmetauscher unter Anlagendruck ausschwenkbar ohne Heizwasser abzulassen Technische Daten: Energieeffizienzklasse: Raumheizung A Wärmetauscher beschichtet Nennwärmeleistung (Heiz-/Warmwasserbetr.) bei 80/60C: 1,8 - 13,5 kW bei 50/30C: 2,1 - 15,2 kW Nennbelastung: 14 kW kleinste Wärmebelastung (mod.) 1,9kw Abgastemperatur (Qmax/Qmin) bei 80/60C: 62/45 C bei 50/30C: 30/25 C Normnutzungsgrad (HI/Hs) bei 40/30C: 110/99 % bei 75/60C: 107/96 % Vorlauftemperatur max.: 90 C Gesamtüberdruck max.: 3,0 bar Ausdehnungsgefäß Inhalt: 10 L Heizwasserwärmetauscherinhalt: 1,3 L Restförderhöhe für Hocheffizienzpumpe EE i<0,23: 600L/h Förderm.(14kW b.Dt=20k): 550 mbar Elektrische Leistungsaufnahme: Standby: 3 W maximal: 17-59/45W Schutzart: IXP4D Anschlüsse: 3/4" Gasanschluss: 1/2" Abgasrohrdurchmesser: DN60/100 Höhe: 790 mm Breite: 440 mm Tiefe: 378 mm Transportgewicht (Leer): 33 kg Elektroanschluss: 230V/50Hz CE-Identnummer: CE-0085CO0098 Lieferumfang: Wolf CGB-2 14 kW Gasbrennwerttherme Herstellernummer: 8615008 Montage und Bedienungsanleitung Installation: Die Montage (Gas/Wasser) sowie die Erstinbetriebnahme und die Wartung dieses Gerätes dürfen nur von einem SHK-Anlagenmechaniker in Übereinstimmung mit den gültigen Vorschriften sowie entsprechend dieser Anweisung ausgeführt werden!

2.288,81 €*
a
a++ g
Datenblatt

Art.Nr.: 147420781

ca. 1 Woche

Wolf Gas Brennwertgerät CGB-2-20 kW Brennwert Gastherme Heiztherme ohne Regelung
Wolf CGB-2 20 kW Gasbrennwerttherme Herstellernummer: 8615009 Beschreibung: Wolf Gas-Brennwerttherme CGB-2 für den Betrieb mit Erdgas E,LL oder Flüssiggas. Werkseitig für Erdgas E, LL eingestellt, umstellbar auf Flüssiggas. Für die Raumheizung mit Anschlussmöglichkeit für einen separaten Speicher-Wassererwärmer Geprüft nach EG-Richtlinien und DIN EN 483 für Heizungsanlagen nach DIN EN 12828 mit Vorlauftemperaturen bis 90C und 3 bar zulässigem Betriebsdruck, geeignet für gleitend abgesenkten Betrieb bis auf Raumtemperatur. Leistung modulierend geregelt, gas-adaptive, selbst kalibrierende Verbrennungsregelung mit Vormischbrenner für extrem niedrige Schadstoffemissionen und sich ändernde Gasbeschaffenheit, geschlossene Brennkammer für raumluftabhängigen und -unabhängigen Betrieb. Vorteile der Wolf CGB: Gasbrennwertgeräte, Brennkammer geschlossen, für raumluftabhängigen und raumluftunabhängigen Betrieb Hoher Normnutzungsgrad bis 110% (Hi) / 99% (Hs) für bestmögliche Energieausnutzung Vormischbrenner für Erdgas E, LL und Flüssiggas, stufenlos modulierende Wärmeleistung ab 1,8 kW Serienmäßig mit Ausdehnungsgefäß, modulierender Hocheffizienzpumpe (EEI < 0,23) und 3-Wege-Ventil Beschichteter Heizwasserwärmetauscher WOLF "ALUPro" Effiziente Verbrennungstechnologie durch gasadaptive, selbstkalibrierende Verbrennungsregelung mit selbsttätiger Anpassung an die Gasqualität (z.B. Biogas) Automatische CO2-Einstellung durch selbstkalibrierende Verbrennungsluftregelung für extrem niedrige Schadstoffemission Kein Überströmventil, keine Rücklauftemperaturanhebung - für höchsten Brennwertnutzen Schnelle Montage, einfache Bedienung und Wartung mit bequemem Zugang zu allen Bauteilen Zur Wartung Heizwasser-Wärmetauscher unter Anlagendruck ausschwenkbar ohne Heizwasser abzulassen Technische Daten: Energieeffizienzklasse: Raumheizung A Wärmetauscher beschichtet Nennwärmeleistung (Heiz-/Warmwasserbetr.) bei 80/60C: 3,8/6,8 - 18,9/22,2 kW bei 50/30C: 4,4/7,4 - 20,4 kW Nennbelastung: 19,6/23,0 kW kl. Wärmebelastung (mod.) 3,9/6,9kW Abgastemperatur (Qmax/Qmin) bei 80/60C: 62/45 C bei 50/30C: 30/25 C Normnutzungsgrad (HI/Hs) bei 40/30C: 110/99 % bei 75/60C: 107/96 % Vorlauftemperatur max.: 90 C Gesamtüberdruck max.: 3,0 bar Ausdehnungsgefäß Inhalt: 10 L Heizwasserwärmetauscherinhalt: 1,3 L Restförderhöhe für Hocheffizienzpumpe EE i<0,23: 600L/h Förderm.(14kW b.Dt=20k):550mbar 860L/h Förderm.(20kW b.Dt=20k):430mbar Elektrische Leistungsaufnahme: Standby: 3 W maximal: 17-59/45W Schutzart: IXP4D Anschlüsse: 3/4" Gasanschluss: 1/2" Abgasrohrdurchmesser: DN60/100 Höhe: 790 mm Breite: 440 mm Tiefe: 378 mm Transportgewicht (Leer): 33 kg Elektroanschluss: 230V/50Hz CE-Identnummer: CE-0085CO0098 Lieferumfang: Wolf CGB-2 20 kW Gasbrennwerttherme Herstellernummer: 8615009 Montage und Bedienungsanleitung Installation: Die Montage (Gas/Wasser) sowie die Erstinbetriebnahme und die Wartung dieses Gerätes dürfen nur von einem SHK-Anlagenmechaniker in Übereinstimmung mit den gültigen Vorschriften sowie entsprechend dieser Anweisung ausgeführt werden!

2.370,92 €*
a
a++ g

Art.Nr.: 147420830

ca. 1 Woche

Wolf Gas Brennwertgerät CGB-2-24 kW Brennwert Gastherme Heiztherme ohne Regelung
Wolf ComfortLine CGB-2 24 kW Gasbrennwert-Heiztherme 4,8-23,8 kW Herstellernummer: 8615010 Beschreibung: Wolf Gas-Brennwerttherme CGB-2 für den Betrieb mit Erdgas E,LL oder Flüssiggas. Werkseitig für Erdgas E, LL eingestellt, umstellbar auf Flüssiggas. Für die Raumheizung mit Anschlussmöglichkeit für einen separaten Speicher-Wassererwärmer Geprüft nach EG-Richtlinien und DIN EN 483 für Heizungsanlagen nach DIN EN 12828 mit Vorlauftemperaturen bis 90C und 3 bar zulässigem Betriebsdruck, geeignet für gleitend abgesenkten Betrieb bis auf Raumtemperatur. Leistung modulierend geregelt, gas-adaptive, selbst kalibrierende Verbrennungsregelung mit Vormischbrenner für extrem niedrige Schadstoffemissionen und sich ändernde Gasbeschaffenheit, geschlossene Brennkammer für raumluftabhängigen und -unabhängigen Betrieb. Vorteile der Wolf CGB: Gasbrennwertgeräte, Brennkammer geschlossen, für raumluftabhängigen und raumluftunabhängigen Betrieb Hoher Normnutzungsgrad bis 110% (Hi) / 99% (Hs) für bestmögliche Energieausnutzung Vormischbrenner für Erdgas E, LL und Flüssiggas, stufenlos modulierende Wärmeleistung ab 1,8 kW Serienmäßig mit Ausdehnungsgefäß, modulierender Hocheffizienzpumpe (EEI < 0,23) und 3-Wege-Ventil Beschichteter Heizwasserwärmetauscher WOLF "ALUPro" Effiziente Verbrennungstechnologie durch gasadaptive, selbstkalibrierende Verbrennungsregelung mit selbsttätiger Anpassung an die Gasqualität (z.B. Biogas) Automatische CO2-Einstellung durch selbstkalibrierende Verbrennungsluftregelung für extrem niedrige Schadstoffemission Kein Überströmventil, keine Rücklauftemperaturanhebung - für höchsten Brennwertnutzen Schnelle Montage, einfache Bedienung und Wartung mit bequemem Zugang zu allen Bauteilen Zur Wartung Heizwasser-Wärmetauscher unter Anlagendruck ausschwenkbar ohne Heizwasser abzulassen Technische Daten: Energieeffizienzklasse: Raumheizung A Wärmetauscher beschichtet Nennwärmeleistung (Heiz-/Warmwasserbetr.) bei 80/60C: 4,8/6,8 - 23,8/27,1kW bei 50/30C: 5,6/7,4 - 25,8 kW Nennbelastung: 24,6/28,0 kW kl. Wärmebelastung (mod.) 4,9/6,9kW Abgastemperatur (Qmax/Qmin) bei 80/60C: 62/45 C bei 50/30C: 30/25 C Normnutzungsgrad (HI/Hs) bei 40/30C: 110/99 % bei 75/60C: 107/96 % Vorlauftemperatur max.: 90 C Gesamtüberdruck max.: 3,0 bar Ausdehnungsgefäß Inhalt: 10 L Heizwasserwärmetauscherinhalt: 1,3 L Restförderhöhe für Hocheffizienzpumpe EE i<0,23: 600L/h Förderm.(14kW b.Dt=20k):550mbar 860L/h Förderm.(23kW b.Dt=20k):430mbar 1030L/h Förderm.(28kW b.Dt=20k):280mbar Elektrische Leistungsaufnahme: Standby: 3 W maximal: 17-62/88W Schutzart: IXP4D Anschlüsse: 3/4" Gasanschluss: 1/2" Abgasrohrdurchmesser: DN60/100 Höhe: 790 mm Breite: 440 mm Tiefe: 378 mm Transportgewicht (Leer): 33 kg Elektroanschluss: 230V/50Hz CE-Identnummer: CE-0085CO0098 Lieferumfang: Wolf CGB-2 24 kW Gasbrennwerttherme Herstellernummer: 8615010 ohne Regelung Montage und Bedienungsanleitung Installation: Die Montage (Gas/Wasser) sowie die Erstinbetriebnahme und die Wartung dieses Gerätes dürfen nur von einem SHK-Anlagenmechaniker in Übereinstimmung mit den gültigen Vorschriften sowie entsprechend dieser Anweisung ausgeführt werden!

2.440,19 €*
a
a++ g

Art.Nr.: 147420834

ca. 1 Woche

Remeha Paket Gas Brennwert Kombiheizkessel Tzerra Ace-Matic 28 C 28 kW
Remeha Paket Gas-Brennwert-Kombiheizkessel Tzerra Ace-Matic 28 C, 28 kW + Zubehör Herstellerteilenummer: 7825256, 7828129, S100316   Beschreibung: Der Remeha Tzerra Ace-Matic ist einer der kleinsten und leichtesten Brennwertkessel. Die vertraute Technik und Qualität von Remeha bilden hierbei die Grundlage und garantieren optimale Zuverlässigkeit und Wartungsfreundlichkeit. Klein und einfach Der Remeha Tzerra Ace-Matic zeichnet sich im Vergleich zu anderen Brennwertkesseln durch seine kleinen Abmessungen und sein geringes Gewicht aus. Ein Kessel mit nur 27,5 kg Gewicht, der zudem so kompakt und leise ist, kann nahezu überall installiert werden und auch die Anforderungen an die Montagewand sind gering. Das Aufhängen und Installieren des kleinen, leichten Kessels geschieht im Handumdrehen, mithilfe des Montagerahmens sogar noch einfacher. Ein Monteur kann das Gerät daher problemlos alleine montieren, auch auf einem Dachboden oder in einem der oberen Stockwerke. So vertraut und doch ganz anders Der Tzerra Ace-Matic bietet die vertraute Remeha Qualität. Der Tzerra Ace-Matic wird über den eTwist gesteuert und sorgt durch seine modulierende Steuerung für eine optimale Leistung. Er bietet die gleichen und umfangreichen Vorteile aller Remeha Kessel und ist zudem unglaublich einfach zusammengesetzt. Remeha Tzerra Ace-Matic 28 C Gas-Brennwert-Combigerät als Wandgerät für raumluftunabhängigen oder raumluftabhängigen Betrieb. CE-zertifiziert für geschlossenen Heizungsanlagen nach DIN EN 12828. Monoblock-Wärmetauscher aus korrosionsbeständigen Edelstahl mit integriertem Edelstahlvormischbrenner, modulierend von 13% bis 100%. Drehzahlgeregeltes Gebläse mit Ansaugschalldämpfer, sowie Gasarmatur mit erhöhter Sicherheit. Comfort Master Gasfeuerungsautomat mit allen erforderlichen Sicherheitsfunktionen. mit Klarsichtdisplay für Heizung und Warmwassertemperatur, sowie Grundanzeige für Status und Störmeldeanzeige. Ausstattung: Elektronisch geregelte Umwälzpumpe mit Permanentmagnetmotor EEI < 0,20 Schnellentlüfter, Sicherheitsventil, Membranausdehnungsgefäß 7 Liter, Dreiwege-Umschaltventil und Plattenwärmetauscher für Brauchwasserbereitung. Für Erdgas E/LL/Flüssiggas geeignet. Voreingestellt auf Erdgas E (H). Gehäuse aus Metall, Farbe RAL 9003, Front in Kunststoff. Technische Daten: Typ: Tzerra Ace-Matic 28 C Nennwärmeleistungsbereich Heizung 3,8 bis 26,1 kW (50/30) 3,5 bis 20 kW (80/60) Nennwärmeleistungsbereich Warmwasser 3,6 bis 28 kW Abgasanschluss: 60/100 Abmessungen: H/B/T 700/395/291 mm Abgasanschluss konzentrisch DN 60/100 Gewicht 27,5 kg Mindestumlaufwassermenge nicht erforderlich. Raumheizungs-EEK: A Warmwasserbereitungs-EEK (XL): A Wärmenennleistung (Prated): 24 kW Raumheizungs-EE (etaS): 94 % Warmwasserbereitungs-EE (etaWH): 85 % Schallleistungspegel (Lwa/Innen): 50 dB   Lieferumfang: Remeha Gas-Brennwert-Kombiheizkessel Tzerra Ace-Matic 28 C, 28 kW RE Vormontagebügel mit Absperrarmaturen Tzerra Ace-Matic 28 C Außenfühler Remeha zur witterungsgeführten Ansteuerung Montage- und Bedienungsanleitung Installation: Die Montage (Gas /Wasser/ Elektro ) sowie die Erstinbetriebnahme und die Wartung dieses Gerätes dürfen nur von einem SHK-Anlagenmechaniker in Übereinstimmung mit den gültigen Vorschriften sowie entsprechend dieser Anweisung ausgeführt werden!

2.448,92 €*
a
a+++ d
Datenblatt

Art.Nr.: 179163021

ca. 1 Woche