Buderus Heizeinsatz HLS216 8 kW Kachelofeneinsatz Kamineinsatz Kuppel rechts
















Art.Nr.: |
153920246
|
Herst.Nr.: |
153920246
|
EAN: | 123 |
Lieferzeit: |
ca. 2-4 Werktage (Mo-Fr.) |
EEK Spektrum: | A++ -> G |
EEK: | a+ |
ab 2.844,89 €*
inkl. 19% MwSt. zzgl. 0.00 € Versand
Buderus Heizeinsatz HLS216 - Leistung: 8 KW Muldenfeuerung
Türanschlag rechts / optional Kuppel + Frontplatte
Beschreibung:
Holzbrand-Heizeinsatz nach DIN EN 13229 für den Einbau in Warmluftöfen mit Muldenfeuerung. Der Einbau erfolgt immer in Verbindung mit einer Nachheizfläche. Brennraumauskleidung aus Feuerbeton und Vermiculite liegt teilweise in mehreren Verpackungseinheiten im Feuerraum bei. Sie wird über die Feuerraumtür in den Brennraum passgenau gesteckt ohne auszumörteln. Feuerraumtür mit Türanschlag links oder rechts ist mit einer großen Sichtfensterscheibe in Doppelverglasung ausgestattet. Ein Umbau des Türanschlag ist nicht möglich. Für den Einbau in engen Nischen ist der Nischentürgriff (Zubehör) zu verwenden. Wahlweise kann der Heizeinsatz mit verschiedenen Front- platten oder mit einem Blendrahmen ein- gebaut werden.
Der Kuppelabgang kann wahlweise waagerecht bzw. senkrecht erfolgen. Der Kuppelabgang-Durchmesser beträgt 145 mm für die waagerechte und senkrechte Kuppel. Zusätzlich steht eine senkrechte Kuppel mit Abgang 180 mm zur Verfügung. Die 2.Stufe der 1.BImSchV wird erfüllt.
Produktinformationen:
- Maximale Sicht auf das Holzfeuer durch große Sichtfensterscheibe
- Ideal für den Austausch Ihres alten Heizeinsatzes durch gleiche Grundflächenabmessungen
- Dank optimierter Feuerraumgeometrie und Verbrennungsluftführung liegen Schadstoffemissionen deutlich unter den gesetzlichen Grenzwerten. Die 2.Stufe der 1.BImSchV wird erfüllt
- Durch Doppelverglasung und Scheibenspülluft bleibt die Sichtfensterscheibe noch sauberer
- Umfangreiches Zubehör erleichtert den Einbau in vorhandene Kachelöfen und den Neubau von Kachel- oder Putzöfen
- Einfache Bedienung, Regelung der Primär-, Sekundär- und Scheibenspülluft mit einem Verbrennungsluftschieber
- Serienmäßig mit einer Muldenfeuerung ausgestattet
- Türanschlag kann mit linkem oder rechtem Türanschlag bestellt werden
- Türen mit Doppelverglasung versehen - dadurch erhöht sich die Feuerraumtemperatur im Inneren. Das führt zu einer besseren Verbrennung mit niedrigeren Emissionen. Außerdem bleibt die Sichtfensterscheibe noch sauberer, der Effekt des Systems für die Scheibenspülluft verstärkt sich.
- Tür selbstschließend, Mehrfachbelegung bei Schornsteineignung möglich
- Die Kuschelecke vor dem Ofen bleibt, wo sie ist, weil dank Doppelverglasung die Sicherheitsabstände trotz besonders großer Sichtfensterfläche nicht vergrößert werden müssen
- Brennraumauskleidung aus Feuerbeton und Vermiculite passgenau gesteckt, kein ausmörteln mehr erforderlich
- Regelung der Primär-, Sekundär- und Scheibenspülluft über einen Verbrennungsluftschieber
- Anschluss an eine externe Verbrennungsluftleitung möglich, Verbrennungsluftstutzen im Zubehörprogramm
- Entsprechend Einbausituation waagerechte und senkrechte Abgaskuppeln erhältlich
- Frontplatten in drei Abmessungen 895x470 mm, 790x420 mm und 830x470 mm erhältlich
- Blendrahmen schwarz lackiert
- Für den leichteren Einbau sind Heizeinsätze mit Transportrollen ausgestattet und es kann die Brennraumauskleidung über die Tür herausgenommen werden
- Mit Hilfe eines Umrüstsatzes können die Heizeinsätze von Muldenfeuerung auf Rostfeuerung umgerüstet werden, dann sind die Heizeinsätze für Scheitholz und Braunkohlebrikett geeignet
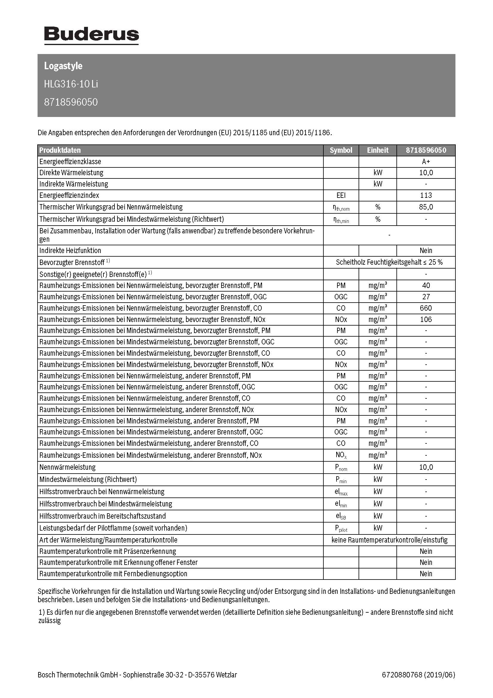
Technische Daten:
- Energieeffizienzklasse: A+
- >Energieeffizienzklassen: Spektrum: A++ -> G
- Direkte Wärmeleistung: 8,0 kW
- Indirekte Wärmeleistung: 0,0 kW
- Energieeffizienzindex: 113
- Nennwärmeleistung Gesamt: 8 kW
- Wärmeleistung ohne Nachheizfläche: 6,2 kW
- Gewicht: 124 kg
- Abgasstutzen: 145/180 mm
- Abgastemperatur: 181 C
- Abgasmassenstrom: 8,5 g/s
- Notwendiger Förderdruck: 16 Pa
- Wirkungsgrad: 85 %
- Höhe, Stutzen senkrecht: 792 mm
- Breite: 387 mm
- Tiefe: 395 mm
- Landesbauverordnung: CE
- Fabrikat: Buderus
- Buderus-Artikel-Nr.: 7739607019
Technische Daten Kuppel aus Gusseisen:
Für die unterschiedlichsten Einbauvarianten sind folgende Kuppeln erhältlich. Ein besonderer Vorteil ist, dass die Kuppeln stufenlos drehbar gelagert sind. Somit ist auch eine problemlose Befestigung gewährleistet.
- Kuppelabgang senkrecht, 145 mm, Gewicht ca. 6,5 kg
- Kuppelabgang senkrecht, 180 mm, Gewicht ca. 6,5 kg
- Kuppelabgang waagerecht, 145 mm, Gewicht ca. 12,5 kg
- Kuppelabgang senkrecht exzentrisch, 145 mm, Gewicht ca. 6,5 kg
- schwarz lackiert
Technische Daten Frontplatte
- 790 x 420 mm, Gusseisen, schwarz lackiert Gewicht: 9,7 kg
- 830 x 480 mm, Gusseisen, schwarz lackiert Gewicht: 11,5 kg
- 895 x 470 mm, Gusseisen, schwarz lackiert Gewicht: 16,3 kg
Lieferumfang:
- Buderus Logaflame HLS216 8 KW Türanschlag rechts
- Brennraumauskleidung aus Feuerbeton und Vermiculite in 4 VPE
- Kuppel optional laut Ihrer Auswahl ( senkrecht, waagerecht, exzetrisch )
- Frontplatte optional laut Ihrer Auswahl
Allg. Sicherheitshinweise:
Zur Vermeidung von Körper- und Gesundheitsschäden sind die Montage, Erstinbetriebnahme, Inspektion, Wartung und Instandsetzung von autorisierten Fachkräften (Heizungs- / Sanitärfachbetrieb / Vertragsinstallationsunternehmen) vorzunehmen!
Bestimmungsgemäße Verwendung: Bitte beachten Sie die bei Installation und Montage beiliegende Installations-, Betriebs- und Wartungsanleitungen sowie Produkt-/Systemzulassungen aller Anlagenkomponenten. Bei Wärmeerzeugern ist es zum Beispiel regelmäßig der Fall, dass allein für diese Heizung zugelassene Abgastechnik zur Verwendung gelangen darf. Zur bestimmungsgemäßen Verwendung gehört gleichsam die Einhaltung der ebenfalls in o.g. Unterlagen enthaltenen Inspektions- und Wartungsbedingungen.
Elektrische Heizgeräte sowie Durchlauferhitzer mit Starkstromanschluß (400V) dürfen nur durch jeweiligen Netzbetreiber oder durch ein in das Installateurverzeichnis des Netzbetreibers eingetragenes Installationsunternehmen installiert werden!
Elektrogeräte mit Drei-Phasen-Wechselstrom-Anschluss (3~/400V) und "nicht-steckerfertigen Geräten" sind von einem Fachbetrieb zu installieren. Geräte mit einer Nennleistung von mehr als 12 kW müssen vor der Erstinstallation eine Zustimmung vom Netzbetrieber erhalten.
Installation, Inspektion, Wartung und Instandsetzung von Gasgeräten sowie Gaseinstellungen darf nur ein Fachhandwerker durchführen!
Bosch Thermotechnik GmbH
Sophienstraße 30-32
35576 Wetzlar
DE
Tel: 06441 418-0
E-Mail: info@buderus.de
Art.Nr.: |
153920246
|
Herst.Nr.: |
153920246
|
EAN: | 123 |
Lieferzeit: |
ca. 2-4 Werktage (Mo-Fr.) |
EEK Spektrum: | A++ -> G |
EEK: | a+ |
ab 2.844,89 €*
inkl. 19% MwSt. zzgl. 0.00 € Versand
Buderus Heizeinsatz HLS216 - Leistung: 8 KW Muldenfeuerung
Türanschlag rechts / optional Kuppel + Frontplatte
Beschreibung:
Holzbrand-Heizeinsatz nach DIN EN 13229 für den Einbau in Warmluftöfen mit Muldenfeuerung. Der Einbau erfolgt immer in Verbindung mit einer Nachheizfläche. Brennraumauskleidung aus Feuerbeton und Vermiculite liegt teilweise in mehreren Verpackungseinheiten im Feuerraum bei. Sie wird über die Feuerraumtür in den Brennraum passgenau gesteckt ohne auszumörteln. Feuerraumtür mit Türanschlag links oder rechts ist mit einer großen Sichtfensterscheibe in Doppelverglasung ausgestattet. Ein Umbau des Türanschlag ist nicht möglich. Für den Einbau in engen Nischen ist der Nischentürgriff (Zubehör) zu verwenden. Wahlweise kann der Heizeinsatz mit verschiedenen Front- platten oder mit einem Blendrahmen ein- gebaut werden.
Der Kuppelabgang kann wahlweise waagerecht bzw. senkrecht erfolgen. Der Kuppelabgang-Durchmesser beträgt 145 mm für die waagerechte und senkrechte Kuppel. Zusätzlich steht eine senkrechte Kuppel mit Abgang 180 mm zur Verfügung. Die 2.Stufe der 1.BImSchV wird erfüllt.
Produktinformationen:
- Maximale Sicht auf das Holzfeuer durch große Sichtfensterscheibe
- Ideal für den Austausch Ihres alten Heizeinsatzes durch gleiche Grundflächenabmessungen
- Dank optimierter Feuerraumgeometrie und Verbrennungsluftführung liegen Schadstoffemissionen deutlich unter den gesetzlichen Grenzwerten. Die 2.Stufe der 1.BImSchV wird erfüllt
- Durch Doppelverglasung und Scheibenspülluft bleibt die Sichtfensterscheibe noch sauberer
- Umfangreiches Zubehör erleichtert den Einbau in vorhandene Kachelöfen und den Neubau von Kachel- oder Putzöfen
- Einfache Bedienung, Regelung der Primär-, Sekundär- und Scheibenspülluft mit einem Verbrennungsluftschieber
- Serienmäßig mit einer Muldenfeuerung ausgestattet
- Türanschlag kann mit linkem oder rechtem Türanschlag bestellt werden
- Türen mit Doppelverglasung versehen - dadurch erhöht sich die Feuerraumtemperatur im Inneren. Das führt zu einer besseren Verbrennung mit niedrigeren Emissionen. Außerdem bleibt die Sichtfensterscheibe noch sauberer, der Effekt des Systems für die Scheibenspülluft verstärkt sich.
- Tür selbstschließend, Mehrfachbelegung bei Schornsteineignung möglich
- Die Kuschelecke vor dem Ofen bleibt, wo sie ist, weil dank Doppelverglasung die Sicherheitsabstände trotz besonders großer Sichtfensterfläche nicht vergrößert werden müssen
- Brennraumauskleidung aus Feuerbeton und Vermiculite passgenau gesteckt, kein ausmörteln mehr erforderlich
- Regelung der Primär-, Sekundär- und Scheibenspülluft über einen Verbrennungsluftschieber
- Anschluss an eine externe Verbrennungsluftleitung möglich, Verbrennungsluftstutzen im Zubehörprogramm
- Entsprechend Einbausituation waagerechte und senkrechte Abgaskuppeln erhältlich
- Frontplatten in drei Abmessungen 895x470 mm, 790x420 mm und 830x470 mm erhältlich
- Blendrahmen schwarz lackiert
- Für den leichteren Einbau sind Heizeinsätze mit Transportrollen ausgestattet und es kann die Brennraumauskleidung über die Tür herausgenommen werden
- Mit Hilfe eines Umrüstsatzes können die Heizeinsätze von Muldenfeuerung auf Rostfeuerung umgerüstet werden, dann sind die Heizeinsätze für Scheitholz und Braunkohlebrikett geeignet
Technische Daten:
- Energieeffizienzklasse: A+
- >Energieeffizienzklassen: Spektrum: A++ -> G
- Direkte Wärmeleistung: 8,0 kW
- Indirekte Wärmeleistung: 0,0 kW
- Energieeffizienzindex: 113
- Nennwärmeleistung Gesamt: 8 kW
- Wärmeleistung ohne Nachheizfläche: 6,2 kW
- Gewicht: 124 kg
- Abgasstutzen: 145/180 mm
- Abgastemperatur: 181 C
- Abgasmassenstrom: 8,5 g/s
- Notwendiger Förderdruck: 16 Pa
- Wirkungsgrad: 85 %
- Höhe, Stutzen senkrecht: 792 mm
- Breite: 387 mm
- Tiefe: 395 mm
- Landesbauverordnung: CE
- Fabrikat: Buderus
- Buderus-Artikel-Nr.: 7739607019
Technische Daten Kuppel aus Gusseisen:
Für die unterschiedlichsten Einbauvarianten sind folgende Kuppeln erhältlich. Ein besonderer Vorteil ist, dass die Kuppeln stufenlos drehbar gelagert sind. Somit ist auch eine problemlose Befestigung gewährleistet.
- Kuppelabgang senkrecht, 145 mm, Gewicht ca. 6,5 kg
- Kuppelabgang senkrecht, 180 mm, Gewicht ca. 6,5 kg
- Kuppelabgang waagerecht, 145 mm, Gewicht ca. 12,5 kg
- Kuppelabgang senkrecht exzentrisch, 145 mm, Gewicht ca. 6,5 kg
- schwarz lackiert
Technische Daten Frontplatte
- 790 x 420 mm, Gusseisen, schwarz lackiert Gewicht: 9,7 kg
- 830 x 480 mm, Gusseisen, schwarz lackiert Gewicht: 11,5 kg
- 895 x 470 mm, Gusseisen, schwarz lackiert Gewicht: 16,3 kg
Lieferumfang:
- Buderus Logaflame HLS216 8 KW Türanschlag rechts
- Brennraumauskleidung aus Feuerbeton und Vermiculite in 4 VPE
- Kuppel optional laut Ihrer Auswahl ( senkrecht, waagerecht, exzetrisch )
- Frontplatte optional laut Ihrer Auswahl
Allg. Sicherheitshinweise:
Zur Vermeidung von Körper- und Gesundheitsschäden sind die Montage, Erstinbetriebnahme, Inspektion, Wartung und Instandsetzung von autorisierten Fachkräften (Heizungs- / Sanitärfachbetrieb / Vertragsinstallationsunternehmen) vorzunehmen!
Bestimmungsgemäße Verwendung: Bitte beachten Sie die bei Installation und Montage beiliegende Installations-, Betriebs- und Wartungsanleitungen sowie Produkt-/Systemzulassungen aller Anlagenkomponenten. Bei Wärmeerzeugern ist es zum Beispiel regelmäßig der Fall, dass allein für diese Heizung zugelassene Abgastechnik zur Verwendung gelangen darf. Zur bestimmungsgemäßen Verwendung gehört gleichsam die Einhaltung der ebenfalls in o.g. Unterlagen enthaltenen Inspektions- und Wartungsbedingungen.
Elektrische Heizgeräte sowie Durchlauferhitzer mit Starkstromanschluß (400V) dürfen nur durch jeweiligen Netzbetreiber oder durch ein in das Installateurverzeichnis des Netzbetreibers eingetragenes Installationsunternehmen installiert werden!
Elektrogeräte mit Drei-Phasen-Wechselstrom-Anschluss (3~/400V) und "nicht-steckerfertigen Geräten" sind von einem Fachbetrieb zu installieren. Geräte mit einer Nennleistung von mehr als 12 kW müssen vor der Erstinstallation eine Zustimmung vom Netzbetrieber erhalten.
Installation, Inspektion, Wartung und Instandsetzung von Gasgeräten sowie Gaseinstellungen darf nur ein Fachhandwerker durchführen!
Bosch Thermotechnik GmbH
Sophienstraße 30-32
35576 Wetzlar
DE
Tel: 06441 418-0
E-Mail: info@buderus.de
Ähnliche Artikel
Art.Nr.: 164328551
3 Monate
Art.Nr.: 164378279
3 Monate
Art.Nr.: 164417816
3 Monate
Art.Nr.: 153351323
ca. 1 Woche
Art.Nr.: 148816823
ca. 1 Woche
Art.Nr.: 153335871
ca. 1 Woche
Art.Nr.: 166107953
ca. 2-4 Werktage (Mo-Fr.)
Art.Nr.: 166150413
ca. 1-2 Wochen
Art.Nr.: 153343109
ca. 1 Woche
Art.Nr.: 166785888
ca. 1 Woche
Art.Nr.: 166150745
ca. 1-2 Wochen
Art.Nr.: 148780901
ca. 2-4 Werktage (Mo-Fr.)
Art.Nr.: 168515650
ca. 2-4 Werktage (Mo-Fr.)
Art.Nr.: 153920246
ca. 2-4 Werktage (Mo-Fr.)
Art.Nr.: 153814372
ca. 2-4 Werktage (Mo-Fr.)
Art.Nr.: 148789082
ca. 2-4 Werktage (Mo-Fr.)
Art.Nr.: 153570442
ca. 2-4 Werktage (Mo-Fr.)
Art.Nr.: 168456363
ca. 2-4 Werktage (Mo-Fr.)
Art.Nr.: 153685075
ca. 1 Woche