Betriebsferien vom 23.12.2023 - 02.01.2024. Bestellungen werden erst ab dem 03.01.2024 ausgeliefert.
Zur Startseite wechseln

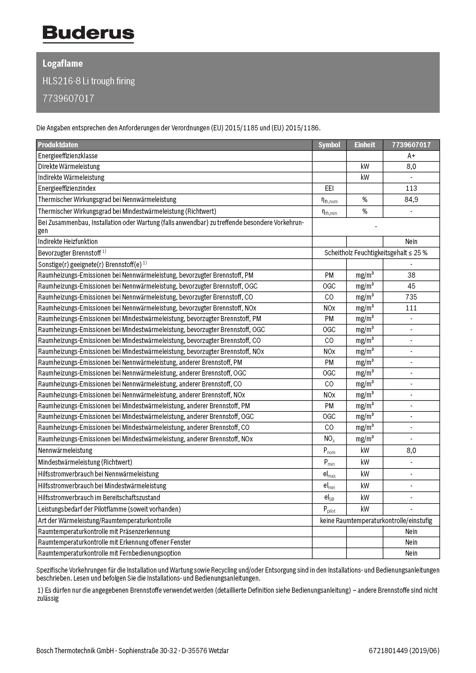
Buderus Heizeinsatz Logaflame HLS216 8 kW Kachelofeneinsatz Muldenfeuerung

Art.Nr.:
148816823
Herst.Nr.:
7739607017 ; 7739607019
EAN: 4054925671322
Lieferzeit:

ca. 1 Woche

EEK Spektrum: A++ -> G
EEK: a+
a+
a++ g
Datenblatt

2.844,35 €*

inkl. 19% MwSt. zzgl. 0.00 € Versand

Produktinformationen "Buderus Heizeinsatz Logaflame HLS216 8 kW Kachelofeneinsatz Muldenfeuerung"

Buderus Logaflame Heizeinsatz HLS216 - Leistung: 8 KW

Türanschlag links/rechts - Muldenfeuerung

Beschreibung:

Holzbrand-Heizeinsatz nach DIN EN 13229 für den Einbau in Warmluftöfen mit Muldenfeuerung. Der Einbau erfolgt immer in Verbindung mit einer Nachheizfläche. Brennraumauskleidung aus Feuerbeton und Vermiculite liegt teilweise in mehreren Verpackungseinheiten im Feuerraum bei. Sie wird über die Feuerraumtür in den Brennraum passgenau gesteckt ohne auszumörteln. Feuerraumtür mit Türanschlag links oder rechts ist mit einer großen Sichtfensterscheibe in Doppelverglasung ausgestattet. Ein Umbau des Türanschlag ist nicht möglich. Für den Einbau in engen Nischen ist der Nischentürgriff (Zubehör) zu verwenden. Wahlweise kann der Heizeinsatz mit verschiedenen Front- platten oder mit einem Blendrahmen ein- gebaut werden.

Der Kuppelabgang kann wahlweise waagerecht bzw. senkrecht erfolgen. Der Kuppelabgang-Durchmesser beträgt 145 mm für die waagerechte und senkrechte Kuppel. Zusätzlich steht eine senkrechte Kuppel mit Abgang 180 mm zur Verfügung. Die 2.Stufe der 1.BImSchV wird erfüllt.

Produktinformationen:

  • Maximale Sicht auf das Holzfeuer durch große Sichtfensterscheibe
  • Ideal für den Austausch Ihres alten Heizeinsatzes durch gleiche Grundflächenabmessungen
  • Dank optimierter Feuerraumgeometrie und Verbrennungsluftführung liegen Schadstoffemissionen deutlich unter den gesetzlichen Grenzwerten. Die 2.Stufe der 1.BImSchV wird erfüllt
  • Durch Doppelverglasung und Scheibenspülluft bleibt die Sichtfensterscheibe noch sauberer
  • Umfangreiches Zubehör erleichtert den Einbau in vorhandene Kachelöfen und den Neubau von Kachel- oder Putzöfen
  • Einfache Bedienung, Regelung der Primär-, Sekundär- und Scheibenspülluft mit einem Verbrennungsluftschieber
  • Serienmäßig mit einer Muldenfeuerung ausgestattet
  • Türanschlag kann mit linkem oder rechtem Türanschlag bestellt werden
  • Türen mit Doppelverglasung versehen - dadurch erhöht sich die Feuerraumtemperatur im Inneren. Das führt zu einer besseren Verbrennung mit niedrigeren Emissionen. Außerdem bleibt die Sichtfensterscheibe noch sauberer, der Effekt des Systems für die Scheibenspülluft verstärkt sich.
  • Tür selbstschließend, Mehrfachbelegung bei Schornsteineignung möglich
  • Die Kuschelecke vor dem Ofen bleibt, wo sie ist, weil dank Doppelverglasung die Sicherheitsabstände trotz besonders großer Sichtfensterfläche nicht vergrößert werden müssen
  • Brennraumauskleidung aus Feuerbeton und Vermiculite passgenau gesteckt, kein ausmörteln mehr erforderlich
  • Regelung der Primär-, Sekundär- und Scheibenspülluft über einen Verbrennungsluftschieber
  • Anschluss an eine externe Verbrennungsluftleitung möglich, Verbrennungsluftstutzen im Zubehörprogramm
  • Entsprechend Einbausituation waagerechte und senkrechte Abgaskuppeln erhältlich
  • Frontplatten in drei Abmessungen 895x470 mm, 790x420 mm und 830x470 mm erhältlich
  • Blendrahmen schwarz lackiert
  • Für den leichteren Einbau sind Heizeinsätze mit Transportrollen ausgestattet und es kann die Brennraumauskleidung über die Tür herausgenommen werden
  • Mit Hilfe eines Umrüstsatzes können die Heizeinsätze von Muldenfeuerung auf Rostfeuerung umgerüstet werden, dann sind die Heizeinsätze für Scheitholz und Braunkohlebrikett geeignet

Technische Daten:

  • siehe Datenblatt

Lieferumfang:

  • Buderus Logaflame HLS216 8 kW
  • gewählter Türanschlag links oder rechts
  • Brennraumauskleidung aus Feuerbeton und Vermiculite in 4 VPE
  • Montage- und Betriebsanleitung
WEEE-Reg.-Nr.: DE 69542401

Allg. Sicherheitshinweise:

Zur Vermeidung von Körper- und Gesundheitsschäden sind die Montage, Erstinbetriebnahme, Inspektion, Wartung und Instandsetzung von autorisierten Fachkräften (Heizungs- / Sanitärfachbetrieb / Vertragsinstallationsunternehmen) vorzunehmen!

Bestimmungsgemäße Verwendung: Bitte beachten Sie die bei Installation und Montage beiliegende Installations-, Betriebs- und Wartungsanleitungen sowie Produkt-/Systemzulassungen aller Anlagenkomponenten. Bei Wärmeerzeugern ist es zum Beispiel regelmäßig der Fall, dass allein für diese Heizung zugelassene Abgastechnik zur Verwendung gelangen darf. Zur bestimmungsgemäßen Verwendung gehört gleichsam die Einhaltung der ebenfalls in o.g. Unterlagen enthaltenen Inspektions- und Wartungsbedingungen.

Elektrische Heizgeräte sowie Durchlauferhitzer mit Starkstromanschluß (400V) dürfen nur durch jeweiligen Netzbetreiber oder durch ein in das Installateurverzeichnis des Netzbetreibers eingetragenes Installationsunternehmen installiert werden!

Elektrogeräte mit Drei-Phasen-Wechselstrom-Anschluss (3~/400V) und "nicht-steckerfertigen Geräten" sind von einem Fachbetrieb zu installieren. Geräte mit einer Nennleistung von mehr als 12 kW müssen vor der Erstinstallation eine Zustimmung vom Netzbetrieber erhalten.

Installation, Inspektion, Wartung und Instandsetzung von Gasgeräten sowie Gaseinstellungen darf nur ein Fachhandwerker durchführen!

Herstellerinformationen

Bosch Thermotechnik GmbH
Sophienstraße 30-32
35576 Wetzlar
DE

Tel: 06441 418-0
E-Mail: info@buderus.de
Art.Nr.:
148816823
Herst.Nr.:
7739607017 ; 7739607019
EAN: 4054925671322
Lieferzeit:

ca. 1 Woche

EEK Spektrum: A++ -> G
EEK: a+
a+
a++ g
Datenblatt

2.844,35 €*

inkl. 19% MwSt. zzgl. 0.00 € Versand

Produktinformationen "Buderus Heizeinsatz Logaflame HLS216 8 kW Kachelofeneinsatz Muldenfeuerung"

Buderus Logaflame Heizeinsatz HLS216 - Leistung: 8 KW

Türanschlag links/rechts - Muldenfeuerung

Beschreibung:

Holzbrand-Heizeinsatz nach DIN EN 13229 für den Einbau in Warmluftöfen mit Muldenfeuerung. Der Einbau erfolgt immer in Verbindung mit einer Nachheizfläche. Brennraumauskleidung aus Feuerbeton und Vermiculite liegt teilweise in mehreren Verpackungseinheiten im Feuerraum bei. Sie wird über die Feuerraumtür in den Brennraum passgenau gesteckt ohne auszumörteln. Feuerraumtür mit Türanschlag links oder rechts ist mit einer großen Sichtfensterscheibe in Doppelverglasung ausgestattet. Ein Umbau des Türanschlag ist nicht möglich. Für den Einbau in engen Nischen ist der Nischentürgriff (Zubehör) zu verwenden. Wahlweise kann der Heizeinsatz mit verschiedenen Front- platten oder mit einem Blendrahmen ein- gebaut werden.

Der Kuppelabgang kann wahlweise waagerecht bzw. senkrecht erfolgen. Der Kuppelabgang-Durchmesser beträgt 145 mm für die waagerechte und senkrechte Kuppel. Zusätzlich steht eine senkrechte Kuppel mit Abgang 180 mm zur Verfügung. Die 2.Stufe der 1.BImSchV wird erfüllt.

Produktinformationen:

  • Maximale Sicht auf das Holzfeuer durch große Sichtfensterscheibe
  • Ideal für den Austausch Ihres alten Heizeinsatzes durch gleiche Grundflächenabmessungen
  • Dank optimierter Feuerraumgeometrie und Verbrennungsluftführung liegen Schadstoffemissionen deutlich unter den gesetzlichen Grenzwerten. Die 2.Stufe der 1.BImSchV wird erfüllt
  • Durch Doppelverglasung und Scheibenspülluft bleibt die Sichtfensterscheibe noch sauberer
  • Umfangreiches Zubehör erleichtert den Einbau in vorhandene Kachelöfen und den Neubau von Kachel- oder Putzöfen
  • Einfache Bedienung, Regelung der Primär-, Sekundär- und Scheibenspülluft mit einem Verbrennungsluftschieber
  • Serienmäßig mit einer Muldenfeuerung ausgestattet
  • Türanschlag kann mit linkem oder rechtem Türanschlag bestellt werden
  • Türen mit Doppelverglasung versehen - dadurch erhöht sich die Feuerraumtemperatur im Inneren. Das führt zu einer besseren Verbrennung mit niedrigeren Emissionen. Außerdem bleibt die Sichtfensterscheibe noch sauberer, der Effekt des Systems für die Scheibenspülluft verstärkt sich.
  • Tür selbstschließend, Mehrfachbelegung bei Schornsteineignung möglich
  • Die Kuschelecke vor dem Ofen bleibt, wo sie ist, weil dank Doppelverglasung die Sicherheitsabstände trotz besonders großer Sichtfensterfläche nicht vergrößert werden müssen
  • Brennraumauskleidung aus Feuerbeton und Vermiculite passgenau gesteckt, kein ausmörteln mehr erforderlich
  • Regelung der Primär-, Sekundär- und Scheibenspülluft über einen Verbrennungsluftschieber
  • Anschluss an eine externe Verbrennungsluftleitung möglich, Verbrennungsluftstutzen im Zubehörprogramm
  • Entsprechend Einbausituation waagerechte und senkrechte Abgaskuppeln erhältlich
  • Frontplatten in drei Abmessungen 895x470 mm, 790x420 mm und 830x470 mm erhältlich
  • Blendrahmen schwarz lackiert
  • Für den leichteren Einbau sind Heizeinsätze mit Transportrollen ausgestattet und es kann die Brennraumauskleidung über die Tür herausgenommen werden
  • Mit Hilfe eines Umrüstsatzes können die Heizeinsätze von Muldenfeuerung auf Rostfeuerung umgerüstet werden, dann sind die Heizeinsätze für Scheitholz und Braunkohlebrikett geeignet

Technische Daten:

  • siehe Datenblatt

Lieferumfang:

  • Buderus Logaflame HLS216 8 kW
  • gewählter Türanschlag links oder rechts
  • Brennraumauskleidung aus Feuerbeton und Vermiculite in 4 VPE
  • Montage- und Betriebsanleitung
WEEE-Reg.-Nr.: DE 69542401

Allg. Sicherheitshinweise:

Zur Vermeidung von Körper- und Gesundheitsschäden sind die Montage, Erstinbetriebnahme, Inspektion, Wartung und Instandsetzung von autorisierten Fachkräften (Heizungs- / Sanitärfachbetrieb / Vertragsinstallationsunternehmen) vorzunehmen!

Bestimmungsgemäße Verwendung: Bitte beachten Sie die bei Installation und Montage beiliegende Installations-, Betriebs- und Wartungsanleitungen sowie Produkt-/Systemzulassungen aller Anlagenkomponenten. Bei Wärmeerzeugern ist es zum Beispiel regelmäßig der Fall, dass allein für diese Heizung zugelassene Abgastechnik zur Verwendung gelangen darf. Zur bestimmungsgemäßen Verwendung gehört gleichsam die Einhaltung der ebenfalls in o.g. Unterlagen enthaltenen Inspektions- und Wartungsbedingungen.

Elektrische Heizgeräte sowie Durchlauferhitzer mit Starkstromanschluß (400V) dürfen nur durch jeweiligen Netzbetreiber oder durch ein in das Installateurverzeichnis des Netzbetreibers eingetragenes Installationsunternehmen installiert werden!

Elektrogeräte mit Drei-Phasen-Wechselstrom-Anschluss (3~/400V) und "nicht-steckerfertigen Geräten" sind von einem Fachbetrieb zu installieren. Geräte mit einer Nennleistung von mehr als 12 kW müssen vor der Erstinstallation eine Zustimmung vom Netzbetrieber erhalten.

Installation, Inspektion, Wartung und Instandsetzung von Gasgeräten sowie Gaseinstellungen darf nur ein Fachhandwerker durchführen!

Herstellerinformationen

Bosch Thermotechnik GmbH
Sophienstraße 30-32
35576 Wetzlar
DE

Tel: 06441 418-0
E-Mail: info@buderus.de

Ähnliche Artikel

Spartherm standard Kaminkassette Linear XS 500 D4 4,0 kW Kamineinsatz Kamin Ofen
Spartherm Standard Kaminkassette Linear XS 500 - Nennwärmeleistung 4,0 kW - wahlweise mit Blendrahmen Hersteller: 1031165, 1031166, 1031178, 1031190  Beschreibung: wohlige Wärme, behagliche Atmosphäre und die Faszination des leuchtenden Feuerspiels - so hat Lebensqualität eine weitere Dimension. Alte Feuerstellen in neuem Glanze ermöglichen es Ihnen, das Naturspiel der Flammen in gezähmter und sicherer Form zu genießen. Die universelle Kaminkassette für alle offenen Kamine Schneller und sauberer Einbau - So strahlen alte Feuerstellen in neuem Glanz. Perfekt in der Funktion Die neuen LINEAR Standard Kaminkassetten sind in ihrer Funktion perfekt, verfügen über ein modernes, stilvolles Erscheinungsbild und gestatten einen leichten und unkomplizierten Einbau. Sie passen sich Ihrem Stil exzellent an und lassen die Leere eines offenen Kamins komplett vergessen – Ihre Feuerstätte erstrahlt. Technische Daten: Modell: XS 500 Wärmeleistungsbereich: 1,2 kW Nennwärmeleistung 4,0 kW - Die Heizleistung ist abhängig von der Menge und Art des Brennstoffs. Brennstoff: Scheitholz Türbreite: 345 mm Türhöhe: 456 mm Gesamtbreite Standard: 470 mm ( + Blendrahmen: 45, 60 oder 80 mm ) Gesamttiefe: 352 mm Rauchrohr: 130 mm Energieeffizienzklasse: A+ Spektrum: A++ -> G Holzaufgabemenge: 1,2 kg/h Wirkungsgrad: > 80% Abgasmassenstrom: 3,8 g/s Abgastemperatur am Gerätestutzen: 252 °C min. Förderdruck am Gerätestutzen 10 Pa CO-Gehalt: <1250 mg/m³ Staub-Emission: < 40 mg/m³ erfüllt die 2 Stufe der BImSchV Türfunktion klappbar Gewicht: 50 kg   Lieferumfang: Spartherm Kaminkassette Linear XS 500 - Nennwärmeleistung 4,0 kW gewählter Blendrahmen Montage- und Betriebsanleitung

ab 1.701,61 €*
a+
a++ g

Art.Nr.: 164328551

3 Monate

Spartherm standard Kaminkassette Linear S 600 D5 4,9 kW Kamineinsatz Kamin Ofen
Spartherm Standard Kaminkassette Linear S 600 - Nennwärmeleistung 4,9 kW - wahlweise mit Blendrahmen Hersteller: 1017359, 1017411, 1017419, 1017428  Beschreibung: wohlige Wärme, behagliche Atmosphäre und die Faszination des leuchtenden Feuerspiels - so hat Lebensqualität eine weitere Dimension. Alte Feuerstellen in neuem Glanze ermöglichen es Ihnen, das Naturspiel der Flammen in gezähmter und sicherer Form zu genießen. Die universelle Kaminkassette für alle offenen Kamine Schneller und sauberer Einbau - So strahlen alte Feuerstellen in neuem Glanz. Perfekt in der Funktion Die neuen LINEAR Standard Kaminkassetten sind in ihrer Funktion perfekt, verfügen über ein modernes, stilvolles Erscheinungsbild und gestatten einen leichten und unkomplizierten Einbau. Sie passen sich Ihrem Stil exzellent an und lassen die Leere eines offenen Kamins komplett vergessen – Ihre Feuerstätte erstrahlt. Technische Daten: Modell: S 600 Wärmeleistungsbereich: 1,5 kW Nennwärmeleistung 4,9 kW - Die Heizleistung ist abhängig von der Menge und Art des Brennstoffs. Brennstoff: Scheitholz Türbreite: 510 mm Türhöhe: 666 mm Gesamtbreite Standard: 462 mm ( + Blendrahmen: 60, 80 oder 100 mm ) Gesamttiefe: 462 mm Rauchrohr: 150 mm Energieeffizienzklasse: A+ Spektrum: A++ -> G Holzaufgabemenge: 1,5 kg/h Wirkungsgrad: > 80% Abgasmassenstrom: 4,5 g/s Abgastemperatur am Gerätestutzen: 335 °C min. Förderdruck am Gerätestutzen 12 Pa CO-Gehalt: <1250 mg/m³ Staub-Emission: < 40 mg/m³ erfüllt die 2 Stufe der BImSchV Türfunktion klappbar Gewicht: 80 kg   Lieferumfang: Spartherm Kaminkassette Linear S 600 - Nennwärmeleistung 4,9 kW Stellfüße gewählter Blendrahmen Montage- und Betriebsanleitung

ab 2.215,66 €*
a
a++ g

Art.Nr.: 164378279

3 Monate

Spartherm standard Kaminkassette Linear M 700 D6 5,9 kW Kamineinsatz Kamin Ofen
Spartherm Standard Kaminkassette Linear M 700 D6 - Nennwärmeleistung 5,9 kW - wahlweise mit Blendrahmen Hersteller: 1017358, 1017412, 1017420, 1017429  Beschreibung: wohlige Wärme, behagliche Atmosphäre und die Faszination des leuchtenden Feuerspiels - so hat Lebensqualität eine weitere Dimension. Alte Feuerstellen in neuem Glanze ermöglichen es Ihnen, das Naturspiel der Flammen in gezähmter und sicherer Form zu genießen. Die universelle Kaminkassette für alle offenen Kamine Schneller und sauberer Einbau - So strahlen alte Feuerstellen in neuem Glanz. Perfekt in der Funktion Die neuen LINEAR Standard Kaminkassetten sind in ihrer Funktion perfekt, verfügen über ein modernes, stilvolles Erscheinungsbild und gestatten einen leichten und unkomplizierten Einbau. Sie passen sich Ihrem Stil exzellent an und lassen die Leere eines offenen Kamins komplett vergessen – Ihre Feuerstätte erstrahlt. Technische Daten: Modell: M 700 Wärmeleistungsbereich: 1,7 kW Nennwärmeleistung 5,9 kW - Die Heizleistung ist abhängig von der Menge und Art des Brennstoffs. Brennstoff: Scheitholz Türbreite: 610 mm Türhöhe: 503 mm Gesamtbreite Standard: 766 mm ( + Blendrahmen: 60, 80 oder 100 mm ) Gesamttiefe: 494 mm Rauchrohr: 150 mm Energieeffizienzklasse: A+ Spektrum: A++ -> G Holzaufgabemenge: 1,7 kg/h Wirkungsgrad: > 80% Abgasmassenstrom: 5,0 g/s Abgastemperatur am Gerätestutzen: 355 °C min. Förderdruck am Gerätestutzen 12 Pa CO-Gehalt: <1250 mg/m³ Staub-Emission: < 40 mg/m³ erfüllt die 2 Stufe der BImSchV Türfunktion klappbar Gewicht: 90 kg   Lieferumfang: Spartherm Kaminkassette Linear M 700 D6 - Nennwärmeleistung 5,9 kW Stellfüße gewählter Blendrahmen Montage- und Betriebsanleitung

2.533,14 €*
a+
a++ g
Datenblatt

Art.Nr.: 164417816

3 Monate

Buderus Heizeinsatz HLS117 8 kW Logaflame Kachelofeneinsatz Kamineinsatz Kuppel
Buderus Heizeinsatz Logaflame HLS117 - Leistung 8 kW Buderus Festbrennstoff-Heizeinsatz Logaflame HLS117, 8 kW, mit Frontplatte und ohne Kuppel. Festbrennstoff-Heizeinsatz nach DIN EN 13229 für den Einbau in Warmluftöfen mit Rostfeuerung. Für 25 cm Scheitholz und Braunkohlebriketts geeignet. Der Einbau erfolgt immer in Verbindung mit einer Nachheizfläche. Der Heizeinsatz ist besonders geeignet für den Anschluss an keramische Züge. Brennraumauskleidung aus Feuerbeton und Vermiculite sind lose passgenau gesteckt im Feuerraum. Kein Ausmörteln erforderlich. Der Heizeinsatz wird mit einer vormontierten Frontplatte 790 x 420 mm ausgeliefert. Weitere Frontplatten-Abmessungen können über Anbauleisten realisiert werden. Der Kuppelabgang kann wahlweise waagerecht bzw. senkrecht erfolgen. Der Kuppelabgang-Durchmesser beträgt 145 mm für die waagerechte und senkrechte Kuppel. Zusätzlich steht eine senkrechte Kuppel mit Abgang 180 mm zur Verfügung. Die 2.Stufe der 1.BImSchV wird erfüllt. Geräteinformation der HLS-Heizeinsätze: Alle Heizeinsätze, die vom 01.01.1975 bis zum 31.12.1984 eingebaut wurden, sind austauschpflichtig. Genau dafür sind die Logaflame HL...7 Heizeinsätze konzipiert. Die wichtigen Abmessungen der alten Buderus Heizeinsätze wurden dabei beibehalten. Ideal für den Einbau in Kachelofenanlagen, wo sich der Heizeinsatz im Keller, Flur oder Küche befindet. Die Logaflame HL...7 vereinen modernste Technik und klassisches Design. Ausgestattet sind die Heizeinsätze mit zwei Türen: einer Fülltür und einer Aschetür. Die Fülltür besitzt ein kleines Sichtfenster. Eine Rostfeuerung mit Rüttelrost und Aschekasten gehört mit zum Gerät. Zugelassen sind die Heizeinsätze für die Brennstoffe Scheitholz, Holzbriketts und Braunkohlebriketts. Selbstverständlich erfüllen alle Logaflame HL...7 die 2. Stufe der 1. BImSchV. Die Heizeinsätze können an Nachheizflächen aus Stahlblech oder an lange keramische Züge angeschlossen werden. Auch die Kombination mit Ortner-Aufsatzspeicher ist möglich. Für eine einfache und effiziente Bedienung kann der Logamatic TCA200 mit den Heizeinsätzen kombiniert werden. Zum umfangreichen Zubehör gehören Verbrennungsluftstutzen für den Anschluss an eine externe Verbrennungsluftleitung sowie Anbauleisten und Kuppeln (Abgasstutzen). Technische Daten: Nennwärmeleistung Gesamt: 8 kW Gewicht: 128 kg Abgasstutzen: 145/180 mm Abgastemperatur Holz: 194°C Abgastemperatur BB: 206°C Abgasmassenstrom Holz: 7 g/s Abgasmassenstrom BB: 10,8 g/s Notwendiger Förderdruck: 12 Pa Wirkungsgrad Holz: 84 % Wirkungsgrad BB: 83 % Abmessungen: Höhe, Stutzen senkrecht: 836 mm Breite: 387 mm Tiefe: 408 mm Landesbauverordnung: CE Die 2.Stufe der 1.BImSchV wird erfüllt Fabrikat: Buderus Buderus-Artikel-Nr.: 7736602492 Energieeffizienzklasse: A+ Energieeffizienzklassen-Spektrum: A++ -> G Direkte Wärmeleistung: 8,0 kW Energieeffizienzindex: 119 Technische Daten Kuppel aus Gusseisen: Für die unterschiedlichsten Einbauvarianten sind folgende Kuppeln erhältlich. Ein besonderer Vorteil ist, dass die Kuppeln stufenlos drehbar gelagert sind. Somit ist auch eine problemlose Befestigung gewährleistet. Kuppelabgang senkrecht, 145 mm, Gewicht ca. 6,5 kg Kuppelabgang senkrecht, 180 mm, Gewicht ca. 6,5 kg Kuppelabgang waagerecht, 145 mm, Gewicht ca. 12,5 kg schwarz lackiert Technische Daten Set Anbauleisten: Die Standard-Auslieferung besteht aus einer 790 x 420 mm Frontplatte, die über Anbauleisten auf verschiedene Einbaumaße angepasst werden kann. Lieferumfang: Buderus Heizeinsatz Logaflame HLS117, 8 kW, mit Frontplatte vormontierte Frontplatte 790 x 420 mm Kuppel optional laut Ihrer Auswahl (ohne, senkrecht oder waagerecht) Anbauleisten optional laut Ihrer Auswahl

ab 2.210,12 €*
a+
a++ g
Datenblatt

Art.Nr.: 153351323

ca. 1 Woche

Buderus Heizeinsatz Logaflame HLS216 8 kW Kachelofeneinsatz Muldenfeuerung
Buderus Logaflame Heizeinsatz HLS216 - Leistung: 8 KW Türanschlag links/rechts - Muldenfeuerung Beschreibung: Holzbrand-Heizeinsatz nach DIN EN 13229 für den Einbau in Warmluftöfen mit Muldenfeuerung. Der Einbau erfolgt immer in Verbindung mit einer Nachheizfläche. Brennraumauskleidung aus Feuerbeton und Vermiculite liegt teilweise in mehreren Verpackungseinheiten im Feuerraum bei. Sie wird über die Feuerraumtür in den Brennraum passgenau gesteckt ohne auszumörteln. Feuerraumtür mit Türanschlag links oder rechts ist mit einer großen Sichtfensterscheibe in Doppelverglasung ausgestattet. Ein Umbau des Türanschlag ist nicht möglich. Für den Einbau in engen Nischen ist der Nischentürgriff (Zubehör) zu verwenden. Wahlweise kann der Heizeinsatz mit verschiedenen Front- platten oder mit einem Blendrahmen ein- gebaut werden. Der Kuppelabgang kann wahlweise waagerecht bzw. senkrecht erfolgen. Der Kuppelabgang-Durchmesser beträgt 145 mm für die waagerechte und senkrechte Kuppel. Zusätzlich steht eine senkrechte Kuppel mit Abgang 180 mm zur Verfügung. Die 2.Stufe der 1.BImSchV wird erfüllt. Produktinformationen: Maximale Sicht auf das Holzfeuer durch große Sichtfensterscheibe Ideal für den Austausch Ihres alten Heizeinsatzes durch gleiche Grundflächenabmessungen Dank optimierter Feuerraumgeometrie und Verbrennungsluftführung liegen Schadstoffemissionen deutlich unter den gesetzlichen Grenzwerten. Die 2.Stufe der 1.BImSchV wird erfüllt Durch Doppelverglasung und Scheibenspülluft bleibt die Sichtfensterscheibe noch sauberer Umfangreiches Zubehör erleichtert den Einbau in vorhandene Kachelöfen und den Neubau von Kachel- oder Putzöfen Einfache Bedienung, Regelung der Primär-, Sekundär- und Scheibenspülluft mit einem Verbrennungsluftschieber Serienmäßig mit einer Muldenfeuerung ausgestattet Türanschlag kann mit linkem oder rechtem Türanschlag bestellt werden Türen mit Doppelverglasung versehen - dadurch erhöht sich die Feuerraumtemperatur im Inneren. Das führt zu einer besseren Verbrennung mit niedrigeren Emissionen. Außerdem bleibt die Sichtfensterscheibe noch sauberer, der Effekt des Systems für die Scheibenspülluft verstärkt sich. Tür selbstschließend, Mehrfachbelegung bei Schornsteineignung möglich Die Kuschelecke vor dem Ofen bleibt, wo sie ist, weil dank Doppelverglasung die Sicherheitsabstände trotz besonders großer Sichtfensterfläche nicht vergrößert werden müssen Brennraumauskleidung aus Feuerbeton und Vermiculite passgenau gesteckt, kein ausmörteln mehr erforderlich Regelung der Primär-, Sekundär- und Scheibenspülluft über einen Verbrennungsluftschieber Anschluss an eine externe Verbrennungsluftleitung möglich, Verbrennungsluftstutzen im Zubehörprogramm Entsprechend Einbausituation waagerechte und senkrechte Abgaskuppeln erhältlich Frontplatten in drei Abmessungen 895x470 mm, 790x420 mm und 830x470 mm erhältlich Blendrahmen schwarz lackiert Für den leichteren Einbau sind Heizeinsätze mit Transportrollen ausgestattet und es kann die Brennraumauskleidung über die Tür herausgenommen werden Mit Hilfe eines Umrüstsatzes können die Heizeinsätze von Muldenfeuerung auf Rostfeuerung umgerüstet werden, dann sind die Heizeinsätze für Scheitholz und Braunkohlebrikett geeignet Technische Daten: siehe Datenblatt Lieferumfang: Buderus Logaflame HLS216 8 kW gewählter Türanschlag links oder rechts Brennraumauskleidung aus Feuerbeton und Vermiculite in 4 VPE Montage- und Betriebsanleitung

ab 2.844,35 €*
a+
a++ g
Datenblatt

Art.Nr.: 148816823

ca. 1 Woche

Buderus Heizeinsatz HLG217 10 kW Logaflame Kachelofeneinsatz Kamineinsatz Kuppel
Buderus Heizeinsatz Logaflame HLG217 - Leistung 10 kW - optional Kuppel + Anbauleisten Hersteller: 7736602493 Buderus Festbrennstoff-Heizeinsatz Logaflame HLG217, 10 kW, mit Frontplatte und ohne/mit Kuppel. Festbrennstoff-Heizeinsatz nach DIN EN 13229 für den Einbau in Warmluftöfen mit Rostfeuerung. Für 33 cm Scheitholz und Braunkohlebriketts geeignet. Der Einbau erfolgt immer in Verbindung mit einer Nachheizfläche. Der Heizeinsatz ist besonders geeignet für den Anschluss an keramische Züge. Brennraumauskleidung aus Feuerbeton und Vermiculite sind lose passgenau gesteckt im Feuerraum. Kein Ausmörteln erforderlich. Der Heizeinsatz wird mit einer vormontierten Frontplatte 790 x 420 mm ausgeliefert. Weitere Frontplatten-Abmessungen können über Anbauleisten realisiert werden. Der Kuppelabgang kann wahlweise waagerecht bzw. senkrecht erfolgen. Der Kuppelabgang-Durchmesser beträgt 145 mm für die waagerechte und senkrechte Kuppel. Zusätzlich steht eine senkrechte Kuppel mit Abgang 180 mm zur Verfügung. Die 2.Stufe der 1.BImSchV wird erfüllt. Geräteinformation der HLG-Heizeinsätze: Alle Heizeinsätze, die vom 01.01.1975 bis zum 31.12.1984 eingebaut wurden, sind austauschpflichtig. Genau dafür sind die Logaflame HL...7 Heizeinsätze konzipiert. Die wichtigen Abmessungen der alten Buderus Heizeinsätze wurden dabei beibehalten. Ideal für den Einbau in Kachelofenanlagen, wo sich der Heizeinsatz im Keller, Flur oder Küche befindet. Die Logaflame HL...7 vereinen modernste Technik und klassisches Design. Ausgestattet sind die Heizeinsätze mit zwei Türen: einer Fülltür und einer Aschetür. Die Fülltür besitzt ein kleines Sichtfenster. Eine Rostfeuerung mit Rüttelrost und Aschekasten gehört mit zum Gerät. Zugelassen sind die Heizeinsätze für die Brennstoffe Scheitholz, Holzbriketts und Braunkohlebriketts. Selbstverständlich erfüllen alle Logaflame HL...7 die 2. Stufe der 1. BImSchV. Die Heizeinsätze können an Nachheizflächen aus Stahlblech oder an lange keramische Züge angeschlossen werden. Auch die Kombination mit Ortner-Aufsatzspeicher ist möglich. Für eine einfache und effiziente Bedienung kann der Logamatic TCA200 mit den Heizeinsätzen kombiniert werden. Technische Daten: Nennwärmeleistung Gesamt: 10 kW Gewicht: 135 kg Abgasstutzen: 145/180 mm Abgastemperatur Holz: 199 C Abgastemperatur BB: 193 C Abgasmassenstrom Holz: 9,7 g/s Abgasmassenstrom BB: 9,8 g/s Notwendiger Förderdruck: 12 Pa Wirkungsgrad Holz: 84 % Wirkungsgrad BB: 84 % Scheitholzlänge: max. 33 cm Abmessungen: Höhe, Stutzen senkrecht: 836 mm Breite: 387 mm Tiefe: 477 mm Landesbauverordnung: CE Die 2.Stufe der 1.BImSchV wird erfüllt Fabrikat: Buderus Buderus-Artikel-Nr.: 7736602493 Energieeffizienzklasse: A+ Energieeffizienzklassen-Spektrum: A++ -> G Direkte Wärmeleistung: 10,0 kW Energieeffizienzindex: 116 Abgasnorm: die 2. Stufe der 1. BImSchV wird erfüllt Technische Daten Kuppel aus Gusseisen: Für die unterschiedlichsten Einbauvarianten sind folgende Kuppeln erhältlich. Ein besonderer Vorteil ist, dass die Kuppeln stufenlos drehbar gelagert sind. Somit ist auch eine problemlose Befestigung gewährleistet. Kuppelabgang senkrecht, 145 mm, Gewicht ca. 6,5 kg Kuppelabgang senkrecht, 180 mm, Gewicht ca. 6,5 kg Kuppelabgang waagerecht, 145 mm, Gewicht ca. 12,5 kg schwarz lackiert Technische Daten Set Anbauleisten: Die Standard-Auslieferung besteht aus einer 790 x 420 mm Frontplatte, die über Anbauleisten auf verschiedene Einbaumaße angepasst werden kann. Lieferumfang: Buderus Heizeinsatz Logaflame HLG217, 10 kW, mit Frontplatte vormontierte Frontplatte 790 x 420 mm Kuppel optional laut Ihrer Auswahl (ohne, senkrecht oder waagerecht) Anbauleisten optional laut Ihrer Auswahl

ab 2.548,00 €*
a+
a++ g
Datenblatt

Art.Nr.: 153335871

ca. 1 Woche

Buderus Heizeinsatz Logaflame HLG326 S 10 kW Kachelofeneinsatz Ofen Kuppel Kamin
Buderus Heizeinsatz HLG326 S schmale Frontscheibe - Leistung: 10 KW / optional Anbauleiste + Kuppel Hersteller: 7736604100 Beschreibung: Buderus bringt im Juli 2020 neue Heizeinsätze für Putz- und Kachelöfen mit Muldenfeueung auf den Markt: Die Logaflame HLG326 und HLG426 eignen sich gut für den Austausch. Sie sind mit kleiner oder großer Sichtscheibe erhältlich – oder alternativ mit einer Strahlungsschutzplatte umrüstbar, wodurch sie sich auch in Anlagen einsetzen lassen, bei denen aufgrund eines geringen Abstandes zu Einbaumöbeln keine Sichtscheibe zulässig ist. Viele Hausbesitzer müssen dieses Jahr ihre Kamine und Kachelöfen modernisieren: Bis Ende 2020 sind gemäß der ersten Bundesimmissionsschutzverordnung (1. BImSchV) Heizeinsätze, die zwischen 1985 und 1994 installiert wurden, auszutauschen. Das betrifft viele Holzbrand-Feuerstätten mit einer Muldenfeuerung. Die Logaflame HLG326 und HLG426 erfüllen die neuen gesetzlichen Anforderungen. Holzbrand-Heizeinsatz nach DIN EN 13229 für den Einbau in Warmluftöfen. Ausgestattet mit einer Muldenfeuerung, geeignet für 33 cm Scheitholz. Der Einbau er- folgt immer in Verbindung m. einer Nachheizfläche. Der Heizeinsatz ist besonders geeignet für den Anschluss an keramische Züge. Brennraumauskleidung aus Feuerbeton, Vermiculite und Gusseisen, die Teile sind lose passgenau gesteckt im Feuerraum. Kein Ausmörteln erforderlich. Der Heizeinsatz wird mit einer vormontierten Frontplatte 790x420 mm ausgeliefert. Weitere Frontplatten-Abmessungen können über Anbauleisten realisiert werden. Der Kuppelabgang kann wahlweise waagerecht bzw. senkrecht erfolgen. Der Kuppelabgang-Durchmesser beträgt 145 mm für die waagerechte und senkrechte Kuppel. Zusätzlich steht eine senkrechte Kuppel mit Abgang 180 mm zur Verfügung. Die 2.Stufe der 1.BImSchV wird erfüllt. Vorteile: Buderus Design-Heizeinsätze für die Modernisierung und den Neubau von Kachel- und Putzöfen Schadstoffemissionen deutlich unter gesetzlichen Grenzwerten – 2. Stufe der 1. BImSchV wird erfüllt Scheibenspülluft hält die Sichtfensterscheibe sauber Geeignet für Scheitholzlänge bis 330 mm Sichtfensterscheibe in Fall nicht ausreichender Brandschutzabstände austauschbar gegen eine Strahlungsschutzplatte Keramische Züge bis 6 m möglich Die Heizeinsätze lassen sich mit der Verbrennungsregelung Logamatic TCA200 kombinieren Technische Daten: EU-RICHTLINIE FÜR ENERGIEEFFIZIENZ Energieeffizienzklasse: A+ Energieeffizienzklassen- Spektrum: A++ -> G Direkte Wärmeleistung: 10,0 kW Indirekte Wärmeleistung: 0,0 kW Energieeffizienzindex: 118 - Nennwärmeleistung Gesamt: 10 kW Gewicht: 140 kg Abgasstutzen: 145/180 mm Abgastemperatur Holz: 189 C Abgasmassenstrom Holz: 8,7 g/s Notwendiger Förderdruck: 12 Pa Wirkungsgrad: 88 % Abmessungen: Höhe, Stutzen senkrecht: 792 mm Breite: 387 mm Tiefe: 460 mm Landesbauverordnung: CE-Zeichen Fabrikat: Buderus Buderus-Artikel-Nr.: 7736604100 Technische Daten Kuppel aus Gusseisen: Für die unterschiedlichsten Einbauvarianten sind folgende Kuppeln erhältlich. Ein besonderer Vorteil ist, dass die Kuppeln stufenlos drehbar gelagert sind. Somit ist auch eine problemlose Befestigung gewährleistet.   Kuppelabgang senkrecht, 145 mm, Gewicht ca. 6,5 kg Kuppelabgang senkrecht, 180 mm, Gewicht ca. 6,5 kg Kuppelabgang waagerecht, 145 mm, Gewicht ca. 12,5 kg Lieferumfang: Buderus Logaflame HLG326 S 10 KW Türanschlag rechts inklusive Ausmauerung und Frontplatte 790 x 420 mm Kuppel optional laut Ihrer Auswahl ( senkrecht, waagerecht ) Anbauleiste optional laut Ihrer Auswahl

ab 2.614,10 €*
a+
a++ g

Art.Nr.: 166107953

ca. 2-4 Werktage (Mo-Fr.)

Buderus Heizeinsatz Logaflame HLG326 B 10 kW Kachelofeneinsatz Ofen Kuppel
Buderus Heizeinsatz HLG326 B breite Frontscheibe - Leistung: 10 KW / optional Anbauleiste + Kuppel Hersteller: 7736604100 Beschreibung: Buderus bringt im Juli 2020 neue Heizeinsätze für Putz- und Kachelöfen mit Muldenfeueung auf den Markt: Die Logaflame HLG326 und HLG426 eignen sich gut für den Austausch. Sie sind mit kleiner oder großer Sichtscheibe erhältlich – oder alternativ mit einer Strahlungsschutzplatte umrüstbar, wodurch sie sich auch in Anlagen einsetzen lassen, bei denen aufgrund eines geringen Abstandes zu Einbaumöbeln keine Sichtscheibe zulässig ist. Viele Hausbesitzer müssen dieses Jahr ihre Kamine und Kachelöfen modernisieren: Bis Ende 2020 sind gemäß der ersten Bundesimmissionsschutzverordnung (1. BImSchV) Heizeinsätze, die zwischen 1985 und 1994 installiert wurden, auszutauschen. Das betrifft viele Holzbrand-Feuerstätten mit einer Muldenfeuerung. Die Logaflame HLG326 und HLG426 erfüllen die neuen gesetzlichen Anforderungen. Holzbrand-Heizeinsatz nach DIN EN 13229 für den Einbau in Warmluftöfen. Ausgestattet mit einer Muldenfeuerung, geeignet für 33 cm Scheitholz. Der Einbau erfolgt immer in Verbindung m. einer Nachheizfläche. Der Heizeinsatz ist besonders geeignet für den Anschluss an keramische Züge. Brennraumauskleidung aus Feuerbeton, Vermiculite und Gusseisen, die Teile sind lose passgenau gesteckt im Feuerraum. Kein Ausmörteln erforderlich. Der Heizeinsatz wird mit einer vormontierten Frontplatte 790x420 mm ausgeliefert. Weitere Frontplatten-Abmessungen können über Anbauleisten realisiert werden. Der Kuppelabgang kann wahlweise waagerecht bzw. senkrecht erfolgen. Der Kuppelabgang-Durchmesser beträgt 145 mm für die waagerechte und senkrechte Kuppel. Zusätzlich steht eine senkrechte Kuppel mit Abgang 180 mm zur Verfügung. Die 2.Stufe der 1.BImSchV wird erfüllt. Vorteile: Buderus Design-Heizeinsätze für die Modernisierung und den Neubau von Kachel- und Putzöfen Schadstoffemissionen deutlich unter gesetzlichen Grenzwerten – 2. Stufe der 1. BImSchV wird erfüllt Scheibenspülluft hält die Sichtfensterscheibe sauber Geeignet für Scheitholzlänge bis 330 mm Sichtfensterscheibe in Fall nicht ausreichender Brandschutzabstände austauschbar gegen eine Strahlungsschutzplatte Keramische Züge bis 6 m möglich Die Heizeinsätze lassen sich mit der Verbrennungsregelung Logamatic TCA200 kombinieren Technische Daten: EU-RICHTLINIE FÜR ENERGIEEFFIZIENZ Energieeffizienzklasse: A+ Energieeffizienzklassen- Spektrum: A++ -> G Direkte Wärmeleistung: 10,0 kW Indirekte Wärmeleistung: 0,0 kW Energieeffizienzindex: 118 - Nennwärmeleistung Gesamt: 10 kW Gewicht: 140 kg Abgasstutzen: 145/180 mm Abgastemperatur Holz: 189 C Abgasmassenstrom Holz: 8,7 g/s Notwendiger Förderdruck: 12 Pa Wirkungsgrad: 88 % Abmessungen: Höhe, Stutzen senkrecht: 792 mm Breite: 387 mm Tiefe: 460 mm Landesbauverordnung: CE-Zeichen Fabrikat: Buderus Buderus-Artikel-Nr.: 7736604101 Technische Daten Kuppel aus Gusseisen: Für die unterschiedlichsten Einbauvarianten sind folgende Kuppeln erhältlich. Ein besonderer Vorteil ist, dass die Kuppeln stufenlos drehbar gelagert sind. Somit ist auch eine problemlose Befestigung gewährleistet.   Kuppelabgang senkrecht, 145 mm, Gewicht ca. 6,5 kg Kuppelabgang senkrecht, 180 mm, Gewicht ca. 6,5 kg Kuppelabgang waagerecht, 145 mm, Gewicht ca. 12,5 kg Lieferumfang: Buderus Logaflame HLG326 B 10 KW Türanschlag rechts inklusive Ausmauerung und Frontplatte 790 x 420 mm Kuppel optional laut Ihrer Auswahl ( senkrecht, waagerecht ) Anbauleiste optional laut Ihrer Auswahl

ab 2.599,36 €*
a+
a++ g

Art.Nr.: 166150413

ca. 1-2 Wochen

Buderus Heizeinsatz HLG317 12 kW Kachelofeneinsatz Kamineinsatz Ofen Kuppel
Buderus Heizeinsatz Logaflame HLG317 - Leistung 12 kW Buderus Festbrennstoff-Heizeinsatz Logaflame HLG317, 12 kW, mit Frontplatte und ohne / mit Kuppel. Festbrennstoff-Heizeinsatz nach DIN EN 13229 für den Einbau in Warmluftöfen mit Rostfeuerung. Für 33 cm Scheitholz und Braunkohlebriketts geeignet. Der Einbau erfolgt immer in Verbindung mit einer Nachheizfläche.Der Heizeinsatz ist besonders geeignet für den Anschluss an keramische Züge.Brennraumauskleidung aus Feuerbeton und Vermiculite sind lose passgenau gesteckt im Feuerraum. Kein Ausmörteln erforderlich. Der Heizeinsatz wird mit einer vormontierten Frontplatte 790 x 420 mm ausgeliefert. Weitere Frontplatten-Abmessungen können über Anbauleisten realisiert werden. Der Kuppelabgang kann wahlweise waagerecht bzw. senkrecht erfolgen. Der Kuppelabgang-Durchmesser beträgt 145 mm für die waagerechte und senkrechte Kuppel. Zusätzlich steht eine senkrechte Kuppel mit Abgang 180 mm zur Verfügung. Die 2.Stufe der 1.BImSchV wird erfüllt. Geräteinformation der HLG-Heizeinsätze: Alle Heizeinsätze, die vom 01.01.1975 bis zum 31.12.1984 eingebaut wurden, sind austauschpflichtig. Genau dafür sind die Logaflame HL...7 Heizeinsätze konzipiert. Die wichtigen Abmessungen der alten Buderus Heizeinsätze wurden dabei beibehalten. Ideal für den Einbau in Kachelofenanlagen, wo sich der Heizeinsatz im Keller, Flur oder Küche befindet. Die Logaflame HL...7 vereinen modernste Technik und klassisches Design. Ausgestattet sind die Heizeinsätze mit zwei Türen: einer Fülltür und einer Aschetür. Die Fülltür besitzt ein kleines Sichtfenster. Eine Rostfeuerung mit Rüttelrost und Aschekasten gehört mit zum Gerät. Zugelassen sind die Heizeinsätze für die Brennstoffe Scheitholz, Holzbriketts und Braunkohlebriketts. Selbstverständlich erfüllen alle Logaflame HL...7 die 2. Stufe der 1. BImSchV. Die Heizeinsätze können an Nachheizflächen aus Stahlblech oder an lange keramische Züge angeschlossen werden. Auch die Kombination mit Ortner-Aufsatzspeicher ist möglich. Für eine einfache und effiziente Bedienung kann der Logamatic TCA200 mit den Heizeinsätzen kombiniert werden. Zum umfangreichen Zubehör gehören Verbrennungsluftstutzen für den Anschluss an eine externe Verbrennungsluftleitung sowie Anbauleisten und Kuppeln (Abgasstutzen). Technische Daten: Nennwärmeleistung Gesamt: 12 kW Gewicht: 135 kg Abgasstutzen: 145/180 mm Abgastemperatur Holz: 206°C Abgastemperatur BB: 214°C Abgasmassenstrom Holz: 12,1 g/s Abgasmassenstrom BB: 11,3 g/s Notwendiger Förderdruck: 12 Pa Wirkungsgrad Holz: 84 % Wirkungsgrad BB: 84 % Abmessungen: Höhe, Stutzen senkrecht: 836 mm Breite: 387 mm Tiefe: 477 mm Landesbauverordnung: CE Die 2.Stufe der 1.BImSchV wird erfüllt Fabrikat: Buderus Buderus-Artikel-Nr.: 7736602494 Energieeffizienzklasse: A+ Energieeffizienzklassen-Spektrum: A++ -> G Direkte Wärmeleistung: 12,0 kW Energieeffizienzindex: 113 Technische Daten Kuppel aus Gusseisen: Für die unterschiedlichsten Einbauvarianten sind folgende Kuppeln erhältlich. Ein besonderer Vorteil ist, dass die Kuppeln stufenlos drehbar gelagert sind. Somit ist auch eine problemlose Befestigung gewährleistet. Kuppelabgang senkrecht, 145 mm, Gewicht ca. 6,5 kg Kuppelabgang senkrecht, 180 mm, Gewicht ca. 6,5 kg Kuppelabgang waagerecht, 145 mm, Gewicht ca. 12,5 kg schwarz lackiert Technische Daten Set Anbauleisten: Die Standard-Auslieferung besteht aus einer 790 x 420 mm Frontplatte, die über Anbauleisten auf verschiedene Einbaumaße angepasst werden kann. Lieferumfang: Buderus Heizeinsatz Logaflame HLG317, 12 kW, mit Frontplatte vormontierte Frontplatte 790 x 420 mm Kuppel optional laut Ihrer Auswahl (ohne, senkrecht oder waagerecht) Anbauleisten optional laut Ihrer Auswahl

ab 2.626,62 €*
a+
a++ g
Datenblatt

Art.Nr.: 153343109

ca. 1 Woche

Buderus Heizeinsatz Logaflame HLG426 B 12 kW Kachelofeneinsatz Ofen Kuppel Kamin
Buderus Heizeinsatz HLG426 B breite Frontscheibe - Leistung: 12 KW / optional Anbauleiste + Kuppel Hersteller: 7736604102 Beschreibung: Buderus bringt im Juli 2020 neue Heizeinsätze für Putz- und Kachelöfen mit Muldenfeueung auf den Markt: Die Logaflame HLG326 und HLG426 eignen sich gut für den Austausch. Sie sind mit kleiner oder großer Sichtscheibe erhältlich – oder alternativ mit einer Strahlungsschutzplatte umrüstbar, wodurch sie sich auch in Anlagen einsetzen lassen, bei denen aufgrund eines geringen Abstandes zu Einbaumöbeln keine Sichtscheibe zulässig ist. Viele Hausbesitzer müssen dieses Jahr ihre Kamine und Kachelöfen modernisieren: Bis Ende 2020 sind gemäß der ersten Bundesimmissionsschutzverordnung (1. BImSchV) Heizeinsätze, die zwischen 1985 und 1994 installiert wurden, auszutauschen. Das betrifft viele Holzbrand-Feuerstätten mit einer Muldenfeuerung. Die Logaflame HLG326 und HLG426 erfüllen die neuen gesetzlichen Anforderungen. Holzbrand-Heizeinsatz nach DIN EN 13229 für den Einbau in Warmluftöfen. Ausgestattet mit einer Muldenfeuerung, geeignet für 33 cm Scheitholz. Der Einbau er- folgt immer in Verbindung m. einer Nachheizfläche. Der Heizeinsatz ist besonders geeignet für den Anschluss an keramische Züge. Brennraumauskleidung aus Feuerbeton, Vermiculite und Gusseisen, die Teile sind lose passgenau gesteckt im Feuerraum. Kein Ausmörteln erforderlich. Der Heizeinsatz wird mit einer vormontierten Frontplatte 790x420 mm ausgeliefert. Weitere Frontplatten-Abmessungen können über Anbauleisten realisiert werden. Der Kuppelabgang kann wahlweise waagerecht bzw. senkrecht erfolgen. Der Kuppelabgang-Durchmesser beträgt 145 mm für die waagerechte und senkrechte Kuppel. Zusätzlich steht eine senkrechte Kuppel mit Abgang 180 mm zur Verfügung. Die 2.Stufe der 1.BImSchV wird erfüllt. Vorteile: Buderus Design-Heizeinsätze für die Modernisierung und den Neubau von Kachel- und Putzöfen Schadstoffemissionen deutlich unter gesetzlichen Grenzwerten – 2. Stufe der 1. BImSchV wird erfüllt Scheibenspülluft hält die Sichtfensterscheibe sauber Geeignet für Scheitholzlänge bis 330 mm Sichtfensterscheibe in Fall nicht ausreichender Brandschutzabstände austauschbar gegen eine Strahlungsschutzplatte Keramische Züge bis 6 m möglich Die Heizeinsätze lassen sich mit der Verbrennungsregelung Logamatic TCA200 kombinieren Technische Daten: EU-RICHTLINIE FÜR ENERGIEEFFIZIENZ Energieeffizienzklasse: A+ Energieeffizienzklassen- Spektrum: A++ -> G Direkte Wärmeleistung: 12,0 kW Indirekte Wärmeleistung: 0,0 kW Energieeffizienzindex: 116 - Nennwärmeleistung Gesamt: 12 kW Gewicht: 140 kg Abgasstutzen: 145/180 mm Abgastemperatur Holz: 205 C Abgasmassenstrom Holz: 10,6 g/s Notwendiger Förderdruck: 12 Pa Wirkungsgrad: 87 % Abmessungen: Höhe, Stutzen senkrecht: 792 mm Breite: 387 mm Tiefe: 460 mm Landesbauverordnung: CE-Zeichen Fabrikat: Buderus Buderus-Artikel-Nr.: 7736604103 Technische Daten Kuppel aus Gusseisen: Für die unterschiedlichsten Einbauvarianten sind folgende Kuppeln erhältlich. Ein besonderer Vorteil ist, dass die Kuppeln stufenlos drehbar gelagert sind. Somit ist auch eine problemlose Befestigung gewährleistet.   Kuppelabgang senkrecht, 145 mm, Gewicht ca. 6,5 kg Kuppelabgang senkrecht, 180 mm, Gewicht ca. 6,5 kg Kuppelabgang waagerecht, 145 mm, Gewicht ca. 12,5 kg Lieferumfang: Buderus Logaflame HLG426 B 12 KW Türanschlag rechts inklusive Ausmauerung, Rüttelrost und Frontplatte 790 x 420 mm Kuppel optional laut Ihrer Auswahl ( senkrecht, waagerecht ) Anbauleiste optional laut Ihrer Auswahl

ab 2.658,64 €*
a+
a++ g
Datenblatt

Art.Nr.: 166785888

ca. 1 Woche

Buderus Heizeinsatz Logaflame HLG426 S 12 kW Kachelofeneinsatz Ofen Kuppel Kamin
Buderus Heizeinsatz HLG426 S schmale Frontscheibe - Leistung: 12 KW / optional Anbauleiste + Kuppel Hersteller: 7736604102   Beschreibung: Buderus bringt im Juli 2020 neue Heizeinsätze für Putz- und Kachelöfen mit Muldenfeueung auf den Markt: Die Logaflame HLG326 und HLG426 eignen sich gut für den Austausch. Sie sind mit kleiner oder großer Sichtscheibe erhältlich – oder alternativ mit einer Strahlungsschutzplatte umrüstbar, wodurch sie sich auch in Anlagen einsetzen lassen, bei denen aufgrund eines geringen Abstandes zu Einbaumöbeln keine Sichtscheibe zulässig ist. Viele Hausbesitzer müssen dieses Jahr ihre Kamine und Kachelöfen modernisieren: Bis Ende 2020 sind gemäß der ersten Bundesimmissionsschutzverordnung (1. BImSchV) Heizeinsätze, die zwischen 1985 und 1994 installiert wurden, auszutauschen. Das betrifft viele Holzbrand-Feuerstätten mit einer Muldenfeuerung. Die Logaflame HLG326 und HLG426 erfüllen die neuen gesetzlichen Anforderungen. Holzbrand-Heizeinsatz nach DIN EN 13229 für den Einbau in Warmluftöfen. Ausgestattet mit einer Muldenfeuerung, geeignet für 33 cm Scheitholz. Der Einbau er- folgt immer in Verbindung m. einer Nachheizfläche. Der Heizeinsatz ist besonders geeignet für den Anschluss an keramische Züge. Brennraumauskleidung aus Feuerbeton, Vermiculite und Gusseisen, die Teile sind lose passgenau gesteckt im Feuerraum. Kein Ausmörteln erforderlich. Der Heizeinsatz wird mit einer vormontierten Frontplatte 790x420 mm ausgeliefert. Weitere Frontplatten-Abmessungen können über Anbauleisten realisiert werden. Der Kuppelabgang kann wahlweise waagerecht bzw. senkrecht erfolgen. Der Kuppelabgang-Durchmesser beträgt 145 mm für die waagerechte und senkrechte Kuppel. Zusätzlich steht eine senkrechte Kuppel mit Abgang 180 mm zur Verfügung. Die 2.Stufe der 1.BImSchV wird erfüllt. Vorteile: Buderus Design-Heizeinsätze für die Modernisierung und den Neubau von Kachel- und Putzöfen Schadstoffemissionen deutlich unter gesetzlichen Grenzwerten – 2. Stufe der 1. BImSchV wird erfüllt Scheibenspülluft hält die Sichtfensterscheibe sauber Geeignet für Scheitholzlänge bis 330 mm Sichtfensterscheibe in Fall nicht ausreichender Brandschutzabstände austauschbar gegen eine Strahlungsschutzplatte Keramische Züge bis 6 m möglich Die Heizeinsätze lassen sich mit der Verbrennungsregelung Logamatic TCA200 kombinieren Technische Daten: EU-RICHTLINIE FÜR ENERGIEEFFIZIENZ Energieeffizienzklasse: A+ Energieeffizienzklassen- Spektrum: A++ -> G Direkte Wärmeleistung: 12,0 kW Indirekte Wärmeleistung: 0,0 kW Energieeffizienzindex: 116 - Nennwärmeleistung Gesamt: 12 kW Gewicht: 140 kg Abgasstutzen: 145/180 mm Abgastemperatur Holz: 205 C Abgasmassenstrom Holz: 10,6 g/s Notwendiger Förderdruck: 12 Pa Wirkungsgrad: 87 % Abmessungen: Höhe, Stutzen senkrecht: 792 mm Breite: 387 mm Tiefe: 460 mm Landesbauverordnung: CE-Zeichen Fabrikat: Buderus Buderus-Artikel-Nr.: 7736604102 Technische Daten Kuppel aus Gusseisen: Für die unterschiedlichsten Einbauvarianten sind folgende Kuppeln erhältlich. Ein besonderer Vorteil ist, dass die Kuppeln stufenlos drehbar gelagert sind. Somit ist auch eine problemlose Befestigung gewährleistet.   Kuppelabgang senkrecht, 145 mm, Gewicht ca. 6,5 kg Kuppelabgang senkrecht, 180 mm, Gewicht ca. 6,5 kg Kuppelabgang waagerecht, 145 mm, Gewicht ca. 12,5 kg   Lieferumfang: Buderus Logaflame HLG426 S 12 KW Türanschlag rechts inklusive Ausmauerung, Rüttelrost und Frontplatte 790 x 420 mm Kuppel optional laut Ihrer Auswahl ( senkrecht, waagerecht ) Anbauleiste optional laut Ihrer Auswahl  

ab 2.695,18 €*
a+
a++ g

Art.Nr.: 166150745

ca. 1-2 Wochen

Buderus Logaflame HLG316 Heizeinsatz Kachelofeneinsatz Kamineinsatz li
Buderus Heizeinsatz Logaflame HLG316 - Leistung: 10 KW Türanschlag links / Hersteller: 8718596050 Beschreibung: Holzbrand-Heizeinsatz nach DIN EN 13229 für den Einbau in Warmluftöfen mit Muldenfeuerung. Der Einbau erfolgt immer in Verbindung mit einer Nachheizfläche. Der Heizeinsatz ist besonders geeignet für den Anschluss an keramische Züge. Die Brennraumauskleidung aus Feuerbeton und Vermiculite liegt in 4 Verpackungseinheiten im Feuerraum bei. Sie wird über die Feuerraumtür in den Brennraum passgenau gesteckt ohne auszumörteln. Feuerraumtür Türanschlag links ist mit einer großen Sichtfensterscheibe in Doppelverglasung ausgestattet. Umbau auf Türanschlag rechts ist nicht möglich. Für den Einbau in engen Nischen ist der Nischentürgriff (Zubehör) zu verwenden. Wahlweise kann der Heizeinsatz mit verschiedenen Frontplatten oder mit einem Blendrahmen eingebaut werden. Kuppelabgang kann wahlweise waagerecht bzw. senkrecht erfolgen. Der Kuppelabgang-Durchmesser beträgt 145 mm für die waagerechte und senkrechte Kuppel. Zusätzlich steht eine senkrechte Kuppel mit Abgang 180 mm zur Verfügung. Die 2.Stufe der 1.BImSchV wird erfüllt. Produktvorteile: hohe Wirkungsgrade und niedrige Emissionen durch modernste Abbrandtechnik (nach 1. BlmSchV) wassergeführte Heizeinsätze zur Heizungsunterstützung wahlweise geeignet für die Brennstoffe Holz sowie Holz- und Braunkohlebriketts bedienungsfreundlich, sauber, sicher große Modellvielfalt passendes Zubehörprogramm Heizeinsätze zum Verbrennen von Holz und Braunkohlebriketts Hohe Wirkungsgrade und niedrige Emissionen Ideal für den Austausch Ihres alten Heizeinsatzes durch identische Abmessungen zu den älteren Buderus - Kandern Heizeinsätzen Korpus aus Gusseisen dadurch hohe Langlebigkeit Sichtbare Oberflächen sind emailliert Technische Daten Rohr: EU-RICHTLINIE FÜR ENERGIEEFFIZIENZ Energieeffizienzklasse: A+ Energieeffizienzklassen- Spektrum: A++ -> G Direkte Wärmeleistung: 10,0 kW Indirekte Wärmeleistung: 0,0 kW Energieeffizienzindex: 113 Nennwärmeleistung Gesamt: 10 kW Wärmeleistung Ohne Nachheizfläche: 5,2 kW Gewicht: 133 kg Abgasstutzen: 145/180 mm Abgastemperatur: 177 C Abgasmassenstrom: 10,8 g/s Notwendiger Förderdruck: 15 Pa Wirkungsgrad: 85 % Höhe, Stutzen senkrecht: 792 mm Breite: 387 mm Tiefe: 464 mm Landesbauverordnung: CE-Zeichen Fabrikat: Buderus Buderus-Artikel-Nr.: 8718596050 Lieferumfang: Buderus Logaflame HLG316 10 KW Türanschlag links Brennraumauskleidung aus Feuerbeton und Vermiculite in 4 VPE Montage- und Betriebsanleitung

3.443,06 €*
a+
a++ g
Datenblatt

Art.Nr.: 148780901

ca. 2-4 Werktage (Mo-Fr.)