Buderus Heizeinsatz Logaflame HLG326 S 10 kW Kachelofeneinsatz Ofen Kuppel Kamin
Buderus Heizeinsatz HLG326 S schmale Frontscheibe - Leistung: 10 KW / optional Anbauleiste + Kuppel
Hersteller: 7736604100
Beschreibung:
Buderus bringt im Juli 2020 neue Heizeinsätze für Putz- und Kachelöfen mit Muldenfeueung auf den Markt: Die Logaflame HLG326 und HLG426 eignen sich gut für den Austausch. Sie sind mit kleiner oder großer Sichtscheibe erhältlich – oder 
alternativ mit einer Strahlungsschutzplatte umrüstbar, wodurch sie sich auch in Anlagen einsetzen lassen, bei denen aufgrund eines geringen Abstandes zu Einbaumöbeln keine Sichtscheibe zulässig ist. Viele Hausbesitzer müssen dieses Jahr ihre Kamine und Kachelöfen modernisieren: Bis Ende 2020 sind gemäß der ersten Bundesimmissionsschutzverordnung (1. BImSchV) Heizeinsätze, die zwischen 1985 und 1994 installiert wurden, auszutauschen. Das betrifft viele Holzbrand-Feuerstätten mit einer Muldenfeuerung. Die Logaflame HLG326 und HLG426 erfüllen die neuen gesetzlichen Anforderungen. 
Holzbrand-Heizeinsatz nach DIN EN 13229 für den Einbau in Warmluftöfen. Ausgestattet mit einer Muldenfeuerung, geeignet für 33 cm Scheitholz. Der Einbau er- folgt immer in Verbindung m. einer Nachheizfläche. Der Heizeinsatz ist besonders geeignet für den Anschluss an keramische Züge. Brennraumauskleidung aus Feuerbeton, Vermiculite und Gusseisen, die Teile sind lose passgenau gesteckt im Feuerraum. Kein Ausmörteln erforderlich. Der Heizeinsatz wird mit einer vormontierten Frontplatte 790x420 mm ausgeliefert. Weitere Frontplatten-Abmessungen können über Anbauleisten realisiert werden. Der Kuppelabgang kann wahlweise waagerecht bzw. senkrecht erfolgen. Der Kuppelabgang-Durchmesser beträgt 145 mm für die waagerechte und senkrechte Kuppel. Zusätzlich steht eine senkrechte Kuppel mit Abgang 180 mm zur Verfügung. Die 2.Stufe der 1.BImSchV wird erfüllt. 
Vorteile:
- Buderus Design-Heizeinsätze für die Modernisierung und den Neubau von Kachel- und Putzöfen
- Schadstoffemissionen deutlich unter gesetzlichen Grenzwerten – 2. Stufe der 1. BImSchV wird erfüllt
- Scheibenspülluft hält die Sichtfensterscheibe sauber
- Geeignet für Scheitholzlänge bis 330 mm
- Sichtfensterscheibe in Fall nicht ausreichender Brandschutzabstände austauschbar gegen eine Strahlungsschutzplatte
- Keramische Züge bis 6 m möglich
- Die Heizeinsätze lassen sich mit der Verbrennungsregelung Logamatic TCA200 kombinieren
Technische Daten:
- 
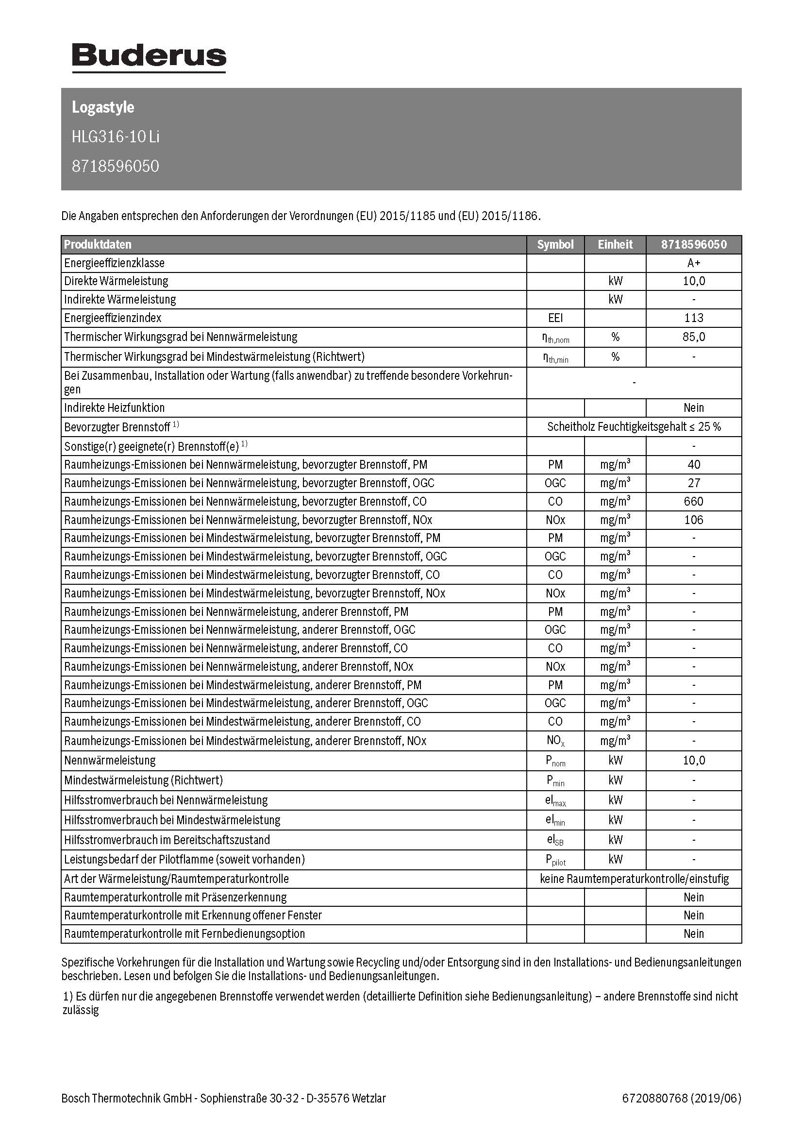
EU-RICHTLINIE FÜR ENERGIEEFFIZIENZ
 Energieeffizienzklasse: A+
 Energieeffizienzklassen-
 Spektrum: A++ -> G
 Direkte Wärmeleistung: 10,0 kW
 Indirekte Wärmeleistung: 0,0 kW
 Energieeffizienzindex: 118
 -
- Nennwärmeleistung Gesamt: 10 kW
- Gewicht: 140 kg
- Abgasstutzen: 145/180 mm
- Abgastemperatur Holz: 189 C
- Abgasmassenstrom Holz: 8,7 g/s
- Notwendiger Förderdruck: 12 Pa
- Wirkungsgrad: 88 %
- Abmessungen:
 Höhe, Stutzen senkrecht: 792 mm
 Breite: 387 mm
 Tiefe: 460 mm
- Landesbauverordnung: CE-Zeichen
- Fabrikat: Buderus
- Buderus-Artikel-Nr.: 7736604100
Technische Daten Kuppel aus Gusseisen:
Für die unterschiedlichsten Einbauvarianten sind folgende Kuppeln erhältlich. Ein besonderer Vorteil ist, dass die Kuppeln stufenlos drehbar gelagert sind. Somit ist auch eine problemlose Befestigung gewährleistet.
- Kuppelabgang senkrecht, 145 mm, Gewicht ca. 6,5 kg
- Kuppelabgang senkrecht, 180 mm, Gewicht ca. 6,5 kg
- Kuppelabgang waagerecht, 145 mm, Gewicht ca. 12,5 kg
Lieferumfang:
- Buderus Logaflame HLG326 S 10 KW Türanschlag rechts
- inklusive Ausmauerung und Frontplatte 790 x 420 mm
- Kuppel optional laut Ihrer Auswahl ( senkrecht, waagerecht )
- Anbauleiste optional laut Ihrer Auswahl
Allg. Sicherheitshinweise:
Zur Vermeidung von Körper- und Gesundheitsschäden sind die Montage, Erstinbetriebnahme, Inspektion, Wartung und Instandsetzung von autorisierten Fachkräften (Heizungs- / Sanitärfachbetrieb / Vertragsinstallationsunternehmen) vorzunehmen!
Bestimmungsgemäße Verwendung: Bitte beachten Sie die bei Installation und Montage beiliegende Installations-, Betriebs- und Wartungsanleitungen sowie Produkt-/Systemzulassungen aller Anlagenkomponenten. Bei Wärmeerzeugern ist es zum Beispiel regelmäßig der Fall, dass allein für diese Heizung zugelassene Abgastechnik zur Verwendung gelangen darf. Zur bestimmungsgemäßen Verwendung gehört gleichsam die Einhaltung der ebenfalls in o.g. Unterlagen enthaltenen Inspektions- und Wartungsbedingungen.
Elektrische Heizgeräte sowie Durchlauferhitzer mit Starkstromanschluß (400V) dürfen nur durch jeweiligen Netzbetreiber oder durch ein in das Installateurverzeichnis des Netzbetreibers eingetragenes Installationsunternehmen installiert werden!
Elektrogeräte mit Drei-Phasen-Wechselstrom-Anschluss (3~/400V) und "nicht-steckerfertigen Geräten" sind von einem Fachbetrieb zu installieren. Geräte mit einer Nennleistung von mehr als 12 kW müssen vor der Erstinstallation eine Zustimmung vom Netzbetrieber erhalten.
Installation, Inspektion, Wartung und Instandsetzung von Gasgeräten sowie Gaseinstellungen darf nur ein Fachhandwerker durchführen!
Bosch Thermotechnik GmbH
Sophienstraße 30-32
35576 Wetzlar
DE
Tel: 06441 418-0
E-Mail: info@buderus.de
Buderus Heizeinsatz HLG326 S schmale Frontscheibe - Leistung: 10 KW / optional Anbauleiste + Kuppel
Hersteller: 7736604100
Beschreibung:
Buderus bringt im Juli 2020 neue Heizeinsätze für Putz- und Kachelöfen mit Muldenfeueung auf den Markt: Die Logaflame HLG326 und HLG426 eignen sich gut für den Austausch. Sie sind mit kleiner oder großer Sichtscheibe erhältlich – oder 
alternativ mit einer Strahlungsschutzplatte umrüstbar, wodurch sie sich auch in Anlagen einsetzen lassen, bei denen aufgrund eines geringen Abstandes zu Einbaumöbeln keine Sichtscheibe zulässig ist. Viele Hausbesitzer müssen dieses Jahr ihre Kamine und Kachelöfen modernisieren: Bis Ende 2020 sind gemäß der ersten Bundesimmissionsschutzverordnung (1. BImSchV) Heizeinsätze, die zwischen 1985 und 1994 installiert wurden, auszutauschen. Das betrifft viele Holzbrand-Feuerstätten mit einer Muldenfeuerung. Die Logaflame HLG326 und HLG426 erfüllen die neuen gesetzlichen Anforderungen. 
Holzbrand-Heizeinsatz nach DIN EN 13229 für den Einbau in Warmluftöfen. Ausgestattet mit einer Muldenfeuerung, geeignet für 33 cm Scheitholz. Der Einbau er- folgt immer in Verbindung m. einer Nachheizfläche. Der Heizeinsatz ist besonders geeignet für den Anschluss an keramische Züge. Brennraumauskleidung aus Feuerbeton, Vermiculite und Gusseisen, die Teile sind lose passgenau gesteckt im Feuerraum. Kein Ausmörteln erforderlich. Der Heizeinsatz wird mit einer vormontierten Frontplatte 790x420 mm ausgeliefert. Weitere Frontplatten-Abmessungen können über Anbauleisten realisiert werden. Der Kuppelabgang kann wahlweise waagerecht bzw. senkrecht erfolgen. Der Kuppelabgang-Durchmesser beträgt 145 mm für die waagerechte und senkrechte Kuppel. Zusätzlich steht eine senkrechte Kuppel mit Abgang 180 mm zur Verfügung. Die 2.Stufe der 1.BImSchV wird erfüllt. 
Vorteile:
- Buderus Design-Heizeinsätze für die Modernisierung und den Neubau von Kachel- und Putzöfen
- Schadstoffemissionen deutlich unter gesetzlichen Grenzwerten – 2. Stufe der 1. BImSchV wird erfüllt
- Scheibenspülluft hält die Sichtfensterscheibe sauber
- Geeignet für Scheitholzlänge bis 330 mm
- Sichtfensterscheibe in Fall nicht ausreichender Brandschutzabstände austauschbar gegen eine Strahlungsschutzplatte
- Keramische Züge bis 6 m möglich
- Die Heizeinsätze lassen sich mit der Verbrennungsregelung Logamatic TCA200 kombinieren
Technische Daten:
- 
EU-RICHTLINIE FÜR ENERGIEEFFIZIENZ
 Energieeffizienzklasse: A+
 Energieeffizienzklassen-
 Spektrum: A++ -> G
 Direkte Wärmeleistung: 10,0 kW
 Indirekte Wärmeleistung: 0,0 kW
 Energieeffizienzindex: 118
 -
- Nennwärmeleistung Gesamt: 10 kW
- Gewicht: 140 kg
- Abgasstutzen: 145/180 mm
- Abgastemperatur Holz: 189 C
- Abgasmassenstrom Holz: 8,7 g/s
- Notwendiger Förderdruck: 12 Pa
- Wirkungsgrad: 88 %
- Abmessungen:
 Höhe, Stutzen senkrecht: 792 mm
 Breite: 387 mm
 Tiefe: 460 mm
- Landesbauverordnung: CE-Zeichen
- Fabrikat: Buderus
- Buderus-Artikel-Nr.: 7736604100
Technische Daten Kuppel aus Gusseisen:
Für die unterschiedlichsten Einbauvarianten sind folgende Kuppeln erhältlich. Ein besonderer Vorteil ist, dass die Kuppeln stufenlos drehbar gelagert sind. Somit ist auch eine problemlose Befestigung gewährleistet.
- Kuppelabgang senkrecht, 145 mm, Gewicht ca. 6,5 kg
- Kuppelabgang senkrecht, 180 mm, Gewicht ca. 6,5 kg
- Kuppelabgang waagerecht, 145 mm, Gewicht ca. 12,5 kg
Lieferumfang:
- Buderus Logaflame HLG326 S 10 KW Türanschlag rechts
- inklusive Ausmauerung und Frontplatte 790 x 420 mm
- Kuppel optional laut Ihrer Auswahl ( senkrecht, waagerecht )
- Anbauleiste optional laut Ihrer Auswahl
Allg. Sicherheitshinweise:
Zur Vermeidung von Körper- und Gesundheitsschäden sind die Montage, Erstinbetriebnahme, Inspektion, Wartung und Instandsetzung von autorisierten Fachkräften (Heizungs- / Sanitärfachbetrieb / Vertragsinstallationsunternehmen) vorzunehmen!
Bestimmungsgemäße Verwendung: Bitte beachten Sie die bei Installation und Montage beiliegende Installations-, Betriebs- und Wartungsanleitungen sowie Produkt-/Systemzulassungen aller Anlagenkomponenten. Bei Wärmeerzeugern ist es zum Beispiel regelmäßig der Fall, dass allein für diese Heizung zugelassene Abgastechnik zur Verwendung gelangen darf. Zur bestimmungsgemäßen Verwendung gehört gleichsam die Einhaltung der ebenfalls in o.g. Unterlagen enthaltenen Inspektions- und Wartungsbedingungen.
Elektrische Heizgeräte sowie Durchlauferhitzer mit Starkstromanschluß (400V) dürfen nur durch jeweiligen Netzbetreiber oder durch ein in das Installateurverzeichnis des Netzbetreibers eingetragenes Installationsunternehmen installiert werden!
Elektrogeräte mit Drei-Phasen-Wechselstrom-Anschluss (3~/400V) und "nicht-steckerfertigen Geräten" sind von einem Fachbetrieb zu installieren. Geräte mit einer Nennleistung von mehr als 12 kW müssen vor der Erstinstallation eine Zustimmung vom Netzbetrieber erhalten.
Installation, Inspektion, Wartung und Instandsetzung von Gasgeräten sowie Gaseinstellungen darf nur ein Fachhandwerker durchführen!
Bosch Thermotechnik GmbH
Sophienstraße 30-32
35576 Wetzlar
DE
Tel: 06441 418-0
E-Mail: info@buderus.de
 
                                                                         
                
                 
                  
             
                                 
                                 
                                 
                                 
                                 
                                 
                                                                                     
                                                                             
                                                                             
                                                 
                                                 
                                                 
                                                 
                                                 
                                                 
                                                 
                                                 
                                                 
                                                